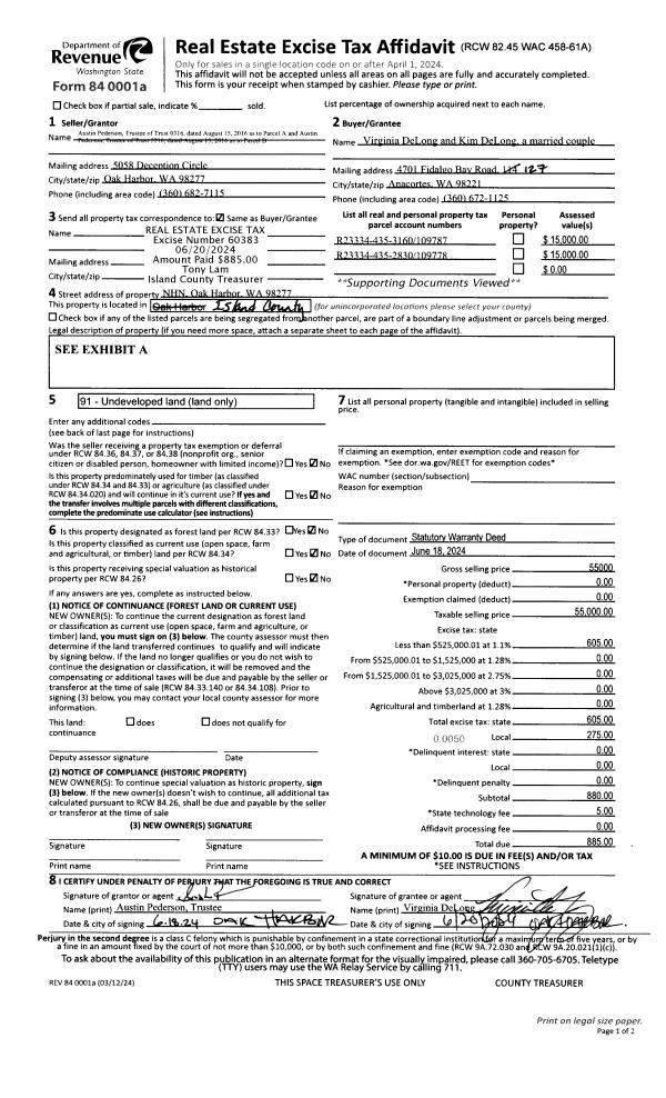
Property
Account |
| Property ID: | 602841 | Abbreviated Legal Description: | LOT A OH-SP 12-84.13203.170-3350 V1(6) SP P363 AF#85008211 EX WLY 5' TO CITY OF OH |
| Geographic ID: | R13203-170-3310 | Agent Code: | |
| Type: | Real | | |
| Tax Area: | 100 - APPRAISER-OH Schl Dist, in OH | Land Use Code | 11 |
| Open Space: | N | DFL | N |
| Historic Property: | N | Remodel Property: | N |
| Multi-Family Redevelopment: | N | | |
| Township: | 32 | Section: | 03 |
| Range: | R1 |
Location |
| Address: | 1350 SW FAIRHAVEN DR OAK HARBOR, WA 98277 | Mapsco: | |
| Neighborhood: | Cycle 1 | Map ID: | 91 |
| Neighborhood CD: | 1 |
Owner |
| Name: | JACOY, KENNETH D | Owner ID: | 282481 |
| Mailing Address: | 1350 SW FAIRHAVEN DR OAK HARBOR, WA 98277 | % Ownership: | 100.0000000000% |
| | | Exemptions: | |
Taxes and Assessment Details
Values
| (+) Improvement Homesite Value: | + | $0 | |
| (+) Improvement Non-Homesite Value: | + | $399,594 | |
| (+) Land Homesite Value: | + | $0 | |
| (+) Land Non-Homesite Value: | + | $240,000 | |
| (+) Curr Use (HS): | + | $0 | $0 |
| (+) Curr Use (NHS): | + | $0 | $0 |
| | | -------------------------- | |
| (=) Market Value: | = | $639,594 | |
| (–) Productivity Loss: | – | $0 | |
| | | -------------------------- | |
| (=) Subtotal: | = | $639,594 | |
| (+) Senior Appraised Value: | + | $0 | |
| (+) Non-Senior Appraised Value: | + | $639,594 | |
| | | -------------------------- | |
| (=) Total Appraised Value: | = | $639,594 | |
| (–) Senior Exemption Loss: | – | $0 | |
| (–) Exemption Loss: | – | $0 | |
| | | -------------------------- | |
| (=) Taxable Value: | = | $639,594 | |
Taxing Jurisdiction
| Owner: | JACOY, KENNETH D | | |
| % Ownership: | 100.0000000000% | | |
| Total Value: | $639,594 | | |
| Tax Area: | 100 - APPRAISER-OH Schl Dist, in OH |
| CF | Conservation Futures | 0.0316035091 | $639,594 | $639,594 | $20.21 | | |
| CEM1 | Cemetery #1 | 0.0040320932 | $639,594 | $639,594 | $2.58 | | |
| COH | City of Oak Harbor | 2.3001546061 | $639,594 | $639,594 | $1,471.17 | | |
| OAKBOND | City of Oak Harbor BOND | 0.1926904192 | $639,594 | $639,594 | $123.24 | | |
| HOBOND | Hospital BOND | 0.1910887512 | $639,594 | $639,594 | $122.22 | | |
| HOGEN | Hospital GEN | 0.3902502903 | $639,594 | $639,594 | $249.60 | | |
| CE | County Current Expense | 0.3708482477 | $639,594 | $639,594 | $237.19 | | |
| ISLANDEMS | Hospital GEN (EMS) | 0.5000000000 | $639,594 | $639,594 | $319.80 | | |
| LIB | Library Sno-Isle GEN | 0.3153421757 | $639,594 | $639,594 | $201.69 | | |
| NWHIDPRMT | P & R N Whidbey GEN | 0.2004466701 | $639,594 | $639,594 | $128.20 | | |
| SCH201MO | School 201 Enrichment | 1.8559231640 | $639,594 | $639,594 | $1,187.04 | | |
| ST | State School | 1.3035497053 | $639,594 | $639,594 | $833.74 | | |
| ST2 | State School Part 2 | 0.8169543533 | $639,594 | $639,594 | $522.52 | | |
| | Total Tax Rate: | 8.4728839852 | | | | | |
| | | | | Taxes w/Current Exemptions: | $5,419.20 | | |
| | | | | Taxes w/o Exemptions: | $5,419.20 | | |
Improvement / Building
| Improvement #1: | RESIDENTIAL | State Code: | Y | 1998.0 sqft | Value: | $399,594 |
| Bathrooms: | 2.5 | Bedrooms: | 3 | | Ceiling: | DRYWALL PAINTED | Exterior Wall/Cover: | CEMENT FIBER | | Floor Covering: | HARDWOOD/CARP 60-40 | Floor Structure: | WOOD W/SUBFLOOR | | Foundation: | CONCRETE | Heating: | FHA GAS | | Interior Finish: | DRYWALL PAINT | Plumbing Fixture Cnt: | 12 | | Roof Slope: | 5" IN 12" | Roof Structure/Cover: | CJ ASPHALT |
|
| | Type | Description | Class CD | Sub Class CD | Year Built | Area |
| | BAS | BASE/MAIN FLOOR | 4 | 0 | 1990 | 1090.0 |
| | OP4 | OPEN PORCH W/CEILING-ROOF | 4 | 0 | 1990 | 20.0 |
| | AGR | ATTACHED GARAGE | 4 | 0 | 1990 | 484.0 |
| | UPS | UPPER STORY | 4 | 0 | 1990 | 908.0 |
| | OWR | OPEN WOOD PORCH W/STEPS/ROOF | 4 | 0 | 1990 | 160.0 |
Sketch
Property Image
Land
| 1 | 14 | SQ (08001-12000) | 0.0000 | 8276.40 | 0.00 | 0.00 | 1.00 | $240,000 | $0 |
Roll Value History
| 2026 | N/A | N/A | N/A | N/A | N/A |
| 2025 | $399,594 | $240,000 | $0 | $639,594 | $639,594 |
| 2024 | $404,453 | $220,000 | $0 | $624,453 | $624,453 |
| 2023 | $399,594 | $220,000 | $0 | $619,594 | $619,594 |
| 2022 | $366,231 | $220,000 | $0 | $586,231 | $586,231 |
| 2021 | $322,303 | $150,000 | $0 | $472,303 | $472,303 |
| 2020 | $313,880 | $125,000 | $0 | $438,880 | $438,880 |
| 2019 | $232,122 | $170,000 | $0 | $402,122 | $402,122 |
| 2018 | $232,793 | $150,000 | $0 | $382,793 | $382,793 |
| 2017 | $238,005 | $130,000 | $0 | $368,005 | $368,005 |
| 2016 | $240,742 | $100,000 | $0 | $340,742 | $340,742 |
| 2015 | $243,479 | $70,000 | $0 | $313,479 | $313,479 |
| 2014 | $198,154 | $65,000 | $0 | $263,154 | $263,154 |
| 2013 | $200,601 | $65,000 | $0 | $265,601 | $265,601 |
| 2012 | $203,047 | $65,000 | $0 | $268,047 | $268,047 |
| 2011 | $207,296 | $50,000 | $0 | $257,296 | $257,296 |
| 2010 | $218,847 | $50,000 | $0 | $268,847 | $268,847 |
| 2009 | $228,039 | $60,000 | $0 | $288,039 | $288,039 |
| 2008 | $230,607 | $72,000 | $0 | $302,607 | $302,607 |
| 2007 | $233,176 | $72,000 | $0 | $305,176 | $305,176 |
Deed and Sales History
| 1 | 10/10/2017 | WD | Warranty Deed | ZIMMERMAN, COLIN P | JACOY, KENNETH D | | | $381,000.00 | 31550 | 4432268 |
| 2 | 06/20/2014 | WD | Warranty Deed | MCKENZIE TRUSTEE, CHAD ERIC | ZIMMERMAN, COLIN P | | | $321,000.00 | 15884 | 4361827 |
| 3 | 05/20/2011 | WD | Warranty Deed | POMEROY, DALE L | MCKENZIE TRUSTEE, CHAD ERIC | | | $276,000.00 | 4548 | 4295859 |
| 4 | 10/17/2006 | WD | Warranty Deed | STARMER, JASON W | POMEROY, DALE L | | | $291,000.00 | 64609 | 4185362 |
| 5 | 03/16/2001 | WD | Warranty Deed | CHOUGH, LEO Y | STARMER, JASON W | | | $197,500.00 | 10881 | 20027821 |
| 6 | 01/27/1999 | WD | Warranty Deed | WEIR, DAVID F | CHOUGH, LEO Y | | | $185,000.00 | 90458 | 99003013 |
| 7 | 06/01/1995 | WD | Warranty Deed | OYDNA, BERNT L | WEIR, DAVID F | | | $187,000.00 | 51977 | 95009237 |
| 8 | 06/01/1992 | WD | Warranty Deed | MASLOWSKY, ROBERT D | OYDNA, BERNT L | | | $167,900.00 | 22242 | 92010827 |
| 9 | 04/01/1990 | WD | Warranty Deed | BODIN, ROBERT & | MASLOWSKY, ROBERT D | | | $124,334.00 | 1998 | 90006454 |
| 10 | 11/01/1989 | WD | Warranty Deed | KOETJE, GORDON | BODIN, ROBERT & | | | $25,000.00 | 95173 | 89016669 |
| 11 | 03/01/1986 | QCD | Quit Claim Deed | KOETJE, GORDON | KOETJE, GORDON | | | $0.00 | 60448 | 86002234 |
| 12 | 01/01/1900 | OTHER | Other - Misc. Documents | Unknown | KOETJE, GORDON | | | $0.00 | 0 | 0 |
Payout Agreement
| No payout information available.. |