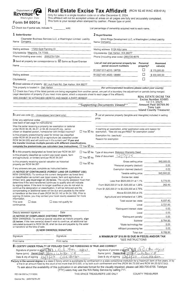
Property
Account |
| Property ID: | 602912 | Abbreviated Legal Description: | W/2 N/2 E/2 NW SE FR 248-363 & 216-363 TGW EZ AF#96013835 AF#96013836 |
| Geographic ID: | R13111-235-3500 | Agent Code: | |
| Type: | Real | | |
| Tax Area: | 312 - APPRAISER-Cpvl Schl Dist, outside Cpvl, improved, greater than 1 acre | Land Use Code | 11 |
| Open Space: | N | DFL | N |
| Historic Property: | N | Remodel Property: | N |
| Multi-Family Redevelopment: | N | | |
| Township: | 31 | Section: | 11 |
| Range: | R1 |
Location |
| Address: | 648 KEYSTONE HILL RD COUPEVILLE, WA 98239 | Mapsco: | |
| Neighborhood: | Cycle 2 | Map ID: | 51 |
| Neighborhood CD: | 2 |
Owner |
| Name: | GUAY, DINA | Owner ID: | 312603 |
| Mailing Address: | DYLAN GUAY 648 KEYSTONE HILL RD COUPEVILLE, WA 98239 | % Ownership: | 100.0000000000% |
| | | Exemptions: | |
Taxes and Assessment Details
Values
| (+) Improvement Homesite Value: | + | $0 | |
| (+) Improvement Non-Homesite Value: | + | $258,877 | |
| (+) Land Homesite Value: | + | $0 | |
| (+) Land Non-Homesite Value: | + | $340,000 | |
| (+) Curr Use (HS): | + | $0 | $0 |
| (+) Curr Use (NHS): | + | $0 | $0 |
| | | -------------------------- | |
| (=) Market Value: | = | $598,877 | |
| (–) Productivity Loss: | – | $0 | |
| | | -------------------------- | |
| (=) Subtotal: | = | $598,877 | |
| (+) Senior Appraised Value: | + | $0 | |
| (+) Non-Senior Appraised Value: | + | $598,877 | |
| | | -------------------------- | |
| (=) Total Appraised Value: | = | $598,877 | |
| (–) Senior Exemption Loss: | – | $0 | |
| (–) Exemption Loss: | – | $0 | |
| | | -------------------------- | |
| (=) Taxable Value: | = | $598,877 | |
Taxing Jurisdiction
| Owner: | GUAY, DINA | | |
| % Ownership: | 100.0000000000% | | |
| Total Value: | $598,877 | | |
| Tax Area: | 312 - APPRAISER-Cpvl Schl Dist, outside Cpvl, improved, greater than 1 acre |
| CF | Conservation Futures | 0.0316035091 | $598,877 | $598,877 | $18.93 | | |
| CEM2 | Cemetery #2 | 0.0095056933 | $598,877 | $598,877 | $5.69 | | |
| FIRE5 | Fire & Rescue Dist #5 C Whidbey GEN | 1.2008080668 | $598,877 | $598,877 | $719.14 | | |
| FIRE5BOND | Fire & Rescue Dist #5 C Whidbey BOND | 0.1400090713 | $598,877 | $598,877 | $83.85 | | |
| HOBOND | Hospital BOND | 0.1910887512 | $598,877 | $598,877 | $114.44 | | |
| HOGEN | Hospital GEN | 0.3902502903 | $598,877 | $598,877 | $233.71 | | |
| CE | County Current Expense | 0.3708482477 | $598,877 | $598,877 | $222.09 | | |
| CR | County Roads | 0.4584763726 | $598,877 | $598,877 | $274.57 | | |
| ISLANDEMS | Hospital GEN (EMS) | 0.5000000000 | $598,877 | $598,877 | $299.44 | | |
| LIB | Library Sno-Isle GEN | 0.3153421757 | $598,877 | $598,877 | $188.85 | | |
| LIBCAP | Library Sno-Isle BOND (Cap Fac Imp Area) | 0.0543427938 | $598,877 | $598,877 | $32.54 | | |
| POCOUP | Port of Coupeville GEN | 0.1093371703 | $598,877 | $598,877 | $65.48 | | |
| POCOUPIDD | Port of Coupeville IDD | 0.3409740022 | $598,877 | $598,877 | $204.20 | | |
| COUPSDTECH | School 204 CP (TECH) | 0.7545480007 | $598,877 | $598,877 | $451.88 | | |
| SCH204MO | School 204 Enrichment | 0.6716186034 | $598,877 | $598,877 | $402.22 | | |
| ST | State School | 1.3035497053 | $598,877 | $598,877 | $780.67 | | |
| ST2 | State School Part 2 | 0.8169543533 | $598,877 | $598,877 | $489.26 | | |
| | Total Tax Rate: | 7.6592568070 | | | | | |
| | | | | Taxes w/Current Exemptions: | $4,586.96 | | |
| | | | | Taxes w/o Exemptions: | $4,586.96 | | |
Improvement / Building
| Improvement #1: | MANUFACTURED HOME | State Code: | Y | 1512.0 sqft | Value: | $258,877 |
| Bathrooms: | 0 | Bedrooms: | 0 | | Ceiling: | PLASTER PAINTED | Cooling: | EVAP NO DUCT | | Exterior Wall/Cover: | VINYL | Floor Covering: | CARPET 100% | | Floor Structure: | SLAB ON GRADE | Foundation: | SLAB | | Heating: | FHA ELECTRIC | Interior Finish: | PLASTER | | Plumbing Fixture Cnt: | 1 | Roof Slope: | FLAT | | Roof Structure/Cover: | CJ ALUMINIUM HEAVY |   |   |
|
| | Type | Description | Class CD | Sub Class CD | Year Built | Area |
| | BAS | BASE/MAIN FLOOR | 4 | 0 | 1997 | 1512.0 |
| | OWR | OPEN WOOD PORCH W/STEPS/ROOF | 4 | 0 | 1997 | 280.0 |
| | OP3 | OPEN PORCH W/ROOF | 4 | 0 | 1997 | 300.0 |
| | ENP | ENCLOSED PORCH | 4 | 0 | 1997 | 100.0 |
| | oPOL | POLE BARN | 3 | 0 | 1996 | 2400.0 |
| | DGR | DETACHED GARAGE | 4 | 0 | 1997 | 644.0 |
Sketch
| No sketches available for this property. |
Property Image
Land
| 1 | HS | HOMESITE | 1.0000 | 43560.00 | 0.00 | 0.00 | 1.00 | $220,000 | $0 |
| 2 | 91 | UNDEVELOPED LAND-METES AND BOUNDS | 4.0000 | 174240.00 | 0.00 | 0.00 | 1.00 | $120,000 | $0 |
Roll Value History
| 2026 | N/A | N/A | N/A | N/A | N/A |
| 2025 | $258,877 | $340,000 | $0 | $598,877 | $598,877 |
| 2024 | $210,317 | $300,000 | $0 | $510,317 | $510,317 |
| 2023 | $188,110 | $280,000 | $0 | $468,110 | $468,110 |
| 2022 | $172,701 | $260,000 | $0 | $432,701 | $432,701 |
| 2021 | $154,285 | $170,000 | $0 | $324,285 | $324,285 |
| 2020 | $153,756 | $160,000 | $0 | $313,756 | $313,756 |
| 2019 | $113,775 | $230,000 | $0 | $343,775 | $343,775 |
| 2018 | $63,367 | $200,000 | $0 | $263,367 | $263,367 |
| 2017 | $64,832 | $200,000 | $0 | $264,832 | $264,832 |
| 2016 | $66,298 | $150,000 | $0 | $216,298 | $216,298 |
| 2015 | $67,031 | $125,000 | $0 | $192,031 | $192,031 |
| 2014 | $68,496 | $125,000 | $0 | $193,496 | $193,496 |
| 2013 | $69,961 | $121,500 | $0 | $191,461 | $191,461 |
| 2012 | $78,656 | $121,500 | $0 | $200,156 | $200,156 |
| 2011 | $80,121 | $135,000 | $0 | $215,121 | $215,121 |
| 2010 | $85,139 | $135,000 | $0 | $220,139 | $220,139 |
| 2009 | $89,196 | $150,000 | $0 | $239,196 | $239,196 |
| 2008 | $90,514 | $150,000 | $0 | $240,514 | $240,514 |
| 2007 | $93,390 | $133,250 | $0 | $226,640 | $226,640 |
Deed and Sales History
| 1 | 05/31/2024 | WD | Warranty Deed | GESING JR, FRANK J | GUAY, DINA | | | $600,000.00 | 60184 | 4573044 |
| 2 | 09/06/2019 | WD | Warranty Deed | HESTER, KURT | GESING JR, FRANK J | | | $390,000.00 | 40172 | 4471005 |
| 3 | 04/13/2012 | WD | Warranty Deed | ELLER, CURTIS L / SHARLEEN L | HESTER, KURT | | | $187,000.00 | 7430 | 4313899 |
| 4 | 03/01/1997 | OTHER | Other - Misc. Documents | ELLER, CURTIS L | ELLER, CURTIS L | | | $49,962.00 | 70793 | 0 |
| 5 | 02/01/1997 | WD | Warranty Deed | WINSLOW, MICHAEL A | ELLER, CURTIS L | | | $73,588.00 | 70714 | 97003222 |
| 6 | 02/01/1997 | TRUSTEED | Trustee's Deed | INTERWEST, HOLDING C | WINSLOW, MICHAEL A | | | $0.00 | 70682 | 97003111 |
| 7 | 09/01/1995 | WD | Warranty Deed | WESTERN, INTER F | INTERWEST, HOLDING C | | | $13,622.00 | 53628 | 95016650 |
| 8 | 02/01/1995 | OTHER | Other - Misc. Documents | WESTERN, INTER F | WESTERN, INTER F | | | $32,400.00 | 50600 | 95002878 |
| 9 | 06/01/1994 | QCD | Quit Claim Deed | HANSON, ERROL | WESTERN, INTER F | | | $7,900.00 | 42553 | 94014210 |
| 10 | 03/01/1994 | QCD | Quit Claim Deed | TOTAL, DEVELOPMENT I | HANSON, ERROL | | | $0.00 | 42445 | 94013680 |
| 11 | 08/01/1993 | WD | Warranty Deed | MCDONALD, BRIAN P | TOTAL, DEVELOPMENT I | | | $25,000.00 | 33237 | 93016814 |
| 12 | 03/01/1986 | OTHER | Other - Misc. Documents | MCDONALD, BRIAN P | MCDONALD, BRIAN P | | | $0.00 | 61535 | 85009425 |
| 13 | 01/01/1900 | OTHER | Other - Misc. Documents | Unknown | MCDONALD, BRIAN P | | | $0.00 | 58617 | 0 |
Payout Agreement
| No payout information available.. |