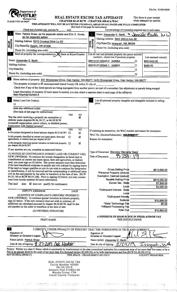
Property
Account |
| Property ID: | 602949 | Abbreviated Legal Description: | E/2 S/2 E/2 NW SE FR 183-363 & 150-363 TGW EZ AF#96013835 AF#96013836 |
| Geographic ID: | R13111-170-3850 | Agent Code: | |
| Type: | Real | | |
| Tax Area: | 312 - APPRAISER-Cpvl Schl Dist, outside Cpvl, improved, greater than 1 acre | Land Use Code | 11 |
| Open Space: | N | DFL | N |
| Historic Property: | N | Remodel Property: | N |
| Multi-Family Redevelopment: | N | | |
| Township: | 31 | Section: | 11 |
| Range: | R1 |
Location |
| Address: | 650 KEYSTONE HILL RD COUPEVILLE, WA 98239 | Mapsco: | |
| Neighborhood: | Cycle 2 | Map ID: | 51 |
| Neighborhood CD: | 2 |
Owner |
| Name: | BERG, MARY CATHERINE | Owner ID: | 267520 |
| Mailing Address: | 650 KEYSTONE HILL RD COUPEVILLE, WA 98239 | % Ownership: | 100.0000000000% |
| | | Exemptions: | |
Taxes and Assessment Details
Values
| (+) Improvement Homesite Value: | + | $0 | |
| (+) Improvement Non-Homesite Value: | + | $95,417 | |
| (+) Land Homesite Value: | + | $0 | |
| (+) Land Non-Homesite Value: | + | $340,000 | |
| (+) Curr Use (HS): | + | $0 | $0 |
| (+) Curr Use (NHS): | + | $0 | $0 |
| | | -------------------------- | |
| (=) Market Value: | = | $435,417 | |
| (–) Productivity Loss: | – | $0 | |
| | | -------------------------- | |
| (=) Subtotal: | = | $435,417 | |
| (+) Senior Appraised Value: | + | $0 | |
| (+) Non-Senior Appraised Value: | + | $435,417 | |
| | | -------------------------- | |
| (=) Total Appraised Value: | = | $435,417 | |
| (–) Senior Exemption Loss: | – | $0 | |
| (–) Exemption Loss: | – | $0 | |
| | | -------------------------- | |
| (=) Taxable Value: | = | $435,417 | |
Taxing Jurisdiction
| Owner: | BERG, MARY CATHERINE | | |
| % Ownership: | 100.0000000000% | | |
| Total Value: | $435,417 | | |
| Tax Area: | 312 - APPRAISER-Cpvl Schl Dist, outside Cpvl, improved, greater than 1 acre |
| CF | Conservation Futures | 0.0316035091 | $435,417 | $435,417 | $13.76 | | |
| CEM2 | Cemetery #2 | 0.0095056933 | $435,417 | $435,417 | $4.14 | | |
| FIRE5 | Fire & Rescue Dist #5 C Whidbey GEN | 1.2008080668 | $435,417 | $435,417 | $522.85 | | |
| FIRE5BOND | Fire & Rescue Dist #5 C Whidbey BOND | 0.1400090713 | $435,417 | $435,417 | $60.96 | | |
| HOBOND | Hospital BOND | 0.1910887512 | $435,417 | $435,417 | $83.20 | | |
| HOGEN | Hospital GEN | 0.3902502903 | $435,417 | $435,417 | $169.92 | | |
| CE | County Current Expense | 0.3708482477 | $435,417 | $435,417 | $161.47 | | |
| CR | County Roads | 0.4584763726 | $435,417 | $435,417 | $199.63 | | |
| ISLANDEMS | Hospital GEN (EMS) | 0.5000000000 | $435,417 | $435,417 | $217.71 | | |
| LIB | Library Sno-Isle GEN | 0.3153421757 | $435,417 | $435,417 | $137.31 | | |
| LIBCAP | Library Sno-Isle BOND (Cap Fac Imp Area) | 0.0543427938 | $435,417 | $435,417 | $23.66 | | |
| POCOUP | Port of Coupeville GEN | 0.1093371703 | $435,417 | $435,417 | $47.61 | | |
| POCOUPIDD | Port of Coupeville IDD | 0.3409740022 | $435,417 | $435,417 | $148.47 | | |
| COUPSDTECH | School 204 CP (TECH) | 0.7545480007 | $435,417 | $435,417 | $328.54 | | |
| SCH204MO | School 204 Enrichment | 0.6716186034 | $435,417 | $435,417 | $292.43 | | |
| ST | State School | 1.3035497053 | $435,417 | $435,417 | $567.59 | | |
| ST2 | State School Part 2 | 0.8169543533 | $435,417 | $435,417 | $355.72 | | |
| | Total Tax Rate: | 7.6592568070 | | | | | |
| | | | | Taxes w/Current Exemptions: | $3,334.97 | | |
| | | | | Taxes w/o Exemptions: | $3,334.97 | | |
Improvement / Building
| Improvement #1: | MANUFACTURED HOME | State Code: | Y | 1782.0 sqft | Value: | $95,417 |
| Bathrooms: | 0 | Bedrooms: | 0 | | Ceiling: | PLASTER PAINTED | Cooling: | EVAP NO DUCT | | Exterior Wall/Cover: | VINYL | Floor Covering: | CARPET 100% | | Floor Structure: | SLAB ON GRADE | Foundation: | SLAB | | Heating: | FHA ELECTRIC | Interior Finish: | PLASTER | | Plumbing Fixture Cnt: | 1 | Roof Slope: | FLAT | | Roof Structure/Cover: | CJ ALUMINIUM HEAVY |   |   |
|
| | Type | Description | Class CD | Sub Class CD | Year Built | Area |
| | BAS | BASE/MAIN FLOOR | 3 | 0 | 1975 | 1782.0 |
| | oPOL | POLE BARN | 3 | 0 | 2015 | 1344.0 |
| | oUTI | UTILITY | 2 | 0 | 2015 | 576.0 |
Sketch
| No sketches available for this property. |
Property Image
Land
| 1 | HS | HOMESITE | 1.0000 | 43560.00 | 0.00 | 0.00 | 1.00 | $220,000 | $0 |
| 2 | 91 | UNDEVELOPED LAND-METES AND BOUNDS | 4.0000 | 174240.00 | 0.00 | 0.00 | 1.00 | $120,000 | $0 |
Roll Value History
| 2026 | N/A | N/A | N/A | N/A | N/A |
| 2025 | $95,417 | $340,000 | $0 | $435,417 | $435,417 |
| 2024 | $72,751 | $300,000 | $0 | $372,751 | $372,751 |
| 2023 | $68,770 | $280,000 | $0 | $348,770 | $348,770 |
| 2022 | $66,265 | $260,000 | $0 | $326,265 | $326,265 |
| 2021 | $63,632 | $170,000 | $0 | $233,632 | $233,632 |
| 2020 | $63,008 | $160,000 | $0 | $223,008 | $223,008 |
| 2019 | $60,234 | $230,000 | $0 | $290,234 | $290,234 |
| 2018 | $52,120 | $200,000 | $0 | $252,120 | $252,120 |
| 2017 | $52,850 | $200,000 | $0 | $252,850 | $252,850 |
| 2016 | $54,311 | $150,000 | $0 | $204,311 | $204,311 |
| 2015 | $21,441 | $125,000 | $0 | $146,441 | $146,441 |
| 2014 | $22,902 | $125,000 | $0 | $147,902 | $147,902 |
| 2013 | $23,632 | $121,500 | $0 | $145,132 | $145,132 |
| 2012 | $30,913 | $121,500 | $0 | $152,413 | $152,413 |
| 2011 | $32,374 | $135,000 | $0 | $167,374 | $167,374 |
| 2010 | $34,266 | $135,000 | $0 | $169,266 | $169,266 |
| 2009 | $35,376 | $150,000 | $0 | $185,376 | $185,376 |
| 2008 | $35,764 | $150,000 | $0 | $185,764 | $185,764 |
| 2007 | $36,120 | $133,250 | $0 | $169,370 | $169,370 |
Deed and Sales History
| 1 | 08/14/2014 | WD | Warranty Deed | CHARRON, KEITH | BERG, MARY CATHERINE | | | $79,000.00 | 16460 | 4364180 |
| 2 | 08/21/2006 | PRD | Personal Representatives Deed | CHARRON, WAYNE H | CHARRON, KEITH | | | $0.00 | 63719 | 4180345 |
| 3 | 10/26/2004 | WD | Warranty Deed | DENORA, JOHN D | CHARRON, WAYNE H | | | $91,238.00 | 45145 | 4116974 |
| 4 | 07/01/1997 | OTHER | Other - Misc. Documents | WINSLOW, MICHAEL A | DENORA, JOHN D | | | $23,000.00 | 72390 | 0 |
| 5 | 07/01/1997 | WD | Warranty Deed | DENORA, JOHN D | DENORA, JOHN D | | | $54,000.00 | 72391 | 97011282 |
| 6 | 02/01/1997 | TRUSTEED | Trustee's Deed | INTERWEST, HOLDING C | WINSLOW, MICHAEL A | | | $0.00 | 70682 | 97003111 |
| 7 | 09/01/1995 | WD | Warranty Deed | WESTERN, INTER F | INTERWEST, HOLDING C | | | $13,622.00 | 53628 | 95016650 |
| 8 | 02/01/1995 | OTHER | Other - Misc. Documents | WESTERN, INTER F | WESTERN, INTER F | | | $32,400.00 | 50600 | 95002878 |
| 9 | 06/01/1994 | QCD | Quit Claim Deed | HANSON, ERROL | WESTERN, INTER F | | | $7,900.00 | 42553 | 94014210 |
| 10 | 03/01/1994 | QCD | Quit Claim Deed | TOTAL, DEVELOPMENT I | HANSON, ERROL | | | $0.00 | 42445 | 94013680 |
| 11 | 08/01/1993 | WD | Warranty Deed | MCDONALD, BRIAN P | TOTAL, DEVELOPMENT I | | | $25,000.00 | 33237 | 93016814 |
| 12 | 03/01/1986 | OTHER | Other - Misc. Documents | MCDONALD, BRIAN P | MCDONALD, BRIAN P | | | $0.00 | 61535 | 85009425 |
| 13 | 01/01/1900 | OTHER | Other - Misc. Documents | Unknown | MCDONALD, BRIAN P | | | $0.00 | 58167 | 0 |
Payout Agreement
| No payout information available.. |