Property
Account |
| Property ID: | 602985 | Abbreviated Legal Description: | LOT D SP 84-26.23334.369-2210 & 369-1870 V1 SP P314 AF#85000949 |
| Geographic ID: | R23334-369-2310 | Agent Code: | |
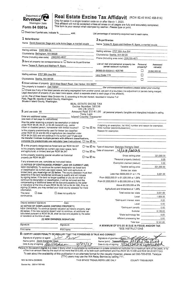
| Type: | Real | | |
| Tax Area: | 112 - APPRAISER-OH Schl Dist, outside OH, improved, greater than 1 acre | Land Use Code | 11 |
| Open Space: | N | DFL | N |
| Historic Property: | N | Remodel Property: | N |
| Multi-Family Redevelopment: | N | | |
| Township: | 33 | Section: | 34 |
| Range: | R2 |
Location |
| Address: | 1375 WALLACE CT OAK HARBOR, WA 98277 | Mapsco: | |
| Neighborhood: | Cycle 6 | Map ID: | 657 |
| Neighborhood CD: | 6 |
Owner |
| Name: | SHARKEY JTWROS, TIMOTHY F | Owner ID: | 256983 |
| Mailing Address: | KATHLEEN G SHARKEY JTWROS 1375 WALLACE COURT OAK HARBOR, WA 98277 | % Ownership: | 100.0000000000% |
| | | Exemptions: | |
Taxes and Assessment Details
Values
| (+) Improvement Homesite Value: | + | $0 | |
| (+) Improvement Non-Homesite Value: | + | $146,899 | |
| (+) Land Homesite Value: | + | $0 | |
| (+) Land Non-Homesite Value: | + | $250,000 | |
| (+) Curr Use (HS): | + | $0 | $0 |
| (+) Curr Use (NHS): | + | $0 | $0 |
| | | -------------------------- | |
| (=) Market Value: | = | $396,899 | |
| (–) Productivity Loss: | – | $0 | |
| | | -------------------------- | |
| (=) Subtotal: | = | $396,899 | |
| (+) Senior Appraised Value: | + | $0 | |
| (+) Non-Senior Appraised Value: | + | $396,899 | |
| | | -------------------------- | |
| (=) Total Appraised Value: | = | $396,899 | |
| (–) Senior Exemption Loss: | – | $0 | |
| (–) Exemption Loss: | – | $0 | |
| | | -------------------------- | |
| (=) Taxable Value: | = | $396,899 | |
Taxing Jurisdiction
| Owner: | SHARKEY JTWROS, TIMOTHY F | | |
| % Ownership: | 100.0000000000% | | |
| Total Value: | $396,899 | | |
| Tax Area: | 112 - APPRAISER-OH Schl Dist, outside OH, improved, greater than 1 acre |
| CF | Conservation Futures | 0.0316035091 | $396,899 | $396,899 | $12.54 | | |
| CEM1 | Cemetery #1 | 0.0040320932 | $396,899 | $396,899 | $1.60 | | |
| FIRE2 | Fire & Rescue Dist #2 N Whidbey GEN | 0.5475949600 | $396,899 | $396,899 | $217.34 | | |
| HOBOND | Hospital BOND | 0.1910887512 | $396,899 | $396,899 | $75.84 | | |
| HOGEN | Hospital GEN | 0.3902502903 | $396,899 | $396,899 | $154.89 | | |
| CE | County Current Expense | 0.3708482477 | $396,899 | $396,899 | $147.19 | | |
| CR | County Roads | 0.4584763726 | $396,899 | $396,899 | $181.97 | | |
| ISLANDEMS | Hospital GEN (EMS) | 0.5000000000 | $396,899 | $396,899 | $198.45 | | |
| LIB | Library Sno-Isle GEN | 0.3153421757 | $396,899 | $396,899 | $125.16 | | |
| NWHIDPRMT | P & R N Whidbey GEN | 0.2004466701 | $396,899 | $396,899 | $79.56 | | |
| SCH201MO | School 201 Enrichment | 1.8559231640 | $396,899 | $396,899 | $736.61 | | |
| ST | State School | 1.3035497053 | $396,899 | $396,899 | $517.38 | | |
| ST2 | State School Part 2 | 0.8169543533 | $396,899 | $396,899 | $324.25 | | |
| | Total Tax Rate: | 6.9861102925 | | | | | |
| | | | | Taxes w/Current Exemptions: | $2,772.78 | | |
| | | | | Taxes w/o Exemptions: | $2,772.78 | | |
Improvement / Building
| Improvement #1: | MANUFACTURED HOME | State Code: | Y | 1782.0 sqft | Value: | $146,899 |
| Bathrooms: | 0 | Bedrooms: | 0 | | Ceiling: | PLASTER PAINTED | Exterior Wall/Cover: | VINYL | | Floor Covering: | CARPET 100% | Floor Structure: | SLAB ON GRADE | | Foundation: | SLAB | Heating: | FHA ELECTRIC | | Interior Finish: | PLASTER | Plumbing Fixture Cnt: | 1 | | Roof Slope: | FLAT | Roof Structure/Cover: | CJ ALUMINIUM HEAVY |
|
| | Type | Description | Class CD | Sub Class CD | Year Built | Area |
| | BAS | BASE/MAIN FLOOR | 4 | 0 | 1997 | 1782.0 |
| | OCP | OPEN CARPORT | 4 | 0 | 1997 | 1050.0 |
| | OWC | OPEN WOOD PORCH W/STEPS/ROOF/C | 4 | 0 | 1997 | 240.0 |
| | OWR | OPEN WOOD PORCH W/STEPS/ROOF | 4 | 0 | 1997 | 228.0 |
| | UTY | STORAGE/UTILITY | 4 | 0 | 1997 | 360.0 |
Sketch
Property Image
Land
| 1 | 18 | AC (02.01-03.00) | 2.5100 | 109335.60 | 0.00 | 0.00 | 1.00 | $250,000 | $0 |
Roll Value History
| 2026 | N/A | N/A | N/A | N/A | N/A |
| 2025 | $146,899 | $250,000 | $0 | $396,899 | $396,899 |
| 2024 | $151,219 | $230,000 | $0 | $381,219 | $381,219 |
| 2023 | $135,253 | $220,000 | $0 | $355,253 | $355,253 |
| 2022 | $84,241 | $210,000 | $0 | $294,241 | $294,241 |
| 2021 | $75,691 | $160,000 | $0 | $235,691 | $235,691 |
| 2020 | $75,844 | $140,000 | $0 | $215,844 | $215,844 |
| 2019 | $61,610 | $200,000 | $0 | $261,610 | $261,610 |
| 2018 | $63,477 | $170,000 | $0 | $233,477 | $233,477 |
| 2017 | $65,344 | $150,000 | $0 | $215,344 | $215,344 |
| 2016 | $62,730 | $120,000 | $0 | $182,730 | $182,730 |
| 2015 | $63,600 | $100,000 | $0 | $163,600 | $163,600 |
| 2014 | $65,344 | $100,000 | $0 | $165,344 | $165,344 |
| 2013 | $67,087 | $90,000 | $0 | $157,087 | $157,087 |
| 2012 | $68,829 | $108,000 | $0 | $176,829 | $176,829 |
| 2011 | $70,572 | $120,000 | $0 | $190,572 | $190,572 |
| 2010 | $83,035 | $120,000 | $0 | $203,035 | $203,035 |
| 2009 | $86,877 | $145,000 | $0 | $231,877 | $231,877 |
| 2008 | $89,138 | $145,000 | $0 | $234,138 | $234,138 |
| 2007 | $90,566 | $145,000 | $0 | $235,566 | $235,566 |
Deed and Sales History
| 1 | 02/08/2012 | WD | Warranty Deed | SHARKEY, TIMOTHY F | SHARKEY JTWROS, TIMOTHY F | | | $0.00 | 6981 | 4310665 |
| 2 | 06/18/2001 | WD | Warranty Deed | MARSHALL, EDWIN E/DONNA P | SHARKEY, TIMOTHY F | | | $161,000.00 | 12320 | 20035667 |
| 3 | 06/01/1997 | OTHER | Other - Misc. Documents | MARSHALL, EDWIN E | MARSHALL, EDWIN E | | | $64,120.00 | 11111111 | 0 |
| 4 | 01/01/1997 | WD | Warranty Deed | COHICK, DAVID G | MARSHALL, EDWIN E | | | $40,000.00 | 70171 | 97000629 |
| 5 | 03/01/1996 | QCD | Quit Claim Deed | HIGGENS, JOSEPH P | COHICK, DAVID G | | | $0.00 | 60858 | 96004505 |
| 6 | 01/01/1900 | OTHER | Other - Misc. Documents | Unknown | HIGGENS, JOSEPH P | | | $0.00 | 85409 | 342404 |
Payout Agreement
| No payout information available.. |