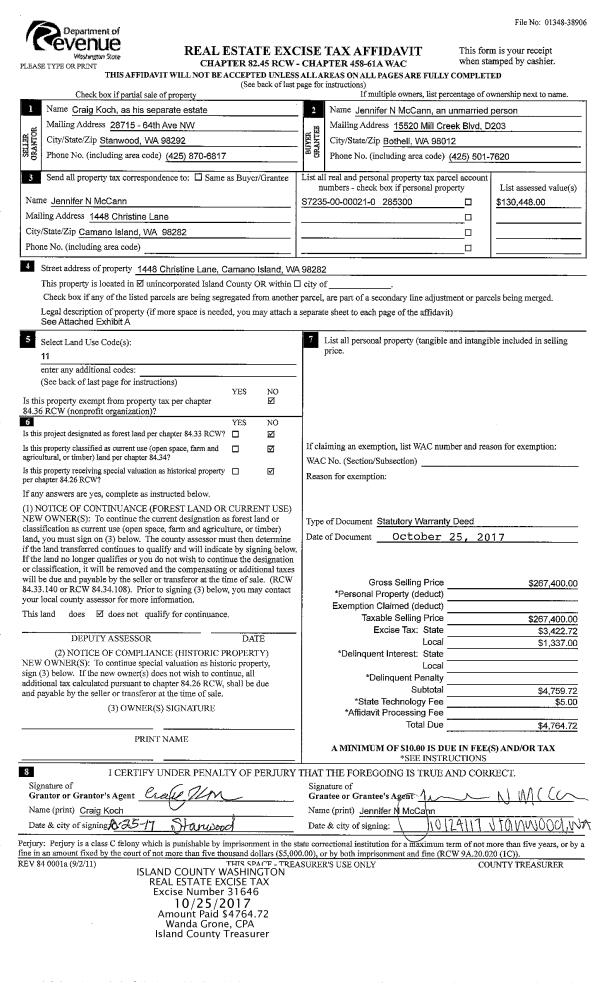
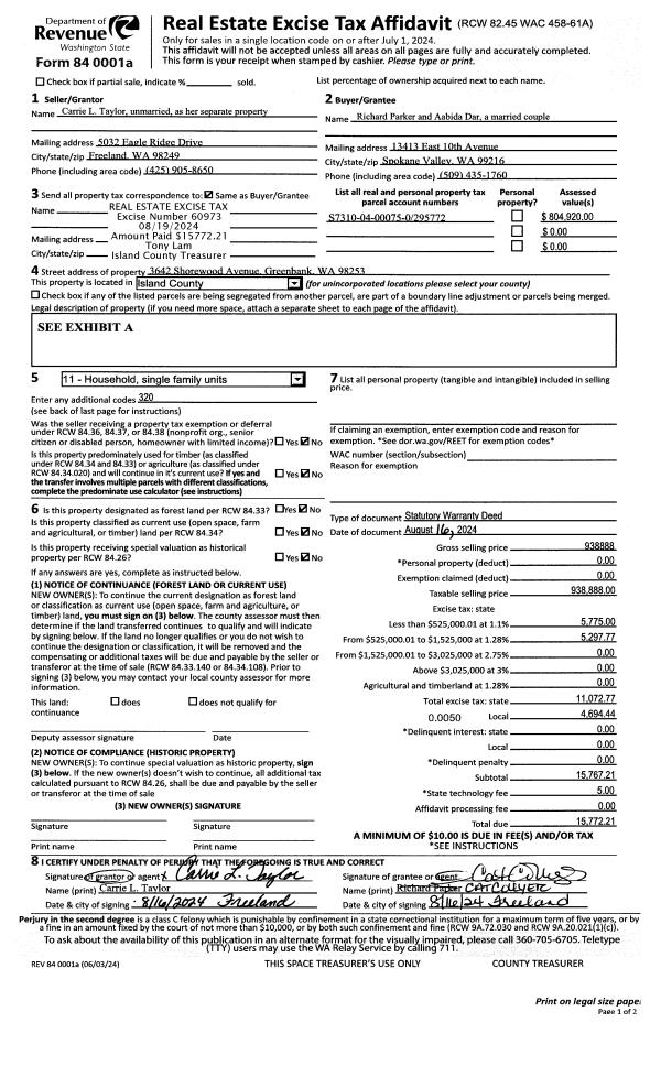
Property
Account |
| Property ID: | 603056 | Abbreviated Legal Description: | NW SE EX S/2 S/2 EX W481' TGW EZ EX RD |
| Geographic ID: | R13208-214-3530 | Agent Code: | |
| Type: | Real | | |
| Tax Area: | 112 - APPRAISER-OH Schl Dist, outside OH, improved, greater than 1 acre | Land Use Code | 11 |
| Open Space: | N | DFL | N |
| Historic Property: | N | Remodel Property: | N |
| Multi-Family Redevelopment: | N | | |
| Township: | 32 | Section: | 08 |
| Range: | R1 |
Location |
| Address: | | Mapsco: | |
| Neighborhood: | Cycle 1 | Map ID: | 109 |
| Neighborhood CD: | 1 |
Owner |
| Name: | BOWEN, ELIZABETH | Owner ID: | 314461 |
| Mailing Address: | 2086 ZYLSTRA RD OAK HARBOR, WA 98277 | % Ownership: | 100.0000000000% |
| | | Exemptions: | |
Taxes and Assessment Details
Values
| (+) Improvement Homesite Value: | + | $0 | |
| (+) Improvement Non-Homesite Value: | + | $466,281 | |
| (+) Land Homesite Value: | + | $0 | |
| (+) Land Non-Homesite Value: | + | $350,000 | |
| (+) Curr Use (HS): | + | $0 | $0 |
| (+) Curr Use (NHS): | + | $0 | $0 |
| | | -------------------------- | |
| (=) Market Value: | = | $816,281 | |
| (–) Productivity Loss: | – | $0 | |
| | | -------------------------- | |
| (=) Subtotal: | = | $816,281 | |
| (+) Senior Appraised Value: | + | $0 | |
| (+) Non-Senior Appraised Value: | + | $816,281 | |
| | | -------------------------- | |
| (=) Total Appraised Value: | = | $816,281 | |
| (–) Senior Exemption Loss: | – | $0 | |
| (–) Exemption Loss: | – | $0 | |
| | | -------------------------- | |
| (=) Taxable Value: | = | $816,281 | |
Taxing Jurisdiction
| Owner: | BOWEN, ELIZABETH | | |
| % Ownership: | 100.0000000000% | | |
| Total Value: | $816,281 | | |
| Tax Area: | 112 - APPRAISER-OH Schl Dist, outside OH, improved, greater than 1 acre |
| CF | Conservation Futures | 0.0316035091 | $816,281 | $816,281 | $25.80 | | |
| CEM1 | Cemetery #1 | 0.0040320932 | $816,281 | $816,281 | $3.29 | | |
| FIRE2 | Fire & Rescue Dist #2 N Whidbey GEN | 0.5475949600 | $816,281 | $816,281 | $446.99 | | |
| HOBOND | Hospital BOND | 0.1910887512 | $816,281 | $816,281 | $155.98 | | |
| HOGEN | Hospital GEN | 0.3902502903 | $816,281 | $816,281 | $318.55 | | |
| CE | County Current Expense | 0.3708482477 | $816,281 | $816,281 | $302.72 | | |
| CR | County Roads | 0.4584763726 | $816,281 | $816,281 | $374.25 | | |
| ISLANDEMS | Hospital GEN (EMS) | 0.5000000000 | $816,281 | $816,281 | $408.14 | | |
| LIB | Library Sno-Isle GEN | 0.3153421757 | $816,281 | $816,281 | $257.41 | | |
| NWHIDPRMT | P & R N Whidbey GEN | 0.2004466701 | $816,281 | $816,281 | $163.62 | | |
| SCH201MO | School 201 Enrichment | 1.8559231640 | $816,281 | $816,281 | $1,514.95 | | |
| ST | State School | 1.3035497053 | $816,281 | $816,281 | $1,064.06 | | |
| ST2 | State School Part 2 | 0.8169543533 | $816,281 | $816,281 | $666.86 | | |
| | Total Tax Rate: | 6.9861102925 | | | | | |
| | | | | Taxes w/Current Exemptions: | $5,702.62 | | |
| | | | | Taxes w/o Exemptions: | $5,702.62 | | |
Improvement / Building
| Improvement #1: | RESIDENTIAL | State Code: | Y | 3456.0 sqft | Value: | $466,281 |
| Bathrooms: | 4 | Bedrooms: | 5 | | Ceiling: | DRYWALL PAINTED | Exterior Wall/Cover: | VINYL | | Floor Covering: | HARDWOOD/CARP 60-40 | Floor Structure: | WOOD W/SUBFLOOR | | Foundation: | CONCRETE | Heating: | BASEBOARD ELECTRIC | | Interior Finish: | DRYWALL PAINT | Plumbing Fixture Cnt: | 15 | | Roof Slope: | 4" IN 12" | Roof Structure/Cover: | CJ ALUMINIUM HEAVY |
|
| | Type | Description | Class CD | Sub Class CD | Year Built | Area |
| | BAS | BASE/MAIN FLOOR | 3 | 0 | 1986 | 1280.0 |
| | UB8 | BASEMENT UNFINISHED 8" | 3 | 0 | 1986 | 384.0 |
| | CPD | OPEN CARPORT DIRT FLOOR | 3 | 0 | 1986 | 480.0 |
| | OP3 | OPEN PORCH W/ROOF | 3 | 0 | 1986 | 74.4 |
| | UPS | UPPER STORY | 3 | 0 | 1986 | 1280.0 |
| | UTY | STORAGE/UTILITY | 3 | 0 | 1986 | 308.0 |
| | DWN | DOWNSTAIRS LIVING AREA | 3 | 0 | 1986 | 896.0 |
| | DGR | DETACHED GARAGE | 3 | 0 | 1986 | 1092.0 |
| | CPD | OPEN CARPORT DIRT FLOOR | 3 | 0 | 1986 | 416.0 |
Sketch
Property Image
Land
| 1 | 35 | AC (10.00-30.99) | 18.0700 | 787129.20 | 0.00 | 0.00 | 1.00 | $130,000 | $0 |
| 2 | HS | HOMESITE | 1.0000 | 43560.00 | 0.00 | 0.00 | 1.00 | $220,000 | $0 |
Roll Value History
| 2026 | N/A | N/A | N/A | N/A | N/A |
| 2025 | $466,281 | $350,000 | $0 | $816,281 | $816,281 |
| 2024 | $481,966 | $310,000 | $0 | $791,966 | $791,966 |
| 2023 | $463,002 | $290,000 | $0 | $753,002 | $753,002 |
| 2022 | $424,984 | $270,000 | $0 | $694,984 | $694,984 |
| 2021 | $374,515 | $255,000 | $0 | $629,515 | $629,515 |
| 2020 | $366,340 | $200,000 | $0 | $566,340 | $566,340 |
| 2019 | $300,634 | $250,000 | $0 | $550,634 | $550,634 |
| 2018 | $301,609 | $200,000 | $0 | $501,609 | $501,609 |
| 2017 | $252,137 | $200,000 | $0 | $452,137 | $452,137 |
| 2016 | $255,457 | $200,000 | $13,300 | $278,757 | $278,757 |
| 2015 | $258,777 | $200,000 | $13,300 | $282,077 | $282,077 |
| 2014 | $262,097 | $195,000 | $13,300 | $285,622 | $285,622 |
| 2013 | $265,417 | $194,514 | $13,300 | $288,917 | $288,917 |
| 2012 | $268,735 | $194,514 | $13,300 | $292,235 | $292,235 |
| 2011 | $0 | $180,700 | $13,300 | $13,300 | $13,300 |
| 2010 | $0 | $180,700 | $13,300 | $13,300 | $13,300 |
| 2009 | $0 | $216,840 | $13,300 | $13,300 | $13,300 |
| 2008 | $0 | $194,250 | $13,300 | $13,300 | $13,300 |
| 2007 | $0 | $189,735 | $13,300 | $13,300 | $13,300 |
Deed and Sales History
| 1 | 10/29/2024 | QCD | Quit Claim Deed | SULLIVAN, ELIZABETH A | BOWEN, ELIZABETH | | | $0.00 | 61752 | 4579031 |
| 2 | 02/02/2024 | QCD | Quit Claim Deed | SULLIVAN, MICHAEL A | SULLIVAN, ELIZABETH A | | | $0.00 | 59174 | 4569241 |
| 3 | 09/15/2017 | QCD | Quit Claim Deed | QUINN, ELIZABETH A C | SULLIVAN, ELIZABETH A | | | $0.00 | 31296 | 4431101 |
| 4 | 11/05/2009 | OTHER | Other - Misc. Documents | QUINN, MICHAEL G | QUINN, ELIZABETH A C | | | $0.00 | 81421 | 0 |
| 5 | 12/01/1985 | WD | Warranty Deed | QUINN, MICHAEL G | QUINN, MICHAEL G | | | $0.00 | 53575 | 85014268 |
| 6 | 01/01/1900 | OTHER | Other - Misc. Documents | Unknown | QUINN, MICHAEL G | | | $0.00 | 0 | 0 |
Payout Agreement
| No payout information available.. |