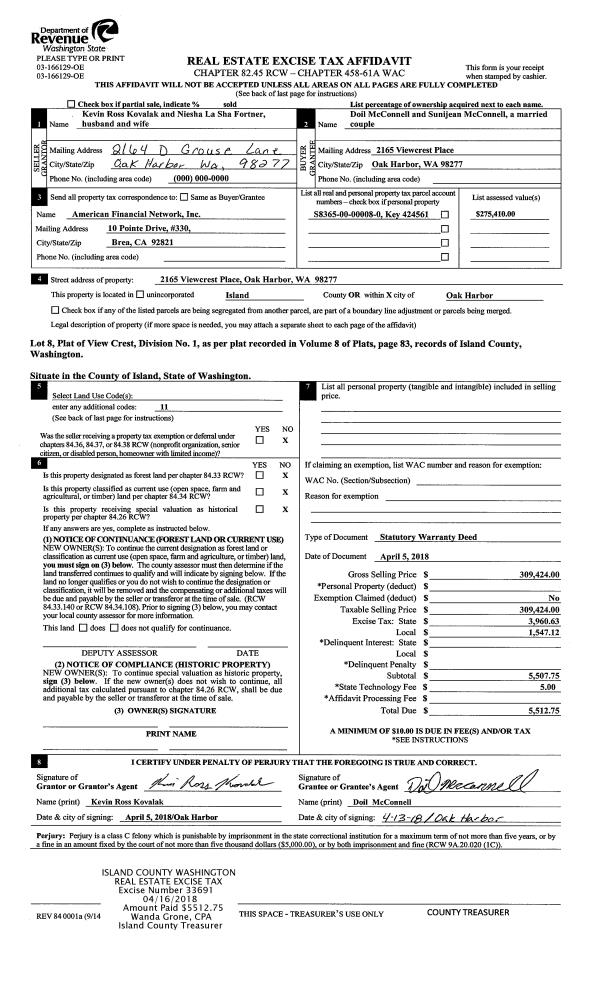
Property
Account |
| Property ID: | 603118 | Abbreviated Legal Description: | S/2 SE SW SE TGW EZ FR 065-3800 EX PT TO IS CO AF# 4372687 |
| Geographic ID: | R23118-016-3800 | Agent Code: | |
| Type: | Real | | |
| Tax Area: | 312 - APPRAISER-Cpvl Schl Dist, outside Cpvl, improved, greater than 1 acre | Land Use Code | 11 |
| Open Space: | N | DFL | N |
| Historic Property: | N | Remodel Property: | N |
| Multi-Family Redevelopment: | N | | |
| Township: | 31 | Section: | 18 |
| Range: | R2 |
Location |
| Address: | 1179 OAKES RD COUPEVILLE, WA 98239 | Mapsco: | |
| Neighborhood: | Cycle 2 | Map ID: | 490 |
| Neighborhood CD: | 2 |
Owner |
| Name: | BAUSCH, SHAWN J | Owner ID: | 189091 |
| Mailing Address: | MICHELLE BAUSH 1179 KEMPTON PLACE COUPEVILLE, WA 98239-4033 | % Ownership: | 100.0000000000% |
| | | Exemptions: | |
Taxes and Assessment Details
Values
| (+) Improvement Homesite Value: | + | $0 | |
| (+) Improvement Non-Homesite Value: | + | $136,766 | |
| (+) Land Homesite Value: | + | $0 | |
| (+) Land Non-Homesite Value: | + | $338,158 | |
| (+) Curr Use (HS): | + | $0 | $0 |
| (+) Curr Use (NHS): | + | $0 | $0 |
| | | -------------------------- | |
| (=) Market Value: | = | $474,924 | |
| (–) Productivity Loss: | – | $0 | |
| | | -------------------------- | |
| (=) Subtotal: | = | $474,924 | |
| (+) Senior Appraised Value: | + | $0 | |
| (+) Non-Senior Appraised Value: | + | $474,924 | |
| | | -------------------------- | |
| (=) Total Appraised Value: | = | $474,924 | |
| (–) Senior Exemption Loss: | – | $0 | |
| (–) Exemption Loss: | – | $0 | |
| | | -------------------------- | |
| (=) Taxable Value: | = | $474,924 | |
Taxing Jurisdiction
| Owner: | BAUSCH, SHAWN J | | |
| % Ownership: | 100.0000000000% | | |
| Total Value: | $474,924 | | |
| Tax Area: | 312 - APPRAISER-Cpvl Schl Dist, outside Cpvl, improved, greater than 1 acre |
| CF | Conservation Futures | 0.0316035091 | $474,924 | $474,924 | $15.01 | | |
| CEM2 | Cemetery #2 | 0.0095056933 | $474,924 | $474,924 | $4.51 | | |
| FIRE5 | Fire & Rescue Dist #5 C Whidbey GEN | 1.2008080668 | $474,924 | $474,924 | $570.29 | | |
| FIRE5BOND | Fire & Rescue Dist #5 C Whidbey BOND | 0.1400090713 | $474,924 | $474,924 | $66.49 | | |
| HOBOND | Hospital BOND | 0.1910887512 | $474,924 | $474,924 | $90.75 | | |
| HOGEN | Hospital GEN | 0.3902502903 | $474,924 | $474,924 | $185.34 | | |
| CE | County Current Expense | 0.3708482477 | $474,924 | $474,924 | $176.12 | | |
| CR | County Roads | 0.4584763726 | $474,924 | $474,924 | $217.74 | | |
| ISLANDEMS | Hospital GEN (EMS) | 0.5000000000 | $474,924 | $474,924 | $237.46 | | |
| LIB | Library Sno-Isle GEN | 0.3153421757 | $474,924 | $474,924 | $149.76 | | |
| LIBCAP | Library Sno-Isle BOND (Cap Fac Imp Area) | 0.0543427938 | $474,924 | $474,924 | $25.81 | | |
| POCOUP | Port of Coupeville GEN | 0.1093371703 | $474,924 | $474,924 | $51.93 | | |
| POCOUPIDD | Port of Coupeville IDD | 0.3409740022 | $474,924 | $474,924 | $161.94 | | |
| COUPSDTECH | School 204 CP (TECH) | 0.7545480007 | $474,924 | $474,924 | $358.35 | | |
| SCH204MO | School 204 Enrichment | 0.6716186034 | $474,924 | $474,924 | $318.97 | | |
| ST | State School | 1.3035497053 | $474,924 | $474,924 | $619.09 | | |
| ST2 | State School Part 2 | 0.8169543533 | $474,924 | $474,924 | $387.99 | | |
| | Total Tax Rate: | 7.6592568070 | | | | | |
| | | | | Taxes w/Current Exemptions: | $3,637.55 | | |
| | | | | Taxes w/o Exemptions: | $3,637.55 | | |
Improvement / Building
| Improvement #1: | MANUFACTURED HOME | State Code: | Y | 1848.0 sqft | Value: | $136,766 |
| Bathrooms: | 0 | Bedrooms: | 0 | | Ceiling: | PLASTER PAINTED | Cooling: | EVAP NO DUCT | | Exterior Wall/Cover: | VINYL | Floor Covering: | CARPET 100% | | Floor Structure: | SLAB ON GRADE | Foundation: | SLAB | | Heating: | FHA ELECTRIC | Interior Finish: | PLASTER | | Plumbing Fixture Cnt: | 1 | Roof Slope: | FLAT | | Roof Structure/Cover: | CJ ALUMINIUM HEAVY |   |   |
|
| | Type | Description | Class CD | Sub Class CD | Year Built | Area |
| | BAS | BASE/MAIN FLOOR | 4 | 0 | 1995 | 1848.0 |
| | oPOL | POLE BARN | 3 | 0 | 1995 | 864.0 |
| | OWP | OPEN WOOD PORCH W/STEPS | 4 | 0 | 1995 | 256.0 |
Sketch
| No sketches available for this property. |
Property Image
Land
| 1 | HS | HOMESITE | 1.0000 | 43560.00 | 0.00 | 0.00 | 1.00 | $220,000 | $0 |
| 2 | 91 | UNDEVELOPED LAND-METES AND BOUNDS | 3.7700 | 164221.20 | 0.00 | 0.00 | 1.00 | $118,158 | $0 |
Roll Value History
| 2026 | N/A | N/A | N/A | N/A | N/A |
| 2025 | $136,766 | $338,158 | $0 | $474,924 | $474,924 |
| 2024 | $118,708 | $290,000 | $0 | $408,708 | $408,708 |
| 2023 | $109,966 | $280,000 | $0 | $389,966 | $389,966 |
| 2022 | $103,901 | $250,000 | $0 | $353,901 | $353,901 |
| 2021 | $94,853 | $170,000 | $0 | $264,853 | $264,853 |
| 2020 | $94,941 | $160,000 | $0 | $254,941 | $254,941 |
| 2019 | $79,992 | $230,000 | $0 | $309,992 | $309,992 |
| 2018 | $82,056 | $200,000 | $0 | $282,056 | $282,056 |
| 2017 | $83,951 | $200,000 | $0 | $283,951 | $283,951 |
| 2016 | $85,846 | $140,000 | $0 | $225,846 | $225,846 |
| 2015 | $87,742 | $121,500 | $0 | $209,242 | $209,242 |
| 2014 | $89,637 | $121,500 | $0 | $211,137 | $211,137 |
| 2013 | $90,584 | $121,500 | $0 | $212,084 | $212,084 |
| 2012 | $92,480 | $121,500 | $0 | $213,980 | $213,980 |
| 2011 | $94,375 | $135,000 | $0 | $229,375 | $229,375 |
| 2010 | $98,332 | $135,000 | $0 | $233,332 | $233,332 |
| 2009 | $102,459 | $150,000 | $0 | $252,459 | $252,459 |
| 2008 | $104,276 | $167,500 | $0 | $271,776 | $271,776 |
| 2007 | $107,044 | $150,000 | $0 | $257,044 | $257,044 |
Deed and Sales History
| 1 | 03/07/2016 | EZ | Easement | BAUSCH, SHAWN J | BAUSCH, SHAWN J | | | $0.00 | 34828 | 4447312 |
| 2 | 02/10/2018 | EZ | Easement | BAUSCH, SHAWN J | BAUSCH, SHAWN J | | | $1,633.00 | 33234 | 4440509 |
| 3 | 02/12/2015 | QCD | Quit Claim Deed | BAUSCH, SHAWN J | BAUSCH, SHAWN J | | | $0.00 | 18477 | 4373219 |
| 4 | 05/04/2015 | OTHER | Other - Misc. Documents | BAUSCH, SHAWN J | BAUSCH, SHAWN J | | | $72,092.00 | 19827 | 4379469 |
| 5 | 01/09/2015 | WD | Warranty Deed | BAUSCH, SHAWN J | BAUSCH, SHAWN J | | | $0.00 | 18395 | 4373219 |
| 6 | 03/16/2004 | 5 | DNU - Marriage License/Name Change | BAUSCH, SHAWN J | BAUSCH, SHAWN J | | | $0.00 | 42075 | 4100993 |
| 7 | 11/13/2002 | WD | Warranty Deed | WHITE, MARC H | BAUSCH, SHAWN J | | | $185,000.00 | 24570 | 4037509 |
| 8 | 12/01/1997 | OTHER | Other - Misc. Documents | WHITE, MARC H | WHITE, MARC H | | | $61,000.00 | 74151 | 0 |
| 9 | 11/01/1997 | WD | Warranty Deed | RUSSELL, DEBBIE S | WHITE, MARC H | | | $90,250.00 | 74136 | 97019868 |
| 10 | 08/01/1994 | QCD | Quit Claim Deed | MANGOLD, DEBBIE S | RUSSELL, DEBBIE S | | | $0.00 | 43524 | 94018714 |
| 11 | 05/01/1991 | WD | Warranty Deed | TUTTLE, CLYDE B | MANGOLD, DEBBIE S | | | $5,750.00 | 11661 | 91007041 |
| 12 | 05/01/1991 | QCD | Quit Claim Deed | TUTTLE, CLYDE B | TUTTLE, CLYDE B | | | $0.00 | 11660 | 91007040 |
| 13 | 08/01/1985 | WD | Warranty Deed | RUSSELL, MARK / | TUTTLE, CLYDE B | | | $0.00 | 52459 | 85009712 |
| 14 | 01/01/1900 | OTHER | Other - Misc. Documents | Unknown | RUSSELL, MARK / | | | $0.00 | 0 | 0 |
Payout Agreement
| No payout information available.. |