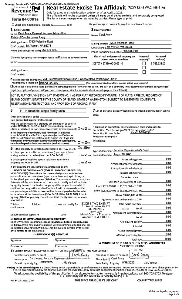
Property
Account |
| Property ID: | 603154 | Abbreviated Legal Description: | SAN DE FUCA LOTS 17, 18, 19, 20, 21, & SLY 38' LOTS 38 & 39 BLK 9 TGW STRIP OF LAND 10' WIDTH ADJ TO HOLBROOK RD AS VAC V343 P630 |
| Geographic ID: | S8060-00-09017-0 | Agent Code: | |
| Type: | Real | | |
| Tax Area: | 330 - APPRAISER-Cpvl Schl Dist, Special Dist, improved & less than 1 acre | Land Use Code | 11 |
| Open Space: | N | DFL | N |
| Historic Property: | N | Remodel Property: | N |
| Multi-Family Redevelopment: | N | | |
| Township: | | Section: | |
| Range: | |
Location |
| Address: | 717 HOLBROOK RD COUPEVILLE, WA 98239 | Mapsco: | |
| Neighborhood: | Cycle 2 | Map ID: | 160 |
| Neighborhood CD: | 2 |
Owner |
| Name: | PEDERSON, ROBERT H | Owner ID: | 259232 |
| Mailing Address: | 717 HOLBROOK RD COUPEVILLE, WA 98239 | % Ownership: | 100.0000000000% |
| | | Exemptions: | |
Taxes and Assessment Details
Values
| (+) Improvement Homesite Value: | + | $0 | |
| (+) Improvement Non-Homesite Value: | + | $280,594 | |
| (+) Land Homesite Value: | + | $0 | |
| (+) Land Non-Homesite Value: | + | $320,000 | |
| (+) Curr Use (HS): | + | $0 | $0 |
| (+) Curr Use (NHS): | + | $0 | $0 |
| | | -------------------------- | |
| (=) Market Value: | = | $600,594 | |
| (–) Productivity Loss: | – | $0 | |
| | | -------------------------- | |
| (=) Subtotal: | = | $600,594 | |
| (+) Senior Appraised Value: | + | $0 | |
| (+) Non-Senior Appraised Value: | + | $600,594 | |
| | | -------------------------- | |
| (=) Total Appraised Value: | = | $600,594 | |
| (–) Senior Exemption Loss: | – | $0 | |
| (–) Exemption Loss: | – | $0 | |
| | | -------------------------- | |
| (=) Taxable Value: | = | $600,594 | |
Taxing Jurisdiction
| Owner: | PEDERSON, ROBERT H | | |
| % Ownership: | 100.0000000000% | | |
| Total Value: | $600,594 | | |
| Tax Area: | 330 - APPRAISER-Cpvl Schl Dist, Special Dist, improved & less than 1 acre |
| CF | Conservation Futures | 0.0316035091 | $600,594 | $600,594 | $18.98 | | |
| CEM2 | Cemetery #2 | 0.0095056933 | $600,594 | $600,594 | $5.71 | | |
| FIRE2 | Fire & Rescue Dist #2 N Whidbey GEN | 0.5475949600 | $600,594 | $600,594 | $328.88 | | |
| HOBOND | Hospital BOND | 0.1910887512 | $600,594 | $600,594 | $114.77 | | |
| HOGEN | Hospital GEN | 0.3902502903 | $600,594 | $600,594 | $234.38 | | |
| CE | County Current Expense | 0.3708482477 | $600,594 | $600,594 | $222.73 | | |
| CR | County Roads | 0.4584763726 | $600,594 | $600,594 | $275.36 | | |
| ISLANDEMS | Hospital GEN (EMS) | 0.5000000000 | $600,594 | $600,594 | $300.30 | | |
| LIB | Library Sno-Isle GEN | 0.3153421757 | $600,594 | $600,594 | $189.39 | | |
| LIBCAP | Library Sno-Isle BOND (Cap Fac Imp Area) | 0.0543427938 | $600,594 | $600,594 | $32.64 | | |
| POCOUP | Port of Coupeville GEN | 0.1093371703 | $600,594 | $600,594 | $65.67 | | |
| POCOUPIDD | Port of Coupeville IDD | 0.3409740022 | $600,594 | $600,594 | $204.79 | | |
| COUPSDTECH | School 204 CP (TECH) | 0.7545480007 | $600,594 | $600,594 | $453.18 | | |
| SCH204MO | School 204 Enrichment | 0.6716186034 | $600,594 | $600,594 | $403.37 | | |
| ST | State School | 1.3035497053 | $600,594 | $600,594 | $782.90 | | |
| ST2 | State School Part 2 | 0.8169543533 | $600,594 | $600,594 | $490.66 | | |
| | Total Tax Rate: | 6.8660346289 | | | | | |
| | | | | Taxes w/Current Exemptions: | $4,123.71 | | |
| | | | | Taxes w/o Exemptions: | $4,123.71 | | |
Improvement / Building
| Improvement #1: | RESIDENTIAL | State Code: | Y | 2591.0 sqft | Value: | $280,594 |
| Bathrooms: | 3 | Bedrooms: | 4 | | Ceiling: | DRY WALL SPRAYED | Exterior Wall/Cover: | PLY/HARDBOARD T-111 | | Floor Covering: | VINYL 100% | Floor Structure: | WOOD W/SUBFLOOR | | Foundation: | CONCRETE | Heating: | FHA ELECTRIC | | Interior Finish: | DRYWALL PAINT | Plumbing Fixture Cnt: | 12 | | Roof Slope: | 4" IN 12" | Roof Structure/Cover: | CJ ASPHALT |
|
| | Type | Description | Class CD | Sub Class CD | Year Built | Area |
| | BAS | BASE/MAIN FLOOR | 3 | 0 | 1977 | 1348.0 |
| | OP4 | OPEN PORCH W/CEILING-ROOF | 3 | 0 | 1977 | 120.0 |
| | AGR | ATTACHED GARAGE | 3 | 0 | 1977 | 573.6 |
| | OWP | OPEN WOOD PORCH W/STEPS | 3 | 0 | 1977 | 428.0 |
| | DWN | DOWNSTAIRS LIVING AREA | 3 | 0 | 1977 | 1243.0 |
| | UTY | STORAGE/UTILITY | 3 | 0 | 1977 | 864.0 |
Sketch
| No sketches available for this property. |
Property Image
Land
| 1 | 15 | SQ (12001-21780) | 0.4200 | 18295.20 | 0.00 | 0.00 | 1.00 | $320,000 | $0 |
Roll Value History
| 2026 | N/A | N/A | N/A | N/A | N/A |
| 2025 | $280,594 | $320,000 | $0 | $600,594 | $600,594 |
| 2024 | $284,666 | $320,000 | $0 | $604,666 | $604,666 |
| 2023 | $289,240 | $320,000 | $0 | $609,240 | $609,240 |
| 2022 | $266,035 | $280,000 | $0 | $546,035 | $546,035 |
| 2021 | $234,937 | $200,000 | $0 | $434,937 | $434,937 |
| 2020 | $230,015 | $200,000 | $0 | $430,015 | $430,015 |
| 2019 | $180,061 | $220,000 | $0 | $400,061 | $400,061 |
| 2018 | $168,366 | $170,000 | $0 | $338,366 | $338,366 |
| 2017 | $169,558 | $150,000 | $0 | $319,558 | $319,558 |
| 2016 | $171,965 | $150,000 | $0 | $321,965 | $321,965 |
| 2015 | $174,371 | $120,000 | $0 | $294,371 | $294,371 |
| 2014 | $176,778 | $120,000 | $0 | $296,778 | $296,778 |
| 2013 | $187,485 | $148,750 | $0 | $336,235 | $336,235 |
| 2012 | $172,682 | $148,750 | $0 | $321,432 | $321,432 |
| 2011 | $175,120 | $175,000 | $0 | $350,120 | $350,120 |
| 2010 | $185,147 | $175,000 | $0 | $360,147 | $360,147 |
| 2009 | $193,822 | $200,000 | $0 | $393,822 | $393,822 |
| 2008 | $197,099 | $201,250 | $0 | $398,349 | $398,349 |
| 2007 | $200,376 | $195,000 | $0 | $395,376 | $395,376 |
Deed and Sales History
| 1 | 08/21/2012 | WD | Warranty Deed | GREENE III, JOSEPH E | PEDERSON, ROBERT H | | | $356,200.00 | 8647 | 4321808 |
| 2 | 08/24/2007 | WD | Warranty Deed | NESS, CLARENCE R | GREENE III, JOSEPH E | | | $459,000.00 | 72909 | 4210494 |
| 3 | 06/16/2008 | BLA | DNU - Boundary Line Adjustment | NESS, CLARENCE R | NESS, CLARENCE R | | | $0.00 | 80780 | 4199764 |
| 4 | 06/01/1986 | OTHER | Other - Misc. Documents | NESS, CLARENCE R | NESS, CLARENCE R | | | $0.00 | 61669 | 85001502 |
| 5 | 01/01/1900 | OTHER | Other - Misc. Documents | Unknown | NESS, CLARENCE R | | | $0.00 | 0 | 0 |
Payout Agreement
| No payout information available.. |