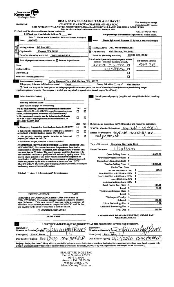
Property
Account |
| Property ID: | 603895 | Abbreviated Legal Description: | BL ADJ LOT B SP 82-100.23030.460-3180 V1 SP P345 AF#85005354 TGW FOLL DESC: BG MC COM TO SEC 19&30 ALG ML S08*W246 .74' S57*E685.71'TPB S57*E 10' N53*E217.26' S55*W221 .06'TPB TGW & SUB EZ AF#92008167 EZ TERMINATED TGW & SUB EZ AF#96013677 |
| Geographic ID: | R23030-454-3070 | Agent Code: | |
| Type: | Real | | |
| Tax Area: | 310 - APPRAISER-Cpvl Schl Dist, outside Cpvl, improved & 1 acre or less | Land Use Code | 11 |
| Open Space: | N | DFL | N |
| Historic Property: | N | Remodel Property: | N |
| Multi-Family Redevelopment: | N | | |
| Township: | 30 | Section: | 30 |
| Range: | R2 |
Location |
| Address: | 241 SMUGGLERS LAGOON LN GREENBANK, WA 98253 | Mapsco: | |
| Neighborhood: | Cycle 3 | Map ID: | 429 |
| Neighborhood CD: | 3 |
Owner |
| Name: | SAGE, JOHN K | Owner ID: | 178722 |
| Mailing Address: | SHELLY A OGDEN 5316 KEYSTONE PL N SEATTLE, WA 98103-6236 | % Ownership: | 100.0000000000% |
| | | Exemptions: | |
Taxes and Assessment Details
Values
| (+) Improvement Homesite Value: | + | $0 | |
| (+) Improvement Non-Homesite Value: | + | $238,258 | |
| (+) Land Homesite Value: | + | $0 | |
| (+) Land Non-Homesite Value: | + | $945,000 | |
| (+) Curr Use (HS): | + | $0 | $0 |
| (+) Curr Use (NHS): | + | $0 | $0 |
| | | -------------------------- | |
| (=) Market Value: | = | $1,183,258 | |
| (–) Productivity Loss: | – | $0 | |
| | | -------------------------- | |
| (=) Subtotal: | = | $1,183,258 | |
| (+) Senior Appraised Value: | + | $0 | |
| (+) Non-Senior Appraised Value: | + | $1,183,258 | |
| | | -------------------------- | |
| (=) Total Appraised Value: | = | $1,183,258 | |
| (–) Senior Exemption Loss: | – | $0 | |
| (–) Exemption Loss: | – | $0 | |
| | | -------------------------- | |
| (=) Taxable Value: | = | $1,183,258 | |
Taxing Jurisdiction
| Owner: | SAGE, JOHN K | | |
| % Ownership: | 100.0000000000% | | |
| Total Value: | $1,183,258 | | |
| Tax Area: | 310 - APPRAISER-Cpvl Schl Dist, outside Cpvl, improved & 1 acre or less |
| CF | Conservation Futures | 0.0316035091 | $1,183,258 | $1,183,258 | $37.40 | | |
| CEM2 | Cemetery #2 | 0.0095056933 | $1,183,258 | $1,183,258 | $11.25 | | |
| FIRE5 | Fire & Rescue Dist #5 C Whidbey GEN | 1.2008080668 | $1,183,258 | $1,183,258 | $1,420.87 | | |
| FIRE5BOND | Fire & Rescue Dist #5 C Whidbey BOND | 0.1400090713 | $1,183,258 | $1,183,258 | $165.67 | | |
| HOBOND | Hospital BOND | 0.1910887512 | $1,183,258 | $1,183,258 | $226.11 | | |
| HOGEN | Hospital GEN | 0.3902502903 | $1,183,258 | $1,183,258 | $461.77 | | |
| CE | County Current Expense | 0.3708482477 | $1,183,258 | $1,183,258 | $438.81 | | |
| CR | County Roads | 0.4584763726 | $1,183,258 | $1,183,258 | $542.50 | | |
| ISLANDEMS | Hospital GEN (EMS) | 0.5000000000 | $1,183,258 | $1,183,258 | $591.63 | | |
| LIB | Library Sno-Isle GEN | 0.3153421757 | $1,183,258 | $1,183,258 | $373.13 | | |
| LIBCAP | Library Sno-Isle BOND (Cap Fac Imp Area) | 0.0543427938 | $1,183,258 | $1,183,258 | $64.30 | | |
| POCOUP | Port of Coupeville GEN | 0.1093371703 | $1,183,258 | $1,183,258 | $129.37 | | |
| POCOUPIDD | Port of Coupeville IDD | 0.3409740022 | $1,183,258 | $1,183,258 | $403.46 | | |
| COUPSDTECH | School 204 CP (TECH) | 0.7545480007 | $1,183,258 | $1,183,258 | $892.82 | | |
| SCH204MO | School 204 Enrichment | 0.6716186034 | $1,183,258 | $1,183,258 | $794.70 | | |
| ST | State School | 1.3035497053 | $1,183,258 | $1,183,258 | $1,542.44 | | |
| ST2 | State School Part 2 | 0.8169543533 | $1,183,258 | $1,183,258 | $966.67 | | |
| | Total Tax Rate: | 7.6592568070 | | | | | |
| | | | | Taxes w/Current Exemptions: | $9,062.90 | | |
| | | | | Taxes w/o Exemptions: | $9,062.90 | | |
Improvement / Building
| Improvement #1: | RESIDENTIAL | State Code: | Y | 1024.0 sqft | Value: | $238,258 |
| Bathrooms: | 2 | Bedrooms: | 2 | | Ceiling: | DRYWALL PAINTED | Exterior Wall/Cover: | SHINGLE | | Floor Covering: | CERAMIC TILE/HWD 40/60 | Floor Structure: | WOOD W/SUBFLOOR | | Foundation: | CONCRETE | Heating: | WALL HEAT ELECTRIC | | Interior Finish: | DRYWALL PAINT | Plumbing Fixture Cnt: | 9 | | Roof Slope: | 5" IN 12" | Roof Structure/Cover: | CJ ALUMINIUM HEAVY |
|
| | Type | Description | Class CD | Sub Class CD | Year Built | Area |
| | BAS | BASE/MAIN FLOOR | 3 | 0 | 1989 | 512.0 |
| | OWP | OPEN WOOD PORCH W/STEPS | 3 | 0 | 1989 | 634.0 |
| | UPS | UPPER STORY | 3 | 0 | 1989 | 512.0 |
| | UTY | STORAGE/UTILITY | 3 | 0 | 1989 | 400.0 |
Sketch
Property Image
Land
| 1 | LB | LOW BANK | 0.0000 | 0.00 | 100.00 | 0.00 | 1.00 | $945,000 | $0 |
Roll Value History
| 2026 | N/A | N/A | N/A | N/A | N/A |
| 2025 | $238,258 | $945,000 | $0 | $1,183,258 | $1,183,258 |
| 2024 | $241,265 | $945,000 | $0 | $1,186,265 | $1,186,265 |
| 2023 | $244,271 | $945,000 | $0 | $1,189,271 | $1,189,271 |
| 2022 | $223,915 | $900,000 | $0 | $1,123,915 | $1,123,915 |
| 2021 | $197,075 | $750,000 | $0 | $947,075 | $947,075 |
| 2020 | $191,632 | $750,000 | $0 | $941,632 | $941,632 |
| 2019 | $126,088 | $750,000 | $0 | $876,088 | $876,088 |
| 2018 | $126,453 | $650,000 | $0 | $776,453 | $776,453 |
| 2017 | $127,185 | $650,000 | $0 | $777,185 | $777,185 |
| 2016 | $128,646 | $650,000 | $0 | $778,646 | $778,646 |
| 2015 | $130,108 | $650,000 | $0 | $780,108 | $780,108 |
| 2014 | $131,570 | $650,000 | $0 | $781,570 | $781,570 |
| 2013 | $90,960 | $645,316 | $0 | $736,276 | $736,276 |
| 2012 | $92,142 | $645,316 | $0 | $737,458 | $737,458 |
| 2011 | $93,323 | $645,316 | $0 | $738,639 | $738,639 |
| 2010 | $96,511 | $645,316 | $0 | $741,827 | $741,827 |
| 2009 | $100,535 | $852,840 | $0 | $953,375 | $953,375 |
| 2008 | $101,710 | $852,840 | $0 | $954,550 | $954,550 |
| 2007 | $106,113 | $852,840 | $0 | $958,953 | $958,953 |
Deed and Sales History
| 1 | 08/19/1998 | QCD | Quit Claim Deed | SAGE, JOHN K | SAGE, JOHN K | | | $0.00 | 91233 | 99008158 |
| 2 | 08/19/1998 | QCD | Quit Claim Deed | SAGE, JOHN K | SAGE, JOHN K | | | $0.00 | 84808 | 98026410 |
| 3 | 07/02/1998 | WD | Warranty Deed | SAGE, JOHN K | SAGE, JOHN K | | | $438,950.00 | 82808 | 98014614 |
| 4 | 02/01/1988 | OTHER | Other - Misc. Documents | RULON, J T | RULON, J T | | | $0.00 | 62505 | 88001233 |
| 5 | 06/01/1981 | TRUSTEED | Trustee's Deed | Unknown | RULON, J T | | | $0.00 | 11657 | 0 |
| 6 | 01/01/1900 | OTHER | Other - Misc. Documents | RULON, J T | SAGE, JOHN K | | | $0.00 | 82808 | 98014614 |
Payout Agreement
| No payout information available.. |