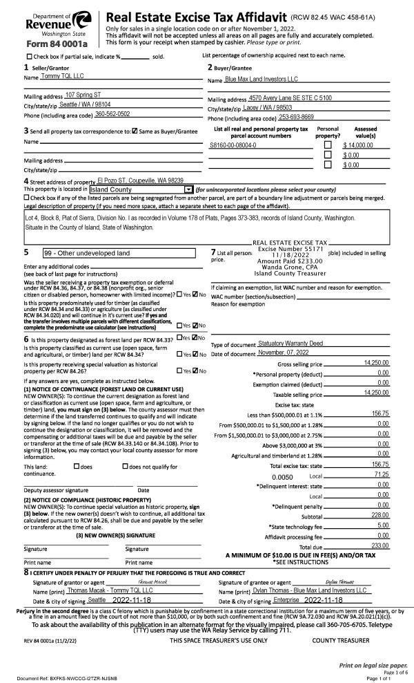
Property
Account |
| Property ID: | 60409 | Abbreviated Legal Description: | 62 - IN NE SE & IN GL1 SEC 9: BG PT ON ELN ST HWY IN NE SE 287'S OF CLN SEC 8 E TO SHORELN SELY ALG SHORELN 113' W TO ELN HWY N100' TPB INCL ADJ TIDES EX PT TO ST HWY |
| Geographic ID: | R23008-230-5120 | Agent Code: | |
| Type: | Real | | |
| Tax Area: | 312 - APPRAISER-Cpvl Schl Dist, outside Cpvl, improved, greater than 1 acre | Land Use Code | 11 |
| Open Space: | N | DFL | N |
| Historic Property: | N | Remodel Property: | N |
| Multi-Family Redevelopment: | N | | |
| Township: | 30 | Section: | 08 |
| Range: | R2 |
Location |
| Address: | 25288 SR525 GREENBANK, WA 98253 | Mapsco: | |
| Neighborhood: | Cycle 3 | Map ID: | 364 |
| Neighborhood CD: | 3 |
Owner |
| Name: | GELLER, JEFTY M | Owner ID: | 300233 |
| Mailing Address: | EILEEN T GELLER 25288 STATE ROUTE 525 GREENBANK, WA 98253 | % Ownership: | 100.0000000000% |
| | | Exemptions: | |
Taxes and Assessment Details
Values
| (+) Improvement Homesite Value: | + | $0 | |
| (+) Improvement Non-Homesite Value: | + | $408,780 | |
| (+) Land Homesite Value: | + | $0 | |
| (+) Land Non-Homesite Value: | + | $651,000 | |
| (+) Curr Use (HS): | + | $0 | $0 |
| (+) Curr Use (NHS): | + | $0 | $0 |
| | | -------------------------- | |
| (=) Market Value: | = | $1,059,780 | |
| (–) Productivity Loss: | – | $0 | |
| | | -------------------------- | |
| (=) Subtotal: | = | $1,059,780 | |
| (+) Senior Appraised Value: | + | $0 | |
| (+) Non-Senior Appraised Value: | + | $1,059,780 | |
| | | -------------------------- | |
| (=) Total Appraised Value: | = | $1,059,780 | |
| (–) Senior Exemption Loss: | – | $0 | |
| (–) Exemption Loss: | – | $0 | |
| | | -------------------------- | |
| (=) Taxable Value: | = | $1,059,780 | |
Taxing Jurisdiction
| Owner: | GELLER, JEFTY M | | |
| % Ownership: | 100.0000000000% | | |
| Total Value: | $1,059,780 | | |
| Tax Area: | 312 - APPRAISER-Cpvl Schl Dist, outside Cpvl, improved, greater than 1 acre |
| CF | Conservation Futures | 0.0316035091 | $1,059,780 | $1,059,780 | $33.49 | | |
| CEM2 | Cemetery #2 | 0.0095056933 | $1,059,780 | $1,059,780 | $10.07 | | |
| FIRE5 | Fire & Rescue Dist #5 C Whidbey GEN | 1.2008080668 | $1,059,780 | $1,059,780 | $1,272.59 | | |
| FIRE5BOND | Fire & Rescue Dist #5 C Whidbey BOND | 0.1400090713 | $1,059,780 | $1,059,780 | $148.38 | | |
| HOBOND | Hospital BOND | 0.1910887512 | $1,059,780 | $1,059,780 | $202.51 | | |
| HOGEN | Hospital GEN | 0.3902502903 | $1,059,780 | $1,059,780 | $413.58 | | |
| CE | County Current Expense | 0.3708482477 | $1,059,780 | $1,059,780 | $393.02 | | |
| CR | County Roads | 0.4584763726 | $1,059,780 | $1,059,780 | $485.88 | | |
| ISLANDEMS | Hospital GEN (EMS) | 0.5000000000 | $1,059,780 | $1,059,780 | $529.89 | | |
| LIB | Library Sno-Isle GEN | 0.3153421757 | $1,059,780 | $1,059,780 | $334.19 | | |
| LIBCAP | Library Sno-Isle BOND (Cap Fac Imp Area) | 0.0543427938 | $1,059,780 | $1,059,780 | $57.59 | | |
| POCOUP | Port of Coupeville GEN | 0.1093371703 | $1,059,780 | $1,059,780 | $115.87 | | |
| POCOUPIDD | Port of Coupeville IDD | 0.3409740022 | $1,059,780 | $1,059,780 | $361.36 | | |
| COUPSDTECH | School 204 CP (TECH) | 0.7545480007 | $1,059,780 | $1,059,780 | $799.65 | | |
| SCH204MO | School 204 Enrichment | 0.6716186034 | $1,059,780 | $1,059,780 | $711.77 | | |
| ST | State School | 1.3035497053 | $1,059,780 | $1,059,780 | $1,381.48 | | |
| ST2 | State School Part 2 | 0.8169543533 | $1,059,780 | $1,059,780 | $865.79 | | |
| | Total Tax Rate: | 7.6592568070 | | | | | |
| | | | | Taxes w/Current Exemptions: | $8,117.11 | | |
| | | | | Taxes w/o Exemptions: | $8,117.11 | | |
Improvement / Building
| Improvement #1: | RESIDENTIAL | State Code: | Y | 2363.1 sqft | Value: | $408,780 |
| Bathrooms: | 2 | Bedrooms: | 3 | | Ceiling: | TONGUE & GROOVE | Cooling: | HEAT PUMP/CONV/V | | Exterior Wall/Cover: | WOOD SIDING | Floor Covering: | CERAMIC TILE/CPT 40-60 | | Floor Structure: | WOOD W/SUBFLOOR | Foundation: | CONCRETE | | Interior Finish: | DRYWALL PAINT | Plumbing Fixture Cnt: | 11 | | Roof Slope: | 4" IN 12" | Roof Structure/Cover: | BEAM ASPHALT |
|
| | Type | Description | Class CD | Sub Class CD | Year Built | Area |
| | BAS | BASE/MAIN FLOOR | 3 | 0 | 1978 | 2363.1 |
| | OP3 | OPEN PORCH W/ROOF | 3 | 0 | 1978 | 25.8 |
| | AGR | ATTACHED GARAGE | 3 | 0 | 1978 | 400.7 |
| | OWP | OPEN WOOD PORCH W/STEPS | 3 | 0 | 1978 | 941.1 |
Sketch
Property Image
Land
| 1 | HB | HIGH BLUFF | 2.2100 | 96267.60 | 100.00 | 0.00 | 1.00 | $650,000 | $0 |
| 2 | 55 | TIDES | 0.0000 | 0.00 | 100.00 | 0.00 | 1.00 | $1,000 | $0 |
Roll Value History
| 2026 | N/A | N/A | N/A | N/A | N/A |
| 2025 | $408,780 | $651,000 | $0 | $1,059,780 | $1,059,780 |
| 2024 | $413,938 | $651,000 | $0 | $1,064,938 | $1,064,938 |
| 2023 | $419,096 | $626,000 | $0 | $1,045,096 | $1,045,096 |
| 2022 | $384,154 | $501,000 | $0 | $885,154 | $885,154 |
| 2021 | $278,714 | $401,000 | $0 | $679,714 | $679,714 |
| 2020 | $272,457 | $351,000 | $0 | $623,457 | $623,457 |
| 2019 | $208,287 | $401,000 | $0 | $609,287 | $609,287 |
| 2018 | $209,060 | $375,000 | $0 | $584,060 | $584,060 |
| 2017 | $209,749 | $276,000 | $0 | $485,749 | $485,749 |
| 2016 | $212,833 | $276,000 | $0 | $488,833 | $488,833 |
| 2015 | $215,919 | $251,000 | $0 | $466,919 | $466,919 |
| 2014 | $219,004 | $251,000 | $0 | $470,004 | $470,004 |
| 2013 | $222,725 | $189,156 | $0 | $411,881 | $411,881 |
| 2012 | $225,818 | $189,156 | $0 | $414,974 | $414,974 |
| 2011 | $228,912 | $189,156 | $0 | $418,068 | $418,068 |
| 2010 | $237,109 | $189,156 | $0 | $426,265 | $426,265 |
| 2009 | $247,482 | $251,875 | $0 | $499,357 | $499,357 |
| 2008 | $259,109 | $251,771 | $0 | $510,880 | $510,880 |
| 2007 | $255,892 | $122,677 | $0 | $378,569 | $378,569 |
Deed and Sales History
| 1 | 06/30/2021 | WD | Warranty Deed | DEWITT, WAYNE T | GELLER, JEFTY M | | | $1,112,000.00 | 49185 | 4524558 |
|   | |
| 2 | 09/26/2000 | WD | Warranty Deed | WARD, DAVID C | DEWITT, WAYNE T | | | $300,000.00 | 3805 | 20017444 |
| 3 | 08/01/1995 | WD | Warranty Deed | WARD, DAVID C | WARD, DAVID C | | | $7,700.00 | 53185 | 95014643 |
| 4 | 12/01/1991 | QCD | Quit Claim Deed | WARD, ROBERT C | WARD, DAVID C | | | $0.00 | 14554 | 91019944 |
| 5 | 04/01/1990 | WD | Warranty Deed | BARR, WILLIAM | WARD, ROBERT C | | | $240,000.00 | 2164 | 90007089 |
| 6 | 11/01/1983 | WD | Warranty Deed | RUBADO, WILLIAM | BARR, WILLIAM | | | $190,000.00 | 33305 | 417336 |
| 7 | 01/01/1900 | OTHER | Other - Misc. Documents | Unknown | RUBADO, WILLIAM | | | $0.00 | 0 | 0 |
Payout Agreement
| No payout information available.. |