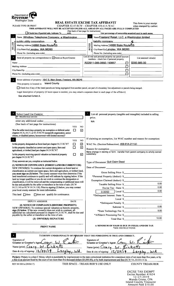
Property
Account |
| Property ID: | 604377 | Abbreviated Legal Description: | LOT A SP 82-65.23014.363-3220 V1 SP P392 AF#85011637 TGW EZ AF#85001173 |
| Geographic ID: | R23014-378-2980 | Agent Code: | |
| Type: | Real | | |
| Tax Area: | 712 - APPRAISER-S Whid Schl Dist, outside Langley, improved, greater than 1 acre | Land Use Code | 11 |
| Open Space: | N | DFL | N |
| Historic Property: | N | Remodel Property: | N |
| Multi-Family Redevelopment: | N | | |
| Township: | 30 | Section: | 14 |
| Range: | R2 |
Location |
| Address: | 3333 EAST HARBOR RD LANGLEY, WA 98260 | Mapsco: | |
| Neighborhood: | Cycle 3 | Map ID: | 380 |
| Neighborhood CD: | 3 |
Owner |
| Name: | STONEBRIDGE, JERRY | Owner ID: | 188839 |
| Mailing Address: | SUZANNE STONEBRIDGE 3333 E HARBOR RD LANGLEY, WA 98260-9659 | % Ownership: | 100.0000000000% |
| | | Exemptions: | |
Taxes and Assessment Details
Values
| (+) Improvement Homesite Value: | + | $0 | |
| (+) Improvement Non-Homesite Value: | + | $831,775 | |
| (+) Land Homesite Value: | + | $0 | |
| (+) Land Non-Homesite Value: | + | $370,000 | |
| (+) Curr Use (HS): | + | $0 | $0 |
| (+) Curr Use (NHS): | + | $0 | $0 |
| | | -------------------------- | |
| (=) Market Value: | = | $1,201,775 | |
| (–) Productivity Loss: | – | $0 | |
| | | -------------------------- | |
| (=) Subtotal: | = | $1,201,775 | |
| (+) Senior Appraised Value: | + | $0 | |
| (+) Non-Senior Appraised Value: | + | $1,201,775 | |
| | | -------------------------- | |
| (=) Total Appraised Value: | = | $1,201,775 | |
| (–) Senior Exemption Loss: | – | $0 | |
| (–) Exemption Loss: | – | $0 | |
| | | -------------------------- | |
| (=) Taxable Value: | = | $1,201,775 | |
Taxing Jurisdiction
| Owner: | STONEBRIDGE, JERRY | | |
| % Ownership: | 100.0000000000% | | |
| Total Value: | $1,201,775 | | |
| Tax Area: | 712 - APPRAISER-S Whid Schl Dist, outside Langley, improved, greater than 1 acre |
| CF | Conservation Futures | 0.0316035091 | $1,201,775 | $1,201,775 | $37.98 | | |
| FIRE3 | Fire & Rescue Dist #3 S Whidbey GEN | 1.2004855531 | $1,201,775 | $1,201,775 | $1,442.71 | | |
| HOBOND | Hospital BOND | 0.1910887512 | $1,201,775 | $1,201,775 | $229.65 | | |
| HOGEN | Hospital GEN | 0.3902502903 | $1,201,775 | $1,201,775 | $468.99 | | |
| CE | County Current Expense | 0.3708482477 | $1,201,775 | $1,201,775 | $445.68 | | |
| CR | County Roads | 0.4584763726 | $1,201,775 | $1,201,775 | $550.99 | | |
| ISLANDEMS | Hospital GEN (EMS) | 0.5000000000 | $1,201,775 | $1,201,775 | $600.89 | | |
| LIB | Library Sno-Isle GEN | 0.3153421757 | $1,201,775 | $1,201,775 | $378.97 | | |
| PORTWHID | Port of S Whidbey GEN | 0.1094540357 | $1,201,775 | $1,201,775 | $131.54 | | |
| SCH206BOND | School 206 BOND | 0.3161759235 | $1,201,775 | $1,201,775 | $379.97 | | |
| SCH206MO | School 206 Enrichment | 0.4547169547 | $1,201,775 | $1,201,775 | $546.47 | | |
| ST | State School | 1.3035497053 | $1,201,775 | $1,201,775 | $1,566.57 | | |
| ST2 | State School Part 2 | 0.8169543533 | $1,201,775 | $1,201,775 | $981.80 | | |
| SWHIDPRBD | P & R S Whidbey BOND | 0.0152817568 | $1,201,775 | $1,201,775 | $18.37 | | |
| SWHIDPRBD2 | P & R S Whidbey BOND2 | 0.0138911264 | $1,201,775 | $1,201,775 | $16.69 | | |
| SWHIDPRMT | P & R S Whidbey GEN | 0.2053334452 | $1,201,775 | $1,201,775 | $246.76 | | |
| | Total Tax Rate: | 6.6934522006 | | | | | |
| | | | | Taxes w/Current Exemptions: | $8,044.03 | | |
| | | | | Taxes w/o Exemptions: | $8,044.03 | | |
Improvement / Building
| Improvement #1: | RESIDENTIAL | State Code: | Y | 4789.5 sqft | Value: | $831,775 |
| Bathrooms: | 4 | Bedrooms: | 2 | | Ceiling: | DRYWALL PAINTED | Exterior Wall/Cover: | LOG TO 10" | | Floor Covering: | VINYL TILE/HARWD 20-80 | Floor Structure: | WOOD W/SUBFLOOR | | Foundation: | CONCRETE | Heating: | B/B HOT WATER-OIL | | Interior Finish: | DRYWALL PAINT | Plumbing Fixture Cnt: | 19 | | Roof Slope: | 5" IN 12" | Roof Structure/Cover: | CJ CONCRETE TILE |
|
| | Type | Description | Class CD | Sub Class CD | Year Built | Area |
| | BAS | BASE/MAIN FLOOR | 4 | 0 | 1986 | 2422.9 |
| | DGR | DETACHED GARAGE | 4 | 0 | 1986 | 896.0 |
| | AGR | ATTACHED GARAGE | 4 | 0 | 1986 | 575.2 |
| | UPS | UPPER STORY | 4 | 0 | 1986 | 1928.1 |
| | UPS | UPPER STORY | 4 | 0 | 1986 | 232.3 |
| | OWP | OPEN WOOD PORCH W/STEPS | 4 | 0 | 1986 | 218.4 |
| | OWP | OPEN WOOD PORCH W/STEPS | 4 | 0 | 1986 | 256.5 |
| | OWP | OPEN WOOD PORCH W/STEPS | 4 | 0 | 1986 | 453.9 |
| | OWP | OPEN WOOD PORCH W/STEPS | 4 | 0 | 1986 | 37.5 |
| | OWC | OPEN WOOD PORCH W/STEPS/ROOF/C | 4 | 0 | 1986 | 548.5 |
| | OWC | OPEN WOOD PORCH W/STEPS/ROOF/C | 4 | 0 | 1986 | 173.0 |
| | LOF | LOFT | 4 | 0 | 1986 | 206.2 |
| | CPD | OPEN CARPORT DIRT FLOOR | 4 | 0 | 1986 | 896.0 |
| | DGR | DETACHED GARAGE | 4 | 0 | 1986 | 676.0 |
Sketch
Property Image
Land
| 1 | 32 | AC (03.01-09.99) | 5.0400 | 0.00 | 0.00 | 0.00 | 1.00 | $370,000 | $0 |
Roll Value History
| 2026 | N/A | N/A | N/A | N/A | N/A |
| 2025 | $831,775 | $370,000 | $0 | $1,201,775 | $1,201,775 |
| 2024 | $892,989 | $350,000 | $0 | $1,242,989 | $1,242,989 |
| 2023 | $905,357 | $330,000 | $0 | $1,235,357 | $1,235,357 |
| 2022 | $831,016 | $290,000 | $0 | $1,121,016 | $1,121,016 |
| 2021 | $732,349 | $230,000 | $0 | $962,349 | $962,349 |
| 2020 | $716,916 | $190,000 | $0 | $906,916 | $906,916 |
| 2019 | $507,624 | $230,000 | $0 | $737,624 | $737,624 |
| 2018 | $509,404 | $210,000 | $0 | $719,404 | $719,404 |
| 2017 | $512,799 | $150,000 | $0 | $662,799 | $662,799 |
| 2016 | $519,922 | $135,000 | $0 | $654,922 | $654,922 |
| 2015 | $527,045 | $135,000 | $0 | $662,045 | $662,045 |
| 2014 | $534,168 | $126,000 | $0 | $660,168 | $660,168 |
| 2013 | $556,461 | $122,470 | $0 | $678,931 | $678,931 |
| 2012 | $563,756 | $122,470 | $0 | $686,226 | $686,226 |
| 2011 | $571,051 | $122,470 | $0 | $693,521 | $693,521 |
| 2010 | $618,670 | $136,080 | $0 | $754,750 | $754,750 |
| 2009 | $645,210 | $161,280 | $0 | $806,490 | $806,490 |
| 2008 | $653,854 | $176,400 | $0 | $830,254 | $830,254 |
| 2007 | $663,328 | $176,400 | $0 | $839,728 | $839,728 |
Deed and Sales History
| 1 | 10/11/2002 | QCD | Quit Claim Deed | STONEBRIDGE, JERRY | STONEBRIDGE, JERRY | | | $0.00 | 24084 | 4034039 |
| 2 | 02/01/1984 | QCD | Quit Claim Deed | Unknown | STONEBRIDGE, JERRY | | | $0.00 | 42817 | 84003691 |
Payout Agreement
| No payout information available.. |