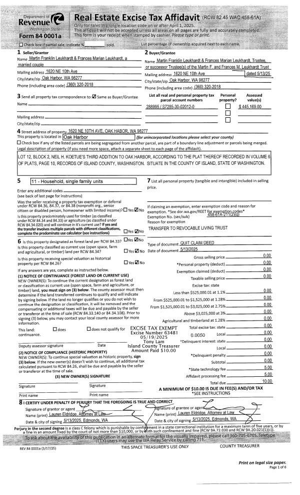
Property
Account |
| Property ID: | 604457 | Abbreviated Legal Description: | LOT B SP 83-10.03224.317-2700 V1 SP P390 AF#85011479 TGW EZ AF#85005886 |
| Geographic ID: | R03224-325-2390 | Agent Code: | |
| Type: | Real | | |
| Tax Area: | 332 - APPRAISER-Cpvl Schl Dist, Special Dist, improved, greater than 1 acre | Land Use Code | 11 |
| Open Space: | N | DFL | N |
| Historic Property: | N | Remodel Property: | N |
| Multi-Family Redevelopment: | N | | |
| Township: | 32 | Section: | 24 |
| Range: | R0 |
Location |
| Address: | 1045 SEACLIFF LN COUPEVILLE, WA 98239 | Mapsco: | |
| Neighborhood: | Area 2 Waterfront Westside Residential | Map ID: | 5 |
| Neighborhood CD: | 2WFW01R |
Owner |
| Name: | BROCKMAN, JULEE A | Owner ID: | 310549 |
| Mailing Address: | PO BOX 186 KINGSTON, WA 98346 | % Ownership: | 100.0000000000% |
| | | Exemptions: | |
Taxes and Assessment Details
Values
| (+) Improvement Homesite Value: | + | $0 | |
| (+) Improvement Non-Homesite Value: | + | $486,530 | |
| (+) Land Homesite Value: | + | $0 | |
| (+) Land Non-Homesite Value: | + | $525,000 | |
| (+) Curr Use (HS): | + | $0 | $0 |
| (+) Curr Use (NHS): | + | $0 | $0 |
| | | -------------------------- | |
| (=) Market Value: | = | $1,011,530 | |
| (–) Productivity Loss: | – | $0 | |
| | | -------------------------- | |
| (=) Subtotal: | = | $1,011,530 | |
| (+) Senior Appraised Value: | + | $0 | |
| (+) Non-Senior Appraised Value: | + | $1,011,530 | |
| | | -------------------------- | |
| (=) Total Appraised Value: | = | $1,011,530 | |
| (–) Senior Exemption Loss: | – | $0 | |
| (–) Exemption Loss: | – | $0 | |
| | | -------------------------- | |
| (=) Taxable Value: | = | $1,011,530 | |
Taxing Jurisdiction
| Owner: | BROCKMAN, JULEE A | | |
| % Ownership: | 100.0000000000% | | |
| Total Value: | $1,011,530 | | |
| Tax Area: | 332 - APPRAISER-Cpvl Schl Dist, Special Dist, improved, greater than 1 acre |
| CF | Conservation Futures | 0.0316035091 | $1,011,530 | $1,011,530 | $31.97 | | |
| CEM2 | Cemetery #2 | 0.0095056933 | $1,011,530 | $1,011,530 | $9.62 | | |
| FIRE2 | Fire & Rescue Dist #2 N Whidbey GEN | 0.5475949600 | $1,011,530 | $1,011,530 | $553.91 | | |
| HOBOND | Hospital BOND | 0.1910887512 | $1,011,530 | $1,011,530 | $193.29 | | |
| HOGEN | Hospital GEN | 0.3902502903 | $1,011,530 | $1,011,530 | $394.75 | | |
| CE | County Current Expense | 0.3708482477 | $1,011,530 | $1,011,530 | $375.12 | | |
| CR | County Roads | 0.4584763726 | $1,011,530 | $1,011,530 | $463.76 | | |
| ISLANDEMS | Hospital GEN (EMS) | 0.5000000000 | $1,011,530 | $1,011,530 | $505.77 | | |
| LIB | Library Sno-Isle GEN | 0.3153421757 | $1,011,530 | $1,011,530 | $318.98 | | |
| LIBCAP | Library Sno-Isle BOND (Cap Fac Imp Area) | 0.0543427938 | $1,011,530 | $1,011,530 | $54.97 | | |
| POCOUP | Port of Coupeville GEN | 0.1093371703 | $1,011,530 | $1,011,530 | $110.60 | | |
| POCOUPIDD | Port of Coupeville IDD | 0.3409740022 | $1,011,530 | $1,011,530 | $344.91 | | |
| COUPSDTECH | School 204 CP (TECH) | 0.7545480007 | $1,011,530 | $1,011,530 | $763.25 | | |
| SCH204MO | School 204 Enrichment | 0.6716186034 | $1,011,530 | $1,011,530 | $679.36 | | |
| ST | State School | 1.3035497053 | $1,011,530 | $1,011,530 | $1,318.58 | | |
| ST2 | State School Part 2 | 0.8169543533 | $1,011,530 | $1,011,530 | $826.37 | | |
| | Total Tax Rate: | 6.8660346289 | | | | | |
| | | | | Taxes w/Current Exemptions: | $6,945.21 | | |
| | | | | Taxes w/o Exemptions: | $6,945.21 | | |
Improvement / Building
| Improvement #1: | RESIDENTIAL | State Code: | Y | 2796.7 sqft | Value: | $486,530 |
| Bathrooms: | 2.5 | Bedrooms: | 3 | | Ceiling: | DRYWALL PAINTED | Exterior Wall/Cover: | CEMENT FIBER | | Floor Covering: | CARPET/VINYL 80-20 | Floor Structure: | WOOD W/SUBFLOOR | | Foundation: | CONCRETE | Heating: | WALL HEAT ELECTRIC | | Interior Finish: | DRYWALL PAINT | Plumbing Fixture Cnt: | 15 | | Roof Slope: | 6" IN 12" | Roof Structure/Cover: | CJ CONCRETE TILE |
|
| | Type | Description | Class CD | Sub Class CD | Year Built | Area |
| | BAS | BASE/MAIN FLOOR | 4 | 0 | 1988 | 1571.6 |
| | OP1 | OPEN PORCH SLAB | 4 | 0 | 1988 | 227.0 |
| | OP4 | OPEN PORCH W/CEILING-ROOF | 4 | 0 | 1988 | 24.5 |
| | DGR | DETACHED GARAGE | 4 | 0 | 1988 | 1056.0 |
| | UPS | UPPER STORY | 4 | 0 | 1988 | 1225.1 |
| | BAW | BALCONY WOOD RAIL | 4 | 0 | 1988 | 60.0 |
Sketch
Property Image
Land
| 1 | HB | HIGH BLUFF | 1.3700 | 59677.20 | 98.00 | 0.00 | 1.00 | $525,000 | $0 |
Roll Value History
| 2026 | N/A | N/A | N/A | N/A | N/A |
| 2025 | $486,530 | $525,000 | $0 | $1,011,530 | $1,011,530 |
| 2024 | $468,113 | $525,000 | $0 | $993,113 | $993,113 |
| 2023 | $474,253 | $500,000 | $0 | $974,253 | $974,253 |
| 2022 | $435,007 | $450,000 | $0 | $885,007 | $885,007 |
| 2021 | $383,102 | $350,000 | $0 | $733,102 | $733,102 |
| 2020 | $373,610 | $250,000 | $0 | $623,610 | $623,610 |
| 2019 | $286,964 | $300,000 | $0 | $586,964 | $586,964 |
| 2018 | $217,101 | $250,000 | $0 | $467,101 | $467,101 |
| 2017 | $218,588 | $250,000 | $0 | $468,588 | $468,588 |
| 2016 | $221,623 | $250,000 | $0 | $471,623 | $471,623 |
| 2015 | $224,659 | $250,000 | $0 | $474,659 | $474,659 |
| 2014 | $227,697 | $250,000 | $0 | $477,697 | $477,697 |
| 2013 | $230,731 | $218,673 | $0 | $449,404 | $449,404 |
| 2012 | $221,244 | $218,673 | $0 | $439,917 | $439,917 |
| 2011 | $224,424 | $218,673 | $0 | $443,097 | $443,097 |
| 2010 | $231,365 | $218,673 | $0 | $450,038 | $450,038 |
| 2009 | $241,728 | $309,940 | $0 | $551,668 | $551,668 |
| 2008 | $245,008 | $309,940 | $0 | $554,948 | $554,948 |
| 2007 | $248,288 | $309,940 | $0 | $558,228 | $558,228 |
Deed and Sales History
| 1 | 11/01/2023 | PRD | Personal Representatives Deed | BRIX, JAMES A | BROCKMAN, JULEE A | | | $0.00 | 58405 | 4566337 |
| 2 | 08/30/2012 | PRD | Personal Representatives Deed | BRIX JR, JAMES A | BRIX, JAMES A | | | $0.00 | 8863 | 4323482 |
| 3 | 05/12/1998 | QCD | Quit Claim Deed | BRIX, JAMES A | BRIX, JAMES A | | | $0.00 | 81807 | 98009651 |
| 4 | 05/12/1998 | QCD | Quit Claim Deed | BRIX, JAMES A | BRIX, JAMES A | | | $0.00 | 81806 | 98009652 |
| 5 | 05/12/1998 | QCD | Quit Claim Deed | Unknown | BRIX, JAMES A | | | $0.00 | 81805 | 98009653 |
| 6 | 12/01/1997 | QCD | Quit Claim Deed | BRIX, JAMES A | BRIX, JAMES A | | | $0.00 | 74450 | 97021365 |
| 7 | 12/01/1997 | QCD | Quit Claim Deed | BRIX, JAMES A | BRIX, JAMES A | | | $0.00 | 74451 | 97021366 |
| 8 | 12/01/1997 | QCD | Quit Claim Deed | BRIX, JAMES A | BRIX, JAMES A | | | $0.00 | 74452 | 97021367 |
| 9 | 12/01/1997 | QCD | Quit Claim Deed | BRIX, JAMES A | BRIX, JAMES A | | | $0.00 | 74453 | 97021368 |
| 10 | 12/01/1997 | QCD | Quit Claim Deed | BRIX, JAMES A | BRIX, JAMES A | | | $0.00 | 74454 | 97021369 |
| 11 | 01/01/1996 | QCD | Quit Claim Deed | BRIX, JAMES A | BRIX, JAMES A | | | $0.00 | 60948 | 96004944 |
| 12 | 09/01/1986 | WD | Warranty Deed | HOVENIER, PETER J | BRIX, JAMES A | | | $34,000.00 | 62819 | 86012748 |
| 13 | 09/01/1981 | WD | Warranty Deed | Unknown | HOVENIER, PETER J | | | $117,660.00 | 13037 | 388462 |
| 14 | 01/01/1900 | OTHER | Other - Misc. Documents | Unknown | BRIX, MARY E | | | $0.00 | 81806 | 98009652 |
Payout Agreement
| No payout information available.. |