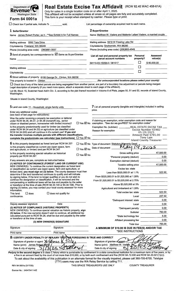
Property
Account |
| Property ID: | 604466 | Abbreviated Legal Description: | LOT C SP 83-10.03224.317-2700 V1 SP P390 AF#85011479 TGW EZ AF#85005886 |
| Geographic ID: | R03224-316-2310 | Agent Code: | |
| Type: | Real | | |
| Tax Area: | 332 - APPRAISER-Cpvl Schl Dist, Special Dist, improved, greater than 1 acre | Land Use Code | 11 |
| Open Space: | N | DFL | N |
| Historic Property: | N | Remodel Property: | N |
| Multi-Family Redevelopment: | N | | |
| Township: | 32 | Section: | 24 |
| Range: | R0 |
Location |
| Address: | 1041 SEACLIFF LN COUPEVILLE, WA 98239 | Mapsco: | |
| Neighborhood: | Area 2 Waterfront Westside Residential | Map ID: | 5 |
| Neighborhood CD: | 2WFW01R |
Owner |
| Name: | PACIFIC OCEAN VIEW, LLC | Owner ID: | 316803 |
| Mailing Address: | 4593 E CARRIAGE WAY GILBERT, AZ 85297 | % Ownership: | 100.0000000000% |
| | | Exemptions: | |
Taxes and Assessment Details
Values
| (+) Improvement Homesite Value: | + | $0 | |
| (+) Improvement Non-Homesite Value: | + | $926,731 | |
| (+) Land Homesite Value: | + | $0 | |
| (+) Land Non-Homesite Value: | + | $525,000 | |
| (+) Curr Use (HS): | + | $0 | $0 |
| (+) Curr Use (NHS): | + | $0 | $0 |
| | | -------------------------- | |
| (=) Market Value: | = | $1,451,731 | |
| (–) Productivity Loss: | – | $0 | |
| | | -------------------------- | |
| (=) Subtotal: | = | $1,451,731 | |
| (+) Senior Appraised Value: | + | $0 | |
| (+) Non-Senior Appraised Value: | + | $1,451,731 | |
| | | -------------------------- | |
| (=) Total Appraised Value: | = | $1,451,731 | |
| (–) Senior Exemption Loss: | – | $0 | |
| (–) Exemption Loss: | – | $0 | |
| | | -------------------------- | |
| (=) Taxable Value: | = | $1,451,731 | |
Taxing Jurisdiction
| Owner: | PACIFIC OCEAN VIEW, LLC | | |
| % Ownership: | 100.0000000000% | | |
| Total Value: | $1,451,731 | | |
| Tax Area: | 332 - APPRAISER-Cpvl Schl Dist, Special Dist, improved, greater than 1 acre |
| CF | Conservation Futures | 0.0316035091 | $1,451,731 | $1,451,731 | $45.88 | | |
| CEM2 | Cemetery #2 | 0.0095056933 | $1,451,731 | $1,451,731 | $13.80 | | |
| FIRE2 | Fire & Rescue Dist #2 N Whidbey GEN | 0.5475949600 | $1,451,731 | $1,451,731 | $794.96 | | |
| HOBOND | Hospital BOND | 0.1910887512 | $1,451,731 | $1,451,731 | $277.41 | | |
| HOGEN | Hospital GEN | 0.3902502903 | $1,451,731 | $1,451,731 | $566.54 | | |
| CE | County Current Expense | 0.3708482477 | $1,451,731 | $1,451,731 | $538.37 | | |
| CR | County Roads | 0.4584763726 | $1,451,731 | $1,451,731 | $665.58 | | |
| ISLANDEMS | Hospital GEN (EMS) | 0.5000000000 | $1,451,731 | $1,451,731 | $725.87 | | |
| LIB | Library Sno-Isle GEN | 0.3153421757 | $1,451,731 | $1,451,731 | $457.79 | | |
| LIBCAP | Library Sno-Isle BOND (Cap Fac Imp Area) | 0.0543427938 | $1,451,731 | $1,451,731 | $78.89 | | |
| POCOUP | Port of Coupeville GEN | 0.1093371703 | $1,451,731 | $1,451,731 | $158.73 | | |
| POCOUPIDD | Port of Coupeville IDD | 0.3409740022 | $1,451,731 | $1,451,731 | $495.00 | | |
| COUPSDTECH | School 204 CP (TECH) | 0.7545480007 | $1,451,731 | $1,451,731 | $1,095.40 | | |
| SCH204MO | School 204 Enrichment | 0.6716186034 | $1,451,731 | $1,451,731 | $975.01 | | |
| ST | State School | 1.3035497053 | $1,451,731 | $1,451,731 | $1,892.40 | | |
| ST2 | State School Part 2 | 0.8169543533 | $1,451,731 | $1,451,731 | $1,186.00 | | |
| | Total Tax Rate: | 6.8660346289 | | | | | |
| | | | | Taxes w/Current Exemptions: | $9,967.63 | | |
| | | | | Taxes w/o Exemptions: | $9,967.63 | | |
Improvement / Building
| Improvement #1: | RESIDENTIAL | State Code: | Y | 4977.8 sqft | Value: | $926,731 |
| Bathrooms: | 3.5 | Bedrooms: | 4 | | Ceiling: | DRYWALL PAINTED | Cooling: | HEAT PUMP/CONV/V | | Exterior Wall/Cover: | CEMENT FIBER | Floor Covering: | HARDWOOD/CARP 20-80 | | Floor Structure: | WOOD W/SUBFLOOR | Foundation: | CONCRETE | | Interior Finish: | DRYWALL PAINT | Plumbing Fixture Cnt: | 17 | | Roof Slope: | 4" IN 12" | Roof Structure/Cover: | CJ ASPHALT |
|
| | Type | Description | Class CD | Sub Class CD | Year Built | Area |
| | BAS | BASE/MAIN FLOOR | 5 | 0 | 1996 | 2104.3 |
| | BIG | BUILT IN GARAGE | 5 | 0 | 1996 | 1661.6 |
| | UPS | UPPER STORY | 5 | 0 | 1996 | 2873.5 |
| | BAW | BALCONY WOOD RAIL | 5 | 0 | 1996 | 20.0 |
| | OWC | OPEN WOOD PORCH W/STEPS/ROOF/C | 5 | 0 | 1996 | 372.3 |
| | OWC | OPEN WOOD PORCH W/STEPS/ROOF/C | 5 | 0 | 1996 | 159.5 |
Sketch
Property Image
Land
| 1 | HB | HIGH BLUFF | 1.3800 | 60112.80 | 100.00 | 0.00 | 1.00 | $525,000 | $0 |
Roll Value History
| 2026 | N/A | N/A | N/A | N/A | N/A |
| 2025 | $926,731 | $525,000 | $0 | $1,451,731 | $1,451,731 |
| 2024 | $894,117 | $525,000 | $0 | $1,419,117 | $1,419,117 |
| 2023 | $904,988 | $500,000 | $0 | $1,404,988 | $1,404,988 |
| 2022 | $829,302 | $450,000 | $0 | $1,279,302 | $1,279,302 |
| 2021 | $729,722 | $250,000 | $0 | $979,722 | $979,722 |
| 2020 | $712,311 | $250,000 | $0 | $962,311 | $962,311 |
| 2019 | $646,883 | $300,000 | $0 | $946,883 | $946,883 |
| 2018 | $552,554 | $250,000 | $0 | $802,554 | $802,554 |
| 2017 | $555,760 | $250,000 | $0 | $805,760 | $805,760 |
| 2016 | $562,456 | $250,000 | $0 | $812,456 | $812,456 |
| 2015 | $569,153 | $250,000 | $0 | $819,153 | $819,153 |
| 2014 | $575,849 | $250,000 | $0 | $825,849 | $825,849 |
| 2013 | $582,543 | $220,736 | $0 | $803,279 | $803,279 |
| 2012 | $590,617 | $220,736 | $0 | $811,353 | $811,353 |
| 2011 | $597,202 | $220,736 | $0 | $817,938 | $817,938 |
| 2010 | $656,254 | $220,736 | $0 | $876,990 | $876,990 |
| 2009 | $655,662 | $312,864 | $0 | $968,526 | $968,526 |
| 2008 | $663,911 | $312,864 | $0 | $976,775 | $976,775 |
| 2007 | $509,496 | $312,864 | $0 | $822,360 | $822,360 |
Deed and Sales History
| 1 | 05/21/2025 | QCD | Quit Claim Deed | HUGHES, OISIN MICHAEL | PACIFIC OCEAN VIEW, LLC | | | $0.00 | 63675 | 4586555 |
| 2 | 06/29/2020 | WD | Warranty Deed | NUNN CO-TTEE, MICHAEL RAY | HUGHES, OISIN MICHAEL | | | $960,000.00 | 43626 | 4490372 |
| 3 | 04/27/2018 | QCD | Quit Claim Deed | NUNN, MICHAEL RAY | NUNN CO-TTEE, MICHAEL RAY | | | $0.00 | 34000 | 4443954 |
| 4 | 02/22/2006 | WD | Warranty Deed | WILLIAMS, JOHN M | NUNN, MICHAEL RAY | | | $850,000.00 | 60848 | 4163361 |
| 5 | 04/22/2003 | QCD | Quit Claim Deed | GRECO, PATRICIA A | WILLIAMS, JOHN M | | | $0.00 | 31914 | 4058025 |
| 6 | 04/01/1997 | ESTSEPPROP | Establish Separate Property | GRECO, PATRICIA A | GRECO, PATRICIA A | | | $0.00 | 71314 | 97005938 |
| 7 | 01/01/1995 | WD | Warranty Deed | TUNNEY, GENE L | GRECO, PATRICIA A | | | $75,000.00 | 50215 | 9500098 |
| 8 | 10/01/1989 | WD | Warranty Deed | HOVENIER, PETER J | TUNNEY, GENE L | | | $38,450.00 | 94772 | 89015526 |
| 9 | 09/01/1981 | WD | Warranty Deed | Unknown | HOVENIER, PETER J | | | $117,660.00 | 13037 | 388462 |
Payout Agreement
| No payout information available.. |