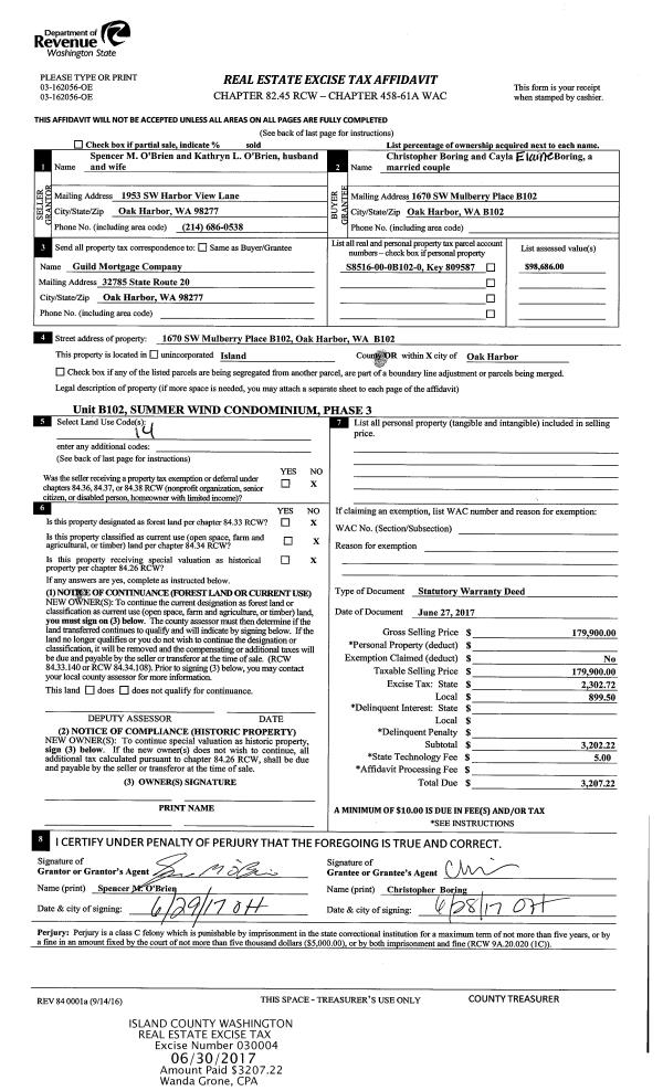
Property
Account |
| Property ID: | 604787 | Abbreviated Legal Description: | Lagoon Pt lot 17-4 SP84-128.23018.S7310-17 V1 SP P374 AF#85009383 Amended SP 53-93 V2 SP P435 AF#93026328 MISC A#65765 |
| Geographic ID: | S7310-00-01017-4 | Agent Code: | |
| Type: | Real | | |
| Tax Area: | 320 - APPRAISER-Cpvl Schl Dist, Special Dist, improved & less than 1 acre | Land Use Code | 11 |
| Open Space: | N | DFL | N |
| Historic Property: | N | Remodel Property: | N |
| Multi-Family Redevelopment: | N | | |
| Township: | | Section: | |
| Range: | |
Location |
| Address: | 3443 MARINE VIEW DR GREENBANK, WA 98253 | Mapsco: | |
| Neighborhood: | Cycle 3 | Map ID: | 388 |
| Neighborhood CD: | 3 |
Owner |
| Name: | BREWER, WILLIAM S | Owner ID: | 279511 |
| Mailing Address: | THERESA D WILLIAMS-BREWER 3443 MARINE VIEW DR GREENBANK, WA 98253 | % Ownership: | 100.0000000000% |
| | | Exemptions: | |
Taxes and Assessment Details
Values
| (+) Improvement Homesite Value: | + | $0 | |
| (+) Improvement Non-Homesite Value: | + | $361,613 | |
| (+) Land Homesite Value: | + | $0 | |
| (+) Land Non-Homesite Value: | + | $370,000 | |
| (+) Curr Use (HS): | + | $0 | $0 |
| (+) Curr Use (NHS): | + | $0 | $0 |
| | | -------------------------- | |
| (=) Market Value: | = | $731,613 | |
| (–) Productivity Loss: | – | $0 | |
| | | -------------------------- | |
| (=) Subtotal: | = | $731,613 | |
| (+) Senior Appraised Value: | + | $0 | |
| (+) Non-Senior Appraised Value: | + | $731,613 | |
| | | -------------------------- | |
| (=) Total Appraised Value: | = | $731,613 | |
| (–) Senior Exemption Loss: | – | $0 | |
| (–) Exemption Loss: | – | $0 | |
| | | -------------------------- | |
| (=) Taxable Value: | = | $731,613 | |
Taxing Jurisdiction
| Owner: | BREWER, WILLIAM S | | |
| % Ownership: | 100.0000000000% | | |
| Total Value: | $731,613 | | |
| Tax Area: | 320 - APPRAISER-Cpvl Schl Dist, Special Dist, improved & less than 1 acre |
| CF | Conservation Futures | 0.0316035091 | $731,613 | $731,613 | $23.12 | | |
| CEM2 | Cemetery #2 | 0.0095056933 | $731,613 | $731,613 | $6.95 | | |
| FIRE5 | Fire & Rescue Dist #5 C Whidbey GEN | 1.2008080668 | $731,613 | $731,613 | $878.53 | | |
| FIRE5BOND | Fire & Rescue Dist #5 C Whidbey BOND | 0.1400090713 | $731,613 | $731,613 | $102.43 | | |
| HOBOND | Hospital BOND | 0.1910887512 | $731,613 | $731,613 | $139.80 | | |
| HOGEN | Hospital GEN | 0.3902502903 | $731,613 | $731,613 | $285.51 | | |
| CE | County Current Expense | 0.3708482477 | $731,613 | $731,613 | $271.32 | | |
| CR | County Roads | 0.4584763726 | $731,613 | $731,613 | $335.43 | | |
| ISLANDEMS | Hospital GEN (EMS) | 0.5000000000 | $731,613 | $731,613 | $365.81 | | |
| LIB | Library Sno-Isle GEN | 0.3153421757 | $731,613 | $731,613 | $230.71 | | |
| LIBCAP | Library Sno-Isle BOND (Cap Fac Imp Area) | 0.0543427938 | $731,613 | $731,613 | $39.76 | | |
| POCOUP | Port of Coupeville GEN | 0.1093371703 | $731,613 | $731,613 | $79.99 | | |
| POCOUPIDD | Port of Coupeville IDD | 0.3409740022 | $731,613 | $731,613 | $249.46 | | |
| COUPSDTECH | School 204 CP (TECH) | 0.7545480007 | $731,613 | $731,613 | $552.04 | | |
| SCH204MO | School 204 Enrichment | 0.6716186034 | $731,613 | $731,613 | $491.36 | | |
| ST | State School | 1.3035497053 | $731,613 | $731,613 | $953.69 | | |
| ST2 | State School Part 2 | 0.8169543533 | $731,613 | $731,613 | $597.69 | | |
| | Total Tax Rate: | 7.6592568070 | | | | | |
| | | | | Taxes w/Current Exemptions: | $5,603.60 | | |
| | | | | Taxes w/o Exemptions: | $5,603.60 | | |
Improvement / Building
| Improvement #1: | RESIDENTIAL | State Code: | Y | 1627.3 sqft | Value: | $361,613 |
| Bathrooms: | 1.5 | Bedrooms: | 3 | | Ceiling: | BEAM PAINTED | Cooling: | HEAT PUMP/CONV/V | | Exterior Wall/Cover: | WOOD SIDING | Floor Covering: | HARDWOOD/CARP 20-80 | | Floor Structure: | WOOD W/SUBFLOOR | Foundation: | CONCRETE | | Interior Finish: | DRYWALL PAINT | Plumbing Fixture Cnt: | 12 | | Roof Slope: | 4" IN 12" | Roof Structure/Cover: | BEAM ASPHALT |
|
| | Type | Description | Class CD | Sub Class CD | Year Built | Area |
| | BAS | BASE/MAIN FLOOR | 4 | 0 | 1998 | 1451.3 |
| | AGR | ATTACHED GARAGE | 4 | 0 | 1998 | 552.0 |
| | OWP | OPEN WOOD PORCH W/STEPS | 4 | 0 | 1998 | 104.0 |
| | OWP | OPEN WOOD PORCH W/STEPS | 4 | 0 | 1998 | 426.6 |
| | LOF | LOFT | 4 | 0 | 1998 | 176.0 |
Sketch
Property Image
Land
| 1 | 16 | AC (00.51-01.00) | 0.0000 | 0.00 | 0.00 | 0.00 | 1.00 | $370,000 | $0 |
Roll Value History
| 2026 | N/A | N/A | N/A | N/A | N/A |
| 2025 | $361,613 | $370,000 | $0 | $731,613 | $731,613 |
| 2024 | $360,805 | $370,000 | $0 | $730,805 | $730,805 |
| 2023 | $361,101 | $370,000 | $0 | $731,101 | $731,101 |
| 2022 | $331,003 | $360,000 | $0 | $691,003 | $691,003 |
| 2021 | $291,332 | $260,000 | $0 | $551,332 | $551,332 |
| 2020 | $283,258 | $260,000 | $0 | $543,258 | $543,258 |
| 2019 | $204,787 | $220,000 | $0 | $424,787 | $424,787 |
| 2018 | $205,387 | $190,000 | $0 | $395,387 | $395,387 |
| 2017 | $164,986 | $180,000 | $0 | $344,986 | $344,986 |
| 2016 | $167,047 | $100,000 | $0 | $267,047 | $267,047 |
| 2015 | $169,109 | $100,000 | $0 | $269,109 | $269,109 |
| 2014 | $171,172 | $85,000 | $0 | $256,172 | $256,172 |
| 2013 | $174,344 | $131,750 | $0 | $306,094 | $306,094 |
| 2012 | $176,407 | $131,750 | $0 | $308,157 | $308,157 |
| 2011 | $178,469 | $155,000 | $0 | $333,469 | $333,469 |
| 2010 | $186,054 | $155,000 | $0 | $341,054 | $341,054 |
| 2009 | $193,979 | $170,000 | $0 | $363,979 | $363,979 |
| 2008 | $196,258 | $260,000 | $0 | $456,258 | $456,258 |
| 2007 | $167,100 | $250,000 | $0 | $417,100 | $417,100 |
Deed and Sales History
| 1 | 04/11/2017 | WD | Warranty Deed | HOLMES, BRIAN / CAROLE | BREWER, WILLIAM S | | | $453,000.00 | 28935 | 4420964 |
| 2 | 12/01/1991 | WD | Warranty Deed | LANDIS, DAVID L | HOLMES, BRIAN H | | | $67,500.00 | 14324 | 91018826 |
| 3 | 09/01/1989 | WD | Warranty Deed | TODD, FRANK | LANDIS, DAVID L | | | $40,225.00 | 94062 | 89013440 |
| 4 | 09/01/1988 | WD | Warranty Deed | LARKIN, JOHN J | TODD, FRANK | | | $11,000.00 | 82978 | 88011153 |
| 5 | 04/01/1986 | QCD | Quit Claim Deed | LARKIN, JOHN J | LARKIN, JOHN J | | | $0.00 | 61248 | 86005862 |
| 6 | 12/01/1984 | QCD | Quit Claim Deed | Unknown | LARKIN, JOHN J | | | $0.00 | 43548 | 84006532 |
Payout Agreement
| No payout information available.. |