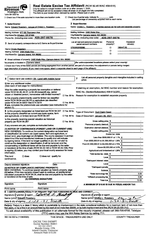
Property
Account |
| Property ID: | 604858 | Abbreviated Legal Description: | LOT 7 SP 82-33.32905.503-5230 V1 SP P355 AF#85007357 |
| Geographic ID: | R32905-532-4810 | Agent Code: | |
| Type: | Real | | |
| Tax Area: | 712 - APPRAISER-S Whid Schl Dist, outside Langley, improved, greater than 1 acre | Land Use Code | 11 |
| Open Space: | N | DFL | N |
| Historic Property: | N | Remodel Property: | N |
| Multi-Family Redevelopment: | N | | |
| Township: | 29 | Section: | 05 |
| Range: | R3 |
Location |
| Address: | 4826 S AQUILA DR LANGLEY, WA 98260 | Mapsco: | |
| Neighborhood: | Cycle 4 | Map ID: | 736 |
| Neighborhood CD: | 4 |
Owner |
| Name: | NEIS, PAUL A | Owner ID: | 17233 |
| Mailing Address: | STEPHANIE M MADSEN-NEIS 4856 AQUILA DR LANGLEY, WA 98260 | % Ownership: | 100.0000000000% |
| | | Exemptions: | |
Taxes and Assessment Details
Values
| (+) Improvement Homesite Value: | + | $0 | |
| (+) Improvement Non-Homesite Value: | + | $406,574 | |
| (+) Land Homesite Value: | + | $0 | |
| (+) Land Non-Homesite Value: | + | $310,000 | |
| (+) Curr Use (HS): | + | $0 | $0 |
| (+) Curr Use (NHS): | + | $0 | $0 |
| | | -------------------------- | |
| (=) Market Value: | = | $716,574 | |
| (–) Productivity Loss: | – | $0 | |
| | | -------------------------- | |
| (=) Subtotal: | = | $716,574 | |
| (+) Senior Appraised Value: | + | $0 | |
| (+) Non-Senior Appraised Value: | + | $716,574 | |
| | | -------------------------- | |
| (=) Total Appraised Value: | = | $716,574 | |
| (–) Senior Exemption Loss: | – | $0 | |
| (–) Exemption Loss: | – | $0 | |
| | | -------------------------- | |
| (=) Taxable Value: | = | $716,574 | |
Taxing Jurisdiction
| Owner: | NEIS, PAUL A | | |
| % Ownership: | 100.0000000000% | | |
| Total Value: | $716,574 | | |
| Tax Area: | 712 - APPRAISER-S Whid Schl Dist, outside Langley, improved, greater than 1 acre |
| CF | Conservation Futures | 0.0316035091 | $716,574 | $716,574 | $22.65 | | |
| FIRE3 | Fire & Rescue Dist #3 S Whidbey GEN | 1.2004855531 | $716,574 | $716,574 | $860.24 | | |
| HOBOND | Hospital BOND | 0.1910887512 | $716,574 | $716,574 | $136.93 | | |
| HOGEN | Hospital GEN | 0.3902502903 | $716,574 | $716,574 | $279.64 | | |
| CE | County Current Expense | 0.3708482477 | $716,574 | $716,574 | $265.74 | | |
| CR | County Roads | 0.4584763726 | $716,574 | $716,574 | $328.53 | | |
| ISLANDEMS | Hospital GEN (EMS) | 0.5000000000 | $716,574 | $716,574 | $358.29 | | |
| LIB | Library Sno-Isle GEN | 0.3153421757 | $716,574 | $716,574 | $225.97 | | |
| PORTWHID | Port of S Whidbey GEN | 0.1094540357 | $716,574 | $716,574 | $78.43 | | |
| SCH206BOND | School 206 BOND | 0.3161759235 | $716,574 | $716,574 | $226.56 | | |
| SCH206MO | School 206 Enrichment | 0.4547169547 | $716,574 | $716,574 | $325.84 | | |
| ST | State School | 1.3035497053 | $716,574 | $716,574 | $934.09 | | |
| ST2 | State School Part 2 | 0.8169543533 | $716,574 | $716,574 | $585.41 | | |
| SWHIDPRBD | P & R S Whidbey BOND | 0.0152817568 | $716,574 | $716,574 | $10.95 | | |
| SWHIDPRBD2 | P & R S Whidbey BOND2 | 0.0138911264 | $716,574 | $716,574 | $9.95 | | |
| SWHIDPRMT | P & R S Whidbey GEN | 0.2053334452 | $716,574 | $716,574 | $147.14 | | |
| | Total Tax Rate: | 6.6934522006 | | | | | |
| | | | | Taxes w/Current Exemptions: | $4,796.36 | | |
| | | | | Taxes w/o Exemptions: | $4,796.36 | | |
Improvement / Building
| Improvement #1: | RESIDENTIAL | State Code: | Y | 1852.0 sqft | Value: | $406,574 |
| Bathrooms: | 3 | Bedrooms: | 2 | | Ceiling: | DRYWALL PAINTED | Exterior Wall/Cover: | WOOD SIDING | | Floor Covering: | HARDWOOD/CARP 60-40 | Floor Structure: | WOOD W/SUBFLOOR | | Foundation: | CONCRETE | Heating: | FHA GAS | | Interior Finish: | DRYWALL PAINT | Plumbing Fixture Cnt: | 12 | | Roof Slope: | 4" IN 12" | Roof Structure/Cover: | CJ ASPHALT |
|
| | Type | Description | Class CD | Sub Class CD | Year Built | Area |
| | BAS | BASE/MAIN FLOOR | 3 | 0 | 1994 | 1212.0 |
| | UPS | UPPER STORY | 3 | 0 | 1994 | 640.0 |
| | OWP | OPEN WOOD PORCH W/STEPS | 3 | 0 | 1994 | 292.0 |
| | OWC | OPEN WOOD PORCH W/STEPS/ROOF/C | 3 | 0 | 1994 | 56.0 |
| | DGR | DETACHED GARAGE | 3 | 0 | 1994 | 1680.0 |
Sketch
Property Image
Land
| 1 | 18 | AC (02.01-03.00) | 0.0000 | 0.00 | 0.00 | 0.00 | 1.00 | $310,000 | $0 |
Roll Value History
| 2026 | N/A | N/A | N/A | N/A | N/A |
| 2025 | $406,574 | $310,000 | $0 | $716,574 | $716,574 |
| 2024 | $411,458 | $300,000 | $0 | $711,458 | $711,458 |
| 2023 | $416,341 | $330,000 | $0 | $746,341 | $746,341 |
| 2022 | $381,420 | $270,000 | $0 | $651,420 | $651,420 |
| 2021 | $335,530 | $190,000 | $0 | $525,530 | $525,530 |
| 2020 | $315,543 | $190,000 | $0 | $505,543 | $505,543 |
| 2019 | $234,722 | $240,000 | $0 | $474,722 | $474,722 |
| 2018 | $235,402 | $180,000 | $0 | $415,402 | $415,402 |
| 2017 | $180,568 | $180,000 | $0 | $360,568 | $360,568 |
| 2016 | $167,207 | $125,000 | $0 | $292,207 | $292,207 |
| 2015 | $150,395 | $100,000 | $0 | $250,395 | $250,395 |
| 2014 | $146,044 | $95,000 | $0 | $241,044 | $241,044 |
| 2013 | $147,829 | $95,000 | $0 | $242,829 | $242,829 |
| 2012 | $149,617 | $97,750 | $0 | $247,367 | $247,367 |
| 2011 | $151,405 | $115,000 | $0 | $266,405 | $266,405 |
| 2010 | $155,047 | $115,000 | $0 | $270,047 | $270,047 |
| 2009 | $161,699 | $155,000 | $0 | $316,699 | $316,699 |
| 2008 | $160,867 | $205,700 | $0 | $366,567 | $366,567 |
| 2007 | $162,868 | $205,700 | $0 | $368,568 | $368,568 |
Deed and Sales History
| 1 | 05/03/2001 | QCD | Quit Claim Deed | NEIS, PAUL | NEIS, PAUL A | | | $0.00 | 11617 | 20031885 |
| 2 | 09/01/1993 | WD | Warranty Deed | COURTNEY, CRAIG B | NEIS, PAUL | | | $44,000.00 | 33484 | 93018083 |
| 3 | 12/01/1989 | WD | Warranty Deed | GUNNAR, KEITH | COURTNEY, CRAIG B | | | $22,000.00 | 95824 | 89018705 |
| 4 | 04/01/1982 | QCD | Quit Claim Deed | Unknown | GUNNAR, KEITH | | | $0.00 | 32636 | 414903 |
Payout Agreement
| No payout information available.. |