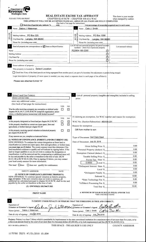
Property
Account |
| Property ID: | 605125 | Abbreviated Legal Description: | KIMBALL TREE LOT 5 |
| Geographic ID: | S7276-00-00005-0 | Agent Code: | |
| Type: | Real | | |
| Tax Area: | 100 - APPRAISER-OH Schl Dist, in OH | Land Use Code | 11 |
| Open Space: | N | DFL | N |
| Historic Property: | N | Remodel Property: | N |
| Multi-Family Redevelopment: | N | | |
| Township: | | Section: | |
| Range: | |
Location |
| Address: | 221 SW JUDSON DR OAK HARBOR, WA 98277 | Mapsco: | |
| Neighborhood: | Cycle 1 | Map ID: | 92 |
| Neighborhood CD: | 1 |
Owner |
| Name: | JENKINS, DONALD W | Owner ID: | 285361 |
| Mailing Address: | ERIKA R JENKINS 221 SW JUDSON DR OAK HARBOR, WA 98277 | % Ownership: | 100.0000000000% |
| | | Exemptions: | |
Taxes and Assessment Details
Values
| (+) Improvement Homesite Value: | + | $0 | |
| (+) Improvement Non-Homesite Value: | + | $353,931 | |
| (+) Land Homesite Value: | + | $0 | |
| (+) Land Non-Homesite Value: | + | $190,000 | |
| (+) Curr Use (HS): | + | $0 | $0 |
| (+) Curr Use (NHS): | + | $0 | $0 |
| | | -------------------------- | |
| (=) Market Value: | = | $543,931 | |
| (–) Productivity Loss: | – | $0 | |
| | | -------------------------- | |
| (=) Subtotal: | = | $543,931 | |
| (+) Senior Appraised Value: | + | $0 | |
| (+) Non-Senior Appraised Value: | + | $543,931 | |
| | | -------------------------- | |
| (=) Total Appraised Value: | = | $543,931 | |
| (–) Senior Exemption Loss: | – | $0 | |
| (–) Exemption Loss: | – | $0 | |
| | | -------------------------- | |
| (=) Taxable Value: | = | $543,931 | |
Taxing Jurisdiction
| Owner: | JENKINS, DONALD W | | |
| % Ownership: | 100.0000000000% | | |
| Total Value: | $543,931 | | |
| Tax Area: | 100 - APPRAISER-OH Schl Dist, in OH |
| CF | Conservation Futures | 0.0316035091 | $543,931 | $543,931 | $17.19 | | |
| CEM1 | Cemetery #1 | 0.0040320932 | $543,931 | $543,931 | $2.19 | | |
| COH | City of Oak Harbor | 2.3001546061 | $543,931 | $543,931 | $1,251.13 | | |
| OAKBOND | City of Oak Harbor BOND | 0.1926904192 | $543,931 | $543,931 | $104.81 | | |
| HOBOND | Hospital BOND | 0.1910887512 | $543,931 | $543,931 | $103.94 | | |
| HOGEN | Hospital GEN | 0.3902502903 | $543,931 | $543,931 | $212.27 | | |
| CE | County Current Expense | 0.3708482477 | $543,931 | $543,931 | $201.72 | | |
| ISLANDEMS | Hospital GEN (EMS) | 0.5000000000 | $543,931 | $543,931 | $271.97 | | |
| LIB | Library Sno-Isle GEN | 0.3153421757 | $543,931 | $543,931 | $171.52 | | |
| NWHIDPRMT | P & R N Whidbey GEN | 0.2004466701 | $543,931 | $543,931 | $109.03 | | |
| SCH201MO | School 201 Enrichment | 1.8559231640 | $543,931 | $543,931 | $1,009.49 | | |
| ST | State School | 1.3035497053 | $543,931 | $543,931 | $709.04 | | |
| ST2 | State School Part 2 | 0.8169543533 | $543,931 | $543,931 | $444.37 | | |
| | Total Tax Rate: | 8.4728839852 | | | | | |
| | | | | Taxes w/Current Exemptions: | $4,608.67 | | |
| | | | | Taxes w/o Exemptions: | $4,608.67 | | |
Improvement / Building
| Improvement #1: | RESIDENTIAL | State Code: | Y | 2318.0 sqft | Value: | $353,931 |
| Bathrooms: | 3 | Bedrooms: | 3 | | Ceiling: | DRYWALL PAINTED | Exterior Wall/Cover: | WOOD SIDING | | Floor Covering: | HARDWOOD/CARP 60-40 | Floor Structure: | WOOD W/SUBFLOOR | | Foundation: | CONCRETE | Heating: | FHA GAS | | Interior Finish: | DRYWALL PAINT | Plumbing Fixture Cnt: | 12 | | Roof Slope: | 8" IN 12" | Roof Structure/Cover: | CJ WOOD SHAKES |
|
| | Type | Description | Class CD | Sub Class CD | Year Built | Area |
| | BAS | BASE/MAIN FLOOR | 3 | 0 | 1985 | 1190.0 |
| | AGR | ATTACHED GARAGE | 3 | 0 | 1985 | 420.0 |
| | UPS | UPPER STORY | 3 | 0 | 1985 | 888.0 |
| | OWP | OPEN WOOD PORCH W/STEPS | 3 | 0 | 1985 | 40.0 |
| | OWP | OPEN WOOD PORCH W/STEPS | 3 | 0 | 1985 | 204.0 |
| | UPH | HALF STORY | 3 | 0 | 1985 | 240.0 |
Sketch
Property Image
Land
| 1 | 14 | SQ (08001-12000) | 0.0000 | 0.00 | 0.00 | 0.00 | 1.00 | $190,000 | $0 |
Roll Value History
| 2026 | N/A | N/A | N/A | N/A | N/A |
| 2025 | $353,931 | $190,000 | $0 | $543,931 | $543,931 |
| 2024 | $358,514 | $180,000 | $0 | $538,514 | $538,514 |
| 2023 | $353,931 | $190,000 | $0 | $543,931 | $543,931 |
| 2022 | $324,636 | $180,000 | $0 | $504,636 | $504,636 |
| 2021 | $285,906 | $120,000 | $0 | $405,906 | $405,906 |
| 2020 | $279,127 | $100,000 | $0 | $379,127 | $379,127 |
| 2019 | $215,588 | $150,000 | $0 | $365,588 | $365,588 |
| 2018 | $216,250 | $130,000 | $0 | $346,250 | $346,250 |
| 2017 | $213,893 | $110,000 | $0 | $323,893 | $323,893 |
| 2016 | $216,568 | $90,000 | $0 | $306,568 | $306,568 |
| 2015 | $219,241 | $70,000 | $0 | $289,241 | $289,241 |
| 2014 | $221,915 | $55,000 | $0 | $276,915 | $276,915 |
| 2013 | $224,588 | $55,000 | $0 | $279,588 | $279,588 |
| 2012 | $227,261 | $60,000 | $0 | $287,261 | $287,261 |
| 2011 | $224,345 | $50,000 | $0 | $274,345 | $274,345 |
| 2010 | $234,034 | $50,000 | $0 | $284,034 | $284,034 |
| 2009 | $243,795 | $60,000 | $0 | $303,795 | $303,795 |
| 2008 | $221,714 | $78,000 | $0 | $299,714 | $299,714 |
| 2007 | $224,403 | $78,000 | $0 | $302,403 | $302,403 |
Deed and Sales History
| 1 | 05/25/2018 | WD | Warranty Deed | SOLUM, ANNA MELISSA | JENKINS, DONALD W | | | $398,000.00 | 34445 | 4445834 |
| 2 | 09/01/2006 | WD | Warranty Deed | FANSLOW, BRETT A | SOLUM, ANNA MELISSA | | | $375,000.00 | 63866 | 4181133 |
| 3 | 01/13/2005 | WD | Warranty Deed | HOGAN, JOHN A | FANSLOW, BRETT A | | | $260,000.00 | 50327 | 4124224 |
| 4 | 01/01/1989 | WD | Warranty Deed | MILLER, WILLIAM H | HOGAN, JOHN A | | | $127,900.00 | 90299 | 89001065 |
| 5 | 07/01/1985 | WD | Warranty Deed | ISLAND, ALASKA D | MILLER, WILLIAM H | | | $29,500.00 | 52130 | 85008347 |
| 6 | 01/01/1900 | OTHER | Other - Misc. Documents | Unknown | ISLAND, ALASKA D | | | $0.00 | 43527 | 84006387 |
Payout Agreement
| No payout information available.. |