Property
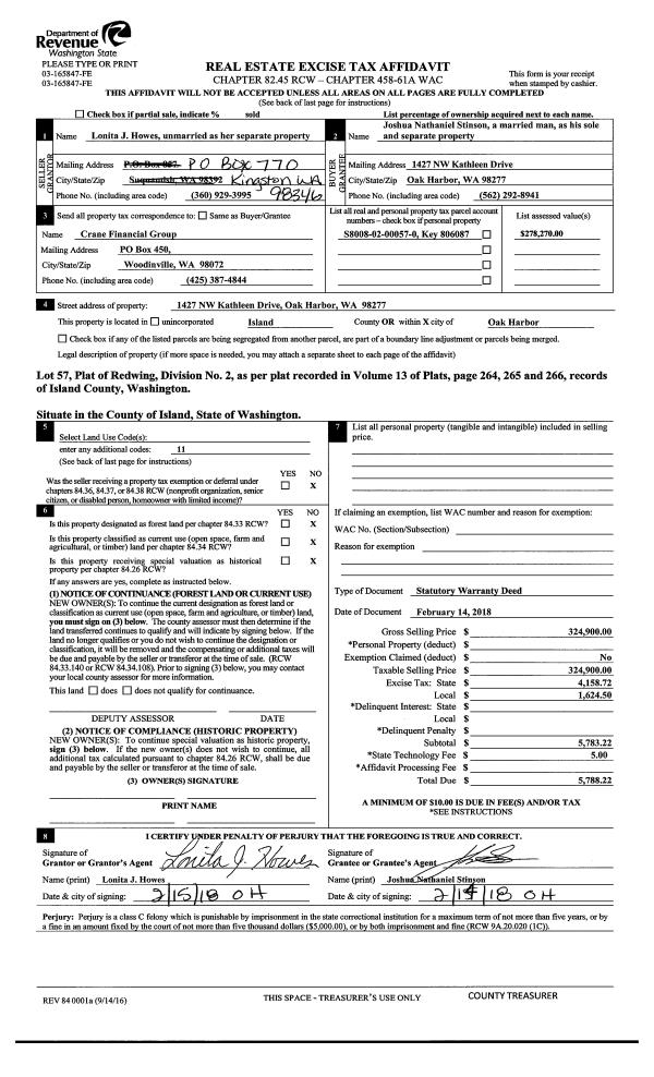
Account |
| Property ID: | 60515 | Abbreviated Legal Description: | 2.5700 Acres ins Section 09s Township 30s Range R2s LOT D BLC AF#4540223;s |
| Geographic ID: | R23009-004-0940 | Agent Code: | |
| Type: | Real | | |
| Tax Area: | 312 - APPRAISER-Cpvl Schl Dist, outside Cpvl, improved, greater than 1 acre | Land Use Code | 11 |
| Open Space: | N | DFL | N |
| Historic Property: | N | Remodel Property: | N |
| Multi-Family Redevelopment: | N | | |
| Township: | 30 | Section: | 09 |
| Range: | R2 |
Location |
| Address: | 24842 SR525 GREENBANK, WA 98253 | Mapsco: | |
| Neighborhood: | Cycle 3 | Map ID: | 367 |
| Neighborhood CD: | 3 |
Owner |
| Name: | KAREN SCHWEERS COOK & | Owner ID: | 283712 |
| Mailing Address: | DONOVAN J COOK REVOCABLE TRUST 512 GERONA RD STANFORD, CA 94305-8449 | % Ownership: | 100.0000000000% |
| | | Exemptions: | |
Taxes and Assessment Details
Values
| (+) Improvement Homesite Value: | + | $0 | |
| (+) Improvement Non-Homesite Value: | + | $321,301 | |
| (+) Land Homesite Value: | + | $0 | |
| (+) Land Non-Homesite Value: | + | $701,650 | |
| (+) Curr Use (HS): | + | $0 | $0 |
| (+) Curr Use (NHS): | + | $0 | $0 |
| | | -------------------------- | |
| (=) Market Value: | = | $1,022,951 | |
| (–) Productivity Loss: | – | $0 | |
| | | -------------------------- | |
| (=) Subtotal: | = | $1,022,951 | |
| (+) Senior Appraised Value: | + | $0 | |
| (+) Non-Senior Appraised Value: | + | $1,022,951 | |
| | | -------------------------- | |
| (=) Total Appraised Value: | = | $1,022,951 | |
| (–) Senior Exemption Loss: | – | $0 | |
| (–) Exemption Loss: | – | $0 | |
| | | -------------------------- | |
| (=) Taxable Value: | = | $1,022,951 | |
Taxing Jurisdiction
| Owner: | KAREN SCHWEERS COOK & | | |
| % Ownership: | 100.0000000000% | | |
| Total Value: | $1,022,951 | | |
| Tax Area: | 312 - APPRAISER-Cpvl Schl Dist, outside Cpvl, improved, greater than 1 acre |
| CF | Conservation Futures | 0.0316035091 | $1,022,951 | $1,022,951 | $32.33 | | |
| CEM2 | Cemetery #2 | 0.0095056933 | $1,022,951 | $1,022,951 | $9.72 | | |
| FIRE5 | Fire & Rescue Dist #5 C Whidbey GEN | 1.2008080668 | $1,022,951 | $1,022,951 | $1,228.37 | | |
| FIRE5BOND | Fire & Rescue Dist #5 C Whidbey BOND | 0.1400090713 | $1,022,951 | $1,022,951 | $143.22 | | |
| HOBOND | Hospital BOND | 0.1910887512 | $1,022,951 | $1,022,951 | $195.47 | | |
| HOGEN | Hospital GEN | 0.3902502903 | $1,022,951 | $1,022,951 | $399.21 | | |
| CE | County Current Expense | 0.3708482477 | $1,022,951 | $1,022,951 | $379.36 | | |
| CR | County Roads | 0.4584763726 | $1,022,951 | $1,022,951 | $469.00 | | |
| ISLANDEMS | Hospital GEN (EMS) | 0.5000000000 | $1,022,951 | $1,022,951 | $511.48 | | |
| LIB | Library Sno-Isle GEN | 0.3153421757 | $1,022,951 | $1,022,951 | $322.58 | | |
| LIBCAP | Library Sno-Isle BOND (Cap Fac Imp Area) | 0.0543427938 | $1,022,951 | $1,022,951 | $55.59 | | |
| POCOUP | Port of Coupeville GEN | 0.1093371703 | $1,022,951 | $1,022,951 | $111.85 | | |
| POCOUPIDD | Port of Coupeville IDD | 0.3409740022 | $1,022,951 | $1,022,951 | $348.80 | | |
| COUPSDTECH | School 204 CP (TECH) | 0.7545480007 | $1,022,951 | $1,022,951 | $771.87 | | |
| SCH204MO | School 204 Enrichment | 0.6716186034 | $1,022,951 | $1,022,951 | $687.03 | | |
| ST | State School | 1.3035497053 | $1,022,951 | $1,022,951 | $1,333.47 | | |
| ST2 | State School Part 2 | 0.8169543533 | $1,022,951 | $1,022,951 | $835.70 | | |
| | Total Tax Rate: | 7.6592568070 | | | | | |
| | | | | Taxes w/Current Exemptions: | $7,835.05 | | |
| | | | | Taxes w/o Exemptions: | $7,835.05 | | |
Improvement / Building
| Improvement #1: | RESIDENTIAL | State Code: | Y | 2194.5 sqft | Value: | $321,301 |
| Bathrooms: | 1 | Bedrooms: | 3 | | Ceiling: | ACOUSTIC FURRED | Exterior Wall/Cover: | WOOD SIDING | | Floor Covering: | CARPET/VINYL 80-20 | Floor Structure: | WOOD W/SUBFLOOR | | Foundation: | CONCRETE | Heating: | BASEBOARD ELECTRIC | | Interior Finish: | DRYWALL PAINT | Plumbing Fixture Cnt: | 6 | | Roof Slope: | 8" IN 12" | Roof Structure/Cover: | CJ ASPHALT |
|
| | Type | Description | Class CD | Sub Class CD | Year Built | Area |
| | BAS | BASE/MAIN FLOOR | 3 | 0 | 1940 | 1337.7 |
| | ATF | ATTIC FINISHED | 3 | 0 | 1940 | 396.0 |
| | DWN | DOWNSTAIRS LIVING AREA | 3 | 0 | 1940 | 856.8 |
| | OP2 | OPEN PORCH W/STEPS | 3 | 0 | 1940 | 42.5 |
| | OWP | OPEN WOOD PORCH W/STEPS | 3 | 0 | 1940 | 390.5 |
| | OWR | OPEN WOOD PORCH W/STEPS/ROOF | 3 | 0 | 1940 | 123.6 |
| | DGR | DETACHED GARAGE | 3 | 0 | 1940 | 648.0 |
Sketch
Property Image
Land
| 1 | HB | HIGH BLUFF | 2.5700 | 111949.20 | 165.00 | 0.00 | 1.00 | $700,000 | $0 |
| 2 | 55 | TIDES | 0.0000 | 0.00 | 165.00 | 0.00 | 1.00 | $1,650 | $0 |
Roll Value History
| 2026 | N/A | N/A | N/A | N/A | N/A |
| 2025 | $321,301 | $701,650 | $0 | $1,022,951 | $1,022,951 |
| 2024 | $332,770 | $701,650 | $0 | $1,034,420 | $1,034,420 |
| 2023 | $337,310 | $676,650 | $0 | $1,013,960 | $1,013,960 |
| 2022 | $309,297 | $551,650 | $0 | $860,947 | $860,947 |
| 2021 | $285,237 | $451,650 | $0 | $736,887 | $736,887 |
| 2020 | $278,560 | $401,650 | $0 | $680,210 | $680,210 |
| 2019 | $105,627 | $451,650 | $0 | $557,277 | $557,277 |
| 2018 | $106,068 | $400,000 | $0 | $506,068 | $506,068 |
| 2017 | $106,859 | $351,650 | $0 | $458,509 | $458,509 |
| 2016 | $108,614 | $351,650 | $0 | $460,264 | $460,264 |
| 2015 | $110,371 | $351,650 | $0 | $462,021 | $462,021 |
| 2014 | $112,129 | $351,650 | $0 | $463,779 | $463,779 |
| 2013 | $98,278 | $453,692 | $0 | $551,970 | $551,970 |
| 2012 | $100,036 | $453,692 | $0 | $553,728 | $553,728 |
| 2011 | $101,794 | $453,692 | $0 | $555,486 | $555,486 |
| 2010 | $116,297 | $453,692 | $0 | $569,989 | $569,989 |
| 2009 | $119,382 | $604,372 | $0 | $723,754 | $723,754 |
| 2008 | $121,555 | $428,896 | $0 | $550,451 | $550,451 |
| 2007 | $120,964 | $374,335 | $0 | $495,299 | $495,299 |
Deed and Sales History
| 1 | 04/20/2022 | QCD | Quit Claim Deed | COOLIDGE, MARSHA | KAREN SCHWEERS COOK & | | | $0.00 | 53367 | 4546338 |
| 2 | 11/28/2017 | SPWARDEED | Special Warranty Deed | COOK, KAREN S & DONOVAN J | KAREN SCHWEERS COOK & | | | $0.00 | 32745 | 4438170 |
| 3 | 07/01/1988 | WD | Warranty Deed | COOK, KAREN S | COOK, KAREN S | | | $98,600.00 | 82358 | 88008936 |
| 4 | 07/01/1988 | QCD | Quit Claim Deed | HOOVER, CLAYTON Q | COOK, KAREN S | | | $0.00 | 82360 | 88008940 |
| 5 | 01/01/1900 | OTHER | Other - Misc. Documents | Unknown | HOOVER, CLAYTON Q | | | $0.00 | 0 | 0 |
Payout Agreement
| No payout information available.. |