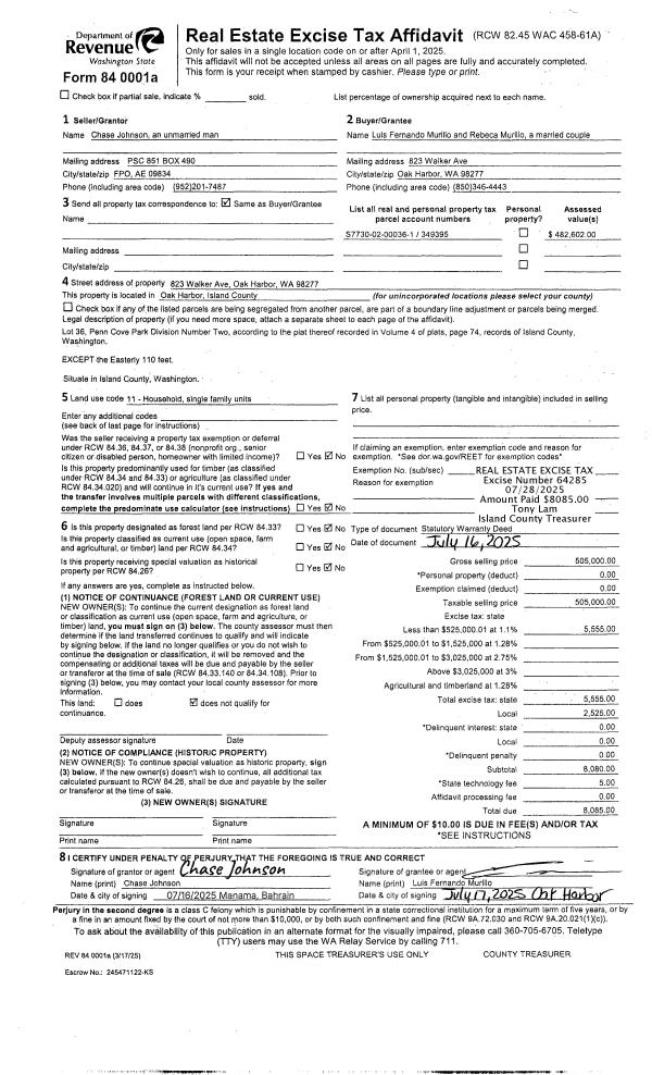
Property
Account |
| Property ID: | 605848 | Abbreviated Legal Description: | 1973 NEW YORKER 12X60 VIN# 7858 TPO $95211 |
| Geographic ID: | M914000000480 | Agent Code: | |
| Type: | Mobile Home | | |
| Tax Area: | 110 - APPRAISER-OH Schl Dist, outside OH, improved & 1 acre or less | Land Use Code | 11 |
| Open Space: | N | DFL | N |
| Historic Property: | N | Remodel Property: | N |
| Multi-Family Redevelopment: | N | | |
| Township: | | Section: | |
| Range: | |
Location |
| Address: | 34938 SR20 # 48 OAK HARBOR, WA 98277 | Mapsco: | |
| Neighborhood: | Cycle 6 | Map ID: | |
| Neighborhood CD: | 6 |
Owner |
| Name: | HAGER, CATHERINE | Owner ID: | 314100 |
| Mailing Address: | 34938 SR 20 TRLR 48 OAK HARBOR, WA 98277 | % Ownership: | 100.0000000000% |
| | | Exemptions: | |
Taxes and Assessment Details
Values
| (+) Improvement Homesite Value: | + | $0 | |
| (+) Improvement Non-Homesite Value: | + | $1,915 | |
| (+) Land Homesite Value: | + | $0 | |
| (+) Land Non-Homesite Value: | + | $0 | |
| (+) Curr Use (HS): | + | $0 | $0 |
| (+) Curr Use (NHS): | + | $0 | $0 |
| | | -------------------------- | |
| (=) Market Value: | = | $1,915 | |
| (–) Productivity Loss: | – | $0 | |
| | | -------------------------- | |
| (=) Subtotal: | = | $1,915 | |
| (+) Senior Appraised Value: | + | $0 | |
| (+) Non-Senior Appraised Value: | + | $1,915 | |
| | | -------------------------- | |
| (=) Total Appraised Value: | = | $1,915 | |
| (–) Senior Exemption Loss: | – | $0 | |
| (–) Exemption Loss: | – | $0 | |
| | | -------------------------- | |
| (=) Taxable Value: | = | $1,915 | |
Taxing Jurisdiction
| Owner: | HAGER, CATHERINE | | |
| % Ownership: | 100.0000000000% | | |
| Total Value: | $1,915 | | |
| Tax Area: | 110 - APPRAISER-OH Schl Dist, outside OH, improved & 1 acre or less |
| CF | Conservation Futures | 0.0316035091 | $1,915 | $1,915 | $0.06 | | |
| CEM1 | Cemetery #1 | 0.0040320932 | $1,915 | $1,915 | $0.01 | | |
| FIRE2 | Fire & Rescue Dist #2 N Whidbey GEN | 0.5475949600 | $1,915 | $1,915 | $1.05 | | |
| HOBOND | Hospital BOND | 0.1910887512 | $1,915 | $1,915 | $0.37 | | |
| HOGEN | Hospital GEN | 0.3902502903 | $1,915 | $1,915 | $0.75 | | |
| CE | County Current Expense | 0.3708482477 | $1,915 | $1,915 | $0.71 | | |
| CR | County Roads | 0.4584763726 | $1,915 | $1,915 | $0.88 | | |
| ISLANDEMS | Hospital GEN (EMS) | 0.5000000000 | $1,915 | $1,915 | $0.96 | | |
| LIB | Library Sno-Isle GEN | 0.3153421757 | $1,915 | $1,915 | $0.60 | | |
| NWHIDPRMT | P & R N Whidbey GEN | 0.2004466701 | $1,915 | $1,915 | $0.38 | | |
| SCH201MO | School 201 Enrichment | 1.8559231640 | $1,915 | $1,915 | $3.55 | | |
| ST | State School | 1.3035497053 | $1,915 | $1,915 | $2.50 | | |
| ST2 | State School Part 2 | 0.8169543533 | $1,915 | $1,915 | $1.56 | | |
| | Total Tax Rate: | 6.9861102925 | | | | | |
| | | | | Taxes w/Current Exemptions: | $13.38 | | |
| | | | | Taxes w/o Exemptions: | $13.38 | | |
Improvement / Building
| Improvement #1: | MANUFACTURED HOME | State Code: | Y | 720.0 sqft | Value: | $1,915 |
| Bathrooms: | 0 | Bedrooms: | 0 | | Ceiling: | PLASTER PAINTED | Cooling: | EVAP NO DUCT | | Exterior Wall/Cover: | VINYL | Floor Covering: | CARPET 100% | | Floor Structure: | SLAB ON GRADE | Foundation: | SLAB | | Heating: | FHA ELECTRIC | Interior Finish: | PLASTER | | Plumbing Fixture Cnt: | 1 | Roof Slope: | FLAT | | Roof Structure/Cover: | CJ ALUMINIUM HEAVY |   |   |
|
Sketch
Property Image
Land
No land segments exist for this property.
Roll Value History
| 2026 | N/A | N/A | N/A | N/A | N/A |
| 2025 | $1,915 | $0 | $0 | $1,915 | $1,915 |
| 2024 | $2,106 | $0 | $0 | $2,106 | $2,106 |
| 2023 | $3,330 | $0 | $0 | $3,330 | $3,330 |
| 2022 | $2,513 | $0 | $0 | $2,513 | $2,513 |
| 2021 | $2,185 | $0 | $0 | $2,185 | $0 |
| 2020 | $2,333 | $0 | $0 | $2,333 | $0 |
| 2019 | $2,005 | $0 | $0 | $2,005 | $0 |
| 2018 | $2,089 | $0 | $0 | $2,089 | $0 |
| 2017 | $2,256 | $0 | $0 | $2,256 | $0 |
| 2016 | $3,528 | $0 | $0 | $3,528 | $0 |
| 2015 | $3,676 | $0 | $0 | $3,676 | $0 |
| 2014 | $3,970 | $0 | $0 | $3,970 | $0 |
| 2013 | $4,117 | $0 | $0 | $4,117 | $0 |
| 2012 | $4,411 | $0 | $0 | $4,411 | $0 |
| 2011 | $4,558 | $0 | $0 | $4,558 | $4,558 |
| 2010 | $5,801 | $0 | $0 | $5,801 | $5,801 |
| 2009 | $5,997 | $0 | $0 | $5,997 | $5,997 |
| 2008 | $6,163 | $0 | $0 | $6,163 | $6,163 |
| 2007 | $6,306 | $0 | $0 | $6,306 | $6,306 |
Deed and Sales History
| 1 | 04/29/2021 | MANHOME | Manufactured Home | VAN NOORT, EDNA | HAGER, CATHERINE | | | $0.00 | 61473 | |
| 2 | 06/01/2011 | OTHER | Other - Misc. Documents | SMITH, AMBERRAE | VAN NOORT, EDNA | | | $0.00 | 7989 | |
| 3 | 05/04/2009 | OTHER | Other - Misc. Documents | CANUPP, FAY | SMITH, AMBERRAE | | | $0.00 | 90977 | 0 |
| 4 | 04/01/1996 | OTHER | Other - Misc. Documents | GALKA, LAINIE M | CANUPP, FAY | | | $500.00 | 61332 | 0 |
| 5 | 03/01/1994 | OTHER | Other - Misc. Documents | MACH, PERRI L | GALKA, LAINIE M | | | $5,000.00 | 41137 | 0 |
| 6 | 12/01/1993 | OTHER | Other - Misc. Documents | MACH, PERRI L | MACH, PERRI L | | | $0.00 | 34766 | 0 |
| 7 | 04/01/1987 | OTHER | Other - Misc. Documents | INTERWEST, SAVINGS B | MACH, PERRI L | | | $5,000.00 | 70979 | 0 |
| 8 | 09/01/1986 | OTHER | Other - Misc. Documents | KNAPP, NORMAN | INTERWEST, SAVINGS B | | | $0.00 | 62735 | 0 |
| 9 | 11/01/1985 | OTHER | Other - Misc. Documents | Unknown | KNAPP, NORMAN | | | $8,900.00 | 60178 | 0 |
Payout Agreement
| No payout information available.. |