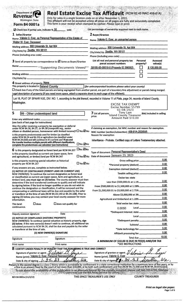
Property
Account |
| Property ID: | 605982 | Abbreviated Legal Description: | LOT 1 SP 84-53.23236.422-0750 V2 SP P21 AF#86003323 |
| Geographic ID: | R23236-422-0620 | Agent Code: | |
| Type: | Real | | |
| Tax Area: | 512 - APPRAISER-Stan/Cam Schl Dist, improved, greater than 1 acre | Land Use Code | 11 |
| Open Space: | N | DFL | N |
| Historic Property: | N | Remodel Property: | N |
| Multi-Family Redevelopment: | N | | |
| Township: | 32 | Section: | 36 |
| Range: | R2 |
Location |
| Address: | 334 SEQUOIA PLACE CAMANO ISLAND, WA 98282 | Mapsco: | |
| Neighborhood: | North Camano | Map ID: | 581 |
| Neighborhood CD: | 06-C |
Owner |
| Name: | STUART, CAROLINE A | Owner ID: | 306792 |
| Mailing Address: | 334 SEQUOIA PL CAMANO ISLAND, WA 98282 | % Ownership: | 100.0000000000% |
| | | Exemptions: | |
Taxes and Assessment Details
Values
| (+) Improvement Homesite Value: | + | $0 | |
| (+) Improvement Non-Homesite Value: | + | $340,317 | |
| (+) Land Homesite Value: | + | $0 | |
| (+) Land Non-Homesite Value: | + | $310,000 | |
| (+) Curr Use (HS): | + | $0 | $0 |
| (+) Curr Use (NHS): | + | $0 | $0 |
| | | -------------------------- | |
| (=) Market Value: | = | $650,317 | |
| (–) Productivity Loss: | – | $0 | |
| | | -------------------------- | |
| (=) Subtotal: | = | $650,317 | |
| (+) Senior Appraised Value: | + | $0 | |
| (+) Non-Senior Appraised Value: | + | $650,317 | |
| | | -------------------------- | |
| (=) Total Appraised Value: | = | $650,317 | |
| (–) Senior Exemption Loss: | – | $0 | |
| (–) Exemption Loss: | – | $0 | |
| | | -------------------------- | |
| (=) Taxable Value: | = | $650,317 | |
Taxing Jurisdiction
| Owner: | STUART, CAROLINE A | | |
| % Ownership: | 100.0000000000% | | |
| Total Value: | $650,317 | | |
| Tax Area: | 512 - APPRAISER-Stan/Cam Schl Dist, improved, greater than 1 acre |
| CF | Conservation Futures | 0.0316035091 | $650,317 | $650,317 | $20.55 | | |
| EMS1 | Fire & Rescue Dist #1 Camano GEN (EMS) | 0.3677864386 | $650,317 | $650,317 | $239.18 | | |
| FIRE1 | Fire & Rescue Dist #1 Camano GEN | 1.2502910536 | $650,317 | $650,317 | $813.09 | | |
| FIRE1BOND | Fire & Rescue Dist #1 Camano BOND | 0.1570001679 | $650,317 | $650,317 | $102.10 | | |
| CE | County Current Expense | 0.3708482477 | $650,317 | $650,317 | $241.17 | | |
| CR | County Roads | 0.4584763726 | $650,317 | $650,317 | $298.15 | | |
| LCIB | Library Sno-Isle BOND (Camano Island) | 0.0396325772 | $650,317 | $650,317 | $25.77 | | |
| LIB | Library Sno-Isle GEN | 0.3153421757 | $650,317 | $650,317 | $205.07 | | |
| SCH205_401 | School 205-401 Enrichment | 1.2698420524 | $650,317 | $650,317 | $825.80 | | |
| SCH205BOND | School 205-401 BOND | 0.9396497583 | $650,317 | $650,317 | $611.07 | | |
| ST | State School | 1.3035497053 | $650,317 | $650,317 | $847.72 | | |
| ST2 | State School Part 2 | 0.8169543533 | $650,317 | $650,317 | $531.28 | | |
| | Total Tax Rate: | 7.3209764117 | | | | | |
| | | | | Taxes w/Current Exemptions: | $4,760.95 | | |
| | | | | Taxes w/o Exemptions: | $4,760.95 | | |
Improvement / Building
| Improvement #1: | RESIDENTIAL | State Code: | Y | 2008.0 sqft | Value: | $340,317 |
| Bathrooms: | 2 | Bedrooms: | 3 | | Ceiling: | DRYWALL PAINTED | Exterior Wall/Cover: | SHINGLE | | Floor Covering: | HARDWOOD/CARP 60-40 | Floor Structure: | WOOD W/SUBFLOOR | | Foundation: | CONCRETE | Heating: | BASEBOARD ELECTRIC | | Interior Finish: | DRYWALL PAINT | Plumbing Fixture Cnt: | 9 | | Roof Slope: | 4" IN 12" | Roof Structure/Cover: | BEAM ALUMINUM HEAVY |
|
| | Type | Description | Class CD | Sub Class CD | Year Built | Area |
| | BAS | BASE/MAIN FLOOR | 3 | 0 | 1975 | 2008.0 |
| | OP1 | OPEN PORCH SLAB | 3 | 0 | 1975 | 480.0 |
| | OWP | OPEN WOOD PORCH W/STEPS | 3 | 0 | 1975 | 860.0 |
| | ENP | ENCLOSED PORCH | 3 | 0 | 1975 | 240.0 |
| | DGR | DETACHED GARAGE | 3 | 0 | 1975 | 768.0 |
| | CPD | OPEN CARPORT DIRT FLOOR | 3 | 0 | 1975 | 384.0 |
Sketch
Property Image
Land
| 1 | 18 | AC (02.01-03.00) | 0.0000 | 0.00 | 0.00 | 0.00 | 1.00 | $310,000 | $0 |
Roll Value History
| 2026 | N/A | N/A | N/A | N/A | N/A |
| 2025 | $340,317 | $310,000 | $0 | $650,317 | $650,317 |
| 2024 | $351,582 | $300,000 | $0 | $651,582 | $651,582 |
| 2023 | $356,076 | $300,000 | $0 | $656,076 | $656,076 |
| 2022 | $306,675 | $260,000 | $0 | $566,675 | $566,675 |
| 2021 | $270,173 | $230,000 | $0 | $500,173 | $500,173 |
| 2020 | $264,310 | $150,000 | $0 | $414,310 | $414,310 |
| 2019 | $202,418 | $190,000 | $0 | $392,418 | $392,418 |
| 2018 | $203,057 | $180,000 | $0 | $383,057 | $383,057 |
| 2017 | $204,333 | $120,000 | $0 | $324,333 | $324,333 |
| 2016 | $173,165 | $120,000 | $0 | $293,165 | $293,165 |
| 2015 | $175,336 | $80,000 | $0 | $255,336 | $255,336 |
| 2014 | $177,506 | $80,000 | $0 | $257,506 | $257,506 |
| 2013 | $179,677 | $80,000 | $0 | $259,677 | $259,677 |
| 2012 | $181,847 | $80,000 | $0 | $261,847 | $261,847 |
| 2011 | $184,017 | $100,000 | $0 | $284,017 | $284,017 |
| 2010 | $183,221 | $100,000 | $0 | $283,221 | $283,221 |
| 2009 | $188,524 | $160,000 | $0 | $348,524 | $348,524 |
| 2008 | $190,949 | $225,280 | $0 | $416,229 | $416,229 |
| 2007 | $193,374 | $225,280 | $0 | $418,654 | $418,654 |
Deed and Sales History
| 1 | 02/29/2024 | 5 | DNU - Marriage License/Name Change | HARSHFIELD, FRANK W. | STUART, CAROLINE A | | | $0.00 | 59339 | 4569972 |
| 2 | 11/30/2022 | QCD | Quit Claim Deed | STUART, CAROLINE A | HARSHFIELD, FRANK W. | | | $0.00 | 55271 | 4554350 |
| 3 | 08/06/2004 | WD | Warranty Deed | NELSON, MICHAEL J | HARSHFIELD, FRANK W | | | $260,000.00 | 43625 | 4109231 |
| 4 | 10/01/1988 | WD | Warranty Deed | GWALTNEY, ROBERT L | NELSON, MICHAEL J | | | $90,000.00 | 83536 | 88013278 |
| 5 | 01/01/1900 | OTHER | Other - Misc. Documents | Unknown | GWALTNEY, ROBERT L | | | $0.00 | 0 | 0 |
Payout Agreement
| No payout information available.. |