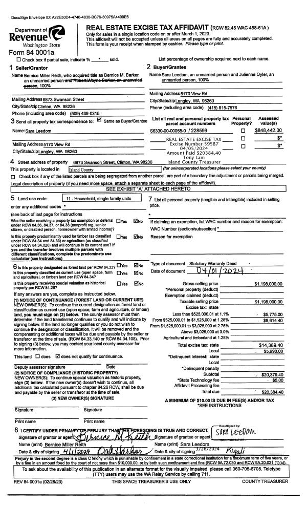
Property
Account |
| Property ID: | 606482 | Abbreviated Legal Description: | WATERSIDE CONDOS APT 7 2.08% INT |
| Geographic ID: | S8381-00-00007-0 | Agent Code: | |
| Type: | Real | | |
| Tax Area: | 100 - APPRAISER-OH Schl Dist, in OH | Land Use Code | 14 |
| Open Space: | N | DFL | N |
| Historic Property: | N | Remodel Property: | N |
| Multi-Family Redevelopment: | N | | |
| Township: | | Section: | |
| Range: | |
Location |
| Address: | 651 SE BAYSHORE DR UNIT B204 OAK HARBOR, WA 98277 | Mapsco: | |
| Neighborhood: | 12*OH-waterside | Map ID: | 86 |
| Neighborhood CD: | 12*OHwtrsd |
Owner |
| Name: | DIBENEDETTO, RICHARD P | Owner ID: | 110343 |
| Mailing Address: | 651 SE BAYSHORE DR, #B-204 OAK HARBOR, WA 98277 | % Ownership: | 100.0000000000% |
| | | Exemptions: | SNR/DSBL |
Taxes and Assessment Details
Values
| (+) Improvement Homesite Value: | + | $252,091 | |
| (+) Improvement Non-Homesite Value: | + | $0 | |
| (+) Land Homesite Value: | + | $70,000 | |
| (+) Land Non-Homesite Value: | + | $0 | |
| (+) Curr Use (HS): | + | $0 | $0 |
| (+) Curr Use (NHS): | + | $0 | $0 |
| | | -------------------------- | |
| (=) Market Value: | = | $322,091 | |
| (–) Productivity Loss: | – | $0 | |
| | | -------------------------- | |
| (=) Subtotal: | = | $322,091 | |
| (+) Senior Appraised Value: | + | $150,290 | |
| (+) Non-Senior Appraised Value: | + | $0 | |
| | | -------------------------- | |
| (=) Total Appraised Value: | = | $150,290 | |
| (–) Senior Exemption Loss: | – | $90,174 | |
| (–) Exemption Loss: | – | $0 | |
| | | -------------------------- | |
| (=) Taxable Value: | = | $60,116 | |
Taxing Jurisdiction
| Owner: | DIBENEDETTO, RICHARD P | | |
| % Ownership: | 100.0000000000% | | |
| Total Value: | $322,091 | | |
| Tax Area: | 100 - APPRAISER-OH Schl Dist, in OH |
| CF | Conservation Futures | 0.0316035091 | $322,091 | $60,116 | $1.90 | | |
| CEM1 | Cemetery #1 | 0.0040320932 | $322,091 | $60,116 | $0.24 | | |
| COH | City of Oak Harbor | 2.3001546061 | $322,091 | $60,116 | $138.28 | | |
| OAKBOND | City of Oak Harbor BOND | 0.1926904192 | $322,091 | $60,116 | $11.58 | | |
| HOBOND | Hospital BOND | 0.0000000000 | $322,091 | $0 | $0.00 | | |
| HOGEN | Hospital GEN | 0.3902502903 | $322,091 | $60,116 | $23.46 | | |
| CE | County Current Expense | 0.3708482477 | $322,091 | $60,116 | $22.29 | | |
| ISLANDEMS | Hospital GEN (EMS) | 0.5000000000 | $322,091 | $60,116 | $30.06 | | |
| LIB | Library Sno-Isle GEN | 0.3153421757 | $322,091 | $60,116 | $18.96 | | |
| NWHIDPRMT | P & R N Whidbey GEN | 0.2004466701 | $322,091 | $60,116 | $12.05 | | |
| SCH201MO | School 201 Enrichment | 0.0000000000 | $322,091 | $0 | $0.00 | | |
| ST | State School | 1.3035497053 | $322,091 | $60,116 | $78.36 | | |
| ST2 | State School Part 2 | 0.0000000000 | $322,091 | $0 | $0.00 | | |
| | Total Tax Rate: | 5.6089177167 | | | | | |
| | | | | Taxes w/Current Exemptions: | $337.18 | | |
| | | | | Taxes w/o Exemptions: | $2,729.05 | | |
Improvement / Building
| Improvement #1: | RESIDENTIAL | State Code: | Y | 1192.2 sqft | Value: | $252,091 |
| Bathrooms: | 1.75 | Bedrooms: | 2 | | Ceiling: | DRYWALL PAINTED | Exterior Wall/Cover: | WOOD SIDING | | Floor Covering: | CARPET/VINYL 80-20 | Floor Structure: | WOOD W/SUBFLOOR | | Foundation: | CONCRETE | Heating: | FHA GAS | | Interior Finish: | DRYWALL PAINT | Plumbing Fixture Cnt: | 9 | | Roof Slope: | 5" IN 12" | Roof Structure/Cover: | CJ ASPHALT |
|
| | Type | Description | Class CD | Sub Class CD | Year Built | Area |
| | BAS | BASE/MAIN FLOOR | 3 | 0 | 1986 | 1192.2 |
| | OWP | OPEN WOOD PORCH W/STEPS | 3 | 0 | 1986 | 144.9 |
| | DGR | DETACHED GARAGE | 3 | 0 | 1986 | 0.0 |
| | UTY | STORAGE/UTILITY | 3 | 0 | 1986 | 18.0 |
| | oELV | ELEVATOR | 3 | 0 | 1986 | 0.0 |
| | oPV1 | PV/ASPH 2" | 3 | 0 | 1986 | 0.0 |
| | OP1 | OPEN PORCH SLAB | 3 | 0 | 1986 | 0.0 |
| | OWP | OPEN WOOD PORCH W/STEPS | 3 | 0 | 1986 | 0.0 |
Sketch
Property Image
Land
| 1 | 61 | MULTIPLE RESIDENCES | 0.0000 | 1458.00 | 0.00 | 0.00 | 1.00 | $70,000 | $0 |
Roll Value History
| 2026 | N/A | N/A | N/A | N/A | N/A |
| 2025 | $252,091 | $70,000 | $0 | $322,091 | $60,116 |
| 2024 | $254,907 | $70,000 | $0 | $324,907 | $60,116 |
| 2023 | $246,462 | $70,000 | $0 | $316,462 | $60,116 |
| 2022 | $227,400 | $80,000 | $0 | $307,400 | $60,116 |
| 2021 | $202,280 | $45,000 | $0 | $247,280 | $60,116 |
| 2020 | $197,215 | $30,000 | $0 | $227,215 | $60,116 |
| 2019 | $145,118 | $65,000 | $0 | $210,118 | $60,116 |
| 2018 | $145,492 | $65,000 | $0 | $210,492 | $60,116 |
| 2017 | $127,305 | $19,435 | $0 | $146,740 | $58,696 |
| 2016 | $129,080 | $19,435 | $0 | $148,515 | $59,406 |
| 2015 | $130,855 | $19,435 | $0 | $150,290 | $60,116 |
| 2014 | $132,627 | $19,435 | $0 | $152,062 | $152,062 |
| 2013 | $108,647 | $19,435 | $0 | $128,082 | $128,082 |
| 2012 | $108,647 | $19,435 | $0 | $128,082 | $128,082 |
| 2011 | $108,647 | $19,435 | $0 | $128,082 | $128,082 |
| 2010 | $108,516 | $19,435 | $0 | $127,951 | $127,951 |
| 2009 | $146,337 | $34,628 | $0 | $180,965 | $180,965 |
| 2008 | $144,607 | $51,526 | $0 | $196,133 | $196,133 |
| 2007 | $146,337 | $51,526 | $0 | $197,863 | $197,863 |
Deed and Sales History
| 1 | 10/03/2009 | WD | Warranty Deed | ZYLSTRA, WESLEY R | DIBENEDETTO, RICHARD P | | | $161,000.00 | 92383 | 4261524 |
| 2 | 03/01/1986 | WD | Warranty Deed | PROMINENT, PROPERTIES | ZYLSTRA, WESLEY R | | | $93,500.00 | 60514 | 86002549 |
| 3 | 01/01/1900 | OTHER | Other - Misc. Documents | Unknown | PROMINENT, PROPERTIES | | | $0.00 | 50876 | 85003643 |
Payout Agreement
| No payout information available.. |