| 1 | 06/09/2025 | WD | Warranty Deed | CEDAR PARK WAREHOUSE & STORAGE, LLC | THE MARITAL TRUST | | | $335,000.00 | 63761 | 4586872 |
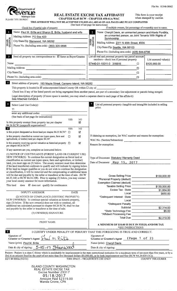
| 2 | 01/29/2019 | WD | Warranty Deed | NORTON, DOLORES E | CEDAR PARK WAREHOUSE & STORAGE, LLC | | | $245,000.00 | 37471 | 4458613 |
| 3 | 08/27/2018 | QCD | Quit Claim Deed | NORTON, WILLIAM G | NORTON, DOLORES E | | | $0.00 | 35843 | 4451482 |
| 4 | 08/27/2018 | QCD | Quit Claim Deed | NORTON TRUSTEE, WILLIAM G | NORTON, WILLIAM G | | | $0.00 | 35842 | 4451481 |
| 5 | 12/14/2016 | TRUSTEED | Trustee's Deed | NORTON, WILLIAM G | NORTON TRUSTEE, WILLIAM G | | | $0.00 | 27588 | 4414498 |
| 6 | 12/14/2016 | TRUSTEED | Trustee's Deed | NORTON TRUSTEE, WILLIAM G | NORTON, WILLIAM G | | | $0.00 | 27587 | 4414496 |
| 7 | 08/23/2012 | WD | Warranty Deed | JUDGE, KAREN L | NORTON TRUSTEE, WILLIAM G | | | $142,000.00 | 8794 | 4322618 |
| 8 | 06/16/2009 | PRD | Personal Representatives Deed | VAN ROOY, IRENE E | JUDGE, KAREN L | | | $0.00 | 91336 | 4253784 |
| 9 | 03/15/1999 | ESTSEPPROP | Establish Separate Property | VAN, ROOY, L | VAN ROOY, IRENE E | | | $0.00 | 690965 | 9900664 |
| 10 | 12/01/1985 | WD | Warranty Deed | PROMINENT, PROPERTIES | VAN, ROOY, L | | | $97,500.00 | 53498 | 85013838 |
| 11 | 01/01/1900 | OTHER | Other - Misc. Documents | Unknown | PROMINENT, PROPERTIES | | | $0.00 | 50876 | 85003643 |