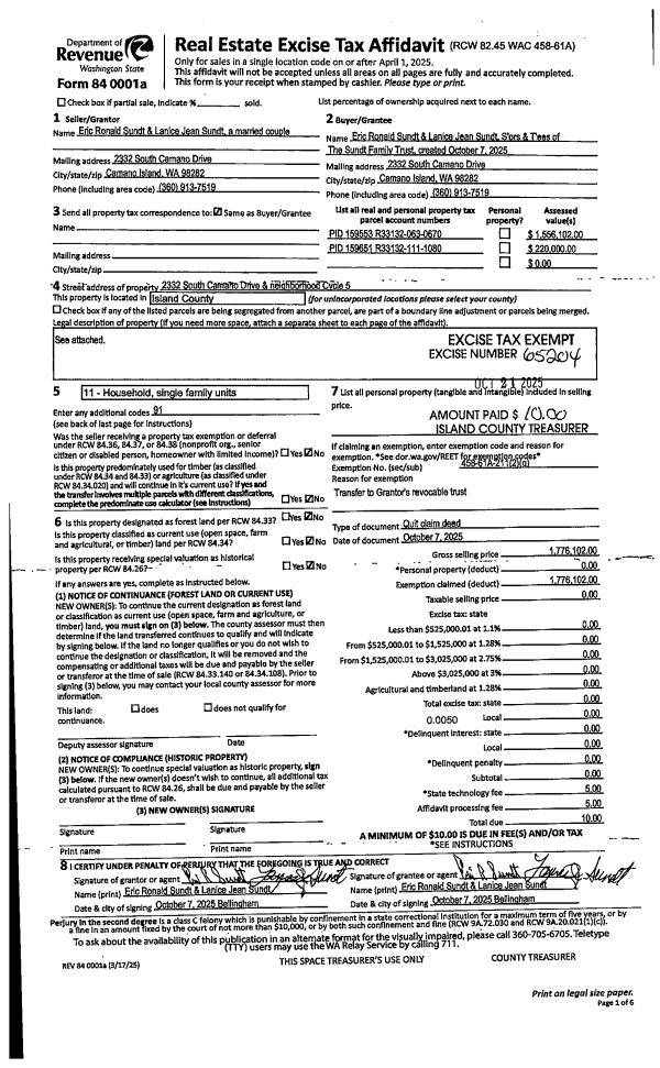
Property
Account |
| Property ID: | 60711 | Abbreviated Legal Description: | 11 - N165' OF SE SE SEC 8 LY E ST HWY & PT GL1 SEC 9 DESC: BG PT WLN SEC 9 1155'N OF SWCR GL1 E TO SHLN HOLMES HARBOR NLY ALG SD SHLN TP E OF NECR SE SE SEC 8 W TO NECR SE SE SEC 8 SLY TPB EX PT TO ST OF WA AF#96003953 |
| Geographic ID: | R23009-122-0280 | Agent Code: | |
| Type: | Real | | |
| Tax Area: | 312 - APPRAISER-Cpvl Schl Dist, outside Cpvl, improved, greater than 1 acre | Land Use Code | 11 |
| Open Space: | N | DFL | N |
| Historic Property: | N | Remodel Property: | N |
| Multi-Family Redevelopment: | N | | |
| Township: | 30 | Section: | 09 |
| Range: | R2 |
Location |
| Address: | 25076 SR525 GREENBANK, WA 98253 | Mapsco: | |
| Neighborhood: | Cycle 3 | Map ID: | 367 |
| Neighborhood CD: | 3 |
Owner |
| Name: | GREEN, WILLIAM B / DARLENE A | Owner ID: | 52371 |
| Mailing Address: | 25076 STATE ROUTE 525 GREENBANK, WA 98253-6252 | % Ownership: | 100.0000000000% |
| | | Exemptions: | |
Taxes and Assessment Details
Values
| (+) Improvement Homesite Value: | + | $0 | |
| (+) Improvement Non-Homesite Value: | + | $293,537 | |
| (+) Land Homesite Value: | + | $0 | |
| (+) Land Non-Homesite Value: | + | $700,000 | |
| (+) Curr Use (HS): | + | $0 | $0 |
| (+) Curr Use (NHS): | + | $0 | $0 |
| | | -------------------------- | |
| (=) Market Value: | = | $993,537 | |
| (–) Productivity Loss: | – | $0 | |
| | | -------------------------- | |
| (=) Subtotal: | = | $993,537 | |
| (+) Senior Appraised Value: | + | $0 | |
| (+) Non-Senior Appraised Value: | + | $993,537 | |
| | | -------------------------- | |
| (=) Total Appraised Value: | = | $993,537 | |
| (–) Senior Exemption Loss: | – | $0 | |
| (–) Exemption Loss: | – | $0 | |
| | | -------------------------- | |
| (=) Taxable Value: | = | $993,537 | |
Taxing Jurisdiction
| Owner: | GREEN, WILLIAM B / DARLENE A | | |
| % Ownership: | 100.0000000000% | | |
| Total Value: | $993,537 | | |
| Tax Area: | 312 - APPRAISER-Cpvl Schl Dist, outside Cpvl, improved, greater than 1 acre |
| CF | Conservation Futures | 0.0316035091 | $993,537 | $993,537 | $31.40 | | |
| CEM2 | Cemetery #2 | 0.0095056933 | $993,537 | $993,537 | $9.44 | | |
| FIRE5 | Fire & Rescue Dist #5 C Whidbey GEN | 1.2008080668 | $993,537 | $993,537 | $1,193.05 | | |
| FIRE5BOND | Fire & Rescue Dist #5 C Whidbey BOND | 0.1400090713 | $993,537 | $993,537 | $139.10 | | |
| HOBOND | Hospital BOND | 0.1910887512 | $993,537 | $993,537 | $189.85 | | |
| HOGEN | Hospital GEN | 0.3902502903 | $993,537 | $993,537 | $387.73 | | |
| CE | County Current Expense | 0.3708482477 | $993,537 | $993,537 | $368.45 | | |
| CR | County Roads | 0.4584763726 | $993,537 | $993,537 | $455.51 | | |
| ISLANDEMS | Hospital GEN (EMS) | 0.5000000000 | $993,537 | $993,537 | $496.77 | | |
| LIB | Library Sno-Isle GEN | 0.3153421757 | $993,537 | $993,537 | $313.30 | | |
| LIBCAP | Library Sno-Isle BOND (Cap Fac Imp Area) | 0.0543427938 | $993,537 | $993,537 | $53.99 | | |
| POCOUP | Port of Coupeville GEN | 0.1093371703 | $993,537 | $993,537 | $108.63 | | |
| POCOUPIDD | Port of Coupeville IDD | 0.3409740022 | $993,537 | $993,537 | $338.77 | | |
| COUPSDTECH | School 204 CP (TECH) | 0.7545480007 | $993,537 | $993,537 | $749.67 | | |
| SCH204MO | School 204 Enrichment | 0.6716186034 | $993,537 | $993,537 | $667.28 | | |
| ST | State School | 1.3035497053 | $993,537 | $993,537 | $1,295.12 | | |
| ST2 | State School Part 2 | 0.8169543533 | $993,537 | $993,537 | $811.67 | | |
| | Total Tax Rate: | 7.6592568070 | | | | | |
| | | | | Taxes w/Current Exemptions: | $7,609.73 | | |
| | | | | Taxes w/o Exemptions: | $7,609.73 | | |
Improvement / Building
| Improvement #1: | RESIDENTIAL | State Code: | Y | 2693.1 sqft | Value: | $293,537 |
| Bathrooms: | 1.5 | Bedrooms: | 2 | | Ceiling: | BEAM PAINTED | Exterior Wall/Cover: | SHINGLE | | Floor Covering: | HARDWOOD/CARP 20-80 | Floor Structure: | WOOD W/SUBFLOOR | | Foundation: | CONCRETE | Heating: | WALL HEAT ELECTRIC | | Interior Finish: | DRYWALL PAINT | Plumbing Fixture Cnt: | 6 | | Roof Slope: | 6" IN 12" | Roof Structure/Cover: | BEAM WOOD SHAKES |
|
| | Type | Description | Class CD | Sub Class CD | Year Built | Area |
| | BAS | BASE/MAIN FLOOR | 3 | 0 | 1912 | 2041.1 |
| | UPS | UPPER STORY | 3 | 0 | 1912 | 652.0 |
| | OWP | OPEN WOOD PORCH W/STEPS | 3 | 0 | 1912 | 72.3 |
| | OWP | OPEN WOOD PORCH W/STEPS | 3 | 0 | 1912 | 1301.4 |
| | OWR | OPEN WOOD PORCH W/STEPS/ROOF | 3 | 0 | 1912 | 278.9 |
| | OWP | OPEN WOOD PORCH W/STEPS | 3 | 0 | 1912 | 180.0 |
Sketch
Property Image
Land
| 1 | HB | HIGH BLUFF | 2.7800 | 121096.80 | 165.00 | 0.00 | 1.00 | $700,000 | $0 |
Roll Value History
| 2026 | N/A | N/A | N/A | N/A | N/A |
| 2025 | $293,537 | $700,000 | $0 | $993,537 | $993,537 |
| 2024 | $293,056 | $700,000 | $0 | $993,056 | $993,056 |
| 2023 | $297,382 | $675,000 | $0 | $972,382 | $972,382 |
| 2022 | $273,820 | $550,000 | $0 | $823,820 | $823,820 |
| 2021 | $242,069 | $450,000 | $0 | $692,069 | $692,069 |
| 2020 | $238,038 | $400,000 | $0 | $638,038 | $638,038 |
| 2019 | $168,559 | $450,000 | $0 | $618,559 | $618,559 |
| 2018 | $169,269 | $375,000 | $0 | $544,269 | $544,269 |
| 2017 | $170,638 | $350,000 | $0 | $520,638 | $520,638 |
| 2016 | $161,338 | $350,000 | $0 | $511,338 | $511,338 |
| 2015 | $163,983 | $350,000 | $0 | $513,983 | $513,983 |
| 2014 | $166,629 | $350,000 | $0 | $516,629 | $516,629 |
| 2013 | $165,942 | $367,113 | $0 | $533,055 | $533,055 |
| 2012 | $168,661 | $367,113 | $0 | $535,774 | $535,774 |
| 2011 | $172,567 | $367,113 | $0 | $539,680 | $539,680 |
| 2010 | $177,904 | $367,113 | $0 | $545,017 | $545,017 |
| 2009 | $183,262 | $489,483 | $0 | $672,745 | $672,745 |
| 2008 | $186,241 | $406,008 | $0 | $592,249 | $592,249 |
| 2007 | $183,238 | $373,840 | $0 | $557,078 | $557,078 |
Deed and Sales History
| 1 | 01/01/1996 | WD | Warranty Deed | GREEN, WILLIAM B | GREEN, WILLIAM B | | | $5,500.00 | 60740 | 96003953 |
| 2 | 05/01/1993 | QCD | Quit Claim Deed | GREEN, WILLIAM B | GREEN, WILLIAM B | | | $0.00 | 31890 | 93009929 |
| 3 | 07/01/1986 | WD | Warranty Deed | GREEN, WILLIAM B | GREEN, WILLIAM B | | | $92,000.00 | 61837 | 86008633 |
| 4 | 07/01/1986 | WD | Warranty Deed | GALLAGHER, JOHN T | GREEN, WILLIAM B | | | $0.00 | 61987 | 86009359 |
| 5 | 10/01/1980 | TRUSTEED | Trustee's Deed | GALLAGHER, JOHN T | GALLAGHER, JOHN T | | | $100,000.00 | 3338 | 374736 |
| 6 | 10/01/1980 | TRUSTEED | Trustee's Deed | KASMINOFF, SANDRA B | GALLAGHER, JOHN T | | | $100,000.00 | 3338 | 374736 |
| 7 | 03/01/1979 | OTHER | Other - Misc. Documents | Unknown | KASMINOFF, SANDRA B | | | $0.00 | 58564 | 0 |
Payout Agreement
| No payout information available.. |