Property
Account |
| Property ID: | 607276 | Abbreviated Legal Description: | LOT A OH-SP 2-86.13202.137-0060 & 152-0010-11 AF#86002209 TGW & SUB EZ AF#84005086 EX PT TO ST HWY TGW EZ AF#91002278 |
| Geographic ID: | R13202-145-0030 | Agent Code: | |
| Type: | Real | | |
| Tax Area: | 100 - APPRAISER-OH Schl Dist, in OH | Land Use Code | 59 |
| Open Space: | N | DFL | N |
| Historic Property: | N | Remodel Property: | N |
| Multi-Family Redevelopment: | N | | |
| Township: | 32 | Section: | 02 |
| Range: | R1 |
Location |
| Address: | 31370 SR20 OAK HARBOR, WA 98277 | Mapsco: | |
| Neighborhood: | 11cOH-highway 20 | Map ID: | 86 |
| Neighborhood CD: | 11cOHhwy20 |
Owner |
| Name: | EEM INVESTORS LLC | Owner ID: | 287286 |
| Mailing Address: | 2170 SW SCENIC HEIGHTS RD OAK HARBOR, WA 98277 | % Ownership: | 100.0000000000% |
| | | Exemptions: | |
Taxes and Assessment Details
Values
| (+) Improvement Homesite Value: | + | $0 | |
| (+) Improvement Non-Homesite Value: | + | $401,170 | |
| (+) Land Homesite Value: | + | $0 | |
| (+) Land Non-Homesite Value: | + | $435,600 | |
| (+) Curr Use (HS): | + | $0 | $0 |
| (+) Curr Use (NHS): | + | $0 | $0 |
| | | -------------------------- | |
| (=) Market Value: | = | $836,770 | |
| (–) Productivity Loss: | – | $0 | |
| | | -------------------------- | |
| (=) Subtotal: | = | $836,770 | |
| (+) Senior Appraised Value: | + | $0 | |
| (+) Non-Senior Appraised Value: | + | $836,770 | |
| | | -------------------------- | |
| (=) Total Appraised Value: | = | $836,770 | |
| (–) Senior Exemption Loss: | – | $0 | |
| (–) Exemption Loss: | – | $0 | |
| | | -------------------------- | |
| (=) Taxable Value: | = | $836,770 | |
Taxing Jurisdiction
| Owner: | EEM INVESTORS LLC | | |
| % Ownership: | 100.0000000000% | | |
| Total Value: | $836,770 | | |
| Tax Area: | 100 - APPRAISER-OH Schl Dist, in OH |
| CF | Conservation Futures | 0.0316035091 | $836,770 | $836,770 | $26.44 | | |
| CEM1 | Cemetery #1 | 0.0040320932 | $836,770 | $836,770 | $3.37 | | |
| COH | City of Oak Harbor | 2.3001546061 | $836,770 | $836,770 | $1,924.70 | | |
| OAKBOND | City of Oak Harbor BOND | 0.1926904192 | $836,770 | $836,770 | $161.24 | | |
| HOBOND | Hospital BOND | 0.1910887512 | $836,770 | $836,770 | $159.90 | | |
| HOGEN | Hospital GEN | 0.3902502903 | $836,770 | $836,770 | $326.55 | | |
| CE | County Current Expense | 0.3708482477 | $836,770 | $836,770 | $310.31 | | |
| ISLANDEMS | Hospital GEN (EMS) | 0.5000000000 | $836,770 | $836,770 | $418.39 | | |
| LIB | Library Sno-Isle GEN | 0.3153421757 | $836,770 | $836,770 | $263.87 | | |
| NWHIDPRMT | P & R N Whidbey GEN | 0.2004466701 | $836,770 | $836,770 | $167.73 | | |
| SCH201MO | School 201 Enrichment | 1.8559231640 | $836,770 | $836,770 | $1,552.98 | | |
| ST | State School | 1.3035497053 | $836,770 | $836,770 | $1,090.77 | | |
| ST2 | State School Part 2 | 0.8169543533 | $836,770 | $836,770 | $683.60 | | |
| | Total Tax Rate: | 8.4728839852 | | | | | |
| | | | | Taxes w/Current Exemptions: | $7,089.85 | | |
| | | | | Taxes w/o Exemptions: | $7,089.85 | | |
Improvement / Building
| Improvement #1: | COMMERCIAL | State Code: | F1 | 4888.0 sqft | Value: | $401,170 |
| Bathrooms: | 0 | Ceiling: | SUSPENDED | | Exterior Wall/Cover: | STL/ALM/WD OR ST STD | Floor Covering: | COMPOSITION TILE | | Floor Structure: | CONCRETE ON GROUND | Foundation: | SLAB | | Heating: | FHA ELECTRIC | Interior Finish: | RETAIL | | Plumbing Fixture Cnt: | 1 | Roof Structure/Cover: | BEAM BUILT-UP ROCK |
|
| | Type | Description | Class CD | Sub Class CD | Year Built | Area |
| | BAS | BASE/MAIN FLOOR | 2 | 0 | 1986 | 4888.0 |
| | OP1 | OPEN PORCH SLAB | 2 | 0 | 1986 | 448.0 |
| | OP1 | OPEN PORCH SLAB | 2 | 0 | 1986 | 140.0 |
| | oPV1 | PV/ASPH 2" | 2 | 0 | 1986 | 13900.0 |
Sketch
Property Image
Land
| 1 | 68 | COMMERCIAL RETAIL | 0.5000 | 21780.00 | 0.00 | 0.00 | 1.00 | $435,600 | $0 |
Roll Value History
| 2026 | N/A | N/A | N/A | N/A | N/A |
| 2025 | $401,170 | $435,600 | $0 | $836,770 | $836,770 |
| 2024 | $421,615 | $435,600 | $0 | $857,215 | $857,215 |
| 2023 | $251,684 | $435,600 | $0 | $687,284 | $687,284 |
| 2022 | $216,424 | $435,600 | $0 | $652,024 | $652,024 |
| 2021 | $215,924 | $435,600 | $0 | $651,524 | $651,524 |
| 2020 | $215,863 | $435,600 | $0 | $651,463 | $651,463 |
| 2019 | $217,683 | $392,040 | $0 | $609,723 | $609,723 |
| 2018 | $217,400 | $326,700 | $0 | $544,100 | $544,100 |
| 2017 | $229,589 | $544,500 | $0 | $774,089 | $774,089 |
| 2016 | $229,626 | $544,500 | $0 | $774,126 | $774,126 |
| 2015 | $242,506 | $479,160 | $0 | $721,666 | $721,666 |
| 2014 | $248,059 | $716,762 | $0 | $964,821 | $964,821 |
| 2013 | $244,981 | $716,762 | $0 | $961,743 | $961,743 |
| 2012 | $287,357 | $716,762 | $0 | $1,004,119 | $1,004,119 |
| 2011 | $287,357 | $716,762 | $0 | $1,004,119 | $1,004,119 |
| 2010 | $225,366 | $716,762 | $0 | $942,128 | $942,128 |
| 2009 | $238,500 | $1,055,107 | $0 | $1,293,607 | $1,293,607 |
| 2008 | $245,068 | $1,110,560 | $0 | $1,355,628 | $1,355,628 |
| 2007 | $248,352 | $740,373 | $0 | $988,725 | $988,725 |
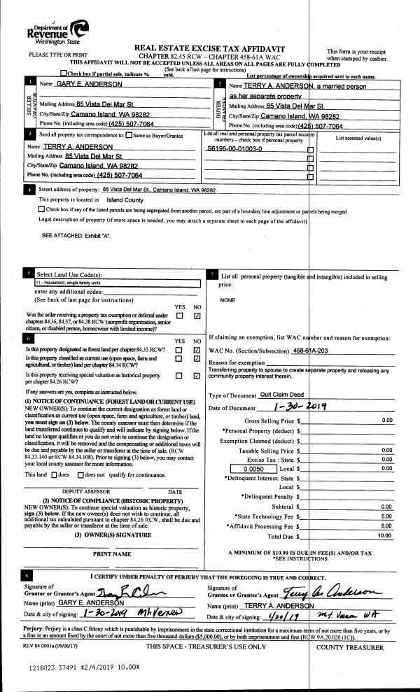
Deed and Sales History
| 1 | 09/04/2018 | QCD | Quit Claim Deed | EEM INVESTORS | EEM INVESTORS LLC | | | $0.00 | 36143 | 4452757 |
| 2 | 03/09/2005 | PRD | Personal Representatives Deed | EEM, INVESTORS | EEM INVESTORS, | | | $0.00 | 51035 | 4128435 |
| 3 | 11/01/1988 | WD | Warranty Deed | EEM, INVESTORS | EEM, INVESTORS | | | $10,669.00 | 83997 | 88014930 |
| 4 | 11/01/1988 | WD | Warranty Deed | EEM, INVESTORS | EEM, INVESTORS | | | $0.00 | 83998 | 88014931 |
| 5 | 08/01/1986 | QCD | Quit Claim Deed | MAYLOR, WESLEY F | EEM, INVESTORS | | | $0.00 | 62411 | 86010898 |
| 6 | 01/01/1986 | EZ | Easement | EEM, INVESTORS | EEM, INVESTORS | | | $0.00 | 60183 | 86001026 |
| 7 | 01/01/1900 | OTHER | Other - Misc. Documents | Unknown | MAYLOR, WESLEY F | | | $0.00 | 41743 | 426070 |
Payout Agreement
| No payout information available.. |