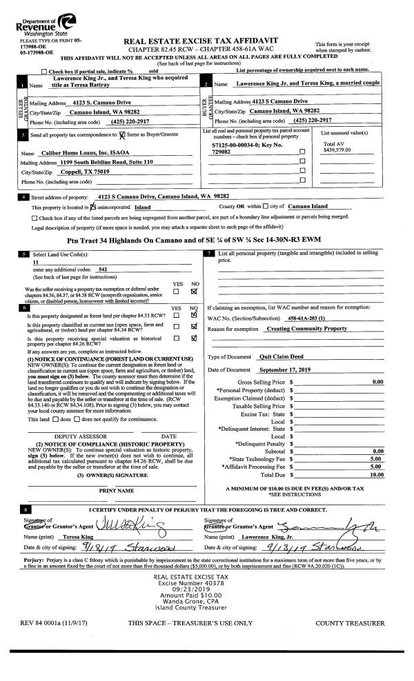
Property
Account |
| Property ID: | 607445 | Abbreviated Legal Description: | LOT 1 SP 83-73.22909.372-1960 V2 SP P1 AF#86000003 |
| Geographic ID: | R22909-388-2110 | Agent Code: | |
| Type: | Real | | |
| Tax Area: | 712 - APPRAISER-S Whid Schl Dist, outside Langley, improved, greater than 1 acre | Land Use Code | 11 |
| Open Space: | N | DFL | N |
| Historic Property: | N | Remodel Property: | N |
| Multi-Family Redevelopment: | N | | |
| Township: | 29 | Section: | 09 |
| Range: | R2 |
Location |
| Address: | 5328 MUTINY BAY RD FREELAND, WA 98249 | Mapsco: | |
| Neighborhood: | Cycle 3 | Map ID: | 307 |
| Neighborhood CD: | 3 |
Owner |
| Name: | CRISWELL, BENJAMIN V | Owner ID: | 258570 |
| Mailing Address: | FALLON M BIRCHFIELD-CRISWELL 5328 MUTINY BAY RD FREELAND, WA 98249 | % Ownership: | 100.0000000000% |
| | | Exemptions: | |
Taxes and Assessment Details
Values
| (+) Improvement Homesite Value: | + | $0 | |
| (+) Improvement Non-Homesite Value: | + | $734,533 | |
| (+) Land Homesite Value: | + | $0 | |
| (+) Land Non-Homesite Value: | + | $350,000 | |
| (+) Curr Use (HS): | + | $0 | $0 |
| (+) Curr Use (NHS): | + | $0 | $0 |
| | | -------------------------- | |
| (=) Market Value: | = | $1,084,533 | |
| (–) Productivity Loss: | – | $0 | |
| | | -------------------------- | |
| (=) Subtotal: | = | $1,084,533 | |
| (+) Senior Appraised Value: | + | $0 | |
| (+) Non-Senior Appraised Value: | + | $1,084,533 | |
| | | -------------------------- | |
| (=) Total Appraised Value: | = | $1,084,533 | |
| (–) Senior Exemption Loss: | – | $0 | |
| (–) Exemption Loss: | – | $0 | |
| | | -------------------------- | |
| (=) Taxable Value: | = | $1,084,533 | |
Taxing Jurisdiction
| Owner: | CRISWELL, BENJAMIN V | | |
| % Ownership: | 100.0000000000% | | |
| Total Value: | $1,084,533 | | |
| Tax Area: | 712 - APPRAISER-S Whid Schl Dist, outside Langley, improved, greater than 1 acre |
| CF | Conservation Futures | 0.0316035091 | $1,084,533 | $1,084,533 | $34.28 | | |
| FIRE3 | Fire & Rescue Dist #3 S Whidbey GEN | 1.2004855531 | $1,084,533 | $1,084,533 | $1,301.97 | | |
| HOBOND | Hospital BOND | 0.1910887512 | $1,084,533 | $1,084,533 | $207.24 | | |
| HOGEN | Hospital GEN | 0.3902502903 | $1,084,533 | $1,084,533 | $423.24 | | |
| CE | County Current Expense | 0.3708482477 | $1,084,533 | $1,084,533 | $402.20 | | |
| CR | County Roads | 0.4584763726 | $1,084,533 | $1,084,533 | $497.23 | | |
| ISLANDEMS | Hospital GEN (EMS) | 0.5000000000 | $1,084,533 | $1,084,533 | $542.27 | | |
| LIB | Library Sno-Isle GEN | 0.3153421757 | $1,084,533 | $1,084,533 | $342.00 | | |
| PORTWHID | Port of S Whidbey GEN | 0.1094540357 | $1,084,533 | $1,084,533 | $118.71 | | |
| SCH206BOND | School 206 BOND | 0.3161759235 | $1,084,533 | $1,084,533 | $342.90 | | |
| SCH206MO | School 206 Enrichment | 0.4547169547 | $1,084,533 | $1,084,533 | $493.16 | | |
| ST | State School | 1.3035497053 | $1,084,533 | $1,084,533 | $1,413.74 | | |
| ST2 | State School Part 2 | 0.8169543533 | $1,084,533 | $1,084,533 | $886.01 | | |
| SWHIDPRBD | P & R S Whidbey BOND | 0.0152817568 | $1,084,533 | $1,084,533 | $16.57 | | |
| SWHIDPRBD2 | P & R S Whidbey BOND2 | 0.0138911264 | $1,084,533 | $1,084,533 | $15.07 | | |
| SWHIDPRMT | P & R S Whidbey GEN | 0.2053334452 | $1,084,533 | $1,084,533 | $222.69 | | |
| | Total Tax Rate: | 6.6934522006 | | | | | |
| | | | | Taxes w/Current Exemptions: | $7,259.28 | | |
| | | | | Taxes w/o Exemptions: | $7,259.28 | | |
Improvement / Building
| Improvement #1: | RESIDENTIAL | State Code: | Y | 2368.7 sqft | Value: | $734,533 |
| Bathrooms: | 3 | Bedrooms: | 4 | | Ceiling: | DRYWALL PAINTED | Cooling: | HEAT PUMP/CONV/V | | Exterior Wall/Cover: | SHINGLE | Floor Covering: | HARDWOOD 100% | | Floor Structure: | WOOD W/SUBFLOOR | Foundation: | CONCRETE | | Interior Finish: | DRYWALL PAINT | Plumbing Fixture Cnt: | 15 | | Roof Slope: | 8" IN 12" | Roof Structure/Cover: | CJ ASPHALT |
|
| | Type | Description | Class CD | Sub Class CD | Year Built | Area |
| | BAS | BASE/MAIN FLOOR | 4 | 0 | 2019 | 1254.5 |
| | AGR | ATTACHED GARAGE | 4 | 0 | 2019 | 751.8 |
| | OWC | OPEN WOOD PORCH W/STEPS/ROOF/C | 4 | 0 | 2019 | 112.9 |
| | OWP | OPEN WOOD PORCH W/STEPS | 4 | 0 | 2019 | 340.0 |
| | OWR | OPEN WOOD PORCH W/STEPS/ROOF | 4 | 0 | 2019 | 96.0 |
| | UPS | UPPER STORY | 4 | 0 | 2019 | 1114.2 |
| | ATU | ATTIC UNFINISHED | 4 | 0 | 2019 | 577.8 |
| | UTY | STORAGE/UTILITY | 4 | 0 | 2021 | 1296.0 |
| | OCP | OPEN CARPORT | 4 | 0 | 2021 | 432.0 |
| | CPD | OPEN CARPORT DIRT FLOOR | 4 | 0 | 2021 | 432.0 |
| | ATF | ATTIC FINISHED | 4 | 0 | 2021 | 774.0 |
Sketch
Property Image
Land
| 1 | 32 | AC (03.01-09.99) | 5.0700 | 0.00 | 0.00 | 0.00 | 1.00 | $350,000 | $0 |
Roll Value History
| 2026 | N/A | N/A | N/A | N/A | N/A |
| 2025 | $734,533 | $350,000 | $0 | $1,084,533 | $1,084,533 |
| 2024 | $740,457 | $340,000 | $0 | $1,080,457 | $1,080,457 |
| 2023 | $746,379 | $320,000 | $0 | $1,066,379 | $1,066,379 |
| 2022 | $700,878 | $260,000 | $0 | $960,878 | $960,878 |
| 2021 | $621,890 | $230,000 | $0 | $851,890 | $851,890 |
| 2020 | $512,846 | $180,000 | $0 | $692,846 | $692,846 |
| 2019 | $387,070 | $230,000 | $0 | $617,070 | $617,070 |
| 2018 | $0 | $85,000 | $0 | $85,000 | $85,000 |
| 2017 | $0 | $75,000 | $0 | $75,000 | $75,000 |
| 2016 | $0 | $140,000 | $0 | $140,000 | $140,000 |
| 2015 | $0 | $126,750 | $0 | $126,750 | $126,750 |
| 2014 | $0 | $126,750 | $0 | $126,750 | $126,750 |
| 2013 | $0 | $126,750 | $0 | $126,750 | $126,750 |
| 2012 | $0 | $126,750 | $0 | $126,750 | $126,750 |
| 2011 | $0 | $126,750 | $0 | $126,750 | $126,750 |
| 2010 | $0 | $126,750 | $0 | $126,750 | $126,750 |
| 2009 | $0 | $147,570 | $0 | $147,570 | $147,570 |
| 2008 | $0 | $161,513 | $0 | $161,513 | $161,513 |
| 2007 | $0 | $161,513 | $0 | $161,513 | $161,513 |
Deed and Sales History
| 1 | 12/07/2017 | WD | Warranty Deed | EAGLESON JR TRUSTEE, JAMES W | CRISWELL, BENJAMIN V | | | $197,000.00 | 32239 | 4435622 |
| 2 | 11/17/2015 | WD | Warranty Deed | EAGLESON JR, JAMES W | EAGLESON JR TRUSTEE, JAMES W | | | | 21874 | 4388361 |
| 3 | 09/11/2003 | WD | Warranty Deed | BRUNS, MARTHA R | EAGLESON JR, JAMES W | | | $161,900.00 | 34209 | 4075757 |
| 4 | 07/01/1996 | WD | Warranty Deed | FRENCH, LISA & | BRUNS, MARTHA R | | | $100,000.00 | 62555 | 96012687 |
| 5 | 12/01/1990 | WD | Warranty Deed | ROUSE, DEREK | FRENCH, LISA & | | | $82,000.00 | 10005 | 91000047 |
| 6 | 02/01/1990 | WD | Warranty Deed | WINDECKER, ROBERT A | ROUSE, DEREK | | | $39,500.00 | 769 | 90002472 |
| 7 | 01/01/1986 | QCD | Quit Claim Deed | Unknown | WINDECKER, ROBERT A | | | $0.00 | 61344 | 86006286 |
Payout Agreement
| No payout information available.. |