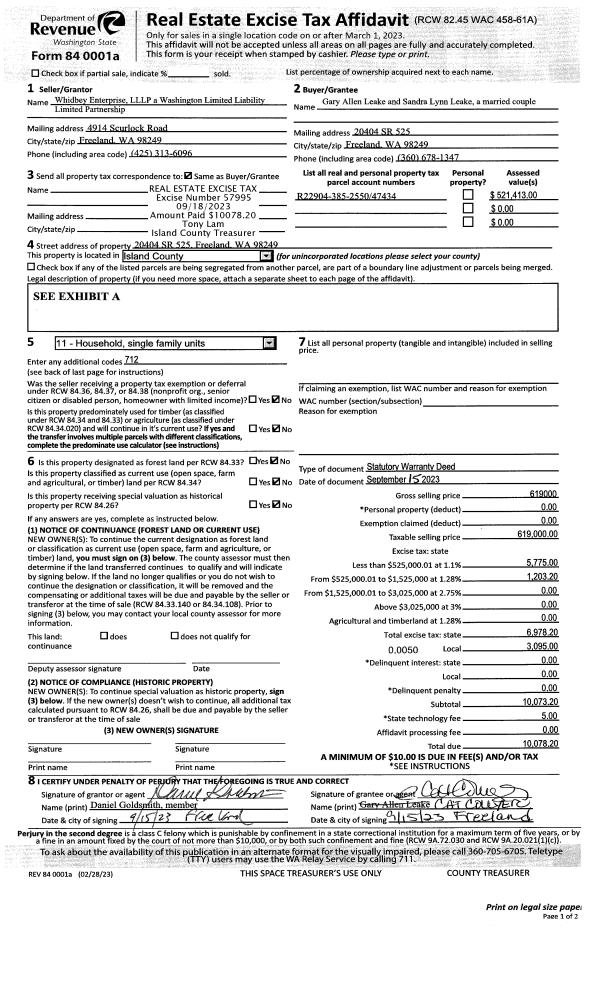
Property
Account |
| Property ID: | 607999 | Abbreviated Legal Description: | PT OF NW NE LY W OF TROXELL RD EX PT LY WITHIN HELDER RD EX PT LY WITHIN SW NW NE EX N/2 TGW NE NE NW EX N20' & E20' EX N/2 SUB EZ FR 494-2310 & 497-2690 |
| Geographic ID: | R23306-475-2350 | Agent Code: | |
| Type: | Real | | |
| Tax Area: | 112 - APPRAISER-OH Schl Dist, outside OH, improved, greater than 1 acre | Land Use Code | 11 |
| Open Space: | N | DFL | N |
| Historic Property: | N | Remodel Property: | N |
| Multi-Family Redevelopment: | N | | |
| Township: | 33 | Section: | 06 |
| Range: | R2 |
Location |
| Address: | 319 E TROXELL RD OAK HARBOR, WA 98277 | Mapsco: | |
| Neighborhood: | Cycle 6 | Map ID: | 588 |
| Neighborhood CD: | 6 |
Owner |
| Name: | BECKER, GRANT W | Owner ID: | 271968 |
| Mailing Address: | KAYLIN E BECKER 319 E TROXELL RD OAK HARBOR, WA 98277 | % Ownership: | 100.0000000000% |
| | | Exemptions: | |
Taxes and Assessment Details
Values
| (+) Improvement Homesite Value: | + | $0 | |
| (+) Improvement Non-Homesite Value: | + | $147,921 | |
| (+) Land Homesite Value: | + | $0 | |
| (+) Land Non-Homesite Value: | + | $300,000 | |
| (+) Curr Use (HS): | + | $0 | $0 |
| (+) Curr Use (NHS): | + | $0 | $0 |
| | | -------------------------- | |
| (=) Market Value: | = | $447,921 | |
| (–) Productivity Loss: | – | $0 | |
| | | -------------------------- | |
| (=) Subtotal: | = | $447,921 | |
| (+) Senior Appraised Value: | + | $0 | |
| (+) Non-Senior Appraised Value: | + | $447,921 | |
| | | -------------------------- | |
| (=) Total Appraised Value: | = | $447,921 | |
| (–) Senior Exemption Loss: | – | $0 | |
| (–) Exemption Loss: | – | $0 | |
| | | -------------------------- | |
| (=) Taxable Value: | = | $447,921 | |
Taxing Jurisdiction
| Owner: | BECKER, GRANT W | | |
| % Ownership: | 100.0000000000% | | |
| Total Value: | $447,921 | | |
| Tax Area: | 112 - APPRAISER-OH Schl Dist, outside OH, improved, greater than 1 acre |
| CF | Conservation Futures | 0.0316035091 | $447,921 | $447,921 | $14.16 | | |
| CEM1 | Cemetery #1 | 0.0040320932 | $447,921 | $447,921 | $1.81 | | |
| FIRE2 | Fire & Rescue Dist #2 N Whidbey GEN | 0.5475949600 | $447,921 | $447,921 | $245.28 | | |
| HOBOND | Hospital BOND | 0.1910887512 | $447,921 | $447,921 | $85.59 | | |
| HOGEN | Hospital GEN | 0.3902502903 | $447,921 | $447,921 | $174.80 | | |
| CE | County Current Expense | 0.3708482477 | $447,921 | $447,921 | $166.11 | | |
| CR | County Roads | 0.4584763726 | $447,921 | $447,921 | $205.36 | | |
| ISLANDEMS | Hospital GEN (EMS) | 0.5000000000 | $447,921 | $447,921 | $223.96 | | |
| LIB | Library Sno-Isle GEN | 0.3153421757 | $447,921 | $447,921 | $141.25 | | |
| NWHIDPRMT | P & R N Whidbey GEN | 0.2004466701 | $447,921 | $447,921 | $89.78 | | |
| SCH201MO | School 201 Enrichment | 1.8559231640 | $447,921 | $447,921 | $831.31 | | |
| ST | State School | 1.3035497053 | $447,921 | $447,921 | $583.89 | | |
| ST2 | State School Part 2 | 0.8169543533 | $447,921 | $447,921 | $365.93 | | |
| | Total Tax Rate: | 6.9861102925 | | | | | |
| | | | | Taxes w/Current Exemptions: | $3,129.23 | | |
| | | | | Taxes w/o Exemptions: | $3,129.23 | | |
Improvement / Building
| Improvement #1: | MANUFACTURED HOME | State Code: | Y | 1098.0 sqft | Value: | $147,921 |
| Bathrooms: | 0 | Bedrooms: | 0 | | Ceiling: | PLASTER PAINTED | Cooling: | EVAP NO DUCT | | Exterior Wall/Cover: | VINYL | Floor Covering: | CARPET 100% | | Floor Structure: | SLAB ON GRADE | Foundation: | SLAB | | Heating: | FHA ELECTRIC | Interior Finish: | PLASTER | | Plumbing Fixture Cnt: | 1 | Roof Slope: | FLAT | | Roof Structure/Cover: | CJ ALUMINIUM HEAVY |   |   |
|
| | Type | Description | Class CD | Sub Class CD | Year Built | Area |
| | BAS | BASE/MAIN FLOOR | 4 | 0 | 1994 | 1098.0 |
| | OWC | OPEN WOOD PORCH W/STEPS/ROOF/C | 4 | 0 | 1994 | 23.0 |
| | oPOL | POLE BARN | 4 | 0 | 1994 | 0.0 |
| | oOBD | Out Buildings | 4 | 0 | 1994 | 0.0 |
Sketch
Property Image
Land
| 1 | 32 | AC (03.01-09.99) | 5.3700 | 0.00 | 0.00 | 0.00 | 1.00 | $300,000 | $0 |
Roll Value History
| 2026 | N/A | N/A | N/A | N/A | N/A |
| 2025 | $147,921 | $300,000 | $0 | $447,921 | $447,921 |
| 2024 | $150,834 | $280,000 | $0 | $430,834 | $430,834 |
| 2023 | $140,060 | $270,000 | $0 | $410,060 | $410,060 |
| 2022 | $121,106 | $240,000 | $0 | $361,106 | $361,106 |
| 2021 | $113,483 | $175,000 | $0 | $288,483 | $288,483 |
| 2020 | $112,462 | $140,000 | $0 | $252,462 | $252,462 |
| 2019 | $100,335 | $200,000 | $0 | $300,335 | $300,335 |
| 2018 | $101,708 | $175,000 | $0 | $276,708 | $276,708 |
| 2017 | $103,081 | $140,000 | $0 | $243,081 | $243,081 |
| 2016 | $106,023 | $140,000 | $0 | $246,023 | $246,023 |
| 2015 | $74,449 | $120,000 | $0 | $194,449 | $194,449 |
| 2014 | $75,976 | $120,825 | $0 | $196,801 | $196,801 |
| 2013 | $77,503 | $120,825 | $0 | $198,328 | $198,328 |
| 2012 | $78,267 | $120,825 | $0 | $199,092 | $199,092 |
| 2011 | $79,794 | $134,250 | $0 | $214,044 | $214,044 |
| 2010 | $99,549 | $134,250 | $0 | $233,799 | $233,799 |
| 2009 | $105,570 | $134,250 | $0 | $239,820 | $239,820 |
| 2008 | $108,039 | $153,045 | $0 | $261,084 | $261,084 |
| 2007 | $107,641 | $153,045 | $0 | $260,686 | $260,686 |
Deed and Sales History
| 1 | 08/24/2015 | WD | Warranty Deed | N BARRETT, R OPPENHEIMER & | BECKER, GRANT W | | | $303,000.00 | 21165 | 4385049 |
| 2 | 11/01/1996 | WD | Warranty Deed | BARRETT, NATHAN | BARRETT, NATHAN M | | | $0.00 | 64037 | 96019660 |
| 3 | 01/01/1994 | OTHER | Other - Misc. Documents | BARRETT, NATHAN T | BARRETT, NATHAN | | | $36,130.00 | 11111111 | 0 |
| 4 | 04/01/1993 | WD | Warranty Deed | WALTERS, THOMAS W | BARRETT, NATHAN T | | | $28,000.00 | 31479 | 93007587 |
| 5 | 07/01/1986 | QCD | Quit Claim Deed | WALTERS, LON S | WALTERS, THOMAS W | | | $0.00 | 61795 | 86008493 |
| 6 | 06/01/1986 | OTHER | Other - Misc. Documents | WALTERS, LON S | WALTERS, LON S | | | $0.00 | 61677 | 86006281 |
| 7 | 01/01/1900 | OTHER | Other - Misc. Documents | Unknown | WALTERS, LON S | | | $0.00 | 60786 | 86003668 |
Payout Agreement
| No payout information available.. |