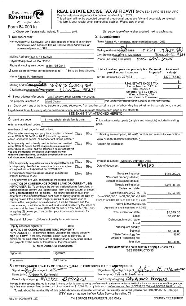
Property
Account |
| Property ID: | 608337 | Abbreviated Legal Description: | SUNNYSHORE AC LOT A SP 82-35.33010.8240-L91-2 V2 SP P25 AF#86003878 |
| Geographic ID: | S8240-00-00091-6 | Agent Code: | |
| Type: | Real | | |
| Tax Area: | 542 - APPRAISER-Stan/Cam Schl Dist, Special Dist, improved, greater than 1 acre | Land Use Code | 11 |
| Open Space: | N | DFL | N |
| Historic Property: | N | Remodel Property: | N |
| Multi-Family Redevelopment: | N | | |
| Township: | | Section: | |
| Range: | |
Location |
| Address: | 2852 PARK DR CAMANO ISLAND, WA 98282 | Mapsco: | |
| Neighborhood: | Cycle 5 | Map ID: | 865 |
| Neighborhood CD: | 5 |
Owner |
| Name: | MCLEOD, JOHN G | Owner ID: | 177901 |
| Mailing Address: | 2854 PARK DR CAMANO ISLAND, WA 98282-8262 | % Ownership: | 100.0000000000% |
| | | Exemptions: | |
Taxes and Assessment Details
Values
| (+) Improvement Homesite Value: | + | $0 | |
| (+) Improvement Non-Homesite Value: | + | $101,918 | |
| (+) Land Homesite Value: | + | $0 | |
| (+) Land Non-Homesite Value: | + | $250,000 | |
| (+) Curr Use (HS): | + | $0 | $0 |
| (+) Curr Use (NHS): | + | $0 | $0 |
| | | -------------------------- | |
| (=) Market Value: | = | $351,918 | |
| (–) Productivity Loss: | – | $0 | |
| | | -------------------------- | |
| (=) Subtotal: | = | $351,918 | |
| (+) Senior Appraised Value: | + | $0 | |
| (+) Non-Senior Appraised Value: | + | $351,918 | |
| | | -------------------------- | |
| (=) Total Appraised Value: | = | $351,918 | |
| (–) Senior Exemption Loss: | – | $0 | |
| (–) Exemption Loss: | – | $0 | |
| | | -------------------------- | |
| (=) Taxable Value: | = | $351,918 | |
Taxing Jurisdiction
| Owner: | MCLEOD, JOHN G | | |
| % Ownership: | 100.0000000000% | | |
| Total Value: | $351,918 | | |
| Tax Area: | 542 - APPRAISER-Stan/Cam Schl Dist, Special Dist, improved, greater than 1 acre |
| CF | Conservation Futures | 0.0316035091 | $351,918 | $351,918 | $11.12 | | |
| EMS1 | Fire & Rescue Dist #1 Camano GEN (EMS) | 0.3677864386 | $351,918 | $351,918 | $129.43 | | |
| FIRE1 | Fire & Rescue Dist #1 Camano GEN | 1.2502910536 | $351,918 | $351,918 | $440.00 | | |
| FIRE1BOND | Fire & Rescue Dist #1 Camano BOND | 0.1570001679 | $351,918 | $351,918 | $55.25 | | |
| CE | County Current Expense | 0.3708482477 | $351,918 | $351,918 | $130.51 | | |
| CR | County Roads | 0.4584763726 | $351,918 | $351,918 | $161.35 | | |
| LCIB | Library Sno-Isle BOND (Camano Island) | 0.0396325772 | $351,918 | $351,918 | $13.95 | | |
| LIB | Library Sno-Isle GEN | 0.3153421757 | $351,918 | $351,918 | $110.97 | | |
| SCH205_401 | School 205-401 Enrichment | 1.2698420524 | $351,918 | $351,918 | $446.88 | | |
| SCH205BOND | School 205-401 BOND | 0.9396497583 | $351,918 | $351,918 | $330.68 | | |
| ST | State School | 1.3035497053 | $351,918 | $351,918 | $458.74 | | |
| ST2 | State School Part 2 | 0.8169543533 | $351,918 | $351,918 | $287.50 | | |
| | Total Tax Rate: | 7.3209764117 | | | | | |
| | | | | Taxes w/Current Exemptions: | $2,576.38 | | |
| | | | | Taxes w/o Exemptions: | $2,576.38 | | |
Improvement / Building
| Improvement #1: | MANUFACTURED HOME | State Code: | Y | 1377.0 sqft | Value: | $101,918 |
| Bathrooms: | 2 | Bedrooms: | 3 | | Ceiling: | PLASTER PAINTED | Cooling: | EVAP NO DUCT | | Exterior Wall/Cover: | VINYL | Floor Covering: | CARPET 100% | | Floor Structure: | SLAB ON GRADE | Foundation: | SLAB | | Heating: | FHA ELECTRIC | Interior Finish: | PLASTER | | Plumbing Fixture Cnt: | 1 | Roof Slope: | FLAT | | Roof Structure/Cover: | CJ ALUMINIUM HEAVY |   |   |
|
| | Type | Description | Class CD | Sub Class CD | Year Built | Area |
| | BAS | BASE/MAIN FLOOR | 4 | 0 | 1998 | 1377.0 |
| | OP1 | OPEN PORCH SLAB | 4 | 0 | 1998 | 160.0 |
Sketch
Property Image
Land
| 1 | 17 | AC (01.01-02.00) | 1.2500 | 54450.00 | 0.00 | 0.00 | 1.00 | $250,000 | $0 |
Roll Value History
| 2026 | N/A | N/A | N/A | N/A | N/A |
| 2025 | $101,918 | $250,000 | $0 | $351,918 | $351,918 |
| 2024 | $105,103 | $220,000 | $0 | $325,103 | $325,103 |
| 2023 | $94,161 | $220,000 | $0 | $314,161 | $314,161 |
| 2022 | $87,780 | $190,000 | $0 | $277,780 | $277,780 |
| 2021 | $61,064 | $150,000 | $0 | $211,064 | $211,064 |
| 2020 | $61,134 | $140,000 | $0 | $201,134 | $201,134 |
| 2019 | $49,613 | $170,000 | $0 | $219,613 | $219,613 |
| 2018 | $51,073 | $130,000 | $0 | $181,073 | $181,073 |
| 2017 | $52,532 | $75,000 | $0 | $127,532 | $127,532 |
| 2016 | $53,261 | $75,000 | $0 | $128,261 | $128,261 |
| 2015 | $49,471 | $50,000 | $0 | $99,471 | $99,471 |
| 2014 | $50,531 | $50,000 | $0 | $100,531 | $100,531 |
| 2013 | $51,592 | $50,000 | $0 | $101,592 | $101,592 |
| 2012 | $52,653 | $74,400 | $0 | $127,053 | $127,053 |
| 2011 | $53,714 | $93,000 | $0 | $146,714 | $146,714 |
| 2010 | $50,510 | $93,000 | $0 | $143,510 | $143,510 |
| 2009 | $50,539 | $120,000 | $0 | $170,539 | $170,539 |
| 2008 | $77,257 | $99,000 | $0 | $176,257 | $176,257 |
| 2007 | $52,382 | $110,000 | $0 | $162,382 | $162,382 |
Deed and Sales History
| 1 | 02/18/1998 | PACD | Purchaser's Assignment | MCLEOD, JOHN G | MCLEOD, JOHN G | | | $39,999.00 | 0 | 0 |
| 2 | 02/10/1998 | WD | Warranty Deed | MCLEOD, JOHN G | MCLEOD, JOHN G | | | $31,000.00 | 81179 | 98006438 |
| 3 | 02/01/1998 | OTHER | Other - Misc. Documents | HANSON, PAUL J | MCLEOD, JOHN G | | | $39,999.00 | 11111111 | 0 |
| 4 | 03/01/1987 | QCD | Quit Claim Deed | MCLEOD, JOHN G | HANSON, PAUL J | | | $0.00 | 81019 | 88003909 |
| 5 | 06/01/1986 | OTHER | Other - Misc. Documents | MCLEOD, JOHN G | MCLEOD, JOHN G | | | $0.00 | 61695 | 85009022 |
| 6 | 01/01/1900 | OTHER | Other - Misc. Documents | Unknown | MCLEOD, JOHN G | | | $0.00 | 81179 | 98006438 |
Payout Agreement
| No payout information available.. |