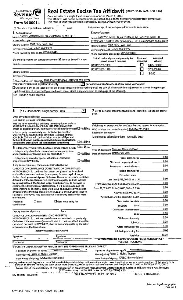
Property
Account |
| Property ID: | 608550 | Abbreviated Legal Description: | LOT A SP 85-36.42931.178-0570 V2 SP P33 AF#86006208 |
| Geographic ID: | R42931-177-0850 | Agent Code: | |
| Type: | Real | | |
| Tax Area: | 722 - APPRAISER-S Whid Schl Dist, Special District, improved, greater than 1 acre | Land Use Code | 11 |
| Open Space: | N | DFL | N |
| Historic Property: | N | Remodel Property: | N |
| Multi-Family Redevelopment: | N | | |
| Township: | 29 | Section: | 31 |
| Range: | R4 |
Location |
| Address: | 4891 BAY RIDGE DR CLINTON, WA 98236 | Mapsco: | |
| Neighborhood: | Cycle 4 | Map ID: | 1003 |
| Neighborhood CD: | 4 |
Owner |
| Name: | GOFF, GREGORY H | Owner ID: | 309984 |
| Mailing Address: | PAMELA J GOFF 13246 REDMOND-WOODINVILLE RD NE REDMOND, WA 98052 | % Ownership: | 100.0000000000% |
| | | Exemptions: | |
Taxes and Assessment Details
Values
| (+) Improvement Homesite Value: | + | $0 | |
| (+) Improvement Non-Homesite Value: | + | $547,281 | |
| (+) Land Homesite Value: | + | $0 | |
| (+) Land Non-Homesite Value: | + | $1,025,000 | |
| (+) Curr Use (HS): | + | $0 | $0 |
| (+) Curr Use (NHS): | + | $0 | $0 |
| | | -------------------------- | |
| (=) Market Value: | = | $1,572,281 | |
| (–) Productivity Loss: | – | $0 | |
| | | -------------------------- | |
| (=) Subtotal: | = | $1,572,281 | |
| (+) Senior Appraised Value: | + | $0 | |
| (+) Non-Senior Appraised Value: | + | $1,572,281 | |
| | | -------------------------- | |
| (=) Total Appraised Value: | = | $1,572,281 | |
| (–) Senior Exemption Loss: | – | $0 | |
| (–) Exemption Loss: | – | $0 | |
| | | -------------------------- | |
| (=) Taxable Value: | = | $1,572,281 | |
Taxing Jurisdiction
| Owner: | GOFF, GREGORY H | | |
| % Ownership: | 100.0000000000% | | |
| Total Value: | $1,572,281 | | |
| Tax Area: | 722 - APPRAISER-S Whid Schl Dist, Special District, improved, greater than 1 acre |
| CF | Conservation Futures | 0.0316035091 | $1,572,281 | $1,572,281 | $49.69 | | |
| FIRE3 | Fire & Rescue Dist #3 S Whidbey GEN | 1.2004855531 | $1,572,281 | $1,572,281 | $1,887.50 | | |
| HOBOND | Hospital BOND | 0.1910887512 | $1,572,281 | $1,572,281 | $300.45 | | |
| HOGEN | Hospital GEN | 0.3902502903 | $1,572,281 | $1,572,281 | $613.58 | | |
| CE | County Current Expense | 0.3708482477 | $1,572,281 | $1,572,281 | $583.08 | | |
| CR | County Roads | 0.4584763726 | $1,572,281 | $1,572,281 | $720.85 | | |
| ISLANDEMS | Hospital GEN (EMS) | 0.5000000000 | $1,572,281 | $1,572,281 | $786.14 | | |
| LIB | Library Sno-Isle GEN | 0.3153421757 | $1,572,281 | $1,572,281 | $495.81 | | |
| PORTWHID | Port of S Whidbey GEN | 0.1094540357 | $1,572,281 | $1,572,281 | $172.09 | | |
| SCH206BOND | School 206 BOND | 0.3161759235 | $1,572,281 | $1,572,281 | $497.12 | | |
| SCH206MO | School 206 Enrichment | 0.4547169547 | $1,572,281 | $1,572,281 | $714.94 | | |
| ST | State School | 1.3035497053 | $1,572,281 | $1,572,281 | $2,049.55 | | |
| ST2 | State School Part 2 | 0.8169543533 | $1,572,281 | $1,572,281 | $1,284.48 | | |
| SWHIDPRBD | P & R S Whidbey BOND | 0.0152817568 | $1,572,281 | $1,572,281 | $24.03 | | |
| SWHIDPRBD2 | P & R S Whidbey BOND2 | 0.0138911264 | $1,572,281 | $1,572,281 | $21.84 | | |
| SWHIDPRMT | P & R S Whidbey GEN | 0.2053334452 | $1,572,281 | $1,572,281 | $322.84 | | |
| | Total Tax Rate: | 6.6934522006 | | | | | |
| | | | | Taxes w/Current Exemptions: | $10,523.99 | | |
| | | | | Taxes w/o Exemptions: | $10,523.99 | | |
Improvement / Building
| Improvement #1: | RESIDENTIAL | State Code: | Y | 3378.5 sqft | Value: | $547,281 |
| Bathrooms: | 3 | Bedrooms: | 3 | | Ceiling: | DRYWALL PAINTED | Exterior Wall/Cover: | WOOD SIDING | | Floor Covering: | CARPET/VINYL 80-20 | Floor Structure: | WOOD W/SUBFLOOR | | Foundation: | CONCRETE | Heating: | WALL HEAT ELECTRIC | | Interior Finish: | DRYWALL PAINT | Plumbing Fixture Cnt: | 18 | | Roof Slope: | 8" IN 12" | Roof Structure/Cover: | CJ ASPHALT |
|
| | Type | Description | Class CD | Sub Class CD | Year Built | Area |
| | BAS | BASE/MAIN FLOOR | 4 | 0 | 1988 | 3378.5 |
| | OP3 | OPEN PORCH W/ROOF | 4 | 0 | 1988 | 24.0 |
| | OP4 | OPEN PORCH W/CEILING-ROOF | 4 | 0 | 1988 | 32.0 |
| | OWP | OPEN WOOD PORCH W/STEPS | 4 | 0 | 1988 | 660.0 |
| | OWR | OPEN WOOD PORCH W/STEPS/ROOF | 4 | 0 | 1988 | 128.0 |
| | OWR | OPEN WOOD PORCH W/STEPS/ROOF | 4 | 0 | 1988 | 195.5 |
| | OWC | OPEN WOOD PORCH W/STEPS/ROOF/C | 4 | 0 | 1988 | 248.0 |
| | oOBD | Out Buildings | 4 | 0 | 1988 | 0.0 |
Sketch
Property Image
Land
| 1 | LB | LOW BANK | 5.7500 | 250470.00 | 300.00 | 0.00 | 1.00 | $1,025,000 | $0 |
Roll Value History
| 2026 | N/A | N/A | N/A | N/A | N/A |
| 2025 | $547,281 | $1,025,000 | $0 | $1,572,281 | $1,572,281 |
| 2024 | $554,223 | $1,000,000 | $0 | $1,554,223 | $1,554,223 |
| 2023 | $515,029 | $950,000 | $0 | $1,465,029 | $1,465,029 |
| 2022 | $474,775 | $950,000 | $0 | $1,424,775 | $1,424,775 |
| 2021 | $421,396 | $700,000 | $0 | $1,121,396 | $1,121,396 |
| 2020 | $412,146 | $650,000 | $0 | $1,062,146 | $1,062,146 |
| 2019 | $329,365 | $600,000 | $0 | $929,365 | $929,365 |
| 2018 | $330,349 | $600,000 | $0 | $930,349 | $930,349 |
| 2017 | $332,267 | $600,000 | $0 | $932,267 | $932,267 |
| 2016 | $336,206 | $600,000 | $0 | $936,206 | $936,206 |
| 2015 | $340,145 | $600,000 | $0 | $940,145 | $940,145 |
| 2014 | $364,245 | $600,000 | $0 | $964,245 | $964,245 |
| 2013 | $370,231 | $587,713 | $0 | $957,944 | $957,944 |
| 2012 | $374,347 | $587,713 | $0 | $962,060 | $962,060 |
| 2011 | $378,460 | $691,427 | $0 | $1,069,887 | $1,069,887 |
| 2010 | $394,839 | $691,427 | $0 | $1,086,266 | $1,086,266 |
| 2009 | $410,929 | $861,624 | $0 | $1,272,553 | $1,272,553 |
| 2008 | $339,112 | $1,013,675 | $0 | $1,352,787 | $1,352,787 |
| 2007 | $135,742 | $1,221,675 | $0 | $1,357,417 | $1,357,417 |
Deed and Sales History
| 1 | 08/23/2023 | WD | Warranty Deed | PARKES, BARBARA S | GOFF, GREGORY H | | | $2,250,000.00 | 57904 | 4564418 |
| 2 | 09/02/1999 | WD | Warranty Deed | KITTLESON, ALBERT L | PARKES, BARBARA S | | | $900,000.00 | 93830 | 99021393 |
| 3 | 01/01/1900 | OTHER | Other - Misc. Documents | Unknown | KITTLESON, ALBERT L | | | $0.00 | 51852 | 85007205 |
| 4 | 01/01/1900 | OTHER | Other - Misc. Documents | KITTLESON, ALBERT L | KITTLESON, ALBERT L | | | $0.00 | 0 | 0 |
Payout Agreement
| No payout information available.. |