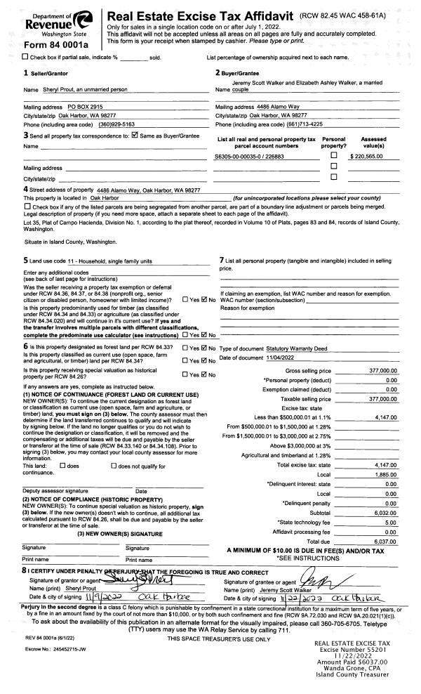
Property
Account |
| Property ID: | 608612 | Abbreviated Legal Description: | IN W CROCKETT DC:BG SW CR SEC15 S88*E529.89' N32*E239 .92' CUR/L 465.77' N19*E360 .19' CUR/R 399.30' N35*E348 .94'TPB N35*E775.31' CUR/R 75.70' S01*W1614.27' N26*W 1033.77'TO ELN FT CASEY RD & TPB FR 135-1600 & 170- 1750 COMB 7/86 |
| Geographic ID: | R13115-162-1660 | Agent Code: | |
| Type: | Real | | |
| Tax Area: | 312 - APPRAISER-Cpvl Schl Dist, outside Cpvl, improved, greater than 1 acre | Land Use Code | 11 |
| Open Space: | N | DFL | N |
| Historic Property: | N | Remodel Property: | N |
| Multi-Family Redevelopment: | N | | |
| Township: | 31 | Section: | 15 |
| Range: | R1 |
Location |
| Address: | 1083 FORT CASEY RD COUPEVILLE, WA 98239 | Mapsco: | |
| Neighborhood: | Cycle 2 | Map ID: | 66 |
| Neighborhood CD: | 2 |
Owner |
| Name: | ZEMA, GARY B | Owner ID: | 303481 |
| Mailing Address: | 12214 NE 97TH STREET KIRKLAND, WA 98033 | % Ownership: | 100.0000000000% |
| | | Exemptions: | |
Taxes and Assessment Details
Values
| (+) Improvement Homesite Value: | + | $0 | |
| (+) Improvement Non-Homesite Value: | + | $561,398 | |
| (+) Land Homesite Value: | + | $0 | |
| (+) Land Non-Homesite Value: | + | $394,405 | |
| (+) Curr Use (HS): | + | $0 | $0 |
| (+) Curr Use (NHS): | + | $0 | $0 |
| | | -------------------------- | |
| (=) Market Value: | = | $955,803 | |
| (–) Productivity Loss: | – | $0 | |
| | | -------------------------- | |
| (=) Subtotal: | = | $955,803 | |
| (+) Senior Appraised Value: | + | $0 | |
| (+) Non-Senior Appraised Value: | + | $955,803 | |
| | | -------------------------- | |
| (=) Total Appraised Value: | = | $955,803 | |
| (–) Senior Exemption Loss: | – | $0 | |
| (–) Exemption Loss: | – | $0 | |
| | | -------------------------- | |
| (=) Taxable Value: | = | $955,803 | |
Taxing Jurisdiction
| Owner: | ZEMA, GARY B | | |
| % Ownership: | 100.0000000000% | | |
| Total Value: | $955,803 | | |
| Tax Area: | 312 - APPRAISER-Cpvl Schl Dist, outside Cpvl, improved, greater than 1 acre |
| CF | Conservation Futures | 0.0316035091 | $955,803 | $955,803 | $30.21 | | |
| CEM2 | Cemetery #2 | 0.0095056933 | $955,803 | $955,803 | $9.09 | | |
| FIRE5 | Fire & Rescue Dist #5 C Whidbey GEN | 1.2008080668 | $955,803 | $955,803 | $1,147.74 | | |
| FIRE5BOND | Fire & Rescue Dist #5 C Whidbey BOND | 0.1400090713 | $955,803 | $955,803 | $133.82 | | |
| HOBOND | Hospital BOND | 0.1910887512 | $955,803 | $955,803 | $182.64 | | |
| HOGEN | Hospital GEN | 0.3902502903 | $955,803 | $955,803 | $373.00 | | |
| CE | County Current Expense | 0.3708482477 | $955,803 | $955,803 | $354.46 | | |
| CR | County Roads | 0.4584763726 | $955,803 | $955,803 | $438.21 | | |
| ISLANDEMS | Hospital GEN (EMS) | 0.5000000000 | $955,803 | $955,803 | $477.90 | | |
| LIB | Library Sno-Isle GEN | 0.3153421757 | $955,803 | $955,803 | $301.40 | | |
| LIBCAP | Library Sno-Isle BOND (Cap Fac Imp Area) | 0.0543427938 | $955,803 | $955,803 | $51.94 | | |
| POCOUP | Port of Coupeville GEN | 0.1093371703 | $955,803 | $955,803 | $104.50 | | |
| POCOUPIDD | Port of Coupeville IDD | 0.3409740022 | $955,803 | $955,803 | $325.90 | | |
| COUPSDTECH | School 204 CP (TECH) | 0.7545480007 | $955,803 | $955,803 | $721.20 | | |
| SCH204MO | School 204 Enrichment | 0.6716186034 | $955,803 | $955,803 | $641.94 | | |
| ST | State School | 1.3035497053 | $955,803 | $955,803 | $1,245.94 | | |
| ST2 | State School Part 2 | 0.8169543533 | $955,803 | $955,803 | $780.85 | | |
| | Total Tax Rate: | 7.6592568070 | | | | | |
| | | | | Taxes w/Current Exemptions: | $7,320.74 | | |
| | | | | Taxes w/o Exemptions: | $7,320.74 | | |
Improvement / Building
| Improvement #1: | RESIDENTIAL | State Code: | Y | 3258.0 sqft | Value: | $561,398 |
| Bathrooms: | 2 | Bedrooms: | 2 | | Ceiling: | DRYWALL PAINTED | Exterior Wall/Cover: | SHINGLE | | Floor Covering: | HARDWOOD 100% | Floor Structure: | SLAB ABOVE GRADE | | Foundation: | CONCRETE | Heating: | GAS HEATERS | | Interior Finish: | DRYWALL PAINT | Plumbing Fixture Cnt: | 11 | | Roof Slope: | 6" IN 12" | Roof Structure/Cover: | CJ ALUMINIUM HEAVY |
|
| | Type | Description | Class CD | Sub Class CD | Year Built | Area |
| | BAS | BASE/MAIN FLOOR | 4 | 0 | 1988 | 3258.0 |
| | UTY | STORAGE/UTILITY | 4 | 0 | 1988 | 216.0 |
| | DGR | DETACHED GARAGE | 4 | 0 | 1988 | 468.0 |
| | UTY | STORAGE/UTILITY | 4 | 0 | 1988 | 312.0 |
| | OWP | OPEN WOOD PORCH W/STEPS | 4 | 0 | 1988 | 114.0 |
| | OWR | OPEN WOOD PORCH W/STEPS/ROOF | 4 | 0 | 1988 | 65.1 |
| | UTY | STORAGE/UTILITY | 4 | 0 | 1988 | 540.0 |
| | OWP | OPEN WOOD PORCH W/STEPS | 4 | 0 | 1988 | 249.5 |
| | OWR | OPEN WOOD PORCH W/STEPS/ROOF | 4 | 0 | 1988 | 36.0 |
| | OWR | OPEN WOOD PORCH W/STEPS/ROOF | 4 | 0 | 1988 | 83.7 |
| | ENP | ENCLOSED PORCH | 4 | 0 | 1988 | 145.6 |
Sketch
Property Image
Land
| 1 | HS | HOMESITE | 1.0000 | 43560.00 | 0.00 | 0.00 | 1.00 | $340,000 | $0 |
| 2 | 91 | UNDEVELOPED LAND-METES AND BOUNDS | 8.0200 | 349351.20 | 0.00 | 0.00 | 1.00 | $54,405 | $0 |
Roll Value History
| 2026 | N/A | N/A | N/A | N/A | N/A |
| 2025 | $561,398 | $394,405 | $0 | $955,803 | $955,803 |
| 2024 | $545,868 | $360,000 | $0 | $905,868 | $905,868 |
| 2023 | $553,633 | $350,000 | $0 | $903,633 | $903,633 |
| 2022 | $509,858 | $310,000 | $0 | $819,858 | $819,858 |
| 2021 | $451,563 | $260,000 | $0 | $711,563 | $711,563 |
| 2020 | $442,753 | $240,000 | $0 | $682,753 | $682,753 |
| 2019 | $357,490 | $300,000 | $0 | $657,490 | $657,490 |
| 2018 | $342,335 | $300,000 | $0 | $642,335 | $642,335 |
| 2017 | $344,579 | $300,000 | $0 | $644,579 | $644,579 |
| 2016 | $349,115 | $300,000 | $0 | $649,115 | $649,115 |
| 2015 | $353,650 | $451,000 | $0 | $804,650 | $804,650 |
| 2014 | $358,187 | $451,000 | $0 | $809,187 | $809,187 |
| 2013 | $362,723 | $233,766 | $0 | $596,489 | $596,489 |
| 2012 | $362,756 | $233,766 | $0 | $596,522 | $596,522 |
| 2011 | $367,390 | $259,740 | $0 | $627,130 | $627,130 |
| 2010 | $386,458 | $259,740 | $0 | $646,198 | $646,198 |
| 2009 | $402,845 | $270,600 | $0 | $673,445 | $673,445 |
| 2008 | $357,779 | $613,360 | $0 | $971,139 | $971,139 |
| 2007 | $363,130 | $613,360 | $0 | $976,490 | $976,490 |
Deed and Sales History
| 1 | 03/04/2022 | PRD | Personal Representatives Deed | ZEMA, GENE K | ZEMA, GARY B | | | $0.00 | 52326 | 4541660 |
| 2 | 02/26/2019 | PRD | Personal Representatives Deed | ZEMA, GENE & JANET | ZEMA, GENE K | | | $0.00 | 37689 | 4459730 |
| 3 | 07/01/1986 | OTHER | Other - Misc. Documents | ZEMA, GENE & | ZEMA, GENE & | | | $0.00 | 61705 | 86003435 |
| 4 | 08/01/1983 | REC | Real Estate Contract | Unknown | ZEMA, GENE & | | | $0.00 | 40099 | 0 |
Payout Agreement
| No payout information available.. |