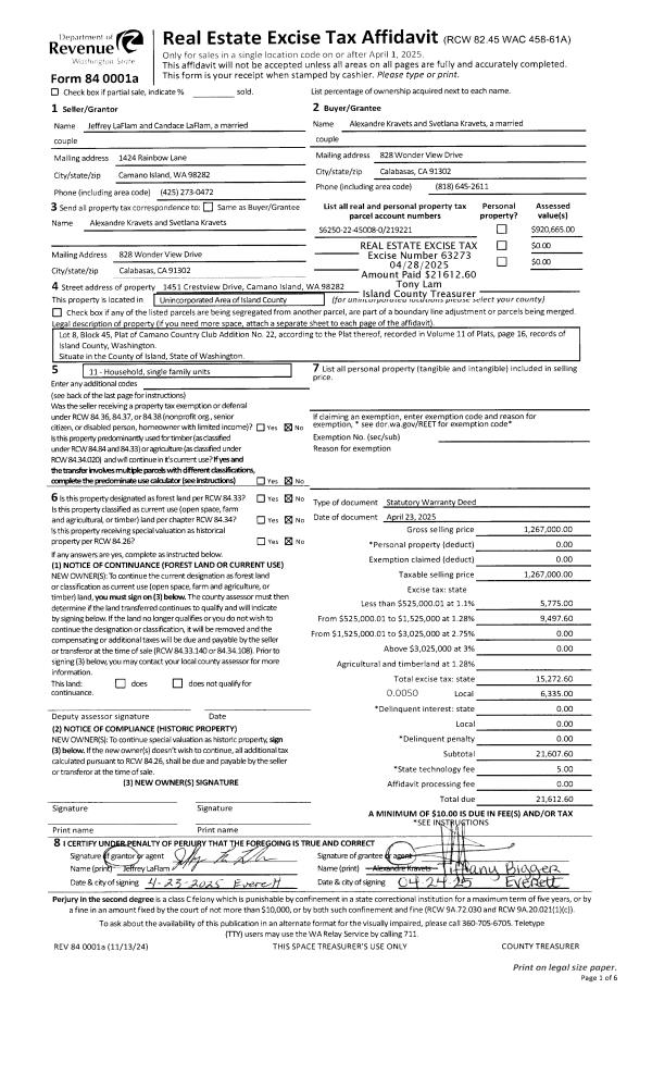
Property
Account |
| Property ID: | 608676 | Abbreviated Legal Description: | LOT 2 SP 81-73.23117.090-2060 V2 SP P32 AF#86005619 |
| Geographic ID: | R23117-090-2450 | Agent Code: | |
| Type: | Real | | |
| Tax Area: | 312 - APPRAISER-Cpvl Schl Dist, outside Cpvl, improved, greater than 1 acre | Land Use Code | 11 |
| Open Space: | N | DFL | N |
| Historic Property: | N | Remodel Property: | N |
| Multi-Family Redevelopment: | N | | |
| Township: | 31 | Section: | 17 |
| Range: | R2 |
Location |
| Address: | | Mapsco: | |
| Neighborhood: | Area 2 Waterfront Eastside Res | Map ID: | 487 |
| Neighborhood CD: | 2WFTE01R |
Owner |
| Name: | WEMKANN LLC | Owner ID: | 263675 |
| Mailing Address: | 9423 232ND ST SW EDMONDS, WA 98020 | % Ownership: | 100.0000000000% |
| | | Exemptions: | |
Taxes and Assessment Details
Values
| (+) Improvement Homesite Value: | + | $0 | |
| (+) Improvement Non-Homesite Value: | + | $12,000 | |
| (+) Land Homesite Value: | + | $0 | |
| (+) Land Non-Homesite Value: | + | $550,000 | |
| (+) Curr Use (HS): | + | $0 | $0 |
| (+) Curr Use (NHS): | + | $0 | $0 |
| | | -------------------------- | |
| (=) Market Value: | = | $562,000 | |
| (–) Productivity Loss: | – | $0 | |
| | | -------------------------- | |
| (=) Subtotal: | = | $562,000 | |
| (+) Senior Appraised Value: | + | $0 | |
| (+) Non-Senior Appraised Value: | + | $562,000 | |
| | | -------------------------- | |
| (=) Total Appraised Value: | = | $562,000 | |
| (–) Senior Exemption Loss: | – | $0 | |
| (–) Exemption Loss: | – | $0 | |
| | | -------------------------- | |
| (=) Taxable Value: | = | $562,000 | |
Taxing Jurisdiction
| Owner: | WEMKANN LLC | | |
| % Ownership: | 100.0000000000% | | |
| Total Value: | $562,000 | | |
| Tax Area: | 312 - APPRAISER-Cpvl Schl Dist, outside Cpvl, improved, greater than 1 acre |
| CF | Conservation Futures | 0.0316035091 | $562,000 | $562,000 | $17.76 | | |
| CEM2 | Cemetery #2 | 0.0095056933 | $562,000 | $562,000 | $5.34 | | |
| FIRE5 | Fire & Rescue Dist #5 C Whidbey GEN | 1.2008080668 | $562,000 | $562,000 | $674.85 | | |
| FIRE5BOND | Fire & Rescue Dist #5 C Whidbey BOND | 0.1400090713 | $562,000 | $562,000 | $78.69 | | |
| HOBOND | Hospital BOND | 0.1910887512 | $562,000 | $562,000 | $107.39 | | |
| HOGEN | Hospital GEN | 0.3902502903 | $562,000 | $562,000 | $219.32 | | |
| CE | County Current Expense | 0.3708482477 | $562,000 | $562,000 | $208.42 | | |
| CR | County Roads | 0.4584763726 | $562,000 | $562,000 | $257.66 | | |
| ISLANDEMS | Hospital GEN (EMS) | 0.5000000000 | $562,000 | $562,000 | $281.00 | | |
| LIB | Library Sno-Isle GEN | 0.3153421757 | $562,000 | $562,000 | $177.22 | | |
| LIBCAP | Library Sno-Isle BOND (Cap Fac Imp Area) | 0.0543427938 | $562,000 | $562,000 | $30.54 | | |
| POCOUP | Port of Coupeville GEN | 0.1093371703 | $562,000 | $562,000 | $61.45 | | |
| POCOUPIDD | Port of Coupeville IDD | 0.3409740022 | $562,000 | $562,000 | $191.63 | | |
| COUPSDTECH | School 204 CP (TECH) | 0.7545480007 | $562,000 | $562,000 | $424.06 | | |
| SCH204MO | School 204 Enrichment | 0.6716186034 | $562,000 | $562,000 | $377.45 | | |
| ST | State School | 1.3035497053 | $562,000 | $562,000 | $732.59 | | |
| ST2 | State School Part 2 | 0.8169543533 | $562,000 | $562,000 | $459.13 | | |
| | Total Tax Rate: | 7.6592568070 | | | | | |
| | | | | Taxes w/Current Exemptions: | $4,304.50 | | |
| | | | | Taxes w/o Exemptions: | $4,304.50 | | |
Improvement / Building
| Improvement #1: | RESIDENTIAL | State Code: | A1 | 0.0 sqft | Value: | $12,000 |
Sketch
| No sketches available for this property. |
Property Image
Land
| 1 | HB | HIGH BLUFF | 4.1500 | 180774.00 | 275.00 | 0.00 | 1.00 | $550,000 | $0 |
Roll Value History
| 2026 | N/A | N/A | N/A | N/A | N/A |
| 2025 | $12,000 | $550,000 | $0 | $562,000 | $562,000 |
| 2024 | $12,000 | $550,000 | $0 | $562,000 | $562,000 |
| 2023 | $12,000 | $525,000 | $0 | $537,000 | $537,000 |
| 2022 | $12,000 | $475,000 | $0 | $487,000 | $487,000 |
| 2021 | $12,000 | $375,000 | $0 | $387,000 | $387,000 |
| 2020 | $12,000 | $375,000 | $0 | $387,000 | $387,000 |
| 2019 | $12,000 | $400,000 | $0 | $412,000 | $412,000 |
| 2018 | $0 | $350,000 | $0 | $350,000 | $350,000 |
| 2017 | $0 | $350,000 | $0 | $350,000 | $350,000 |
| 2016 | $0 | $350,000 | $0 | $350,000 | $350,000 |
| 2015 | $0 | $350,000 | $0 | $350,000 | $350,000 |
| 2014 | $0 | $350,000 | $0 | $350,000 | $350,000 |
| 2013 | $0 | $344,918 | $0 | $344,918 | $344,918 |
| 2012 | $0 | $344,918 | $0 | $344,918 | $344,918 |
| 2011 | $0 | $344,918 | $0 | $344,918 | $344,918 |
| 2010 | $0 | $344,918 | $0 | $344,918 | $344,918 |
| 2009 | $0 | $431,149 | $0 | $431,149 | $431,149 |
| 2008 | $0 | $449,114 | $0 | $449,114 | $449,114 |
| 2007 | $0 | $443,127 | $0 | $443,127 | $443,127 |
Deed and Sales History
| 1 | 09/12/2013 | QCD | Quit Claim Deed | HEDGES, EDWARD S | WEMKANN LLC | | | $0.00 | 12747 | 4347856 |
| 2 | 05/01/1981 | EZ | Easement | Unknown | HEDGES, EDWARD S | | | $0.00 | 60678 | 382815 |
Payout Agreement
| No payout information available.. |