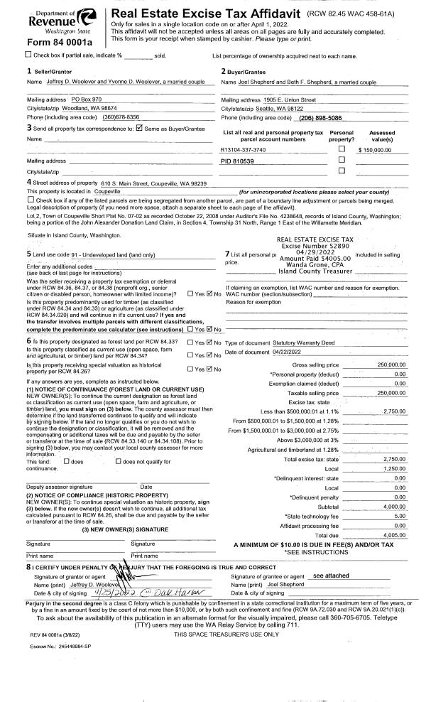
Property
Account |
| Property ID: | 609247 | Abbreviated Legal Description: | COUPEVILLE LOT 1 & W16.66' OF LOT 2 BLK 35 EX S16.50' TGW PT ADJ VAC 5TH ST LOT A V6 SURVEYS P112 AF#85013072 FR 35000-0 TGW & SUB EZ AF#86016564 |
| Geographic ID: | S6415-00-35001-1 | Agent Code: | |
| Type: | Real | | |
| Tax Area: | 300 - APPRAISER-Cpvl Schl Dist, in Cpvl | Land Use Code | 11 |
| Open Space: | N | DFL | N |
| Historic Property: | N | Remodel Property: | N |
| Multi-Family Redevelopment: | N | | |
| Township: | | Section: | |
| Range: | |
Location |
| Address: | 403 NE 5TH ST COUPEVILLE, WA 98239 | Mapsco: | |
| Neighborhood: | Cycle 2 | Map ID: | 173 |
| Neighborhood CD: | 2 |
Owner |
| Name: | SMITH, KONNI ROSE | Owner ID: | 302554 |
| Mailing Address: | OLIVER GRIMM 6401 NW EBB TIDE CT OAK HARBOR, WA 98277 | % Ownership: | 100.0000000000% |
| | | Exemptions: | |
Taxes and Assessment Details
Values
| (+) Improvement Homesite Value: | + | $0 | |
| (+) Improvement Non-Homesite Value: | + | $170,933 | |
| (+) Land Homesite Value: | + | $0 | |
| (+) Land Non-Homesite Value: | + | $260,000 | |
| (+) Curr Use (HS): | + | $0 | $0 |
| (+) Curr Use (NHS): | + | $0 | $0 |
| | | -------------------------- | |
| (=) Market Value: | = | $430,933 | |
| (–) Productivity Loss: | – | $0 | |
| | | -------------------------- | |
| (=) Subtotal: | = | $430,933 | |
| (+) Senior Appraised Value: | + | $0 | |
| (+) Non-Senior Appraised Value: | + | $430,933 | |
| | | -------------------------- | |
| (=) Total Appraised Value: | = | $430,933 | |
| (–) Senior Exemption Loss: | – | $0 | |
| (–) Exemption Loss: | – | $0 | |
| | | -------------------------- | |
| (=) Taxable Value: | = | $430,933 | |
Taxing Jurisdiction
| Owner: | SMITH, KONNI ROSE | | |
| % Ownership: | 100.0000000000% | | |
| Total Value: | $430,933 | | |
| Tax Area: | 300 - APPRAISER-Cpvl Schl Dist, in Cpvl |
| CF | Conservation Futures | 0.0316035091 | $430,933 | $430,933 | $13.62 | | |
| CEM2 | Cemetery #2 | 0.0095056933 | $430,933 | $430,933 | $4.10 | | |
| COUP | City: Town of Coupeville | 0.8426414490 | $430,933 | $430,933 | $363.12 | | |
| FIRE5 | Fire & Rescue Dist #5 C Whidbey GEN | 1.2008080668 | $430,933 | $430,933 | $517.47 | | |
| FIRE5BOND | Fire & Rescue Dist #5 C Whidbey BOND | 0.1400090713 | $430,933 | $430,933 | $60.33 | | |
| HOBOND | Hospital BOND | 0.1910887512 | $430,933 | $430,933 | $82.35 | | |
| HOGEN | Hospital GEN | 0.3902502903 | $430,933 | $430,933 | $168.17 | | |
| CE | County Current Expense | 0.3708482477 | $430,933 | $430,933 | $159.81 | | |
| ISLANDEMS | Hospital GEN (EMS) | 0.5000000000 | $430,933 | $430,933 | $215.47 | | |
| LIB | Library Sno-Isle GEN | 0.3153421757 | $430,933 | $430,933 | $135.89 | | |
| LIBCAP | Library Sno-Isle BOND (Cap Fac Imp Area) | 0.0543427938 | $430,933 | $430,933 | $23.42 | | |
| POCOUP | Port of Coupeville GEN | 0.1093371703 | $430,933 | $430,933 | $47.12 | | |
| POCOUPIDD | Port of Coupeville IDD | 0.3409740022 | $430,933 | $430,933 | $146.94 | | |
| COUPSDTECH | School 204 CP (TECH) | 0.7545480007 | $430,933 | $430,933 | $325.16 | | |
| SCH204MO | School 204 Enrichment | 0.6716186034 | $430,933 | $430,933 | $289.42 | | |
| ST | State School | 1.3035497053 | $430,933 | $430,933 | $561.74 | | |
| ST2 | State School Part 2 | 0.8169543533 | $430,933 | $430,933 | $352.05 | | |
| | Total Tax Rate: | 8.0434218834 | | | | | |
| | | | | Taxes w/Current Exemptions: | $3,466.18 | | |
| | | | | Taxes w/o Exemptions: | $3,466.18 | | |
Improvement / Building
| Improvement #1: | RESIDENTIAL | State Code: | Y | 1008.0 sqft | Value: | $170,933 |
| Bathrooms: | 1 | Bedrooms: | 3 | | Ceiling: | DRYWALL PAINTED | Exterior Wall/Cover: | PLY/HARDBOARD T-111 | | Floor Covering: | CARPET/VINYL 80-20 | Floor Structure: | WOOD W/SUBFLOOR | | Foundation: | CONCRETE | Heating: | WALL HEAT ELECTRIC | | Interior Finish: | DRYWALL PAINT | Plumbing Fixture Cnt: | 6 | | Roof Slope: | 4" IN 12" | Roof Structure/Cover: | CJ ASPHALT |
|
| | Type | Description | Class CD | Sub Class CD | Year Built | Area |
| | BAS | BASE/MAIN FLOOR | 3 | 0 | 1988 | 1008.0 |
| | AGR | ATTACHED GARAGE | 3 | 0 | 1988 | 288.0 |
| | OWP | OPEN WOOD PORCH W/STEPS | 3 | 0 | 1988 | 186.0 |
Sketch
| No sketches available for this property. |
Property Image
Land
| 1 | HS | HOMESITE | 0.1784 | 7771.10 | 0.00 | 0.00 | 1.00 | $260,000 | $0 |
Roll Value History
| 2026 | N/A | N/A | N/A | N/A | N/A |
| 2025 | $170,933 | $260,000 | $0 | $430,933 | $430,933 |
| 2024 | $155,835 | $240,000 | $0 | $395,835 | $395,835 |
| 2023 | $157,993 | $240,000 | $0 | $397,993 | $397,993 |
| 2022 | $145,018 | $200,000 | $0 | $345,018 | $345,018 |
| 2021 | $127,800 | $150,000 | $0 | $277,800 | $277,800 |
| 2020 | $124,626 | $130,000 | $0 | $254,626 | $254,626 |
| 2019 | $88,560 | $170,000 | $0 | $258,560 | $258,560 |
| 2018 | $83,709 | $150,000 | $0 | $233,709 | $233,709 |
| 2017 | $84,311 | $125,000 | $0 | $209,311 | $209,311 |
| 2016 | $85,500 | $115,000 | $0 | $200,500 | $200,500 |
| 2015 | $86,687 | $90,000 | $0 | $176,687 | $176,687 |
| 2014 | $87,874 | $85,000 | $0 | $172,874 | $172,874 |
| 2013 | $89,063 | $85,000 | $0 | $174,063 | $174,063 |
| 2012 | $90,882 | $89,250 | $0 | $180,132 | $180,132 |
| 2011 | $92,073 | $105,000 | $0 | $197,073 | $197,073 |
| 2010 | $94,519 | $105,000 | $0 | $199,519 | $199,519 |
| 2009 | $98,547 | $125,000 | $0 | $223,547 | $223,547 |
| 2008 | $99,735 | $124,000 | $0 | $223,735 | $223,735 |
| 2007 | $100,935 | $105,000 | $0 | $205,935 | $205,935 |
Deed and Sales History
| 1 | 12/27/2021 | QCD | Quit Claim Deed | SMITH, KONNI ROSE | SMITH, KONNI ROSE | | | $0.00 | 51546 | 4537082 |
| 2 | 04/18/2019 | WD | Warranty Deed | SHETZLER, RANDALL P | SMITH, KONNI ROSE | | | $269,000.00 | 38024 | 4461211 |
| 3 | 11/01/1992 | WD | Warranty Deed | IDE, ROBIN C | SHETZLER, RANDALL P | | | $88,100.00 | 24675 | 92023048 |
| 4 | 03/01/1989 | WD | Warranty Deed | ISLAND, PACIFIC C | IDE, ROBIN C | | | $59,000.00 | 90796 | 89002684 |
| 5 | 11/01/1988 | WD | Warranty Deed | KONEK, STEPHEN E | ISLAND, PACIFIC C | | | $11,500.00 | 84022 | 88015087 |
| 6 | 01/01/1900 | OTHER | Other - Misc. Documents | Unknown | KONEK, STEPHEN E | | | $0.00 | 52594 | 85010249 |
Payout Agreement
| No payout information available.. |