Property
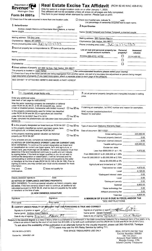
Account |
| Property ID: | 609363 | Abbreviated Legal Description: | SYNDICATE ADD LOT 3 SP 84-29.22915-S8290-24-1 V2 SP P40 AF#86007736 |
| Geographic ID: | S8290-00-00024-5 | Agent Code: | |
| Type: | Real | | |
| Tax Area: | 762 - APPRAISER-S Whid Schl Dist, Special District, improved, greater than 1 acre | Land Use Code | 11 |
| Open Space: | N | DFL | N |
| Historic Property: | N | Remodel Property: | N |
| Multi-Family Redevelopment: | N | | |
| Township: | | Section: | |
| Range: | |
Location |
| Address: | 5629 CAMERON RD FREELAND, WA 98249 | Mapsco: | |
| Neighborhood: | Cycle 3 | Map ID: | 331 |
| Neighborhood CD: | 3 |
Owner |
| Name: | MARTINS TTEE, MARIA L | Owner ID: | 297964 |
| Mailing Address: | 1049 SHELL BLVD #12 FOSTER CITY, CA 94404 | % Ownership: | 100.0000000000% |
| | | Exemptions: | |
Taxes and Assessment Details
Values
| (+) Improvement Homesite Value: | + | $0 | |
| (+) Improvement Non-Homesite Value: | + | $513,182 | |
| (+) Land Homesite Value: | + | $0 | |
| (+) Land Non-Homesite Value: | + | $250,000 | |
| (+) Curr Use (HS): | + | $0 | $0 |
| (+) Curr Use (NHS): | + | $0 | $0 |
| | | -------------------------- | |
| (=) Market Value: | = | $763,182 | |
| (–) Productivity Loss: | – | $0 | |
| | | -------------------------- | |
| (=) Subtotal: | = | $763,182 | |
| (+) Senior Appraised Value: | + | $0 | |
| (+) Non-Senior Appraised Value: | + | $763,182 | |
| | | -------------------------- | |
| (=) Total Appraised Value: | = | $763,182 | |
| (–) Senior Exemption Loss: | – | $0 | |
| (–) Exemption Loss: | – | $0 | |
| | | -------------------------- | |
| (=) Taxable Value: | = | $763,182 | |
Taxing Jurisdiction
| Owner: | MARTINS TTEE, MARIA L | | |
| % Ownership: | 100.0000000000% | | |
| Total Value: | $763,182 | | |
| Tax Area: | 762 - APPRAISER-S Whid Schl Dist, Special District, improved, greater than 1 acre |
| CF | Conservation Futures | 0.0316035091 | $763,182 | $763,182 | $24.12 | | |
| FIRE3 | Fire & Rescue Dist #3 S Whidbey GEN | 1.2004855531 | $763,182 | $763,182 | $916.19 | | |
| HOBOND | Hospital BOND | 0.1910887512 | $763,182 | $763,182 | $145.84 | | |
| HOGEN | Hospital GEN | 0.3902502903 | $763,182 | $763,182 | $297.83 | | |
| CE | County Current Expense | 0.3708482477 | $763,182 | $763,182 | $283.02 | | |
| CR | County Roads | 0.4584763726 | $763,182 | $763,182 | $349.90 | | |
| ISLANDEMS | Hospital GEN (EMS) | 0.5000000000 | $763,182 | $763,182 | $381.59 | | |
| LIB | Library Sno-Isle GEN | 0.3153421757 | $763,182 | $763,182 | $240.66 | | |
| PORTWHID | Port of S Whidbey GEN | 0.1094540357 | $763,182 | $763,182 | $83.53 | | |
| SCH206BOND | School 206 BOND | 0.3161759235 | $763,182 | $763,182 | $241.30 | | |
| SCH206MO | School 206 Enrichment | 0.4547169547 | $763,182 | $763,182 | $347.03 | | |
| ST | State School | 1.3035497053 | $763,182 | $763,182 | $994.85 | | |
| ST2 | State School Part 2 | 0.8169543533 | $763,182 | $763,182 | $623.48 | | |
| SWHIDPRBD | P & R S Whidbey BOND | 0.0152817568 | $763,182 | $763,182 | $11.66 | | |
| SWHIDPRBD2 | P & R S Whidbey BOND2 | 0.0138911264 | $763,182 | $763,182 | $10.60 | | |
| SWHIDPRMT | P & R S Whidbey GEN | 0.2053334452 | $763,182 | $763,182 | $156.71 | | |
| | Total Tax Rate: | 6.6934522006 | | | | | |
| | | | | Taxes w/Current Exemptions: | $5,108.31 | | |
| | | | | Taxes w/o Exemptions: | $5,108.31 | | |
Improvement / Building
| Improvement #1: | RESIDENTIAL | State Code: | Y | 2884.0 sqft | Value: | $513,182 |
| Bathrooms: | 3 | Bedrooms: | 3 | | Ceiling: | DRYWALL PAINTED | Cooling: | HEAT PUMP/CONV/V | | Exterior Wall/Cover: | WOOD SIDING | Floor Covering: | HARDWOOD/CARP 60-40 | | Floor Structure: | WOOD W/SUBFLOOR | Foundation: | CONCRETE | | Interior Finish: | DRYWALL PAINT | Plumbing Fixture Cnt: | 15 | | Roof Slope: | 4" IN 12" | Roof Structure/Cover: | CJ ASPHALT |
|
| | Type | Description | Class CD | Sub Class CD | Year Built | Area |
| | BAS | BASE/MAIN FLOOR | 4 | 0 | 1993 | 1452.0 |
| | DWN | DOWNSTAIRS LIVING AREA | 4 | 0 | 1993 | 814.0 |
| | DGR | DETACHED GARAGE | 4 | 0 | 1993 | 768.0 |
| | UPS | UPPER STORY | 4 | 0 | 1993 | 618.0 |
| | OWP | OPEN WOOD PORCH W/STEPS | 4 | 0 | 1993 | 861.0 |
| | OWC | OPEN WOOD PORCH W/STEPS/ROOF/C | 4 | 0 | 1993 | 54.0 |
Sketch
Property Image
Land
| 1 | 17 | AC (01.01-02.00) | 0.0000 | 0.00 | 0.00 | 0.00 | 1.00 | $250,000 | $0 |
Roll Value History
| 2026 | N/A | N/A | N/A | N/A | N/A |
| 2025 | $513,182 | $250,000 | $0 | $763,182 | $763,182 |
| 2024 | $519,498 | $230,000 | $0 | $749,498 | $749,498 |
| 2023 | $525,813 | $230,000 | $0 | $755,813 | $755,813 |
| 2022 | $481,860 | $200,000 | $0 | $681,860 | $681,860 |
| 2021 | $423,983 | $150,000 | $0 | $573,983 | $573,983 |
| 2020 | $413,320 | $135,000 | $0 | $548,320 | $548,320 |
| 2019 | $294,807 | $170,000 | $0 | $464,807 | $464,807 |
| 2018 | $295,681 | $140,000 | $0 | $435,681 | $435,681 |
| 2017 | $297,430 | $150,000 | $0 | $447,430 | $447,430 |
| 2016 | $300,930 | $150,000 | $0 | $450,930 | $450,930 |
| 2015 | $304,429 | $150,000 | $0 | $454,429 | $454,429 |
| 2014 | $307,928 | $150,000 | $0 | $457,928 | $457,928 |
| 2013 | $265,646 | $97,750 | $0 | $363,396 | $363,396 |
| 2012 | $268,927 | $97,750 | $0 | $366,677 | $366,677 |
| 2011 | $272,210 | $115,000 | $0 | $387,210 | $387,210 |
| 2010 | $282,870 | $115,000 | $0 | $397,870 | $397,870 |
| 2009 | $295,070 | $175,000 | $0 | $470,070 | $470,070 |
| 2008 | $298,192 | $185,000 | $0 | $483,192 | $483,192 |
| 2007 | $302,160 | $185,000 | $0 | $487,160 | $487,160 |
Deed and Sales History
| 1 | 02/03/2021 | WD | Warranty Deed | MARTINS, MARIE L | MARTINS TTEE, MARIA L | | | $0.00 | 46815 | 4509986 |
| 2 | 07/16/2004 | WD | Warranty Deed | ROSS, MABEL R | MARTINS, MARIE L | | | $385,000.00 | 43280 | 4107375 |
| 3 | 06/23/2004 | WD | Warranty Deed | WELFORD, JAMES W | WECHERT RELOCATION RESOR, | | | $385,000.00 | 43279 | 4107374 |
| 4 | 05/14/2003 | WD | Warranty Deed | OLAUSEN, OLAF A | WELFORD, JAMES W | | | $295,000.00 | 32197 | 4060314 |
| 5 | 07/01/1986 | REC | Real Estate Contract | MARTINS, MARIE L | GABELEIN, VERLANE | | | $9,200.00 | 61933 | 86009074 |
| 6 | 07/01/1986 | WD | Warranty Deed | GABELEIN, VERLANE | OLAUSEN, OLAF A | | | $30,000.00 | 61984 | 86009321 |
| 7 | 05/01/1984 | OTHER | Other - Misc. Documents | Unknown | ROSS, MABEL R | | | $0.00 | 60611 | 0 |
Payout Agreement
| No payout information available.. |