Property
Account |
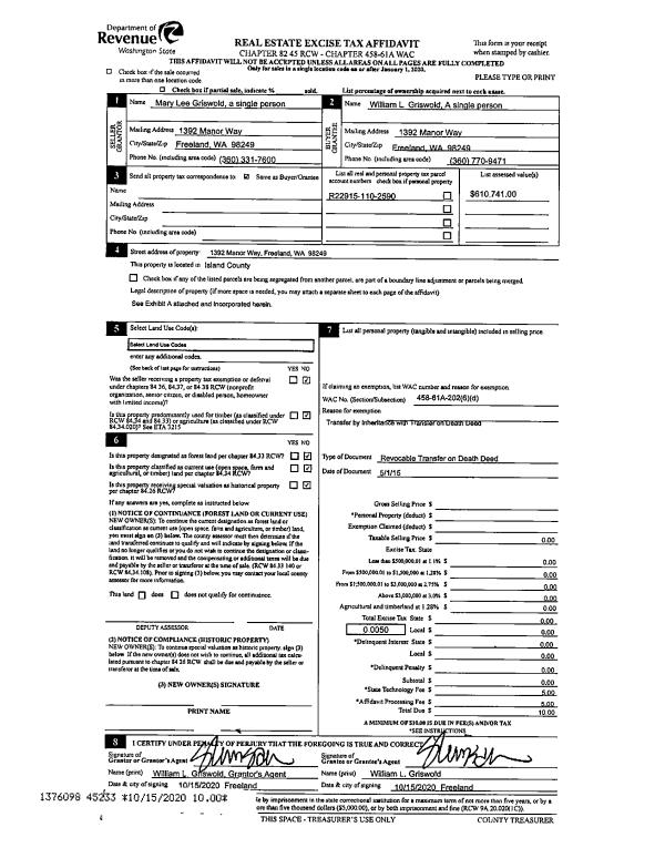
| Property ID: | 609390 | Abbreviated Legal Description: | SYNDICATE ADD LOT 2 SP 84-30.22915-S8290-56-1 V2 SP P39 AF#86007735 |
| Geographic ID: | S8290-00-00056-4 | Agent Code: | |
| Type: | Real | | |
| Tax Area: | 760 - APPRAISER-S Whid Schl Dist, Special District, improved & less than 1 acre | Land Use Code | 11 |
| Open Space: | N | DFL | N |
| Historic Property: | N | Remodel Property: | N |
| Multi-Family Redevelopment: | N | | |
| Township: | | Section: | |
| Range: | |
Location |
| Address: | 5636 CAMERON RD FREELAND, WA 98249 | Mapsco: | |
| Neighborhood: | Cycle 3 | Map ID: | 331 |
| Neighborhood CD: | 3 |
Owner |
| Name: | CHARLESON, LINDA M | Owner ID: | 306246 |
| Mailing Address: | PO BOX 160 CLINTON, WA 98236 | % Ownership: | 100.0000000000% |
| | | Exemptions: | SNR/DSBL |
Taxes and Assessment Details
Values
| (+) Improvement Homesite Value: | + | $266,295 | |
| (+) Improvement Non-Homesite Value: | + | $0 | |
| (+) Land Homesite Value: | + | $250,000 | |
| (+) Land Non-Homesite Value: | + | $0 | |
| (+) Curr Use (HS): | + | $0 | $0 |
| (+) Curr Use (NHS): | + | $0 | $0 |
| | | -------------------------- | |
| (=) Market Value: | = | $516,295 | |
| (–) Productivity Loss: | – | $0 | |
| | | -------------------------- | |
| (=) Subtotal: | = | $516,295 | |
| (+) Senior Appraised Value: | + | $502,933 | |
| (+) Non-Senior Appraised Value: | + | $0 | |
| | | -------------------------- | |
| (=) Total Appraised Value: | = | $502,933 | |
| (–) Senior Exemption Loss: | – | $301,760 | |
| (–) Exemption Loss: | – | $0 | |
| | | -------------------------- | |
| (=) Taxable Value: | = | $201,173 | |
Taxing Jurisdiction
| Owner: | CHARLESON, LINDA M | | |
| % Ownership: | 100.0000000000% | | |
| Total Value: | $516,295 | | |
| Tax Area: | 760 - APPRAISER-S Whid Schl Dist, Special District, improved & less than 1 acre |
| CF | Conservation Futures | 0.0316035091 | $516,295 | $201,173 | $6.36 | | |
| FIRE3 | Fire & Rescue Dist #3 S Whidbey GEN | 1.2004855531 | $516,295 | $201,173 | $241.51 | | |
| HOBOND | Hospital BOND | 0.0000000000 | $516,295 | $0 | $0.00 | | |
| HOGEN | Hospital GEN | 0.3902502903 | $516,295 | $201,173 | $78.51 | | |
| CE | County Current Expense | 0.3708482477 | $516,295 | $201,173 | $74.60 | | |
| CR | County Roads | 0.4584763726 | $516,295 | $201,173 | $92.23 | | |
| ISLANDEMS | Hospital GEN (EMS) | 0.5000000000 | $516,295 | $201,173 | $100.59 | | |
| LIB | Library Sno-Isle GEN | 0.3153421757 | $516,295 | $201,173 | $63.44 | | |
| PORTWHID | Port of S Whidbey GEN | 0.1094540357 | $516,295 | $201,173 | $22.02 | | |
| SCH206BOND | School 206 BOND | 0.3161759235 | $516,295 | $201,173 | $63.61 | | |
| SCH206MO | School 206 Enrichment | 0.0000000000 | $516,295 | $0 | $0.00 | | |
| ST | State School | 1.3035497053 | $516,295 | $201,173 | $262.24 | | |
| ST2 | State School Part 2 | 0.0000000000 | $516,295 | $0 | $0.00 | | |
| SWHIDPRBD | P & R S Whidbey BOND | 0.0000000000 | $516,295 | $0 | $0.00 | | |
| SWHIDPRBD2 | P & R S Whidbey BOND2 | 0.0000000000 | $516,295 | $0 | $0.00 | | |
| SWHIDPRMT | P & R S Whidbey GEN | 0.2053334452 | $516,295 | $201,173 | $41.31 | | |
| | Total Tax Rate: | 5.2015192582 | | | | | |
| | | | | Taxes w/Current Exemptions: | $1,046.42 | | |
| | | | | Taxes w/o Exemptions: | $3,455.80 | | |
Improvement / Building
| Improvement #1: | RESIDENTIAL | State Code: | Y | 1500.0 sqft | Value: | $266,295 |
| Bathrooms: | 2 | Bedrooms: | 3 | | Ceiling: | DRYWALL PAINTED | Cooling: | HEAT PUMP/CONV/V | | Exterior Wall/Cover: | PLY/HARDBOARD T-111 | Floor Covering: | VINYL 100% | | Floor Structure: | WOOD W/SUBFLOOR | Foundation: | CONCRETE | | Interior Finish: | DRYWALL PAINT | Plumbing Fixture Cnt: | 9 | | Roof Slope: | 4" IN 12" | Roof Structure/Cover: | CJ ASPHALT |
|
| | Type | Description | Class CD | Sub Class CD | Year Built | Area |
| | BAS | BASE/MAIN FLOOR | 3 | 0 | 1988 | 1500.0 |
| | AGR | ATTACHED GARAGE | 3 | 0 | 1988 | 480.0 |
| | OWP | OPEN WOOD PORCH W/STEPS | 3 | 0 | 1988 | 540.0 |
Sketch
Property Image
Land
| 1 | 15 | SQ (12001-21780) | 0.3400 | 14810.40 | 0.00 | 0.00 | 1.00 | $250,000 | $0 |
Roll Value History
| 2026 | N/A | N/A | N/A | N/A | N/A |
| 2025 | $266,295 | $250,000 | $0 | $516,295 | $201,173 |
| 2024 | $269,614 | $230,000 | $0 | $499,614 | $199,846 |
| 2023 | $272,933 | $230,000 | $0 | $502,933 | $201,173 |
| 2022 | $250,152 | $200,000 | $0 | $450,152 | $450,152 |
| 2021 | $220,143 | $150,000 | $0 | $370,143 | $370,143 |
| 2020 | $214,465 | $135,000 | $0 | $349,465 | $349,465 |
| 2019 | $146,828 | $170,000 | $0 | $316,828 | $316,828 |
| 2018 | $147,264 | $140,000 | $0 | $287,264 | $287,264 |
| 2017 | $137,646 | $100,000 | $0 | $237,646 | $237,646 |
| 2016 | $139,266 | $100,000 | $0 | $239,266 | $239,266 |
| 2015 | $140,885 | $100,000 | $0 | $240,885 | $240,885 |
| 2014 | $142,503 | $100,000 | $0 | $242,503 | $242,503 |
| 2013 | $128,423 | $97,750 | $0 | $226,173 | $226,173 |
| 2012 | $130,072 | $97,750 | $0 | $227,822 | $227,822 |
| 2011 | $131,722 | $115,000 | $0 | $246,722 | $246,722 |
| 2010 | $139,421 | $115,000 | $0 | $254,421 | $254,421 |
| 2009 | $145,351 | $180,000 | $0 | $325,351 | $325,351 |
| 2008 | $147,217 | $180,000 | $0 | $327,217 | $327,217 |
| 2007 | $136,337 | $180,000 | $0 | $316,337 | $316,337 |
Deed and Sales History
| 1 | 09/14/2022 | WD | Warranty Deed | EYTH, KATHERINE L | CHARLESON, LINDA M | | | $549,000.00 | 54624 | 4551561 |
| 2 | 12/28/2006 | WD | Warranty Deed | EYTH, KATHERINE L | EYTH, KATHERINE L | | | $0.00 | 70035 | 4190914 |
| 3 | 12/28/2006 | WD | Warranty Deed | GABELEIN, VERNON | EYTH, KATHERINE L | | | $353,700.00 | 70023 | 4190792 |
| 4 | 06/01/1987 | WD | Warranty Deed | GABELEIN, VERLANE | GABELEIN, VERNON | | | $12,000.00 | 71721 | 87008048 |
| 5 | 07/01/1986 | REC | Real Estate Contract | ROSS, MABEL R | GABELEIN, VERLANE | | | $1,600.00 | 61933 | 86009074 |
| 6 | 05/01/1984 | OTHER | Other - Misc. Documents | Unknown | ROSS, MABEL R | | | $0.00 | 60611 | 0 |
Payout Agreement
| No payout information available.. |