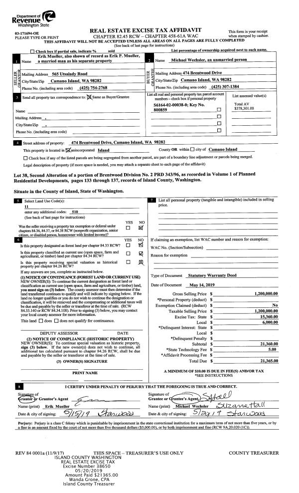
Property
Account |
| Property ID: | 609489 | Abbreviated Legal Description: | 1983 GENERAL 14X56 VIN# SG4800A TPO %64558 FROM K-560299 |
| Geographic ID: | M91400000036-1 | Agent Code: | |
| Type: | Mobile Home | | |
| Tax Area: | 110 - APPRAISER-OH Schl Dist, outside OH, improved & 1 acre or less | Land Use Code | 11 |
| Open Space: | N | DFL | N |
| Historic Property: | N | Remodel Property: | N |
| Multi-Family Redevelopment: | N | | |
| Township: | | Section: | |
| Range: | |
Location |
| Address: | 34938 SR20 # 36 OAK HARBOR, WA 98277 | Mapsco: | |
| Neighborhood: | Cycle 6 | Map ID: | |
| Neighborhood CD: | 6 |
Owner |
| Name: | WEEKS, PAIGE J | Owner ID: | 265964 |
| Mailing Address: | 34938 STATE ROUTE 20 #36 OAK HARBOR, WA 98277 | % Ownership: | 100.0000000000% |
| | | Exemptions: | |
Taxes and Assessment Details
Values
| (+) Improvement Homesite Value: | + | $0 | |
| (+) Improvement Non-Homesite Value: | + | $3,184 | |
| (+) Land Homesite Value: | + | $0 | |
| (+) Land Non-Homesite Value: | + | $0 | |
| (+) Curr Use (HS): | + | $0 | $0 |
| (+) Curr Use (NHS): | + | $0 | $0 |
| | | -------------------------- | |
| (=) Market Value: | = | $3,184 | |
| (–) Productivity Loss: | – | $0 | |
| | | -------------------------- | |
| (=) Subtotal: | = | $3,184 | |
| (+) Senior Appraised Value: | + | $0 | |
| (+) Non-Senior Appraised Value: | + | $3,184 | |
| | | -------------------------- | |
| (=) Total Appraised Value: | = | $3,184 | |
| (–) Senior Exemption Loss: | – | $0 | |
| (–) Exemption Loss: | – | $0 | |
| | | -------------------------- | |
| (=) Taxable Value: | = | $3,184 | |
Taxing Jurisdiction
| Owner: | WEEKS, PAIGE J | | |
| % Ownership: | 100.0000000000% | | |
| Total Value: | $3,184 | | |
| Tax Area: | 110 - APPRAISER-OH Schl Dist, outside OH, improved & 1 acre or less |
| CF | Conservation Futures | 0.0316035091 | $3,184 | $3,184 | $0.10 | | |
| CEM1 | Cemetery #1 | 0.0040320932 | $3,184 | $3,184 | $0.01 | | |
| FIRE2 | Fire & Rescue Dist #2 N Whidbey GEN | 0.5475949600 | $3,184 | $3,184 | $1.74 | | |
| HOBOND | Hospital BOND | 0.1910887512 | $3,184 | $3,184 | $0.61 | | |
| HOGEN | Hospital GEN | 0.3902502903 | $3,184 | $3,184 | $1.24 | | |
| CE | County Current Expense | 0.3708482477 | $3,184 | $3,184 | $1.18 | | |
| CR | County Roads | 0.4584763726 | $3,184 | $3,184 | $1.46 | | |
| ISLANDEMS | Hospital GEN (EMS) | 0.5000000000 | $3,184 | $3,184 | $1.59 | | |
| LIB | Library Sno-Isle GEN | 0.3153421757 | $3,184 | $3,184 | $1.00 | | |
| NWHIDPRMT | P & R N Whidbey GEN | 0.2004466701 | $3,184 | $3,184 | $0.64 | | |
| SCH201MO | School 201 Enrichment | 1.8559231640 | $3,184 | $3,184 | $5.91 | | |
| ST | State School | 1.3035497053 | $3,184 | $3,184 | $4.15 | | |
| ST2 | State School Part 2 | 0.8169543533 | $3,184 | $3,184 | $2.60 | | |
| | Total Tax Rate: | 6.9861102925 | | | | | |
| | | | | Taxes w/Current Exemptions: | $22.23 | | |
| | | | | Taxes w/o Exemptions: | $22.23 | | |
Improvement / Building
| Improvement #1: | MANUFACTURED HOME | State Code: | Y | 784.0 sqft | Value: | $3,184 |
| Bathrooms: | 0 | Bedrooms: | 0 | | Ceiling: | PLASTER PAINTED | Cooling: | EVAP NO DUCT | | Exterior Wall/Cover: | VINYL | Floor Covering: | CARPET 100% | | Floor Structure: | SLAB ON GRADE | Foundation: | SLAB | | Heating: | FHA ELECTRIC | Interior Finish: | PLASTER | | Plumbing Fixture Cnt: | 1 | Roof Slope: | FLAT | | Roof Structure/Cover: | CJ ALUMINIUM HEAVY |   |   |
|
Sketch
Property Image
Land
No land segments exist for this property.
Roll Value History
| 2026 | N/A | N/A | N/A | N/A | N/A |
| 2025 | $3,184 | $0 | $0 | $3,184 | $3,184 |
| 2024 | $3,389 | $0 | $0 | $3,389 | $3,389 |
| 2023 | $5,209 | $0 | $0 | $5,209 | $5,209 |
| 2022 | $4,044 | $0 | $0 | $4,044 | $4,044 |
| 2021 | $3,634 | $0 | $0 | $3,634 | $3,634 |
| 2020 | $3,755 | $0 | $0 | $3,755 | $3,755 |
| 2019 | $3,138 | $0 | $0 | $3,138 | $3,138 |
| 2018 | $3,407 | $0 | $0 | $3,407 | $3,407 |
| 2017 | $3,586 | $0 | $0 | $3,586 | $3,586 |
| 2016 | $3,313 | $0 | $0 | $3,313 | $3,313 |
| 2015 | $3,470 | $0 | $0 | $3,470 | $3,470 |
| 2014 | $3,628 | $0 | $0 | $3,628 | $3,628 |
| 2013 | $3,786 | $0 | $0 | $3,786 | $3,786 |
| 2012 | $4,022 | $0 | $0 | $4,022 | $4,022 |
| 2011 | $4,180 | $0 | $0 | $4,180 | $4,180 |
| 2010 | $5,456 | $0 | $0 | $5,456 | $5,456 |
| 2009 | $5,735 | $0 | $0 | $5,735 | $5,735 |
| 2008 | $5,923 | $0 | $0 | $5,923 | $5,923 |
| 2007 | $6,121 | $0 | $0 | $6,121 | $6,121 |
Deed and Sales History
| 1 | 06/13/2019 | MANHOME | Manufactured Home | JOHNSON, JERRY E | WEEKS, PAIGE J | | | $0.00 | 38954 | |
| 2 | 06/25/2013 | OTHER | Other - Misc. Documents | MACDONALD, RONALD W | JOHNSON, JERRY E | | | $1,800.00 | 11757 | |
| 3 | 03/01/1986 | OTHER | Other - Misc. Documents | Unknown | MACDONALD, RONALD W | | | $12,500.00 | 60431 | 0 |
Payout Agreement
| No payout information available.. |