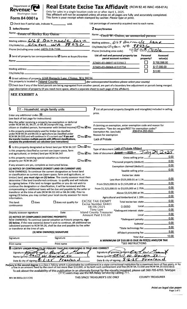
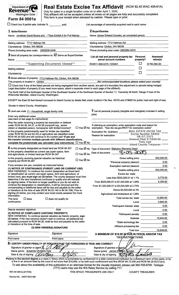
Property
Account |
| Property ID: | 609666 | Abbreviated Legal Description: | MARINER HTS CONDO UNIT 8 4.17% INT IN LAND 13.2% INT IN BLDG B |
| Geographic ID: | S7487-00-00008-0 | Agent Code: | |
| Type: | Real | | |
| Tax Area: | 100 - APPRAISER-OH Schl Dist, in OH | Land Use Code | 14 |
| Open Space: | N | DFL | N |
| Historic Property: | N | Remodel Property: | N |
| Multi-Family Redevelopment: | N | | |
| Township: | | Section: | |
| Range: | |
Location |
| Address: | 31080 SR20 UNIT A106 OAK HARBOR, WA 98277 | Mapsco: | |
| Neighborhood: | 3A*OH-mariner hgt | Map ID: | 91 |
| Neighborhood CD: | 3A*OHmarhg |
Owner |
| Name: | SMITH, JOHN LEWIS | Owner ID: | 315290 |
| Mailing Address: | 31080 SR 20 UNIT A106 OAK HARBOR, WA 98277 | % Ownership: | 100.0000000000% |
| | | Exemptions: | |
Taxes and Assessment Details
Values
| (+) Improvement Homesite Value: | + | $0 | |
| (+) Improvement Non-Homesite Value: | + | $210,906 | |
| (+) Land Homesite Value: | + | $0 | |
| (+) Land Non-Homesite Value: | + | $150,000 | |
| (+) Curr Use (HS): | + | $0 | $0 |
| (+) Curr Use (NHS): | + | $0 | $0 |
| | | -------------------------- | |
| (=) Market Value: | = | $360,906 | |
| (–) Productivity Loss: | – | $0 | |
| | | -------------------------- | |
| (=) Subtotal: | = | $360,906 | |
| (+) Senior Appraised Value: | + | $0 | |
| (+) Non-Senior Appraised Value: | + | $360,906 | |
| | | -------------------------- | |
| (=) Total Appraised Value: | = | $360,906 | |
| (–) Senior Exemption Loss: | – | $0 | |
| (–) Exemption Loss: | – | $0 | |
| | | -------------------------- | |
| (=) Taxable Value: | = | $360,906 | |
Taxing Jurisdiction
| Owner: | SMITH, JOHN LEWIS | | |
| % Ownership: | 100.0000000000% | | |
| Total Value: | $360,906 | | |
| Tax Area: | 100 - APPRAISER-OH Schl Dist, in OH |
| CF | Conservation Futures | 0.0316035091 | $360,906 | $360,906 | $11.41 | | |
| CEM1 | Cemetery #1 | 0.0040320932 | $360,906 | $360,906 | $1.46 | | |
| COH | City of Oak Harbor | 2.3001546061 | $360,906 | $360,906 | $830.14 | | |
| OAKBOND | City of Oak Harbor BOND | 0.1926904192 | $360,906 | $360,906 | $69.54 | | |
| HOBOND | Hospital BOND | 0.1910887512 | $360,906 | $360,906 | $68.97 | | |
| HOGEN | Hospital GEN | 0.3902502903 | $360,906 | $360,906 | $140.84 | | |
| CE | County Current Expense | 0.3708482477 | $360,906 | $360,906 | $133.84 | | |
| ISLANDEMS | Hospital GEN (EMS) | 0.5000000000 | $360,906 | $360,906 | $180.45 | | |
| LIB | Library Sno-Isle GEN | 0.3153421757 | $360,906 | $360,906 | $113.81 | | |
| NWHIDPRMT | P & R N Whidbey GEN | 0.2004466701 | $360,906 | $360,906 | $72.34 | | |
| SCH201MO | School 201 Enrichment | 1.8559231640 | $360,906 | $360,906 | $669.81 | | |
| ST | State School | 1.3035497053 | $360,906 | $360,906 | $470.46 | | |
| ST2 | State School Part 2 | 0.8169543533 | $360,906 | $360,906 | $294.84 | | |
| | Total Tax Rate: | 8.4728839852 | | | | | |
| | | | | Taxes w/Current Exemptions: | $3,057.91 | | |
| | | | | Taxes w/o Exemptions: | $3,057.91 | | |
Improvement / Building
| Improvement #1: | RESIDENTIAL | State Code: | A1 | 1442.0 sqft | Value: | $210,906 |
| Bathrooms: | 2 | Bedrooms: | 3 | | Ceiling: | DRYWALL PAINTED | Exterior Wall/Cover: | WOOD SIDING | | Floor Covering: | CARPET/VINYL 80-20 | Floor Structure: | WOOD W/SUBFLOOR | | Foundation: | CONCRETE | Heating: | FHA GAS | | Interior Finish: | DRYWALL PAINT | Plumbing Fixture Cnt: | 9 | | Roof Slope: | 4" IN 12" | Roof Structure/Cover: | CJ ASPHALT |
|
| | Type | Description | Class CD | Sub Class CD | Year Built | Area |
| | BAS | BASE/MAIN FLOOR | 3 | 0 | 1986 | 721.0 |
| | DGR | DETACHED GARAGE | 3 | 0 | 1986 | 288.0 |
| | UPS | UPPER STORY | 3 | 0 | 1986 | 721.0 |
| | OWP | OPEN WOOD PORCH W/STEPS | 3 | 0 | 1986 | 120.0 |
| | OWC | OPEN WOOD PORCH W/STEPS/ROOF/C | 3 | 0 | 1986 | 12.0 |
| | COMA | Common Area Improvement | 3 | 0 | 1986 | 0.0 |
Sketch
Property Image
Land
| 1 | 61 | MULTIPLE RESIDENCES | 0.0000 | 3370.00 | 0.00 | 0.00 | 1.00 | $150,000 | $0 |
Roll Value History
| 2026 | N/A | N/A | N/A | N/A | N/A |
| 2025 | $210,906 | $150,000 | $0 | $360,906 | $360,906 |
| 2024 | $213,856 | $145,000 | $0 | $358,856 | $358,856 |
| 2023 | $216,804 | $145,000 | $0 | $361,804 | $361,804 |
| 2022 | $199,064 | $150,000 | $0 | $349,064 | $349,064 |
| 2021 | $175,536 | $100,000 | $0 | $275,536 | $275,536 |
| 2020 | $171,197 | $70,000 | $0 | $241,197 | $241,197 |
| 2019 | $135,136 | $95,000 | $0 | $230,136 | $230,136 |
| 2018 | $135,604 | $65,000 | $0 | $200,604 | $200,604 |
| 2017 | $136,538 | $30,000 | $0 | $166,538 | $166,538 |
| 2016 | $138,410 | $30,000 | $0 | $168,410 | $168,410 |
| 2015 | $140,281 | $30,000 | $0 | $170,281 | $170,281 |
| 2014 | $142,151 | $30,000 | $0 | $172,151 | $172,151 |
| 2013 | $143,312 | $30,330 | $0 | $173,642 | $173,642 |
| 2012 | $160,273 | $30,330 | $0 | $190,603 | $190,603 |
| 2011 | $160,273 | $30,330 | $0 | $190,603 | $190,603 |
| 2010 | $164,661 | $19,782 | $0 | $184,443 | $184,443 |
| 2009 | $171,712 | $33,700 | $0 | $205,412 | $205,412 |
| 2008 | $173,735 | $77,510 | $0 | $251,245 | $251,245 |
| 2007 | $169,347 | $77,510 | $0 | $246,857 | $246,857 |
Deed and Sales History
| 1 | 01/28/2025 | QCD | Quit Claim Deed | SMITH, MACKENZIE RENEE | SMITH, JOHN LEWIS | | | $0.00 | 62448 | 4581789 |
| 2 | 01/23/2025 | WD | Warranty Deed | WENTZ, CHRISTOPHER S | SMITH, JOHN LEWIS | | | $374,900.00 | 62447 | 4581788 |
| 3 | 12/01/2022 | QCD | Quit Claim Deed | WENTZ, MICHAELA D | WENTZ, CHRISTOPHER S | | | $0.00 | 55339 | 4554686 |
| 4 | 06/28/2021 | WD | Warranty Deed | CHUN, DAVID H | WENTZ, CHRISTOPHER STEPHEN | | | $340,000.00 | 49063 | 4523774 |
| 5 | 10/21/2008 | WD | Warranty Deed | SAUNDERS, JOSHUA E | CHUN, DAVID H | | | $200,000.00 | 82763 | 4238791 |
| 6 | 05/07/2004 | WD | Warranty Deed | COX, DOROTHY I | SAUNDERS, JOSHUA E | | | $166,500.00 | 41977 | 4100352 |
| 7 | 11/01/1988 | WD | Warranty Deed | WOOLWORTH, DEVELOPMENT, I | COX, DOROTHY I | | | $82,950.00 | 84093 | 88015337 |
| 8 | 01/01/1900 | OTHER | Other - Misc. Documents | Unknown | WOOLWORTH, DEVELOPMENT, I | | | $0.00 | 50135 | 85000669 |
Payout Agreement
| No payout information available.. |