| 1 | 10/30/2023 | WD | Warranty Deed | LYLE, JUSTIN | POTEET, CHRISTOPHER M | | | $396,000.00 | 58383 | 4566244 |
| 2 | 07/15/2021 | WD | Warranty Deed | BEBEE, LISA H | LYLE, JUSTIN | | | $370,000.00 | 49224 | 4524753 |
| 3 | 02/09/2017 | ESTSEPPROP | Establish Separate Property | BEBEE, LISA H | BEBEE, LISA H | | | $0.00 | 28036 | 4416845 |
| 4 | 02/08/2017 | WD | Warranty Deed | MORGAN, GREGORY | BEBEE, LISA H | | | $205,000.00 | 28035 | 4416844 |
| 5 | 04/12/2012 | BARGSLD | Bargain And Sale Deed | FEDERAL HOME LOAN MORTGAGE CORPORATION | MORGAN, GREGORY | | | $140,000.00 | 7387 | 4313668 |
| 6 | 11/22/2011 | TRUSTEED | Trustee's Deed | MARTI, LISA M | FEDERAL HOME LOAN MORTGAGE CORPORATION | | | $112,000.00 | 6226 | 4305423 |
| 7 | 02/22/2007 | ESTSEPPROP | Establish Separate Property | MARTI, LISA M | MARTI, LISA M | | | $0.00 | 70730 | 4195548 |
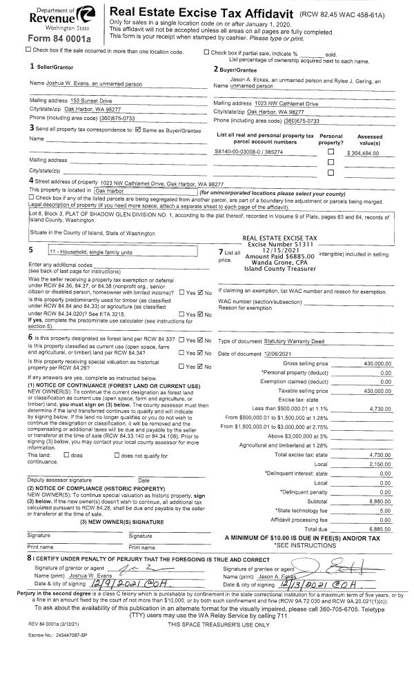
| 8 | 02/22/2007 | WD | Warranty Deed | MASSEY, CLAYTON B | MARTI, LISA M | | | $232,000.00 | 70731 | 4195549 |
| 9 | 03/07/2005 | WD | Warranty Deed | JOHNSON, BRIAN M | MASSEY, CLAYTON B | | | $175,000.00 | 50959 | 4128011 |
| 10 | 05/11/2001 | WD | Warranty Deed | MOORE, KENT W | JOHNSON, BRIAN M | | | $149,500.00 | 11690 | 20032355 |
| 11 | 07/01/1997 | WD | Warranty Deed | HADDON, J | MOORE, KENT W | | | $139,900.00 | 72515 | 97011919 |
| 12 | 07/01/1986 | WD | Warranty Deed | WOOLWORTH, DEVELOPMENT, I | HADDON, J | | | $91,450.00 | 61771 | 86008389 |
| 13 | 01/01/1900 | OTHER | Other - Misc. Documents | Unknown | WOOLWORTH, DEVELOPMENT, I | | | $0.00 | 50135 | 85000669 |