Property
Account |
| Property ID: | 610011 | Abbreviated Legal Description: | LOT C SP 84-122.13217.023-4800 & .058-5000 V2 SP P64 AF#86009985 |
| Geographic ID: | R13217-033-5150 | Agent Code: | |
| Type: | Real | | |
| Tax Area: | 112 - APPRAISER-OH Schl Dist, outside OH, improved, greater than 1 acre | Land Use Code | 11 |
| Open Space: | N | DFL | N |
| Historic Property: | N | Remodel Property: | N |
| Multi-Family Redevelopment: | N | | |
| Township: | 32 | Section: | 17 |
| Range: | R1 |
Location |
| Address: | 1225 LOMBARDY LN OAK HARBOR, WA 98277 | Mapsco: | |
| Neighborhood: | Cycle 1 | Map ID: | 133 |
| Neighborhood CD: | 1 |
Owner |
| Name: | HUBBARD, JOSHUA | Owner ID: | 289121 |
| Mailing Address: | REBEKAH HUBBARD 1225 LOMBARDY LN OAK HARBOR, WA 98277 | % Ownership: | 100.0000000000% |
| | | Exemptions: | |
Taxes and Assessment Details
Values
| (+) Improvement Homesite Value: | + | $0 | |
| (+) Improvement Non-Homesite Value: | + | $335,073 | |
| (+) Land Homesite Value: | + | $0 | |
| (+) Land Non-Homesite Value: | + | $260,000 | |
| (+) Curr Use (HS): | + | $0 | $0 |
| (+) Curr Use (NHS): | + | $0 | $0 |
| | | -------------------------- | |
| (=) Market Value: | = | $595,073 | |
| (–) Productivity Loss: | – | $0 | |
| | | -------------------------- | |
| (=) Subtotal: | = | $595,073 | |
| (+) Senior Appraised Value: | + | $0 | |
| (+) Non-Senior Appraised Value: | + | $595,073 | |
| | | -------------------------- | |
| (=) Total Appraised Value: | = | $595,073 | |
| (–) Senior Exemption Loss: | – | $0 | |
| (–) Exemption Loss: | – | $0 | |
| | | -------------------------- | |
| (=) Taxable Value: | = | $595,073 | |
Taxing Jurisdiction
| Owner: | HUBBARD, JOSHUA | | |
| % Ownership: | 100.0000000000% | | |
| Total Value: | $595,073 | | |
| Tax Area: | 112 - APPRAISER-OH Schl Dist, outside OH, improved, greater than 1 acre |
| CF | Conservation Futures | 0.0316035091 | $595,073 | $595,073 | $18.81 | | |
| CEM1 | Cemetery #1 | 0.0040320932 | $595,073 | $595,073 | $2.40 | | |
| FIRE2 | Fire & Rescue Dist #2 N Whidbey GEN | 0.5475949600 | $595,073 | $595,073 | $325.86 | | |
| HOBOND | Hospital BOND | 0.1910887512 | $595,073 | $595,073 | $113.71 | | |
| HOGEN | Hospital GEN | 0.3902502903 | $595,073 | $595,073 | $232.23 | | |
| CE | County Current Expense | 0.3708482477 | $595,073 | $595,073 | $220.68 | | |
| CR | County Roads | 0.4584763726 | $595,073 | $595,073 | $272.83 | | |
| ISLANDEMS | Hospital GEN (EMS) | 0.5000000000 | $595,073 | $595,073 | $297.54 | | |
| LIB | Library Sno-Isle GEN | 0.3153421757 | $595,073 | $595,073 | $187.65 | | |
| NWHIDPRMT | P & R N Whidbey GEN | 0.2004466701 | $595,073 | $595,073 | $119.28 | | |
| SCH201MO | School 201 Enrichment | 1.8559231640 | $595,073 | $595,073 | $1,104.41 | | |
| ST | State School | 1.3035497053 | $595,073 | $595,073 | $775.71 | | |
| ST2 | State School Part 2 | 0.8169543533 | $595,073 | $595,073 | $486.15 | | |
| | Total Tax Rate: | 6.9861102925 | | | | | |
| | | | | Taxes w/Current Exemptions: | $4,157.26 | | |
| | | | | Taxes w/o Exemptions: | $4,157.26 | | |
Improvement / Building
| Improvement #1: | RESIDENTIAL | State Code: | Y | 1852.0 sqft | Value: | $335,073 |
| Bathrooms: | 2 | Bedrooms: | 3 | | Ceiling: | DRY WALL SPRAYED | Cooling: | HEAT PUMP/CONV/V | | Exterior Wall/Cover: | FACE BRICK VENEER | Floor Covering: | CARPET/VINYL 80-20 | | Floor Structure: | WOOD W/SUBFLOOR | Foundation: | CONCRETE | | Interior Finish: | DRYWALL PAINT | Plumbing Fixture Cnt: | 9 | | Roof Slope: | 5" IN 12" | Roof Structure/Cover: | CJ ASPHALT |
|
| | Type | Description | Class CD | Sub Class CD | Year Built | Area |
| | BAS | BASE/MAIN FLOOR | 3 | 0 | 1978 | 1372.0 |
| | UB8 | BASEMENT UNFINISHED 8" | 3 | 0 | 1978 | 224.0 |
| | DWN | DOWNSTAIRS LIVING AREA | 3 | 0 | 1978 | 480.0 |
| | OP2 | OPEN PORCH W/STEPS | 3 | 0 | 1978 | 90.0 |
| | AGR | ATTACHED GARAGE | 3 | 0 | 1978 | 420.0 |
| | OWP | OPEN WOOD PORCH W/STEPS | 3 | 0 | 1978 | 246.0 |
| | DGR | DETACHED GARAGE | 3 | 0 | 1978 | 576.0 |
Sketch
Property Image
Land
| 1 | 18 | AC (02.01-03.00) | 0.0000 | 0.00 | 0.00 | 0.00 | 1.00 | $260,000 | $0 |
Roll Value History
| 2026 | N/A | N/A | N/A | N/A | N/A |
| 2025 | $335,073 | $260,000 | $0 | $595,073 | $595,073 |
| 2024 | $339,410 | $260,000 | $0 | $599,410 | $599,410 |
| 2023 | $348,521 | $240,000 | $0 | $588,521 | $588,521 |
| 2022 | $319,673 | $220,000 | $0 | $539,673 | $539,673 |
| 2021 | $290,613 | $180,000 | $0 | $470,613 | $470,613 |
| 2020 | $279,140 | $140,000 | $0 | $419,140 | $419,140 |
| 2019 | $202,657 | $200,000 | $0 | $402,657 | $402,657 |
| 2018 | $203,279 | $160,000 | $0 | $363,279 | $363,279 |
| 2017 | $183,203 | $150,000 | $0 | $333,203 | $333,203 |
| 2016 | $185,801 | $120,000 | $0 | $305,801 | $305,801 |
| 2015 | $188,402 | $90,000 | $0 | $278,402 | $278,402 |
| 2014 | $191,000 | $90,000 | $0 | $281,000 | $281,000 |
| 2013 | $193,599 | $102,000 | $0 | $295,599 | $295,599 |
| 2012 | $196,199 | $102,000 | $0 | $298,199 | $298,199 |
| 2011 | $212,298 | $120,000 | $0 | $332,298 | $332,298 |
| 2010 | $211,464 | $120,000 | $0 | $331,464 | $331,464 |
| 2009 | $219,977 | $132,000 | $0 | $351,977 | $351,977 |
| 2008 | $227,949 | $130,680 | $0 | $358,629 | $358,629 |
| 2007 | $230,810 | $130,680 | $0 | $361,490 | $361,490 |
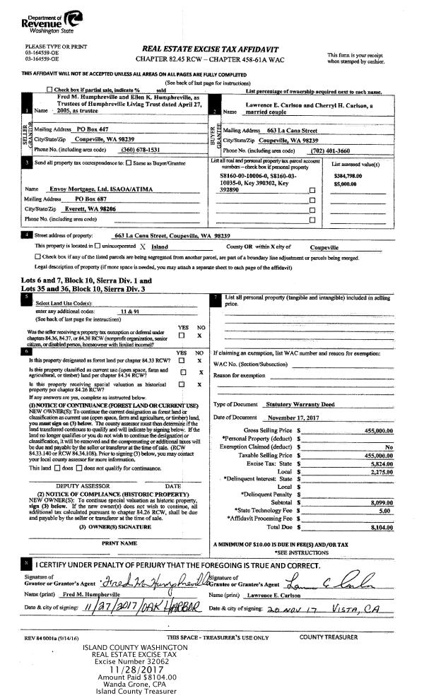
Deed and Sales History
| 1 | 03/04/2019 | WD | Warranty Deed | WALDEN ET AL, STEPHEN M | HUBBARD, JOSHUA | | | $338,000.00 | 37877 | 4460528 |
| 2 | 11/03/2017 | QCD | Quit Claim Deed | WALDEN ET AL, STEPHEN M | WALDEN ET AL, STEPHEN M | | | $0.00 | 31811 | 4433530 |
| 3 | 11/03/2017 | QCD | Quit Claim Deed | WALDEN ET AL, STEPHEN M | WALDEN ET AL, STEPHEN M | | | $0.00 | 31810 | 4433530 |
| 4 | 11/03/2017 | QCD | Quit Claim Deed | WALDEN, CHELSEE L | WALDEN ET AL, STEPHEN M | | | $140,000.00 | 31809 | 4433530 |
| 5 | 09/19/2017 | PRD | Personal Representatives Deed | NUNN, ROSALIE L | WALDEN, CHELSEE L | | | $0.00 | 31144 | 4430444 |
| 6 | 11/16/2006 | OTHER | Other - Misc. Documents | NUNN, RALPH T | NUNN, ROSALIE L | | | $0.00 | 80072 | 0 |
| 7 | 08/01/1986 | WD | Warranty Deed | NUNN, RALPH T | NUNN, RALPH T | | | $0.00 | 62270 | 86010472 |
| 8 | 01/01/1900 | OTHER | Other - Misc. Documents | Unknown | NUNN, RALPH T | | | $0.00 | 0 | 0 |
Payout Agreement
| No payout information available.. |