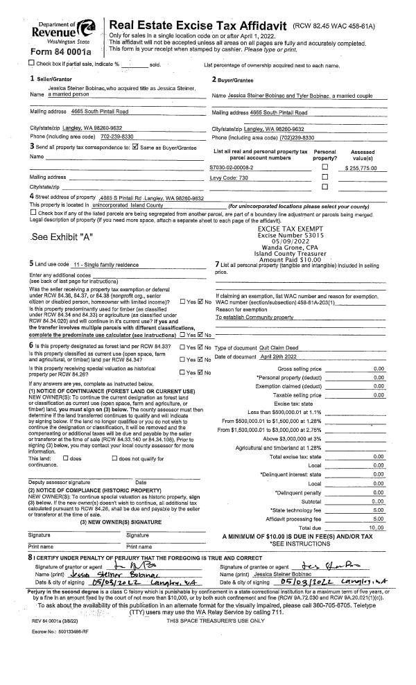
Property
Account |
| Property ID: | 610020 | Abbreviated Legal Description: | LOT 2-A SP 84-08.13230.506-1330 V2 SP P54 AF#86009258 |
| Geographic ID: | R13230-508-1170 | Agent Code: | |
| Type: | Real | | |
| Tax Area: | 332 - APPRAISER-Cpvl Schl Dist, Special Dist, improved, greater than 1 acre | Land Use Code | 11 |
| Open Space: | N | DFL | N |
| Historic Property: | N | Remodel Property: | N |
| Multi-Family Redevelopment: | N | | |
| Township: | 32 | Section: | 30 |
| Range: | R1 |
Location |
| Address: | 2310 SKYCREST DR COUPEVILLE, WA 98239 | Mapsco: | |
| Neighborhood: | Cycle 2 | Map ID: | 164 |
| Neighborhood CD: | 2 |
Owner |
| Name: | HAMER, ERIC WYNNE | Owner ID: | 302569 |
| Mailing Address: | 2310 SKYCREST DR COUPEVILLE, WA 98239 | % Ownership: | 100.0000000000% |
| | | Exemptions: | |
Taxes and Assessment Details
Values
| (+) Improvement Homesite Value: | + | $0 | |
| (+) Improvement Non-Homesite Value: | + | $630,434 | |
| (+) Land Homesite Value: | + | $0 | |
| (+) Land Non-Homesite Value: | + | $331,428 | |
| (+) Curr Use (HS): | + | $0 | $0 |
| (+) Curr Use (NHS): | + | $0 | $0 |
| | | -------------------------- | |
| (=) Market Value: | = | $961,862 | |
| (–) Productivity Loss: | – | $0 | |
| | | -------------------------- | |
| (=) Subtotal: | = | $961,862 | |
| (+) Senior Appraised Value: | + | $0 | |
| (+) Non-Senior Appraised Value: | + | $961,862 | |
| | | -------------------------- | |
| (=) Total Appraised Value: | = | $961,862 | |
| (–) Senior Exemption Loss: | – | $0 | |
| (–) Exemption Loss: | – | $0 | |
| | | -------------------------- | |
| (=) Taxable Value: | = | $961,862 | |
Taxing Jurisdiction
| Owner: | HAMER, ERIC WYNNE | | |
| % Ownership: | 100.0000000000% | | |
| Total Value: | $961,862 | | |
| Tax Area: | 332 - APPRAISER-Cpvl Schl Dist, Special Dist, improved, greater than 1 acre |
| CF | Conservation Futures | 0.0316035091 | $961,862 | $961,862 | $30.40 | | |
| CEM2 | Cemetery #2 | 0.0095056933 | $961,862 | $961,862 | $9.14 | | |
| FIRE2 | Fire & Rescue Dist #2 N Whidbey GEN | 0.5475949600 | $961,862 | $961,862 | $526.71 | | |
| HOBOND | Hospital BOND | 0.1910887512 | $961,862 | $961,862 | $183.80 | | |
| HOGEN | Hospital GEN | 0.3902502903 | $961,862 | $961,862 | $375.37 | | |
| CE | County Current Expense | 0.3708482477 | $961,862 | $961,862 | $356.70 | | |
| CR | County Roads | 0.4584763726 | $961,862 | $961,862 | $440.99 | | |
| ISLANDEMS | Hospital GEN (EMS) | 0.5000000000 | $961,862 | $961,862 | $480.93 | | |
| LIB | Library Sno-Isle GEN | 0.3153421757 | $961,862 | $961,862 | $303.32 | | |
| LIBCAP | Library Sno-Isle BOND (Cap Fac Imp Area) | 0.0543427938 | $961,862 | $961,862 | $52.27 | | |
| POCOUP | Port of Coupeville GEN | 0.1093371703 | $961,862 | $961,862 | $105.17 | | |
| POCOUPIDD | Port of Coupeville IDD | 0.3409740022 | $961,862 | $961,862 | $327.97 | | |
| COUPSDTECH | School 204 CP (TECH) | 0.7545480007 | $961,862 | $961,862 | $725.77 | | |
| SCH204MO | School 204 Enrichment | 0.6716186034 | $961,862 | $961,862 | $646.00 | | |
| ST | State School | 1.3035497053 | $961,862 | $961,862 | $1,253.83 | | |
| ST2 | State School Part 2 | 0.8169543533 | $961,862 | $961,862 | $785.80 | | |
| | Total Tax Rate: | 6.8660346289 | | | | | |
| | | | | Taxes w/Current Exemptions: | $6,604.17 | | |
| | | | | Taxes w/o Exemptions: | $6,604.17 | | |
Improvement / Building
| Improvement #1: | RESIDENTIAL | State Code: | Y | 3225.8 sqft | Value: | $630,434 |
| Bathrooms: | 3.5 | Bedrooms: | 3 | | Ceiling: | DRYWALL PAINTED | Exterior Wall/Cover: | STUCCO | | Floor Covering: | HARDWOOD/CARP 20-80 | Floor Structure: | WOOD W/SUBFLOOR | | Foundation: | CONCRETE | Heating: | RADIANT FLOOR | | Interior Finish: | DRYWALL PAINT | Plumbing Fixture Cnt: | 14 | | Roof Slope: | 5" IN 12" | Roof Structure/Cover: | CJ ASPHALT |
|
| | Type | Description | Class CD | Sub Class CD | Year Built | Area |
| | BAS | BASE/MAIN FLOOR | 5 | 0 | 1997 | 1970.5 |
| | OP4 | OPEN PORCH W/CEILING-ROOF | 5 | 0 | 1997 | 162.4 |
| | AGR | ATTACHED GARAGE | 5 | 0 | 1997 | 953.0 |
| | UPS | UPPER STORY | 5 | 0 | 1997 | 499.7 |
| | BAW | BALCONY WOOD RAIL | 5 | 0 | 1997 | 102.5 |
| | oGAR | GARAGE | 4 | 0 | 2001 | 780.0 |
| | LOF | LOFT | 5 | 0 | 1997 | 755.6 |
Sketch
| No sketches available for this property. |
Property Image
Land
| 1 | HS | HOMESITE | 1.0000 | 43560.00 | 0.00 | 0.00 | 1.00 | $270,000 | $0 |
| 2 | 91 | UNDEVELOPED LAND-METES AND BOUNDS | 4.0000 | 174240.00 | 0.00 | 0.00 | 1.00 | $61,428 | $0 |
Roll Value History
| 2026 | N/A | N/A | N/A | N/A | N/A |
| 2025 | $630,434 | $331,428 | $0 | $961,862 | $961,862 |
| 2024 | $626,636 | $320,000 | $0 | $946,636 | $946,636 |
| 2023 | $634,347 | $310,000 | $0 | $944,347 | $944,347 |
| 2022 | $581,390 | $290,000 | $0 | $871,390 | $871,390 |
| 2021 | $511,630 | $220,000 | $0 | $731,630 | $731,630 |
| 2020 | $498,830 | $200,000 | $0 | $698,830 | $698,830 |
| 2019 | $420,119 | $250,000 | $0 | $670,119 | $670,119 |
| 2018 | $380,221 | $230,000 | $0 | $610,221 | $610,221 |
| 2017 | $382,472 | $230,000 | $0 | $612,472 | $612,472 |
| 2016 | $369,908 | $230,000 | $0 | $599,908 | $599,908 |
| 2015 | $374,312 | $225,000 | $0 | $599,312 | $599,312 |
| 2014 | $378,716 | $216,450 | $0 | $595,166 | $595,166 |
| 2013 | $383,118 | $216,450 | $0 | $599,568 | $599,568 |
| 2012 | $386,549 | $216,450 | $0 | $602,999 | $602,999 |
| 2011 | $390,753 | $240,500 | $0 | $631,253 | $631,253 |
| 2010 | $405,311 | $240,500 | $0 | $645,811 | $645,811 |
| 2009 | $421,935 | $264,550 | $0 | $686,485 | $686,485 |
| 2008 | $427,145 | $264,550 | $0 | $691,695 | $691,695 |
| 2007 | $432,344 | $210,000 | $0 | $642,344 | $642,344 |
Deed and Sales History
| 1 | 12/13/2021 | PRD | Personal Representatives Deed | HAMER, ERIC W | HAMER, ERIC WYNNE | | | $0.00 | 51567 | 4537263 |
| 2 | 03/11/2000 | WD | Warranty Deed | MEIER, JOHN F & RACHEL D | HAMER, ERIC W | | | $433,000.00 | 942 | 20004627 |
| 3 | 07/01/1995 | WD | Warranty Deed | MILLER, ROBERT C | MEIER, JOHN F | | | $78,000.00 | 52565 | 95011851 |
| 4 | 01/01/1987 | WD | Warranty Deed | PENN, COVE A | MILLER, ROBERT C | | | $32,000.00 | 70149 | 87000985 |
| 5 | 12/01/1983 | CD | DNU - Correction Deed | Unknown | PENN, COVE A | | | $0.00 | 60434 | 418707 |
| 6 | 01/01/1900 | OTHER | Other - Misc. Documents | MEIER, JOHN F | MEIER, JOHN F & RACHEL D | | | $0.00 | 0 | 0 |
Payout Agreement
| No payout information available.. |