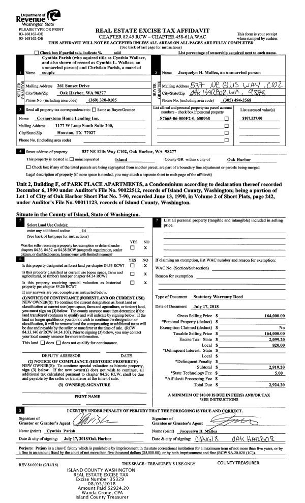
Property
Account |
| Property ID: | 610039 | Abbreviated Legal Description: | LOT 2-B SP 84-08.13230.506-1330 V2 SP P54 AF#86009258 EX E80' OF N228.27' TGW W50' OF S365.23' OF LOT 3A SP 84/11 V2 SP P53 AF#86009257 |
| Geographic ID: | R13230-509-1530 | Agent Code: | |
| Type: | Real | | |
| Tax Area: | 332 - APPRAISER-Cpvl Schl Dist, Special Dist, improved, greater than 1 acre | Land Use Code | 11 |
| Open Space: | N | DFL | N |
| Historic Property: | N | Remodel Property: | N |
| Multi-Family Redevelopment: | N | | |
| Township: | 32 | Section: | 30 |
| Range: | R1 |
Location |
| Address: | 2288 SKYCREST DR COUPEVILLE, WA 98239 | Mapsco: | |
| Neighborhood: | Cycle 2 | Map ID: | 164 |
| Neighborhood CD: | 2 |
Owner |
| Name: | ALBI, TODD ROSS | Owner ID: | 300257 |
| Mailing Address: | LINDA D ALBI 2288 SKYCREST DRIVE COUPEVILLE, WA 98239 | % Ownership: | 100.0000000000% |
| | | Exemptions: | |
Taxes and Assessment Details
Values
| (+) Improvement Homesite Value: | + | $0 | |
| (+) Improvement Non-Homesite Value: | + | $838,471 | |
| (+) Land Homesite Value: | + | $0 | |
| (+) Land Non-Homesite Value: | + | $371,917 | |
| (+) Curr Use (HS): | + | $0 | $0 |
| (+) Curr Use (NHS): | + | $0 | $0 |
| | | -------------------------- | |
| (=) Market Value: | = | $1,210,388 | |
| (–) Productivity Loss: | – | $0 | |
| | | -------------------------- | |
| (=) Subtotal: | = | $1,210,388 | |
| (+) Senior Appraised Value: | + | $0 | |
| (+) Non-Senior Appraised Value: | + | $1,210,388 | |
| | | -------------------------- | |
| (=) Total Appraised Value: | = | $1,210,388 | |
| (–) Senior Exemption Loss: | – | $0 | |
| (–) Exemption Loss: | – | $0 | |
| | | -------------------------- | |
| (=) Taxable Value: | = | $1,210,388 | |
Taxing Jurisdiction
| Owner: | ALBI, TODD ROSS | | |
| % Ownership: | 100.0000000000% | | |
| Total Value: | $1,210,388 | | |
| Tax Area: | 332 - APPRAISER-Cpvl Schl Dist, Special Dist, improved, greater than 1 acre |
| CF | Conservation Futures | 0.0316035091 | $1,210,388 | $1,210,388 | $38.25 | | |
| CEM2 | Cemetery #2 | 0.0095056933 | $1,210,388 | $1,210,388 | $11.51 | | |
| FIRE2 | Fire & Rescue Dist #2 N Whidbey GEN | 0.5475949600 | $1,210,388 | $1,210,388 | $662.80 | | |
| HOBOND | Hospital BOND | 0.1910887512 | $1,210,388 | $1,210,388 | $231.29 | | |
| HOGEN | Hospital GEN | 0.3902502903 | $1,210,388 | $1,210,388 | $472.35 | | |
| CE | County Current Expense | 0.3708482477 | $1,210,388 | $1,210,388 | $448.87 | | |
| CR | County Roads | 0.4584763726 | $1,210,388 | $1,210,388 | $554.93 | | |
| ISLANDEMS | Hospital GEN (EMS) | 0.5000000000 | $1,210,388 | $1,210,388 | $605.19 | | |
| LIB | Library Sno-Isle GEN | 0.3153421757 | $1,210,388 | $1,210,388 | $381.69 | | |
| LIBCAP | Library Sno-Isle BOND (Cap Fac Imp Area) | 0.0543427938 | $1,210,388 | $1,210,388 | $65.78 | | |
| POCOUP | Port of Coupeville GEN | 0.1093371703 | $1,210,388 | $1,210,388 | $132.34 | | |
| POCOUPIDD | Port of Coupeville IDD | 0.3409740022 | $1,210,388 | $1,210,388 | $412.71 | | |
| COUPSDTECH | School 204 CP (TECH) | 0.7545480007 | $1,210,388 | $1,210,388 | $913.30 | | |
| SCH204MO | School 204 Enrichment | 0.6716186034 | $1,210,388 | $1,210,388 | $812.92 | | |
| ST | State School | 1.3035497053 | $1,210,388 | $1,210,388 | $1,577.80 | | |
| ST2 | State School Part 2 | 0.8169543533 | $1,210,388 | $1,210,388 | $988.83 | | |
| | Total Tax Rate: | 6.8660346289 | | | | | |
| | | | | Taxes w/Current Exemptions: | $8,310.56 | | |
| | | | | Taxes w/o Exemptions: | $8,310.56 | | |
Improvement / Building
| Improvement #1: | RESIDENTIAL | State Code: | Y | 3786.6 sqft | Value: | $838,471 |
| Bathrooms: | 2.5 | Bedrooms: | 3 | | Ceiling: | BEAM PAINTED | Cooling: | HEAT PUMP/CONV/V | | Exterior Wall/Cover: | VINYL | Floor Covering: | CERAMIC TILE/HWD 40/60 | | Floor Structure: | WOOD W/SUBFLOOR | Foundation: | CONCRETE | | Interior Finish: | DRYWALL PAINT | Plumbing Fixture Cnt: | 14 | | Roof Slope: | 8" IN 12" | Roof Structure/Cover: | BEAM ASPHALT |
|
| | Type | Description | Class CD | Sub Class CD | Year Built | Area |
| | BAS | BASE/MAIN FLOOR | 4 | 0 | 1990 | 2492.9 |
| | OP4 | OPEN PORCH W/CEILING-ROOF | 4 | 0 | 1990 | 80.9 |
| | BIG | BUILT IN GARAGE | 4 | 0 | 1990 | 598.2 |
| | UPS | UPPER STORY | 4 | 0 | 1990 | 1293.7 |
| | BAR | BALCONY W/ROOF | 4 | 0 | 1990 | 430.5 |
| | OWP | OPEN WOOD PORCH W/STEPS | 4 | 0 | 1990 | 510.5 |
| | CPD | OPEN CARPORT DIRT FLOOR | 4 | 0 | 1990 | 128.0 |
| | oGAR | GARAGE | 3 | 0 | 1990 | 864.0 |
Sketch
Property Image
Land
| 1 | HS | HOMESITE | 1.0000 | 43560.00 | 0.00 | 0.00 | 1.00 | $340,000 | $0 |
| 2 | 91 | UNDEVELOPED LAND-METES AND BOUNDS | 4.0800 | 177724.80 | 0.00 | 0.00 | 1.00 | $31,917 | $0 |
Roll Value History
| 2026 | N/A | N/A | N/A | N/A | N/A |
| 2025 | $838,471 | $371,917 | $0 | $1,210,388 | $1,210,388 |
| 2024 | $765,019 | $360,000 | $0 | $1,125,019 | $1,125,019 |
| 2023 | $774,099 | $350,000 | $0 | $1,124,099 | $1,124,099 |
| 2022 | $709,201 | $310,000 | $0 | $1,019,201 | $1,019,201 |
| 2021 | $609,529 | $260,000 | $0 | $869,529 | $869,529 |
| 2020 | $595,358 | $240,000 | $0 | $835,358 | $835,358 |
| 2019 | $489,695 | $250,000 | $0 | $739,695 | $739,695 |
| 2018 | $415,767 | $230,000 | $0 | $645,767 | $645,767 |
| 2017 | $417,940 | $230,000 | $0 | $647,940 | $647,940 |
| 2016 | $423,037 | $230,000 | $0 | $653,037 | $653,037 |
| 2015 | $428,133 | $225,000 | $0 | $653,133 | $653,133 |
| 2014 | $433,230 | $228,600 | $0 | $661,830 | $661,830 |
| 2013 | $438,328 | $228,600 | $0 | $666,928 | $666,928 |
| 2012 | $442,245 | $228,600 | $0 | $670,845 | $670,845 |
| 2011 | $446,897 | $254,000 | $0 | $700,897 | $302,810 |
| 2010 | $465,228 | $254,000 | $0 | $719,228 | $719,228 |
| 2009 | $484,153 | $279,400 | $0 | $763,553 | $763,553 |
| 2008 | $490,001 | $279,400 | $0 | $769,401 | $769,401 |
| 2007 | $490,838 | $223,520 | $0 | $714,358 | $714,358 |
Deed and Sales History
| 1 | 07/01/2021 | WD | Warranty Deed | HOLLE TTEE, WILLIAM G | ALBI, TODD ROSS | | | $919,700.00 | 49216 | 4524727 |
| 2 | 08/13/2018 | QCD | Quit Claim Deed | HOLLE TRUSTEE, WILLIAM G | HOLLE TTEE, WILLIAM G | | | $0.00 | 35568 | 4450369 |
| 3 | 05/02/2005 | 5 | DNU - Marriage License/Name Change | HOLLE, WILLIAM G | HOLLE TRUSTEE, WILLIAM G | | | $0.00 | 51879 | 4132863 |
| 4 | 01/17/2003 | WD | Warranty Deed | BABSON, BEVERLY R | HOLLE, WILLIAM G | | | $459,500.00 | 30583 | 4047717 |
| 5 | 02/15/2002 | BLA | DNU - Boundary Line Adjustment | BABSON, BEVERLY R | BABSON, BEVERLY R | | | $0.00 | 69317 | 20028863 |
| 6 | 04/18/2001 | QCD | Quit Claim Deed | BABSON, BEVERLY R | BABSON, BEVERLY R | | | $0.00 | 11333 | 20030224 |
| 7 | 04/05/2001 | ESTSEPPROP | Establish Separate Property | BABSON, BEVERLY R | BABSON, BEVERLY R | | | $0.00 | 11164 | 20029367 |
| 8 | 01/01/1987 | WD | Warranty Deed | PENN, COVE A | BABSON, BEVERLY R | | | $44,500.00 | 70221 | 87001480 |
| 9 | 12/01/1983 | CD | DNU - Correction Deed | Unknown | PENN, COVE A | | | $0.00 | 60434 | 418707 |
Payout Agreement
| No payout information available.. |