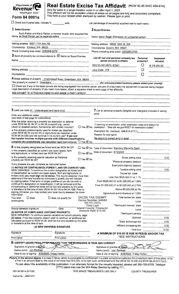
Property
Account |
| Property ID: | 610093 | Abbreviated Legal Description: | LOT 4-B SP 84-12.13230.507-2870 V2 SP P52 AF#86009256 |
| Geographic ID: | R13230-509-3020 | Agent Code: | |
| Type: | Real | | |
| Tax Area: | 332 - APPRAISER-Cpvl Schl Dist, Special Dist, improved, greater than 1 acre | Land Use Code | 11 |
| Open Space: | N | DFL | N |
| Historic Property: | N | Remodel Property: | N |
| Multi-Family Redevelopment: | N | | |
| Township: | 32 | Section: | 30 |
| Range: | R1 |
Location |
| Address: | SKYCREST DR COUPEVILLE, WA 98239 | Mapsco: | |
| Neighborhood: | Cycle 2 | Map ID: | 165 |
| Neighborhood CD: | 2 |
Owner |
| Name: | WURZRAINER, ANDREAS | Owner ID: | 112515 |
| Mailing Address: | ELIZABETH K WURZRAINER 2182 SKYCREST DR COUPEVILLE, WA 98239-3118 | % Ownership: | 100.0000000000% |
| | | Exemptions: | |
Taxes and Assessment Details
Values
| (+) Improvement Homesite Value: | + | $0 | |
| (+) Improvement Non-Homesite Value: | + | $591,480 | |
| (+) Land Homesite Value: | + | $0 | |
| (+) Land Non-Homesite Value: | + | $331,428 | |
| (+) Curr Use (HS): | + | $0 | $0 |
| (+) Curr Use (NHS): | + | $0 | $0 |
| | | -------------------------- | |
| (=) Market Value: | = | $922,908 | |
| (–) Productivity Loss: | – | $0 | |
| | | -------------------------- | |
| (=) Subtotal: | = | $922,908 | |
| (+) Senior Appraised Value: | + | $0 | |
| (+) Non-Senior Appraised Value: | + | $922,908 | |
| | | -------------------------- | |
| (=) Total Appraised Value: | = | $922,908 | |
| (–) Senior Exemption Loss: | – | $0 | |
| (–) Exemption Loss: | – | $0 | |
| | | -------------------------- | |
| (=) Taxable Value: | = | $922,908 | |
Taxing Jurisdiction
| Owner: | WURZRAINER, ANDREAS | | |
| % Ownership: | 100.0000000000% | | |
| Total Value: | $922,908 | | |
| Tax Area: | 332 - APPRAISER-Cpvl Schl Dist, Special Dist, improved, greater than 1 acre |
| CF | Conservation Futures | 0.0316035091 | $922,908 | $922,908 | $29.17 | | |
| CEM2 | Cemetery #2 | 0.0095056933 | $922,908 | $922,908 | $8.77 | | |
| FIRE2 | Fire & Rescue Dist #2 N Whidbey GEN | 0.5475949600 | $922,908 | $922,908 | $505.38 | | |
| HOBOND | Hospital BOND | 0.1910887512 | $922,908 | $922,908 | $176.36 | | |
| HOGEN | Hospital GEN | 0.3902502903 | $922,908 | $922,908 | $360.17 | | |
| CE | County Current Expense | 0.3708482477 | $922,908 | $922,908 | $342.26 | | |
| CR | County Roads | 0.4584763726 | $922,908 | $922,908 | $423.13 | | |
| ISLANDEMS | Hospital GEN (EMS) | 0.5000000000 | $922,908 | $922,908 | $461.45 | | |
| LIB | Library Sno-Isle GEN | 0.3153421757 | $922,908 | $922,908 | $291.03 | | |
| LIBCAP | Library Sno-Isle BOND (Cap Fac Imp Area) | 0.0543427938 | $922,908 | $922,908 | $50.15 | | |
| POCOUP | Port of Coupeville GEN | 0.1093371703 | $922,908 | $922,908 | $100.91 | | |
| POCOUPIDD | Port of Coupeville IDD | 0.3409740022 | $922,908 | $922,908 | $314.69 | | |
| COUPSDTECH | School 204 CP (TECH) | 0.7545480007 | $922,908 | $922,908 | $696.38 | | |
| SCH204MO | School 204 Enrichment | 0.6716186034 | $922,908 | $922,908 | $619.84 | | |
| ST | State School | 1.3035497053 | $922,908 | $922,908 | $1,203.06 | | |
| ST2 | State School Part 2 | 0.8169543533 | $922,908 | $922,908 | $753.97 | | |
| | Total Tax Rate: | 6.8660346289 | | | | | |
| | | | | Taxes w/Current Exemptions: | $6,336.72 | | |
| | | | | Taxes w/o Exemptions: | $6,336.72 | | |
Improvement / Building
| Improvement #1: | RESIDENTIAL | State Code: | Y | 3369.6 sqft | Value: | $591,480 |
| Bathrooms: | 2.5 | Bedrooms: | 3 | | Ceiling: | DRYWALL PAINTED | Exterior Wall/Cover: | SHINGLE | | Floor Covering: | HARDWOOD/CARP 60-40 | Floor Structure: | WOOD W/SUBFLOOR | | Foundation: | CONCRETE | Heating: | FHA GAS | | Interior Finish: | DRYWALL PAINT | Plumbing Fixture Cnt: | 12 | | Roof Slope: | 8" IN 12" | Roof Structure/Cover: | CJ ASPHALT |
|
| | Type | Description | Class CD | Sub Class CD | Year Built | Area |
| | BAS | BASE/MAIN FLOOR | 4 | 0 | 2005 | 1130.5 |
| | BIG | BUILT IN GARAGE | 4 | 0 | 2005 | 539.6 |
| | UPS | UPPER STORY | 4 | 0 | 2005 | 1639.1 |
| | OWP | OPEN WOOD PORCH W/STEPS | 4 | 0 | 2005 | 342.6 |
| | OWC | OPEN WOOD PORCH W/STEPS/ROOF/C | 4 | 0 | 2005 | 259.5 |
| | DGR | DETACHED GARAGE | 4 | 0 | 2005 | 209.0 |
| | LOF | LOFT | 4 | 0 | 2005 | 600.0 |
| | BIG | BUILT IN GARAGE | 4 | 0 | 2005 | 720.0 |
| | OWP | OPEN WOOD PORCH W/STEPS | 4 | 0 | 2005 | 65.0 |
Sketch
Property Image
Land
| 1 | 91 | UNDEVELOPED LAND-METES AND BOUNDS | 4.0000 | 174240.00 | 0.00 | 0.00 | 1.00 | $61,428 | $0 |
| 2 | HS | HOMESITE | 1.0000 | 43560.00 | 0.00 | 0.00 | 1.00 | $270,000 | $0 |
Roll Value History
| 2026 | N/A | N/A | N/A | N/A | N/A |
| 2025 | $591,480 | $331,428 | $0 | $922,908 | $922,908 |
| 2024 | $563,728 | $320,000 | $0 | $883,728 | $883,728 |
| 2023 | $570,666 | $310,000 | $0 | $880,666 | $880,666 |
| 2022 | $523,014 | $290,000 | $0 | $813,014 | $813,014 |
| 2021 | $460,273 | $220,000 | $0 | $680,273 | $680,273 |
| 2020 | $449,735 | $200,000 | $0 | $649,735 | $649,735 |
| 2019 | $363,452 | $250,000 | $0 | $613,452 | $613,452 |
| 2018 | $328,433 | $230,000 | $0 | $558,433 | $558,433 |
| 2017 | $330,095 | $230,000 | $0 | $560,095 | $560,095 |
| 2016 | $333,569 | $230,000 | $0 | $563,569 | $563,569 |
| 2015 | $337,041 | $225,000 | $0 | $562,041 | $562,041 |
| 2014 | $340,515 | $225,000 | $0 | $565,515 | $565,515 |
| 2013 | $343,984 | $225,000 | $0 | $568,984 | $568,984 |
| 2012 | $355,085 | $225,000 | $0 | $580,085 | $580,085 |
| 2011 | $358,639 | $250,000 | $0 | $608,639 | $608,639 |
| 2010 | $375,279 | $250,000 | $0 | $625,279 | $625,279 |
| 2009 | $386,671 | $275,000 | $0 | $661,671 | $661,671 |
| 2008 | $391,203 | $275,000 | $0 | $666,203 | $666,203 |
| 2007 | $395,656 | $220,000 | $0 | $615,656 | $615,656 |
Deed and Sales History
| 1 | 01/03/2005 | WD | Warranty Deed | GROENEWEGEN, JOHANNES B | WURZRAINER, ANDREAS | | | $205,000.00 | 50113 | 4122835 |
| 2 | 11/01/1997 | QCD | Quit Claim Deed | GROENEWEGEN, JOHANNES B | GROENEWEGEN, JOHANNES B | | | $0.00 | 73965 | 97018936 |
| 3 | 05/01/1990 | WD | Warranty Deed | PENN, COVE A | GROENEWEGEN, JOHANNES B | | | $54,500.00 | 2527 | 90008146 |
| 4 | 12/01/1983 | CD | DNU - Correction Deed | Unknown | PENN, COVE A | | | $0.00 | 60434 | 418707 |
Payout Agreement
| No payout information available.. |