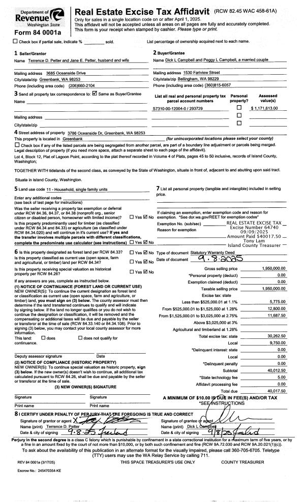
Property
Account |
| Property ID: | 610477 | Abbreviated Legal Description: | LOT 15-A SP 84-17.13230.372-1170 & 306-1160 V2 SP P60 & 61 AF#86009262 |
| Geographic ID: | R13230-324-1190 | Agent Code: | |
| Type: | Real | | |
| Tax Area: | 332 - APPRAISER-Cpvl Schl Dist, Special Dist, improved, greater than 1 acre | Land Use Code | 11 |
| Open Space: | N | DFL | N |
| Historic Property: | N | Remodel Property: | N |
| Multi-Family Redevelopment: | N | | |
| Township: | 32 | Section: | 30 |
| Range: | R1 |
Location |
| Address: | 635 SKYMEADOW DR COUPEVILLE, WA 98239 | Mapsco: | |
| Neighborhood: | Cycle 2 | Map ID: | 164 |
| Neighborhood CD: | 2 |
Owner |
| Name: | PETERS TRUSTEE, WILLIAM N | Owner ID: | 187531 |
| Mailing Address: | JOAN W PETERS TRUSTEE 635 SKYMEADOW DR COUPEVILLE, WA 98239 | % Ownership: | 100.0000000000% |
| | | Exemptions: | |
Taxes and Assessment Details
Values
| (+) Improvement Homesite Value: | + | $0 | |
| (+) Improvement Non-Homesite Value: | + | $619,025 | |
| (+) Land Homesite Value: | + | $0 | |
| (+) Land Non-Homesite Value: | + | $331,954 | |
| (+) Curr Use (HS): | + | $0 | $0 |
| (+) Curr Use (NHS): | + | $0 | $0 |
| | | -------------------------- | |
| (=) Market Value: | = | $950,979 | |
| (–) Productivity Loss: | – | $0 | |
| | | -------------------------- | |
| (=) Subtotal: | = | $950,979 | |
| (+) Senior Appraised Value: | + | $0 | |
| (+) Non-Senior Appraised Value: | + | $950,979 | |
| | | -------------------------- | |
| (=) Total Appraised Value: | = | $950,979 | |
| (–) Senior Exemption Loss: | – | $0 | |
| (–) Exemption Loss: | – | $0 | |
| | | -------------------------- | |
| (=) Taxable Value: | = | $950,979 | |
Taxing Jurisdiction
| Owner: | PETERS TRUSTEE, WILLIAM N | | |
| % Ownership: | 100.0000000000% | | |
| Total Value: | $950,979 | | |
| Tax Area: | 332 - APPRAISER-Cpvl Schl Dist, Special Dist, improved, greater than 1 acre |
| CF | Conservation Futures | 0.0316035091 | $950,979 | $950,979 | $30.05 | | |
| CEM2 | Cemetery #2 | 0.0095056933 | $950,979 | $950,979 | $9.04 | | |
| FIRE2 | Fire & Rescue Dist #2 N Whidbey GEN | 0.5475949600 | $950,979 | $950,979 | $520.75 | | |
| HOBOND | Hospital BOND | 0.1910887512 | $950,979 | $950,979 | $181.72 | | |
| HOGEN | Hospital GEN | 0.3902502903 | $950,979 | $950,979 | $371.12 | | |
| CE | County Current Expense | 0.3708482477 | $950,979 | $950,979 | $352.67 | | |
| CR | County Roads | 0.4584763726 | $950,979 | $950,979 | $436.00 | | |
| ISLANDEMS | Hospital GEN (EMS) | 0.5000000000 | $950,979 | $950,979 | $475.49 | | |
| LIB | Library Sno-Isle GEN | 0.3153421757 | $950,979 | $950,979 | $299.88 | | |
| LIBCAP | Library Sno-Isle BOND (Cap Fac Imp Area) | 0.0543427938 | $950,979 | $950,979 | $51.68 | | |
| POCOUP | Port of Coupeville GEN | 0.1093371703 | $950,979 | $950,979 | $103.98 | | |
| POCOUPIDD | Port of Coupeville IDD | 0.3409740022 | $950,979 | $950,979 | $324.26 | | |
| COUPSDTECH | School 204 CP (TECH) | 0.7545480007 | $950,979 | $950,979 | $717.56 | | |
| SCH204MO | School 204 Enrichment | 0.6716186034 | $950,979 | $950,979 | $638.70 | | |
| ST | State School | 1.3035497053 | $950,979 | $950,979 | $1,239.65 | | |
| ST2 | State School Part 2 | 0.8169543533 | $950,979 | $950,979 | $776.91 | | |
| | Total Tax Rate: | 6.8660346289 | | | | | |
| | | | | Taxes w/Current Exemptions: | $6,529.46 | | |
| | | | | Taxes w/o Exemptions: | $6,529.46 | | |
Improvement / Building
| Improvement #1: | RESIDENTIAL | State Code: | Y | 2763.8 sqft | Value: | $619,025 |
| Bathrooms: | 2.5 | Bedrooms: | 4 | | Ceiling: | DRYWALL PAINTED | Exterior Wall/Cover: | SHINGLE | | Floor Covering: | HARDWOOD/CARP 80-20 | Floor Structure: | WOOD W/SUBFLOOR | | Foundation: | CONCRETE | Heating: | FHA GAS | | Interior Finish: | DRYWALL PAINT | Plumbing Fixture Cnt: | 13 | | Roof Slope: | 10" IN 12" | Roof Structure/Cover: | CJ ASPHALT |
|
| | Type | Description | Class CD | Sub Class CD | Year Built | Area |
| | BAS | BASE/MAIN FLOOR | 4 | 0 | 2003 | 1668.9 |
| | BIG | BUILT IN GARAGE | 4 | 0 | 2003 | 609.4 |
| | UPS | UPPER STORY | 4 | 0 | 2003 | 1094.9 |
| | OWP | OPEN WOOD PORCH W/STEPS | 4 | 0 | 2003 | 148.1 |
| | OWP | OPEN WOOD PORCH W/STEPS | 4 | 0 | 2003 | 305.7 |
| | OWC | OPEN WOOD PORCH W/STEPS/ROOF/C | 4 | 0 | 2003 | 21.0 |
Sketch
Property Image
Land
| 1 | HS | HOMESITE | 1.0000 | 43560.00 | 0.00 | 0.00 | 1.00 | $270,000 | $0 |
| 2 | 91 | UNDEVELOPED LAND-METES AND BOUNDS | 4.0700 | 177289.20 | 0.00 | 0.00 | 1.00 | $61,954 | $0 |
Roll Value History
| 2026 | N/A | N/A | N/A | N/A | N/A |
| 2025 | $619,025 | $331,954 | $0 | $950,979 | $950,979 |
| 2024 | $597,242 | $320,000 | $0 | $917,242 | $917,242 |
| 2023 | $604,504 | $310,000 | $0 | $914,504 | $914,504 |
| 2022 | $553,968 | $290,000 | $0 | $843,968 | $843,968 |
| 2021 | $487,436 | $220,000 | $0 | $707,436 | $707,436 |
| 2020 | $475,601 | $200,000 | $0 | $675,601 | $675,601 |
| 2019 | $367,717 | $250,000 | $0 | $617,717 | $617,717 |
| 2018 | $368,808 | $230,000 | $0 | $598,808 | $598,808 |
| 2017 | $370,741 | $230,000 | $0 | $600,741 | $600,741 |
| 2016 | $374,954 | $230,000 | $0 | $604,954 | $604,954 |
| 2015 | $379,166 | $225,000 | $0 | $604,166 | $604,166 |
| 2014 | $383,380 | $228,150 | $0 | $611,530 | $611,530 |
| 2013 | $387,593 | $228,150 | $0 | $615,743 | $615,743 |
| 2012 | $393,134 | $228,150 | $0 | $621,284 | $621,284 |
| 2011 | $397,502 | $253,500 | $0 | $651,002 | $651,002 |
| 2010 | $410,240 | $253,500 | $0 | $663,740 | $663,740 |
| 2009 | $427,588 | $278,850 | $0 | $706,438 | $706,438 |
| 2008 | $436,841 | $278,850 | $0 | $715,691 | $715,691 |
| 2007 | $437,167 | $223,080 | $0 | $660,247 | $660,247 |
Deed and Sales History
| 1 | 09/04/2009 | QCD | Quit Claim Deed | PETERS, WILLIAM N | PETERS TRUSTEE, WILLIAM N | | | $0.00 | 92090 | 4259647 |
| 2 | 04/17/2007 | WD | Warranty Deed | MOTTET, DOUGLAS J | PETERS, WILLIAM N | | | $740,000.00 | 71376 | 4200639 |
| 3 | 03/25/2002 | WD | Warranty Deed | BETANCOURT, BARBARA L | MOTTET, DOUGLAS J | | | $99,900.00 | 21151 | 4015381 |
| 4 | 07/01/1989 | WD | Warranty Deed | PENN, COVE A | BETANCOURT, BARBARA L | | | $49,500.00 | 92730 | 89009260 |
| 5 | 01/01/1900 | CD | DNU - Correction Deed | Unknown | PENN, COVE A | | | $0.00 | 60434 | 418707 |
Payout Agreement
| No payout information available.. |