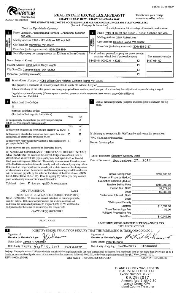
Property
Account |
| Property ID: | 610976 | Abbreviated Legal Description: | IN GL3: BG NECR GL3 S89*W 1301.29' S8*E21.90' S89*W11 S8*E121.08' TPB S89*W120' S5*E60.20' N89*E120' N5*W60 .20' TPB TGW: BG NECR GL3 S89*W1301.29' S8*E21.90' S89*W11' S8*E121.08' S5*E60 .20' TPB S89*W120' S1*W60 .03' N89*E120' N1*E60.03' TPB INCL ADJ T |
| Geographic ID: | R23103-377-2600 | Agent Code: | |
| Type: | Real | | |
| Tax Area: | 510 - APPRAISER-Stan/Cam Schl Dist, improved & 1 acre or less | Land Use Code | 11 |
| Open Space: | N | DFL | N |
| Historic Property: | N | Remodel Property: | N |
| Multi-Family Redevelopment: | N | | |
| Township: | 31 | Section: | 03 |
| Range: | R2 |
Location |
| Address: | 1118 ROCKAWAY LN CAMANO ISLAND, WA 98282 | Mapsco: | |
| Neighborhood: | Cycle 5 | Map ID: | 458 |
| Neighborhood CD: | 5 |
Owner |
| Name: | BOPARAI, HERMINDER S | Owner ID: | 282458 |
| Mailing Address: | JOSHLENE D SANDHU-BOPARAI 13603 NE 36TH PLACE BELLEVUE, WA 98005 | % Ownership: | 100.0000000000% |
| | | Exemptions: | |
Taxes and Assessment Details
Values
| (+) Improvement Homesite Value: | + | $0 | |
| (+) Improvement Non-Homesite Value: | + | $413,636 | |
| (+) Land Homesite Value: | + | $0 | |
| (+) Land Non-Homesite Value: | + | $651,200 | |
| (+) Curr Use (HS): | + | $0 | $0 |
| (+) Curr Use (NHS): | + | $0 | $0 |
| | | -------------------------- | |
| (=) Market Value: | = | $1,064,836 | |
| (–) Productivity Loss: | – | $0 | |
| | | -------------------------- | |
| (=) Subtotal: | = | $1,064,836 | |
| (+) Senior Appraised Value: | + | $0 | |
| (+) Non-Senior Appraised Value: | + | $1,064,836 | |
| | | -------------------------- | |
| (=) Total Appraised Value: | = | $1,064,836 | |
| (–) Senior Exemption Loss: | – | $0 | |
| (–) Exemption Loss: | – | $0 | |
| | | -------------------------- | |
| (=) Taxable Value: | = | $1,064,836 | |
Taxing Jurisdiction
| Owner: | BOPARAI, HERMINDER S | | |
| % Ownership: | 100.0000000000% | | |
| Total Value: | $1,064,836 | | |
| Tax Area: | 510 - APPRAISER-Stan/Cam Schl Dist, improved & 1 acre or less |
| CF | Conservation Futures | 0.0316035091 | $1,064,836 | $1,064,836 | $33.65 | | |
| EMS1 | Fire & Rescue Dist #1 Camano GEN (EMS) | 0.3677864386 | $1,064,836 | $1,064,836 | $391.63 | | |
| FIRE1 | Fire & Rescue Dist #1 Camano GEN | 1.2502910536 | $1,064,836 | $1,064,836 | $1,331.35 | | |
| FIRE1BOND | Fire & Rescue Dist #1 Camano BOND | 0.1570001679 | $1,064,836 | $1,064,836 | $167.18 | | |
| CE | County Current Expense | 0.3708482477 | $1,064,836 | $1,064,836 | $394.89 | | |
| CR | County Roads | 0.4584763726 | $1,064,836 | $1,064,836 | $488.20 | | |
| LCIB | Library Sno-Isle BOND (Camano Island) | 0.0396325772 | $1,064,836 | $1,064,836 | $42.20 | | |
| LIB | Library Sno-Isle GEN | 0.3153421757 | $1,064,836 | $1,064,836 | $335.79 | | |
| SCH205_401 | School 205-401 Enrichment | 1.2698420524 | $1,064,836 | $1,064,836 | $1,352.17 | | |
| SCH205BOND | School 205-401 BOND | 0.9396497583 | $1,064,836 | $1,064,836 | $1,000.57 | | |
| ST | State School | 1.3035497053 | $1,064,836 | $1,064,836 | $1,388.07 | | |
| ST2 | State School Part 2 | 0.8169543533 | $1,064,836 | $1,064,836 | $869.92 | | |
| | Total Tax Rate: | 7.3209764117 | | | | | |
| | | | | Taxes w/Current Exemptions: | $7,795.62 | | |
| | | | | Taxes w/o Exemptions: | $7,795.62 | | |
Improvement / Building
| Improvement #1: | RESIDENTIAL | State Code: | Y | 2984.7 sqft | Value: | $413,636 |
| Bathrooms: | 3 | Ceiling: | DRYWALL PAINTED | | Exterior Wall/Cover: | PLY/HARDBOARD T-111 | Floor Covering: | CERAMIC TILE/CPT 40-60 | | Floor Structure: | SLAB ON GRADE | Foundation: | CONCRETE | | Heating: | FHA GAS | Interior Finish: | DRYWALL PAINT | | Plumbing Fixture Cnt: | 1 | Roof Slope: | 5" IN 12" | | Roof Structure/Cover: | CJ ASPHALT |   |   |
|
| | Type | Description | Class CD | Sub Class CD | Year Built | Area |
| | DWN | DOWNSTAIRS LIVING AREA | 4 | 0 | 1992 | 324.0 |
| | DWN | DOWNSTAIRS LIVING AREA | 4 | 0 | 1992 | 852.5 |
| | OP1 | OPEN PORCH SLAB | 4 | 0 | 1992 | 188.8 |
| | OP4 | OPEN PORCH W/CEILING-ROOF | 4 | 0 | 1992 | 32.0 |
| | AGR | ATTACHED GARAGE | 4 | 0 | 1992 | 407.0 |
| | BAS | BASE/MAIN FLOOR | 4 | 0 | 1992 | 1496.2 |
| | UPS | UPPER STORY | 4 | 0 | 1992 | 312.0 |
| | OWP | OPEN WOOD PORCH W/STEPS | 4 | 0 | 1992 | 102.0 |
| | OWR | OPEN WOOD PORCH W/STEPS/ROOF | 4 | 0 | 1992 | 194.7 |
| | UTY | STORAGE/UTILITY | 4 | 0 | 1992 | 128.0 |
| | UTY | STORAGE/UTILITY | 4 | 0 | 1992 | 160.0 |
Sketch
Property Image
Land
| 1 | LB | LOW BANK | 0.0000 | 13939.20 | 120.00 | 0.00 | 1.00 | $650,000 | $0 |
| 2 | 55 | TIDES | 0.0000 | 0.00 | 120.00 | 0.00 | 1.00 | $1,200 | $0 |
Roll Value History
| 2026 | N/A | N/A | N/A | N/A | N/A |
| 2025 | $413,636 | $651,200 | $0 | $1,064,836 | $1,064,836 |
| 2024 | $408,783 | $651,200 | $0 | $1,059,983 | $1,059,983 |
| 2023 | $413,636 | $651,200 | $0 | $1,064,836 | $1,064,836 |
| 2022 | $378,943 | $601,200 | $0 | $980,143 | $980,143 |
| 2021 | $325,696 | $401,200 | $0 | $726,896 | $726,896 |
| 2020 | $319,779 | $401,200 | $0 | $720,979 | $720,979 |
| 2019 | $261,642 | $401,200 | $0 | $662,842 | $662,842 |
| 2018 | $262,393 | $401,200 | $0 | $663,593 | $663,593 |
| 2017 | $245,957 | $301,200 | $0 | $547,157 | $547,157 |
| 2016 | $249,034 | $301,200 | $0 | $550,234 | $550,234 |
| 2015 | $236,735 | $301,200 | $0 | $537,935 | $537,935 |
| 2014 | $234,580 | $501,200 | $0 | $735,780 | $735,780 |
| 2013 | $255,090 | $525,301 | $0 | $780,391 | $780,391 |
| 2012 | $258,283 | $525,301 | $0 | $783,584 | $783,584 |
| 2011 | $261,479 | $656,326 | $0 | $917,805 | $917,805 |
| 2010 | $354,992 | $656,326 | $0 | $1,011,318 | $1,011,318 |
| 2009 | $370,363 | $705,516 | $0 | $1,075,879 | $1,075,879 |
| 2008 | $375,120 | $491,762 | $0 | $866,882 | $866,882 |
| 2007 | $379,926 | $490,922 | $0 | $870,848 | $870,848 |
Deed and Sales History
| 1 | 10/11/2017 | WD | Warranty Deed | YOUNG, JUN T | BOPARAI, HERMINDER S | | | $690,000.00 | 31530 | 4432189 |
| 2 | 09/24/2014 | WD | Warranty Deed | CUMMINGS TRUSTEE, CAROL J | YOUNG, JUN T | | | $560,000.00 | 16964 | 4366225 |
| 3 | 01/01/1998 | QCD | Quit Claim Deed | CUMMINGS, CAROL J | CUMMINGS, CAROL J | | | $0.00 | 80564 | 98003044 |
| 4 | 12/01/1997 | QCD | Quit Claim Deed | CUMMINGS, CAROL J | CUMMINGS, CAROL J | | | $0.00 | 74576 | 97021685 |
| 5 | 01/01/1992 | WD | Warranty Deed | THORLAKSON, DONALD G | CUMMINGS, CAROL J | | | $80,000.00 | 20263 | 92001169 |
| 6 | 01/01/1992 | EZ | Easement | CUMMINGS, CAROL J | CUMMINGS, CAROL J | | | $0.00 | 20264 | 92001170 |
| 7 | 01/01/1992 | EZ | Easement | CUMMINGS, CAROL J | CUMMINGS, CAROL J | | | $0.00 | 20833 | 92004230 |
| 8 | 10/01/1986 | OTHER | Other - Misc. Documents | THORLAKSON, DONALD G | THORLAKSON, DONALD G | | | $0.00 | 61878 | 86011522 |
| 9 | 02/01/1976 | EXECUTORD | Executor Deed | THORLAKSON, DONALD G | THORLAKSON, DONALD G | | | $0.00 | 60357 | 0 |
| 10 | 10/01/1967 | EXECUTORD | Executor Deed | THORLAKSON, DONALD G | THORLAKSON, DONALD G | | | $0.00 | 28162 | 0 |
| 11 | 01/01/1900 | OTHER | Other - Misc. Documents | Unknown | THORLAKSON, DONALD G | | | $0.00 | 0 | 0 |
Payout Agreement
| No payout information available.. |