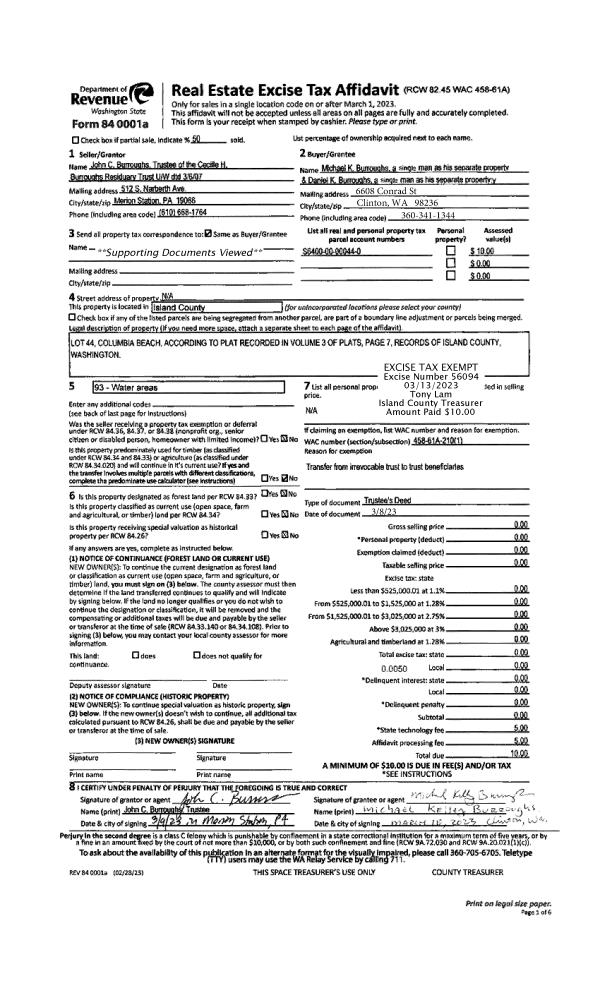
Property
Account |
| Property ID: | 611056 | Abbreviated Legal Description: | LOT B SP 84-115.32803.110-2550 V2 SP P73 AF#86012534 |
| Geographic ID: | R32803-111-2710 | Agent Code: | |
| Type: | Real | | |
| Tax Area: | 712 - APPRAISER-S Whid Schl Dist, outside Langley, improved, greater than 1 acre | Land Use Code | 11 |
| Open Space: | N | DFL | N |
| Historic Property: | N | Remodel Property: | N |
| Multi-Family Redevelopment: | N | | |
| Township: | 28 | Section: | 03 |
| Range: | R3 |
Location |
| Address: | 7645 BAILEY RD CLINTON, WA 98236 | Mapsco: | |
| Neighborhood: | Cycle 4 | Map ID: | 684 |
| Neighborhood CD: | 4 |
Owner |
| Name: | EDAIN JTWROS EACH, HASAN, LAURA, MARIANNE | Owner ID: | 87156 |
| Mailing Address: | STEVE ERICKSON JTWROS BOX 53 LANGLEY, WA 98260 | % Ownership: | 100.0000000000% |
| | | Exemptions: | |
Taxes and Assessment Details
Values
| (+) Improvement Homesite Value: | + | $0 | |
| (+) Improvement Non-Homesite Value: | + | $312,283 | |
| (+) Land Homesite Value: | + | $0 | |
| (+) Land Non-Homesite Value: | + | $370,000 | |
| (+) Curr Use (HS): | + | $0 | $0 |
| (+) Curr Use (NHS): | + | $0 | $0 |
| | | -------------------------- | |
| (=) Market Value: | = | $682,283 | |
| (–) Productivity Loss: | – | $0 | |
| | | -------------------------- | |
| (=) Subtotal: | = | $682,283 | |
| (+) Senior Appraised Value: | + | $0 | |
| (+) Non-Senior Appraised Value: | + | $682,283 | |
| | | -------------------------- | |
| (=) Total Appraised Value: | = | $682,283 | |
| (–) Senior Exemption Loss: | – | $0 | |
| (–) Exemption Loss: | – | $0 | |
| | | -------------------------- | |
| (=) Taxable Value: | = | $682,283 | |
Taxing Jurisdiction
| Owner: | EDAIN JTWROS EACH, HASAN, LAURA, MARIANNE | | |
| % Ownership: | 100.0000000000% | | |
| Total Value: | $682,283 | | |
| Tax Area: | 712 - APPRAISER-S Whid Schl Dist, outside Langley, improved, greater than 1 acre |
| CF | Conservation Futures | 0.0316035091 | $682,283 | $682,283 | $21.56 | | |
| FIRE3 | Fire & Rescue Dist #3 S Whidbey GEN | 1.2004855531 | $682,283 | $682,283 | $819.07 | | |
| HOBOND | Hospital BOND | 0.1910887512 | $682,283 | $682,283 | $130.38 | | |
| HOGEN | Hospital GEN | 0.3902502903 | $682,283 | $682,283 | $266.26 | | |
| CE | County Current Expense | 0.3708482477 | $682,283 | $682,283 | $253.02 | | |
| CR | County Roads | 0.4584763726 | $682,283 | $682,283 | $312.81 | | |
| ISLANDEMS | Hospital GEN (EMS) | 0.5000000000 | $682,283 | $682,283 | $341.14 | | |
| LIB | Library Sno-Isle GEN | 0.3153421757 | $682,283 | $682,283 | $215.15 | | |
| PORTWHID | Port of S Whidbey GEN | 0.1094540357 | $682,283 | $682,283 | $74.68 | | |
| SCH206BOND | School 206 BOND | 0.3161759235 | $682,283 | $682,283 | $215.72 | | |
| SCH206MO | School 206 Enrichment | 0.4547169547 | $682,283 | $682,283 | $310.25 | | |
| ST | State School | 1.3035497053 | $682,283 | $682,283 | $889.39 | | |
| ST2 | State School Part 2 | 0.8169543533 | $682,283 | $682,283 | $557.39 | | |
| SWHIDPRBD | P & R S Whidbey BOND | 0.0152817568 | $682,283 | $682,283 | $10.43 | | |
| SWHIDPRBD2 | P & R S Whidbey BOND2 | 0.0138911264 | $682,283 | $682,283 | $9.48 | | |
| SWHIDPRMT | P & R S Whidbey GEN | 0.2053334452 | $682,283 | $682,283 | $140.10 | | |
| | Total Tax Rate: | 6.6934522006 | | | | | |
| | | | | Taxes w/Current Exemptions: | $4,566.83 | | |
| | | | | Taxes w/o Exemptions: | $4,566.83 | | |
Improvement / Building
| Improvement #1: | RESIDENTIAL | State Code: | Y | 2838.5 sqft | Value: | $312,283 |
| Bathrooms: | 2 | Bedrooms: | 2 | | Ceiling: | DRYWALL PAINTED | Exterior Wall/Cover: | PLY/HARDBOARD T-111 | | Floor Covering: | CARPET/VINYL 60-40 | Floor Structure: | WOOD W/SUBFLOOR | | Foundation: | CONCRETE | Heating: | GAS HEATERS | | Interior Finish: | DRYWALL PAINT | Plumbing Fixture Cnt: | 12 | | Roof Slope: | 5" IN 12" | Roof Structure/Cover: | CJ ASPHALT |
|
| | Type | Description | Class CD | Sub Class CD | Year Built | Area |
| | BAS | BASE/MAIN FLOOR | 3 | 0 | 1990 | 1196.5 |
| | UTY | STORAGE/UTILITY | 3 | 0 | 1990 | 1120.0 |
| | UPS | UPPER STORY | 3 | 0 | 1990 | 494.0 |
| | OWP | OPEN WOOD PORCH W/STEPS | 3 | 0 | 1990 | 120.0 |
| | DWN | DOWNSTAIRS LIVING AREA | 3 | 0 | 1990 | 1148.0 |
| | DGR | DETACHED GARAGE | 3 | 0 | 1990 | 832.0 |
| | ATU | ATTIC UNFINISHED | 3 | 0 | 1990 | 640.0 |
Sketch
Property Image
Land
| 1 | 32 | AC (03.01-09.99) | 3.0500 | 0.00 | 0.00 | 0.00 | 1.00 | $370,000 | $0 |
Roll Value History
| 2026 | N/A | N/A | N/A | N/A | N/A |
| 2025 | $312,283 | $370,000 | $0 | $682,283 | $682,283 |
| 2024 | $316,794 | $350,000 | $0 | $666,794 | $666,794 |
| 2023 | $321,303 | $330,000 | $0 | $651,303 | $651,303 |
| 2022 | $295,024 | $280,000 | $0 | $575,024 | $575,024 |
| 2021 | $260,095 | $230,000 | $0 | $490,095 | $490,095 |
| 2020 | $254,477 | $190,000 | $0 | $444,477 | $444,477 |
| 2019 | $191,953 | $250,000 | $0 | $441,953 | $441,953 |
| 2018 | $192,592 | $210,000 | $0 | $402,592 | $402,592 |
| 2017 | $193,867 | $190,000 | $0 | $383,867 | $383,867 |
| 2016 | $196,419 | $135,000 | $0 | $331,419 | $331,419 |
| 2015 | $198,968 | $135,000 | $0 | $333,968 | $333,968 |
| 2014 | $196,984 | $103,700 | $0 | $300,684 | $300,684 |
| 2013 | $199,261 | $103,700 | $0 | $302,961 | $302,961 |
| 2012 | $201,540 | $103,700 | $0 | $305,240 | $305,240 |
| 2011 | $205,779 | $103,700 | $0 | $309,479 | $309,479 |
| 2010 | $212,143 | $103,700 | $0 | $315,843 | $315,843 |
| 2009 | $221,216 | $134,200 | $0 | $355,416 | $355,416 |
| 2008 | $237,000 | $152,500 | $0 | $389,500 | $389,500 |
| 2007 | $240,395 | $128,100 | $0 | $368,495 | $368,495 |
Deed and Sales History
| 1 | 10/28/2022 | EZ | Easement | EDAIN JTWROS EACH, HASAN, LAURA, MARIANNE | PUGET SOUND ENERGY | | | $1,500.00 | 55330 | 4554645 |
| 2 | 08/14/2009 | QCD | Quit Claim Deed | EDAIN, HASAN | EDAIN JTWROS EACH, HASAN, LAUR | | | $0.00 | 91915 | 4258666 |
| 3 | 01/28/2009 | QCD | Quit Claim Deed | EDAIN, HASAN | EDAIN, HASAN | | | $0.00 | 90310 | 4244618 |
| 4 | 07/24/2000 | WD | Warranty Deed | TOMASEK, EMA | EDAIN, HASAN | | | $200,000.00 | 2799 | 20013224 |
| 5 | 02/03/2000 | ESTSEPPROP | Establish Separate Property | ELSTRAN, LARRY N | TOMASEK, EMA | | | $0.00 | 454 | 20002302 |
| 6 | 06/12/1998 | EZ | Easement | TOMASEK, EMA | ELSTRAN, LARRY N | | | $10,000.00 | 80084 | 98011895 |
| 7 | 04/01/1989 | DECREE | Divorce Decree/Legal Separation | GUSTAFSON, A K | GUSTAFSON, ALBERT K | | | $0.00 | 63069 | 0 |
| 8 | 04/01/1989 | WD | Warranty Deed | GUSTAFSON, ALBERT K | TOMASEK, EMA | | | $17,000.00 | 91467 | 89005139 |
| 9 | 04/01/1989 | QCD | Quit Claim Deed | TOMASEK, EMA | TOMASEK, EMA | | | $0.00 | 91468 | 89005140 |
| 10 | 11/01/1988 | DECREE | Divorce Decree/Legal Separation | GUSTAFSON, ALBERT K | GUSTAFSON, ALBERT K | | | $0.00 | 91344 | 89004650 |
| 11 | 01/01/1900 | OTHER | Other - Misc. Documents | Unknown | GUSTAFSON, A K | | | $0.00 | 92323 | 352414 |
Payout Agreement
| No payout information available.. |