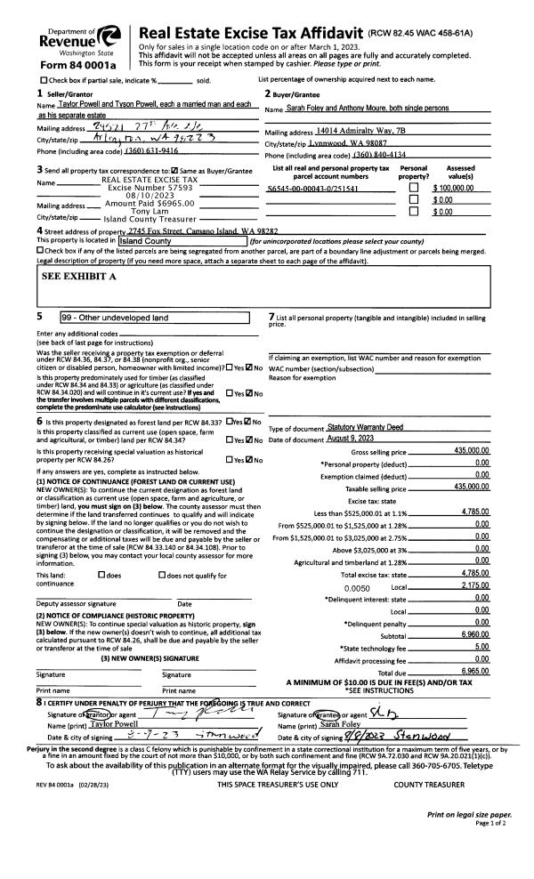
Property
Account |
| Property ID: | 611181 | Abbreviated Legal Description: | S735'OF E/2 E/2 SW NW EX N345' & EX S15' TGW & SUB EZS FR 290-1150 |
| Geographic ID: | R13302-282-1150 | Agent Code: | |
| Type: | Real | | |
| Tax Area: | 112 - APPRAISER-OH Schl Dist, outside OH, improved, greater than 1 acre | Land Use Code | 11 |
| Open Space: | N | DFL | N |
| Historic Property: | N | Remodel Property: | N |
| Multi-Family Redevelopment: | N | | |
| Township: | 33 | Section: | 02 |
| Range: | R1 |
Location |
| Address: | 701 SOUNDVIEW LN OAK HARBOR, WA 98277 | Mapsco: | |
| Neighborhood: | Cycle 6 | Map ID: | 195 |
| Neighborhood CD: | 6 |
Owner |
| Name: | DIAL, BENJAMIN M | Owner ID: | 277508 |
| Mailing Address: | 711 SOUNDVIEW LN OAK HARBOR, WA 98277 | % Ownership: | 100.0000000000% |
| | | Exemptions: | |
Taxes and Assessment Details
Values
| (+) Improvement Homesite Value: | + | $0 | |
| (+) Improvement Non-Homesite Value: | + | $342,130 | |
| (+) Land Homesite Value: | + | $0 | |
| (+) Land Non-Homesite Value: | + | $290,000 | |
| (+) Curr Use (HS): | + | $0 | $0 |
| (+) Curr Use (NHS): | + | $0 | $0 |
| | | -------------------------- | |
| (=) Market Value: | = | $632,130 | |
| (–) Productivity Loss: | – | $0 | |
| | | -------------------------- | |
| (=) Subtotal: | = | $632,130 | |
| (+) Senior Appraised Value: | + | $0 | |
| (+) Non-Senior Appraised Value: | + | $632,130 | |
| | | -------------------------- | |
| (=) Total Appraised Value: | = | $632,130 | |
| (–) Senior Exemption Loss: | – | $0 | |
| (–) Exemption Loss: | – | $0 | |
| | | -------------------------- | |
| (=) Taxable Value: | = | $632,130 | |
Taxing Jurisdiction
| Owner: | DIAL, BENJAMIN M | | |
| % Ownership: | 100.0000000000% | | |
| Total Value: | $632,130 | | |
| Tax Area: | 112 - APPRAISER-OH Schl Dist, outside OH, improved, greater than 1 acre |
| CF | Conservation Futures | 0.0316035091 | $632,130 | $632,130 | $19.98 | | |
| CEM1 | Cemetery #1 | 0.0040320932 | $632,130 | $632,130 | $2.55 | | |
| FIRE2 | Fire & Rescue Dist #2 N Whidbey GEN | 0.5475949600 | $632,130 | $632,130 | $346.15 | | |
| HOBOND | Hospital BOND | 0.1910887512 | $632,130 | $632,130 | $120.79 | | |
| HOGEN | Hospital GEN | 0.3902502903 | $632,130 | $632,130 | $246.69 | | |
| CE | County Current Expense | 0.3708482477 | $632,130 | $632,130 | $234.42 | | |
| CR | County Roads | 0.4584763726 | $632,130 | $632,130 | $289.82 | | |
| ISLANDEMS | Hospital GEN (EMS) | 0.5000000000 | $632,130 | $632,130 | $316.07 | | |
| LIB | Library Sno-Isle GEN | 0.3153421757 | $632,130 | $632,130 | $199.34 | | |
| NWHIDPRMT | P & R N Whidbey GEN | 0.2004466701 | $632,130 | $632,130 | $126.71 | | |
| SCH201MO | School 201 Enrichment | 1.8559231640 | $632,130 | $632,130 | $1,173.18 | | |
| ST | State School | 1.3035497053 | $632,130 | $632,130 | $824.01 | | |
| ST2 | State School Part 2 | 0.8169543533 | $632,130 | $632,130 | $516.42 | | |
| | Total Tax Rate: | 6.9861102925 | | | | | |
| | | | | Taxes w/Current Exemptions: | $4,416.13 | | |
| | | | | Taxes w/o Exemptions: | $4,416.13 | | |
Improvement / Building
| Improvement #1: | RESIDENTIAL | State Code: | Y | 1112.0 sqft | Value: | $215,683 |
| Bathrooms: | 2 | Bedrooms: | 2 | | Ceiling: | DRYWALL PAINTED | Cooling: | HEAT PUMP/CONV/V | | Exterior Wall/Cover: | CEMENT FIBER | Floor Covering: | VINYL 100% | | Floor Structure: | WOOD W/SUBFLOOR | Foundation: | CONCRETE | | Interior Finish: | DRYWALL PAINT | Plumbing Fixture Cnt: | 6 | | Roof Slope: | 6" IN 12" | Roof Structure/Cover: | BEAM ALUMINUM HEAVY |
|
| | Type | Description | Class CD | Sub Class CD | Year Built | Area |
| | BAS | BASE/MAIN FLOOR | 3 | 0 | 1943 | 740.0 |
| | OWP | OPEN WOOD PORCH W/STEPS | 3 | 0 | 1943 | 48.0 |
| | UPH | HALF STORY | 3 | 0 | 1943 | 372.0 |
| Improvement #2: | RESIDENTIAL | State Code: | Y | 720.0 sqft | Value: | $120,423 |
| Bathrooms: | 1 | Bedrooms: | 2 | | Ceiling: | DRYWALL PAINTED | Exterior Wall/Cover: | WOOD SIDING | | Floor Covering: | CARPET/VINYL 60-40 | Floor Structure: | WOOD W/SUBFLOOR | | Foundation: | CONCRETE | Heating: | BASEBOARD ELECTRIC | | Interior Finish: | DRYWALL PAINT | Plumbing Fixture Cnt: | 6 | | Roof Slope: | 5" IN 12" | Roof Structure/Cover: | CJ ASPHALT |
|
| | Type | Description | Class CD | Sub Class CD | Year Built | Area |
| | BAS | BASE/MAIN FLOOR | 3 | 0 | 1943 | 720.0 |
| | OWP | OPEN WOOD PORCH W/STEPS | 3 | 0 | 1943 | 64.0 |
| Improvement #3: | MANUFACTURED HOME | State Code: | Y | 672.0 sqft | Value: | $6,024 |
| Bathrooms: | 0 | Bedrooms: | 0 | | Ceiling: | PLASTER PAINTED | Cooling: | EVAP NO DUCT | | Exterior Wall/Cover: | VINYL | Floor Covering: | CARPET 100% | | Floor Structure: | SLAB ON GRADE | Foundation: | SLAB | | Heating: | FHA ELECTRIC | Interior Finish: | PLASTER | | Plumbing Fixture Cnt: | 1 | Roof Slope: | FLAT | | Roof Structure/Cover: | CJ ALUMINIUM HEAVY |   |   |
|
Sketch
Property Image
Land
| 1 | 18 | AC (02.01-03.00) | 2.8400 | 123710.40 | 0.00 | 0.00 | 1.00 | $290,000 | $0 |
Roll Value History
| 2026 | N/A | N/A | N/A | N/A | N/A |
| 2025 | $342,130 | $290,000 | $0 | $632,130 | $632,130 |
| 2024 | $347,936 | $280,000 | $0 | $627,936 | $627,936 |
| 2023 | $350,558 | $280,000 | $0 | $630,558 | $630,558 |
| 2022 | $320,515 | $220,000 | $0 | $540,515 | $540,515 |
| 2021 | $281,392 | $160,000 | $0 | $441,392 | $441,392 |
| 2020 | $273,927 | $150,000 | $0 | $423,927 | $423,927 |
| 2019 | $190,834 | $220,000 | $0 | $410,834 | $410,834 |
| 2018 | $73,119 | $170,000 | $0 | $243,119 | $243,119 |
| 2017 | $73,707 | $130,000 | $0 | $203,707 | $203,707 |
| 2016 | $28,018 | $130,000 | $0 | $158,018 | $158,018 |
| 2015 | $28,896 | $110,000 | $0 | $138,896 | $138,896 |
| 2014 | $54,783 | $75,000 | $0 | $129,783 | $129,783 |
| 2013 | $56,371 | $75,000 | $0 | $131,371 | $131,371 |
| 2012 | $58,115 | $102,000 | $0 | $160,115 | $160,115 |
| 2011 | $59,859 | $120,000 | $0 | $179,859 | $179,859 |
| 2010 | $74,694 | $120,000 | $0 | $194,694 | $194,694 |
| 2009 | $78,176 | $135,000 | $0 | $213,176 | $213,176 |
| 2008 | $88,251 | $135,000 | $0 | $223,251 | $223,251 |
| 2007 | $89,736 | $135,000 | $0 | $224,736 | $224,736 |
Deed and Sales History
| 1 | 06/09/2016 | PRD | Personal Representatives Deed | DIAL, BENJAMIN M | DIAL, BENJAMIN M | | | $82,500.00 | 26912 | 4411477 |
| 2 | 06/09/2016 | PRD | Personal Representatives Deed | DIAL, BENJAMIN H | DIAL, BENJAMIN M | | | $0.00 | 26911 | 4411477 |
| 3 | 06/09/2016 | PRD | Personal Representatives Deed | DIAL, BENJAMIN H | DIAL, BENJAMIN H | | | $0.00 | 26910 | 4411475 |
| 4 | 10/26/2016 | MANHOME | Manufactured Home | DIAL, BENJAMIN H | DIAL, BENJAMIN H | | | $0.00 | 26680 | |
| 5 | 11/01/1987 | EZ | Easement | SELTVEIT, ARNE | DIAL, BENJAMIN H | | | $0.00 | 62436 | 86006629 |
| 6 | 10/01/1986 | OTHER | Other - Misc. Documents | DIAL, BENJAMIN H | SELTVEIT, ARNE | | | $0.00 | 61920 | 86013598 |
| 7 | 05/01/1986 | OTHER | Other - Misc. Documents | Unknown | DIAL, BENJAMIN H | | | $8,000.00 | 61311 | 0 |
| 8 | 05/01/1986 | WD | Warranty Deed | DIAL, BENJAMIN H | DIAL, BENJAMIN H | | | $72,000.00 | 61302 | 86006139 |
Payout Agreement
| No payout information available.. |