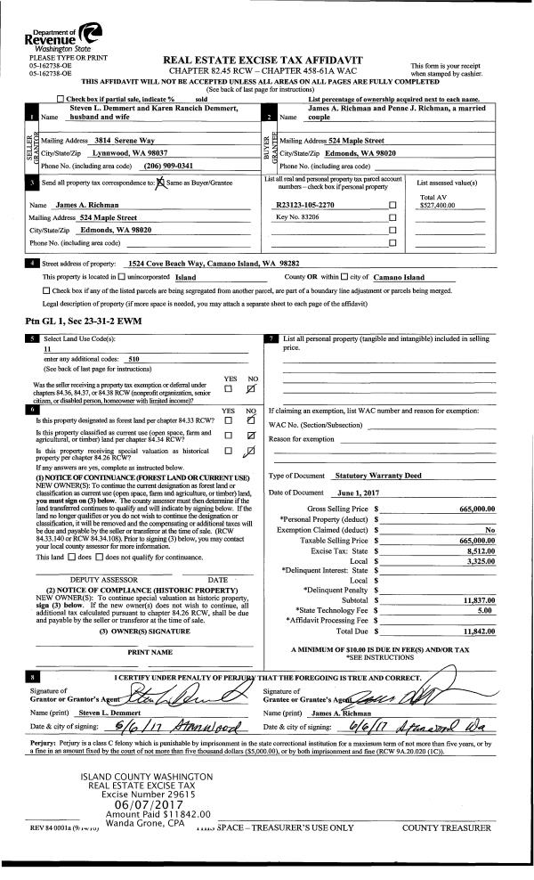
Property
Account |
| Property ID: | 611476 | Abbreviated Legal Description: | LOT B SP 84-107.23321.206-3490 V2 SP P79 AF#86013449 |
| Geographic ID: | R23321-223-3450 | Agent Code: | |
| Type: | Real | | |
| Tax Area: | 112 - APPRAISER-OH Schl Dist, outside OH, improved, greater than 1 acre | Land Use Code | 11 |
| Open Space: | N | DFL | N |
| Historic Property: | N | Remodel Property: | N |
| Multi-Family Redevelopment: | N | | |
| Township: | 33 | Section: | 21 |
| Range: | R2 |
Location |
| Address: | 1055 DEVRIES RD OAK HARBOR, WA 98277 | Mapsco: | |
| Neighborhood: | Cycle 6 | Map ID: | 617 |
| Neighborhood CD: | 6 |
Owner |
| Name: | CHRISTOPHERSON, KIT | Owner ID: | 281566 |
| Mailing Address: | CHRISTINE CHRISTOPHERSON 1055 DEVRIES RD OAK HARBOR, WA 98277-9028 | % Ownership: | 100.0000000000% |
| | | Exemptions: | |
Taxes and Assessment Details
Values
| (+) Improvement Homesite Value: | + | $0 | |
| (+) Improvement Non-Homesite Value: | + | $326,336 | |
| (+) Land Homesite Value: | + | $0 | |
| (+) Land Non-Homesite Value: | + | $300,000 | |
| (+) Curr Use (HS): | + | $0 | $0 |
| (+) Curr Use (NHS): | + | $0 | $0 |
| | | -------------------------- | |
| (=) Market Value: | = | $626,336 | |
| (–) Productivity Loss: | – | $0 | |
| | | -------------------------- | |
| (=) Subtotal: | = | $626,336 | |
| (+) Senior Appraised Value: | + | $0 | |
| (+) Non-Senior Appraised Value: | + | $626,336 | |
| | | -------------------------- | |
| (=) Total Appraised Value: | = | $626,336 | |
| (–) Senior Exemption Loss: | – | $0 | |
| (–) Exemption Loss: | – | $0 | |
| | | -------------------------- | |
| (=) Taxable Value: | = | $626,336 | |
Taxing Jurisdiction
| Owner: | CHRISTOPHERSON, KIT | | |
| % Ownership: | 100.0000000000% | | |
| Total Value: | $626,336 | | |
| Tax Area: | 112 - APPRAISER-OH Schl Dist, outside OH, improved, greater than 1 acre |
| CF | Conservation Futures | 0.0316035091 | $626,336 | $626,336 | $19.79 | | |
| CEM1 | Cemetery #1 | 0.0040320932 | $626,336 | $626,336 | $2.53 | | |
| FIRE2 | Fire & Rescue Dist #2 N Whidbey GEN | 0.5475949600 | $626,336 | $626,336 | $342.98 | | |
| HOBOND | Hospital BOND | 0.1910887512 | $626,336 | $626,336 | $119.69 | | |
| HOGEN | Hospital GEN | 0.3902502903 | $626,336 | $626,336 | $244.43 | | |
| CE | County Current Expense | 0.3708482477 | $626,336 | $626,336 | $232.28 | | |
| CR | County Roads | 0.4584763726 | $626,336 | $626,336 | $287.16 | | |
| ISLANDEMS | Hospital GEN (EMS) | 0.5000000000 | $626,336 | $626,336 | $313.17 | | |
| LIB | Library Sno-Isle GEN | 0.3153421757 | $626,336 | $626,336 | $197.51 | | |
| NWHIDPRMT | P & R N Whidbey GEN | 0.2004466701 | $626,336 | $626,336 | $125.55 | | |
| SCH201MO | School 201 Enrichment | 1.8559231640 | $626,336 | $626,336 | $1,162.43 | | |
| ST | State School | 1.3035497053 | $626,336 | $626,336 | $816.46 | | |
| ST2 | State School Part 2 | 0.8169543533 | $626,336 | $626,336 | $511.69 | | |
| | Total Tax Rate: | 6.9861102925 | | | | | |
| | | | | Taxes w/Current Exemptions: | $4,375.67 | | |
| | | | | Taxes w/o Exemptions: | $4,375.67 | | |
Improvement / Building
| Improvement #1: | RESIDENTIAL | State Code: | Y | 2593.0 sqft | Value: | $326,336 |
| Bathrooms: | 2.5 | Bedrooms: | 3 | | Ceiling: | TONGUE & GROOVE | Exterior Wall/Cover: | PLY/HARDBOARD T-111 | | Floor Covering: | HARDWOOD/CARP 20-80 | Floor Structure: | WOOD W/SUBFLOOR | | Foundation: | CONCRETE | Heating: | FHA GAS | | Interior Finish: | DRYWALL PAINT | Plumbing Fixture Cnt: | 13 | | Roof Slope: | 10" IN 12" | Roof Structure/Cover: | BEAM ASPHALT |
|
| | Type | Description | Class CD | Sub Class CD | Year Built | Area |
| | BAS | BASE/MAIN FLOOR | 3 | 0 | 1992 | 1380.0 |
| | AGR | ATTACHED GARAGE | 3 | 0 | 1992 | 576.0 |
| | UPH | HALF STORY | 3 | 0 | 1992 | 556.0 |
| | OWP | OPEN WOOD PORCH W/STEPS | 3 | 0 | 1992 | 196.0 |
| | OWP | OPEN WOOD PORCH W/STEPS | 3 | 0 | 1992 | 63.0 |
| | OWP | OPEN WOOD PORCH W/STEPS | 3 | 0 | 1992 | 160.0 |
| | LOF | LOFT | 3 | 0 | 1992 | 657.0 |
Sketch
Property Image
Land
| 1 | 32 | AC (03.01-09.99) | 5.8300 | 0.00 | 0.00 | 0.00 | 1.00 | $300,000 | $0 |
Roll Value History
| 2026 | N/A | N/A | N/A | N/A | N/A |
| 2025 | $326,336 | $300,000 | $0 | $626,336 | $626,336 |
| 2024 | $330,793 | $280,000 | $0 | $610,793 | $610,793 |
| 2023 | $335,246 | $270,000 | $0 | $605,246 | $605,246 |
| 2022 | $324,081 | $240,000 | $0 | $564,081 | $564,081 |
| 2021 | $285,518 | $175,000 | $0 | $460,518 | $460,518 |
| 2020 | $278,888 | $150,000 | $0 | $428,888 | $428,888 |
| 2019 | $217,783 | $185,000 | $0 | $402,783 | $402,783 |
| 2018 | $218,470 | $170,000 | $0 | $388,470 | $388,470 |
| 2017 | $219,843 | $150,000 | $0 | $369,843 | $369,843 |
| 2016 | $226,035 | $130,000 | $0 | $356,035 | $356,035 |
| 2015 | $229,002 | $120,000 | $0 | $349,002 | $349,002 |
| 2014 | $231,969 | $116,600 | $0 | $348,569 | $348,569 |
| 2013 | $234,935 | $115,434 | $0 | $350,369 | $350,369 |
| 2012 | $237,903 | $115,434 | $0 | $353,337 | $353,337 |
| 2011 | $240,869 | $128,260 | $0 | $369,129 | $369,129 |
| 2010 | $247,568 | $128,260 | $0 | $375,828 | $375,828 |
| 2009 | $258,178 | $145,750 | $0 | $403,928 | $403,928 |
| 2008 | $261,285 | $169,070 | $0 | $430,355 | $430,355 |
| 2007 | $264,432 | $128,901 | $0 | $393,333 | $393,333 |
Deed and Sales History
| 1 | 08/21/2017 | WD | Warranty Deed | MOSER, CHARLES P | CHRISTOPHERSON, KIT | | | $425,000.00 | 30767 | 4428753 |
|   | |
| 2 | 03/01/1990 | WD | Warranty Deed | JAMESON, B D | MOSER, CHARLES P | | | $15,000.00 | 1759 | 90005667 |
| 3 | 01/01/1900 | OTHER | Other - Misc. Documents | Unknown | JAMESON, B D | | | $0.00 | 84289 | 339102 |
Payout Agreement
| No payout information available.. |