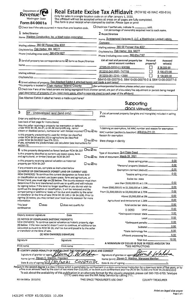
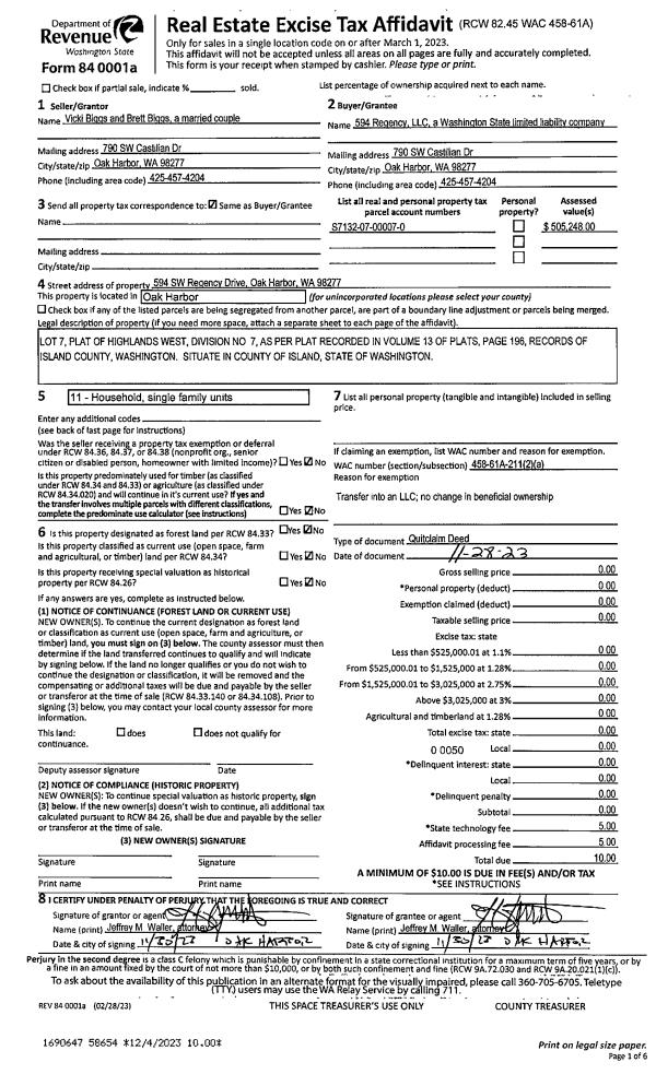
Property
Account |
| Property ID: | 611555 | Abbreviated Legal Description: | NW SE SW NW FR 329-1331 TGW & SUB EZ AF#87003639 |
| Geographic ID: | R32911-335-0900 | Agent Code: | |
| Type: | Real | | |
| Tax Area: | 712 - APPRAISER-S Whid Schl Dist, outside Langley, improved, greater than 1 acre | Land Use Code | 11 |
| Open Space: | N | DFL | N |
| Historic Property: | N | Remodel Property: | N |
| Multi-Family Redevelopment: | N | | |
| Township: | 29 | Section: | 11 |
| Range: | R3 |
Location |
| Address: | 4050 HOLLYHOCK LN LANGLEY, WA 98260 | Mapsco: | |
| Neighborhood: | Cycle 4 | Map ID: | 760 |
| Neighborhood CD: | 4 |
Owner |
| Name: | TALL FIRS HOLDINGS, LLC | Owner ID: | 310323 |
| Mailing Address: | 4060 HOLLYHOCK LN LANGLEY, WA 98260 | % Ownership: | 100.0000000000% |
| | | Exemptions: | |
Taxes and Assessment Details
Values
| (+) Improvement Homesite Value: | + | $0 | |
| (+) Improvement Non-Homesite Value: | + | $473,308 | |
| (+) Land Homesite Value: | + | $0 | |
| (+) Land Non-Homesite Value: | + | $310,000 | |
| (+) Curr Use (HS): | + | $0 | $0 |
| (+) Curr Use (NHS): | + | $0 | $0 |
| | | -------------------------- | |
| (=) Market Value: | = | $783,308 | |
| (–) Productivity Loss: | – | $0 | |
| | | -------------------------- | |
| (=) Subtotal: | = | $783,308 | |
| (+) Senior Appraised Value: | + | $0 | |
| (+) Non-Senior Appraised Value: | + | $783,308 | |
| | | -------------------------- | |
| (=) Total Appraised Value: | = | $783,308 | |
| (–) Senior Exemption Loss: | – | $0 | |
| (–) Exemption Loss: | – | $0 | |
| | | -------------------------- | |
| (=) Taxable Value: | = | $783,308 | |
Taxing Jurisdiction
| Owner: | TALL FIRS HOLDINGS, LLC | | |
| % Ownership: | 100.0000000000% | | |
| Total Value: | $783,308 | | |
| Tax Area: | 712 - APPRAISER-S Whid Schl Dist, outside Langley, improved, greater than 1 acre |
| CF | Conservation Futures | 0.0316035091 | $783,308 | $783,308 | $24.76 | | |
| FIRE3 | Fire & Rescue Dist #3 S Whidbey GEN | 1.2004855531 | $783,308 | $783,308 | $940.35 | | |
| HOBOND | Hospital BOND | 0.1910887512 | $783,308 | $783,308 | $149.68 | | |
| HOGEN | Hospital GEN | 0.3902502903 | $783,308 | $783,308 | $305.69 | | |
| CE | County Current Expense | 0.3708482477 | $783,308 | $783,308 | $290.49 | | |
| CR | County Roads | 0.4584763726 | $783,308 | $783,308 | $359.13 | | |
| ISLANDEMS | Hospital GEN (EMS) | 0.5000000000 | $783,308 | $783,308 | $391.65 | | |
| LIB | Library Sno-Isle GEN | 0.3153421757 | $783,308 | $783,308 | $247.01 | | |
| PORTWHID | Port of S Whidbey GEN | 0.1094540357 | $783,308 | $783,308 | $85.74 | | |
| SCH206BOND | School 206 BOND | 0.3161759235 | $783,308 | $783,308 | $247.66 | | |
| SCH206MO | School 206 Enrichment | 0.4547169547 | $783,308 | $783,308 | $356.18 | | |
| ST | State School | 1.3035497053 | $783,308 | $783,308 | $1,021.08 | | |
| ST2 | State School Part 2 | 0.8169543533 | $783,308 | $783,308 | $639.93 | | |
| SWHIDPRBD | P & R S Whidbey BOND | 0.0152817568 | $783,308 | $783,308 | $11.97 | | |
| SWHIDPRBD2 | P & R S Whidbey BOND2 | 0.0138911264 | $783,308 | $783,308 | $10.88 | | |
| SWHIDPRMT | P & R S Whidbey GEN | 0.2053334452 | $783,308 | $783,308 | $160.84 | | |
| | Total Tax Rate: | 6.6934522006 | | | | | |
| | | | | Taxes w/Current Exemptions: | $5,243.04 | | |
| | | | | Taxes w/o Exemptions: | $5,243.04 | | |
Improvement / Building
| Improvement #1: | RESIDENTIAL | State Code: | Y | 2112.0 sqft | Value: | $473,308 |
| Bathrooms: | 2.5 | Bedrooms: | 2 | | Ceiling: | BEAM PAINTED | Exterior Wall/Cover: | LOG TO 10" | | Floor Covering: | VINYL TILE/HARWD 20-80 | Floor Structure: | WOOD W/SUBFLOOR | | Foundation: | CONCRETE | Heating: | FHA GAS | | Interior Finish: | DRYWALL PAINT | Plumbing Fixture Cnt: | 11 | | Roof Slope: | 8" IN 12" | Roof Structure/Cover: | BEAM ALUMINUM HEAVY |
|
| | Type | Description | Class CD | Sub Class CD | Year Built | Area |
| | BAS | BASE/MAIN FLOOR | 4 | 0 | 1987 | 1692.0 |
| | UPS | UPPER STORY | 4 | 0 | 1987 | 420.0 |
| | OWP | OPEN WOOD PORCH W/STEPS | 4 | 0 | 1987 | 552.0 |
| | OWR | OPEN WOOD PORCH W/STEPS/ROOF | 4 | 0 | 1987 | 119.0 |
| | OWR | OPEN WOOD PORCH W/STEPS/ROOF | 4 | 0 | 1987 | 273.0 |
| | OWC | OPEN WOOD PORCH W/STEPS/ROOF/C | 4 | 0 | 1987 | 245.0 |
| | DGR | DETACHED GARAGE | 4 | 0 | 1987 | 988.0 |
Sketch
Property Image
Land
| 1 | 18 | AC (02.01-03.00) | 0.0000 | 0.00 | 0.00 | 0.00 | 1.00 | $310,000 | $0 |
Roll Value History
| 2026 | N/A | N/A | N/A | N/A | N/A |
| 2025 | $473,308 | $310,000 | $0 | $783,308 | $783,308 |
| 2024 | $500,436 | $300,000 | $0 | $800,436 | $800,436 |
| 2023 | $507,000 | $290,000 | $0 | $797,000 | $797,000 |
| 2022 | $465,037 | $270,000 | $0 | $735,037 | $735,037 |
| 2021 | $409,540 | $175,000 | $0 | $584,540 | $584,540 |
| 2020 | $386,777 | $165,000 | $0 | $551,777 | $551,777 |
| 2019 | $291,061 | $200,000 | $0 | $491,061 | $491,061 |
| 2018 | $292,029 | $170,000 | $0 | $462,029 | $462,029 |
| 2017 | $290,381 | $150,000 | $0 | $440,381 | $440,381 |
| 2016 | $294,202 | $150,000 | $0 | $444,202 | $444,202 |
| 2015 | $298,022 | $95,000 | $0 | $393,022 | $393,022 |
| 2014 | $282,513 | $95,000 | $0 | $377,513 | $377,513 |
| 2013 | $285,837 | $112,500 | $0 | $398,337 | $398,337 |
| 2012 | $289,164 | $112,500 | $0 | $401,664 | $401,664 |
| 2011 | $292,488 | $125,000 | $0 | $417,488 | $417,488 |
| 2010 | $303,336 | $125,000 | $0 | $428,336 | $428,336 |
| 2009 | $316,093 | $155,000 | $0 | $471,093 | $471,093 |
| 2008 | $308,533 | $181,250 | $0 | $489,783 | $489,783 |
| 2007 | $312,401 | $181,250 | $0 | $493,651 | $493,651 |
Deed and Sales History
| 1 | 10/06/2023 | WD | Warranty Deed | MILFS TTEE, DANA | TALL FIRS HOLDINGS, LLC | | | $0.00 | 58212 | 4565581 |
| 2 | 09/26/2023 | BARGSLD | Bargain And Sale Deed | MILFS TTEE, DANA G. | MILFS TTEE, DANA | | | $0.00 | 58110 | 4565206 |
| 3 | 07/26/2022 | BARGSLD | Bargain And Sale Deed | MILFS, MERLE M / JEAN F | MILFS TTEE, DANA G. | | | $0.00 | 53993 | 4549004 |
| 4 | 10/01/1993 | WD | Warranty Deed | LONG, GERALD F | MILFS, MERLE M | | | $169,000.00 | 34273 | 93022252 |
| 5 | 11/01/1986 | OTHER | Other - Misc. Documents | LONG, GERALD F | LONG, GERALD F | | | $0.00 | 61935 | 0 |
| 6 | 09/01/1986 | QCD | Quit Claim Deed | Unknown | LONG, GERALD F | | | $0.00 | 62736 | 86012363 |
Payout Agreement
| No payout information available.. |