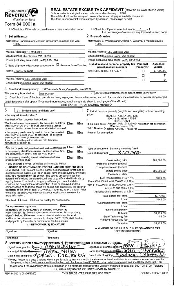
Property
Account |
| Property ID: | 611564 | Abbreviated Legal Description: | NE SE SW NW FR 329-1331 TGW & SUB EZ AF#87003639 |
| Geographic ID: | R32911-335-1200 | Agent Code: | |
| Type: | Real | | |
| Tax Area: | 712 - APPRAISER-S Whid Schl Dist, outside Langley, improved, greater than 1 acre | Land Use Code | 11 |
| Open Space: | N | DFL | N |
| Historic Property: | N | Remodel Property: | N |
| Multi-Family Redevelopment: | N | | |
| Township: | 29 | Section: | 11 |
| Range: | R3 |
Location |
| Address: | 4060 HOLLYHOCK LN LANGLEY, WA 98260 | Mapsco: | |
| Neighborhood: | Cycle 4 | Map ID: | 760 |
| Neighborhood CD: | 4 |
Owner |
| Name: | MILFS, DANA & MARCIA | Owner ID: | 92865 |
| Mailing Address: | 4060 HOLLYHOCK LN LANGLEY, WA 98260-9256 | % Ownership: | 100.0000000000% |
| | | Exemptions: | |
Taxes and Assessment Details
Values
| (+) Improvement Homesite Value: | + | $0 | |
| (+) Improvement Non-Homesite Value: | + | $439,516 | |
| (+) Land Homesite Value: | + | $0 | |
| (+) Land Non-Homesite Value: | + | $310,000 | |
| (+) Curr Use (HS): | + | $0 | $0 |
| (+) Curr Use (NHS): | + | $0 | $0 |
| | | -------------------------- | |
| (=) Market Value: | = | $749,516 | |
| (–) Productivity Loss: | – | $0 | |
| | | -------------------------- | |
| (=) Subtotal: | = | $749,516 | |
| (+) Senior Appraised Value: | + | $0 | |
| (+) Non-Senior Appraised Value: | + | $749,516 | |
| | | -------------------------- | |
| (=) Total Appraised Value: | = | $749,516 | |
| (–) Senior Exemption Loss: | – | $0 | |
| (–) Exemption Loss: | – | $0 | |
| | | -------------------------- | |
| (=) Taxable Value: | = | $749,516 | |
Taxing Jurisdiction
| Owner: | MILFS, DANA & MARCIA | | |
| % Ownership: | 100.0000000000% | | |
| Total Value: | $749,516 | | |
| Tax Area: | 712 - APPRAISER-S Whid Schl Dist, outside Langley, improved, greater than 1 acre |
| CF | Conservation Futures | 0.0316035091 | $749,516 | $749,516 | $23.69 | | |
| FIRE3 | Fire & Rescue Dist #3 S Whidbey GEN | 1.2004855531 | $749,516 | $749,516 | $899.78 | | |
| HOBOND | Hospital BOND | 0.1910887512 | $749,516 | $749,516 | $143.22 | | |
| HOGEN | Hospital GEN | 0.3902502903 | $749,516 | $749,516 | $292.50 | | |
| CE | County Current Expense | 0.3708482477 | $749,516 | $749,516 | $277.96 | | |
| CR | County Roads | 0.4584763726 | $749,516 | $749,516 | $343.64 | | |
| ISLANDEMS | Hospital GEN (EMS) | 0.5000000000 | $749,516 | $749,516 | $374.76 | | |
| LIB | Library Sno-Isle GEN | 0.3153421757 | $749,516 | $749,516 | $236.35 | | |
| PORTWHID | Port of S Whidbey GEN | 0.1094540357 | $749,516 | $749,516 | $82.04 | | |
| SCH206BOND | School 206 BOND | 0.3161759235 | $749,516 | $749,516 | $236.98 | | |
| SCH206MO | School 206 Enrichment | 0.4547169547 | $749,516 | $749,516 | $340.82 | | |
| ST | State School | 1.3035497053 | $749,516 | $749,516 | $977.03 | | |
| ST2 | State School Part 2 | 0.8169543533 | $749,516 | $749,516 | $612.32 | | |
| SWHIDPRBD | P & R S Whidbey BOND | 0.0152817568 | $749,516 | $749,516 | $11.45 | | |
| SWHIDPRBD2 | P & R S Whidbey BOND2 | 0.0138911264 | $749,516 | $749,516 | $10.41 | | |
| SWHIDPRMT | P & R S Whidbey GEN | 0.2053334452 | $749,516 | $749,516 | $153.90 | | |
| | Total Tax Rate: | 6.6934522006 | | | | | |
| | | | | Taxes w/Current Exemptions: | $5,016.85 | | |
| | | | | Taxes w/o Exemptions: | $5,016.85 | | |
Improvement / Building
| Improvement #1: | RESIDENTIAL | State Code: | Y | 3216.0 sqft | Value: | $439,516 |
| Bathrooms: | 2 | Bedrooms: | 3 | | Ceiling: | TONGUE & GROOVE | Exterior Wall/Cover: | SHINGLE | | Floor Covering: | SOFTWOOD 100% | Floor Structure: | WOOD W/SUBFLOOR | | Foundation: | CONCRETE | Heating: | B/B HOT WATER-GAS | | Interior Finish: | DRYWALL PAINT | Plumbing Fixture Cnt: | 10 | | Roof Slope: | 8" IN 12" | Roof Structure/Cover: | CJ ASPHALT |
|
| | Type | Description | Class CD | Sub Class CD | Year Built | Area |
| | BAS | BASE/MAIN FLOOR | 3 | 0 | 1996 | 2432.0 |
| | OWP | OPEN WOOD PORCH W/STEPS | 3 | 0 | 1996 | 288.0 |
| | OWC | OPEN WOOD PORCH W/STEPS/ROOF/C | 3 | 0 | 1996 | 256.0 |
| | LOF | LOFT | 3 | 0 | 1996 | 784.0 |
| | DGR | DETACHED GARAGE | 3 | 0 | 1996 | 1152.0 |
| | ATU | ATTIC UNFINISHED | 3 | 0 | 1996 | 936.0 |
Sketch
Property Image
Land
| 1 | 18 | AC (02.01-03.00) | 0.0000 | 0.00 | 0.00 | 0.00 | 1.00 | $310,000 | $0 |
Roll Value History
| 2026 | N/A | N/A | N/A | N/A | N/A |
| 2025 | $439,516 | $310,000 | $0 | $749,516 | $749,516 |
| 2024 | $445,063 | $300,000 | $0 | $745,063 | $745,063 |
| 2023 | $450,607 | $290,000 | $0 | $740,607 | $740,607 |
| 2022 | $413,041 | $270,000 | $0 | $683,041 | $683,041 |
| 2021 | $363,527 | $175,000 | $0 | $538,527 | $538,527 |
| 2020 | $350,211 | $165,000 | $0 | $515,211 | $515,211 |
| 2019 | $292,946 | $200,000 | $0 | $492,946 | $492,946 |
| 2018 | $293,769 | $170,000 | $0 | $463,769 | $463,769 |
| 2017 | $294,938 | $150,000 | $0 | $444,938 | $444,938 |
| 2016 | $298,228 | $150,000 | $0 | $448,228 | $448,228 |
| 2015 | $301,518 | $95,000 | $0 | $396,518 | $396,518 |
| 2014 | $316,739 | $95,000 | $0 | $411,739 | $411,739 |
| 2013 | $319,691 | $112,500 | $0 | $432,191 | $432,191 |
| 2012 | $322,645 | $112,500 | $0 | $435,145 | $435,145 |
| 2011 | $325,597 | $125,000 | $0 | $450,597 | $450,597 |
| 2010 | $333,611 | $125,000 | $0 | $458,611 | $458,611 |
| 2009 | $345,939 | $155,000 | $0 | $500,939 | $500,939 |
| 2008 | $340,329 | $181,250 | $0 | $521,579 | $521,579 |
| 2007 | $344,473 | $181,250 | $0 | $525,723 | $525,723 |
Deed and Sales History
| 1 | 04/21/1998 | WD | Warranty Deed | MILFS, DANA & | MILFS, DANA & MARCIA | | | $0.00 | 0 | 98007794 |
| 2 | 10/01/1993 | WD | Warranty Deed | LONG, GERALD F | MILFS, DANA & | | | $40,000.00 | 34274 | 98007794 |
| 3 | 11/01/1986 | OTHER | Other - Misc. Documents | LONG, GERALD F | LONG, GERALD F | | | $0.00 | 61935 | 0 |
| 4 | 09/01/1986 | QCD | Quit Claim Deed | Unknown | LONG, GERALD F | | | $0.00 | 62736 | 86012363 |
Payout Agreement
| No payout information available.. |