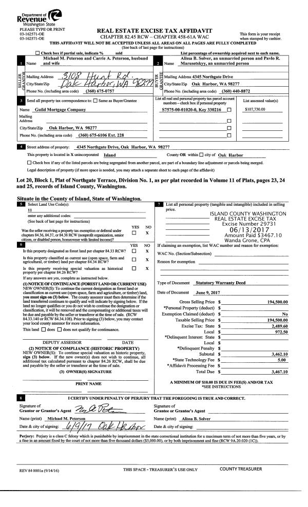
Property
Account |
| Property ID: | 611608 | Abbreviated Legal Description: | REPLACES R33219-320-0600 2 - W110' OF GL2 LY S OF SLN STILLAGUAMISH AVE & N OF NLN BLK 7 BUENA VISTA #3 & W OF WLN D'JORUP AVE (AKA Tract A SP 73-047 07-05-73 |
| Geographic ID: | R33219-320-0060 | Agent Code: | |
| Type: | Real | | |
| Tax Area: | 599 - APPRAISER-Stan/Cam Schl Dist, Special Dist, vacant & 50 acres or less | Land Use Code | 91 |
| Open Space: | N | DFL | N |
| Historic Property: | N | Remodel Property: | N |
| Multi-Family Redevelopment: | N | | |
| Township: | 32 | Section: | 19 |
| Range: | R3 |
Location |
| Address: | | Mapsco: | |
| Neighborhood: | North Camano | Map ID: | 962 |
| Neighborhood CD: | 06-C |
Owner |
| Name: | BEAHM, JON B | Owner ID: | 281360 |
| Mailing Address: | KENDA L BEAHM 1422 OCEAN DR CAMANO ISLAND, WA 98282 | % Ownership: | 100.0000000000% |
| | | Exemptions: | |
Taxes and Assessment Details
Values
| (+) Improvement Homesite Value: | + | $0 | |
| (+) Improvement Non-Homesite Value: | + | $0 | |
| (+) Land Homesite Value: | + | $0 | |
| (+) Land Non-Homesite Value: | + | $180,000 | |
| (+) Curr Use (HS): | + | $0 | $0 |
| (+) Curr Use (NHS): | + | $0 | $0 |
| | | -------------------------- | |
| (=) Market Value: | = | $180,000 | |
| (–) Productivity Loss: | – | $0 | |
| | | -------------------------- | |
| (=) Subtotal: | = | $180,000 | |
| (+) Senior Appraised Value: | + | $0 | |
| (+) Non-Senior Appraised Value: | + | $180,000 | |
| | | -------------------------- | |
| (=) Total Appraised Value: | = | $180,000 | |
| (–) Senior Exemption Loss: | – | $0 | |
| (–) Exemption Loss: | – | $0 | |
| | | -------------------------- | |
| (=) Taxable Value: | = | $180,000 | |
Taxing Jurisdiction
| Owner: | BEAHM, JON B | | |
| % Ownership: | 100.0000000000% | | |
| Total Value: | $180,000 | | |
| Tax Area: | 599 - APPRAISER-Stan/Cam Schl Dist, Special Dist, vacant & 50 acres or less |
| CF | Conservation Futures | 0.0316035091 | $180,000 | $180,000 | $5.69 | | |
| EMS1 | Fire & Rescue Dist #1 Camano GEN (EMS) | 0.3677864386 | $180,000 | $180,000 | $66.20 | | |
| CE | County Current Expense | 0.3708482477 | $180,000 | $180,000 | $66.75 | | |
| CR | County Roads | 0.4584763726 | $180,000 | $180,000 | $82.53 | | |
| LCIB | Library Sno-Isle BOND (Camano Island) | 0.0396325772 | $180,000 | $180,000 | $7.13 | | |
| LIB | Library Sno-Isle GEN | 0.3153421757 | $180,000 | $180,000 | $56.76 | | |
| SCH205_401 | School 205-401 Enrichment | 1.2698420524 | $180,000 | $180,000 | $228.57 | | |
| SCH205BOND | School 205-401 BOND | 0.9396497583 | $180,000 | $180,000 | $169.14 | | |
| ST | State School | 1.3035497053 | $180,000 | $180,000 | $234.64 | | |
| ST2 | State School Part 2 | 0.8169543533 | $180,000 | $180,000 | $147.05 | | |
| | Total Tax Rate: | 5.9136851902 | | | | | |
| | | | | Taxes w/Current Exemptions: | $1,064.46 | | |
| | | | | Taxes w/o Exemptions: | $1,064.46 | | |
Improvement / Building
Sketch
| No sketches available for this property. |
Property Image
Land
| 1 | 16 | AC (00.51-01.00) | 0.6900 | 30056.40 | 0.00 | 0.00 | 1.00 | $180,000 | $0 |
Roll Value History
| 2026 | N/A | N/A | N/A | N/A | N/A |
| 2025 | $0 | $180,000 | $0 | $180,000 | $180,000 |
| 2024 | $0 | $160,000 | $0 | $160,000 | $160,000 |
| 2023 | $0 | $160,000 | $0 | $160,000 | $160,000 |
| 2022 | $0 | $150,000 | $0 | $150,000 | $150,000 |
| 2021 | $0 | $120,000 | $0 | $120,000 | $120,000 |
| 2020 | $0 | $120,000 | $0 | $120,000 | $120,000 |
| 2019 | $0 | $110,000 | $0 | $110,000 | $110,000 |
| 2018 | $0 | $100,000 | $0 | $100,000 | $100,000 |
| 2017 | $0 | $100,000 | $0 | $100,000 | $100,000 |
| 2016 | $0 | $100,000 | $0 | $100,000 | $100,000 |
| 2015 | $0 | $100,000 | $0 | $100,000 | $100,000 |
| 2014 | $0 | $100,000 | $0 | $100,000 | $100,000 |
| 2013 | $0 | $100,000 | $0 | $100,000 | $100,000 |
| 2012 | $0 | $100,000 | $0 | $100,000 | $100,000 |
| 2011 | $0 | $100,000 | $0 | $100,000 | $100,000 |
| 2010 | $0 | $100,000 | $0 | $100,000 | $100,000 |
| 2009 | $0 | $150,000 | $0 | $150,000 | $150,000 |
| 2008 | $0 | $150,000 | $0 | $150,000 | $150,000 |
| 2007 | $0 | $150,000 | $0 | $150,000 | $150,000 |
Deed and Sales History
| 1 | 08/03/2017 | WD | Warranty Deed | BOHART, CORBIN H | BEAHM, JON B | | | $685,000.00 | 30576 | 4427892 |
|   | |
| 2 | 12/07/2011 | QCD | Quit Claim Deed | BOHART, MILTON H | BOHART, CORBIN H | | | $0.00 | 6488 | 4307207 |
| 3 | 08/16/2001 | WD | Warranty Deed | MICKELS, RANDAL G | BOHART, MILTON H | | | $80,000.00 | 13381 | 20041886 |
| 4 | 03/03/1999 | WD | Warranty Deed | SWAN, FAM L | MICKELS, RANDAL G | | | $50,000.00 | 91021 | 99007072 |
| 5 | 12/01/1996 | QCD | Quit Claim Deed | LEGGEE, KAREN M | SWAN, FAM L | | | $0.00 | 64544 | 96022029 |
| 6 | 12/01/1995 | QCD | Quit Claim Deed | SWAN, NORMA - | LEGGEE, KAREN M | | | $0.00 | 54332 | 95020054 |
| 7 | 10/01/1987 | QCD | Quit Claim Deed | SWAN, NORMA | SWAN, NORMA - | | | $0.00 | 73274 | 87014372 |
| 8 | 10/01/1987 | QCD | Quit Claim Deed | SWAN, NORMA - | SWAN, NORMA - | | | $0.00 | 73316 | 87014514 |
| 9 | 03/01/1987 | QCD | Quit Claim Deed | WITTING, NORMA S | SWAN, NORMA | | | $0.00 | 70588 | 87003385 |
| 10 | 09/01/1986 | WD | Warranty Deed | Unknown | WITTING, NORMA S | | | $9,520.00 | 62712 | 86012226 |
Payout Agreement
| No payout information available.. |