Property
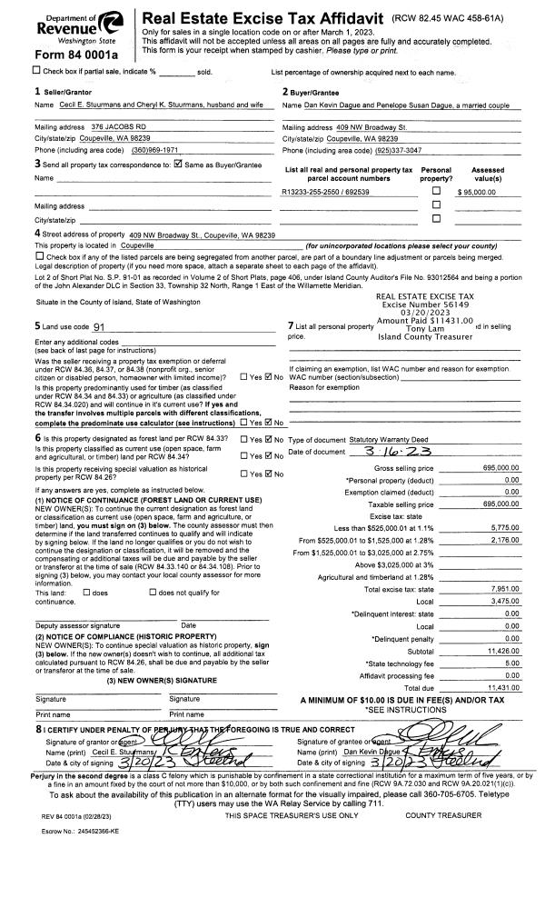
Account |
| Property ID: | 611617 | Abbreviated Legal Description: | REPLACES 326-2370 40 - GL2 LY S OF SLN STILLAGUAMISH AVE & N OF NLN BLK 7 BUENA VISTA #3 & W OF WLN D'JORUP AVE EX W310' |
| Geographic ID: | R33219-326-0370 | Agent Code: | |
| Type: | Real | | |
| Tax Area: | 590 - APPRAISER-Stan/Cam Schl Dist, Special Dist, improved & less than 1 acre | Land Use Code | 11 |
| Open Space: | N | DFL | N |
| Historic Property: | N | Remodel Property: | N |
| Multi-Family Redevelopment: | N | | |
| Township: | 32 | Section: | 19 |
| Range: | R3 |
Location |
| Address: | 1051 D'JORUP ST CAMANO ISLAND, WA 98282 | Mapsco: | |
| Neighborhood: | North Camano | Map ID: | 962 |
| Neighborhood CD: | 06-C |
Owner |
| Name: | PARK, PETER R | Owner ID: | 274585 |
| Mailing Address: | 1051 D'JORUP ST CAMANO ISLAND, WA 98282 | % Ownership: | 100.0000000000% |
| | | Exemptions: | |
Taxes and Assessment Details
Values
| (+) Improvement Homesite Value: | + | $0 | |
| (+) Improvement Non-Homesite Value: | + | $640,580 | |
| (+) Land Homesite Value: | + | $0 | |
| (+) Land Non-Homesite Value: | + | $420,000 | |
| (+) Curr Use (HS): | + | $0 | $0 |
| (+) Curr Use (NHS): | + | $0 | $0 |
| | | -------------------------- | |
| (=) Market Value: | = | $1,060,580 | |
| (–) Productivity Loss: | – | $0 | |
| | | -------------------------- | |
| (=) Subtotal: | = | $1,060,580 | |
| (+) Senior Appraised Value: | + | $0 | |
| (+) Non-Senior Appraised Value: | + | $1,060,580 | |
| | | -------------------------- | |
| (=) Total Appraised Value: | = | $1,060,580 | |
| (–) Senior Exemption Loss: | – | $0 | |
| (–) Exemption Loss: | – | $0 | |
| | | -------------------------- | |
| (=) Taxable Value: | = | $1,060,580 | |
Taxing Jurisdiction
| Owner: | PARK, PETER R | | |
| % Ownership: | 100.0000000000% | | |
| Total Value: | $1,060,580 | | |
| Tax Area: | 590 - APPRAISER-Stan/Cam Schl Dist, Special Dist, improved & less than 1 acre |
| CF | Conservation Futures | 0.0316035091 | $1,060,580 | $1,060,580 | $33.52 | | |
| EMS1 | Fire & Rescue Dist #1 Camano GEN (EMS) | 0.3677864386 | $1,060,580 | $1,060,580 | $390.07 | | |
| FIRE1 | Fire & Rescue Dist #1 Camano GEN | 1.2502910536 | $1,060,580 | $1,060,580 | $1,326.03 | | |
| FIRE1BOND | Fire & Rescue Dist #1 Camano BOND | 0.1570001679 | $1,060,580 | $1,060,580 | $166.51 | | |
| CE | County Current Expense | 0.3708482477 | $1,060,580 | $1,060,580 | $393.31 | | |
| CR | County Roads | 0.4584763726 | $1,060,580 | $1,060,580 | $486.25 | | |
| LCIB | Library Sno-Isle BOND (Camano Island) | 0.0396325772 | $1,060,580 | $1,060,580 | $42.03 | | |
| LIB | Library Sno-Isle GEN | 0.3153421757 | $1,060,580 | $1,060,580 | $334.45 | | |
| SCH205_401 | School 205-401 Enrichment | 1.2698420524 | $1,060,580 | $1,060,580 | $1,346.77 | | |
| SCH205BOND | School 205-401 BOND | 0.9396497583 | $1,060,580 | $1,060,580 | $996.57 | | |
| ST | State School | 1.3035497053 | $1,060,580 | $1,060,580 | $1,382.52 | | |
| ST2 | State School Part 2 | 0.8169543533 | $1,060,580 | $1,060,580 | $866.45 | | |
| | Total Tax Rate: | 7.3209764117 | | | | | |
| | | | | Taxes w/Current Exemptions: | $7,764.48 | | |
| | | | | Taxes w/o Exemptions: | $7,764.48 | | |
Improvement / Building
| Improvement #1: | RESIDENTIAL | State Code: | Y | 4274.0 sqft | Value: | $640,580 |
| Bathrooms: | 3.75 | Bedrooms: | 2 | | Ceiling: | DRYWALL PAINTED | Exterior Wall/Cover: | CEMENT FIBER | | Floor Covering: | HARDWOOD/CARP 60-40 | Floor Structure: | WOOD W/SUBFLOOR | | Foundation: | CONCRETE | Heating: | FHA GAS | | Interior Finish: | DRYWALL PAINT | Plumbing Fixture Cnt: | 17 | | Roof Slope: | 6" IN 12" | Roof Structure/Cover: | CJ ASPHALT |
|
| | Type | Description | Class CD | Sub Class CD | Year Built | Area |
| | BAS | BASE/MAIN FLOOR | 4 | 0 | 2003 | 1849.0 |
| | OP1 | OPEN PORCH SLAB | 4 | 0 | 2003 | 295.0 |
| | OP2 | OPEN PORCH W/STEPS | 4 | 0 | 2003 | 45.5 |
| | BGR | BASEMENT GARAGE | 4 | 0 | 2003 | 1004.0 |
| | BIG | BUILT IN GARAGE | 4 | 0 | 2003 | 900.0 |
| | UPS | UPPER STORY | 4 | 0 | 2003 | 1596.0 |
| | OWP | OPEN WOOD PORCH W/STEPS | 4 | 0 | 2003 | 710.5 |
| | DWN | DOWNSTAIRS LIVING AREA | 4 | 0 | 2003 | 829.0 |
Sketch
Property Image
Land
| 1 | 15 | SQ (12001-21780) | 0.0000 | 0.00 | 0.00 | 0.00 | 1.00 | $420,000 | $0 |
Roll Value History
| 2026 | N/A | N/A | N/A | N/A | N/A |
| 2025 | $640,580 | $420,000 | $0 | $1,060,580 | $1,060,580 |
| 2024 | $648,096 | $410,000 | $0 | $1,058,096 | $1,058,096 |
| 2023 | $655,610 | $400,000 | $0 | $1,055,610 | $1,055,610 |
| 2022 | $586,825 | $360,000 | $0 | $946,825 | $946,825 |
| 2021 | $516,201 | $240,000 | $0 | $756,201 | $756,201 |
| 2020 | $503,898 | $200,000 | $0 | $703,898 | $703,898 |
| 2019 | $416,938 | $250,000 | $0 | $666,938 | $666,938 |
| 2018 | $418,108 | $180,000 | $0 | $598,108 | $598,108 |
| 2017 | $420,438 | $165,000 | $0 | $585,438 | $585,438 |
| 2016 | $472,040 | $150,000 | $0 | $622,040 | $622,040 |
| 2015 | $550,478 | $100,000 | $0 | $650,478 | $650,478 |
| 2014 | $556,462 | $100,000 | $0 | $656,462 | $656,462 |
| 2013 | $562,444 | $100,000 | $0 | $662,444 | $662,444 |
| 2012 | $568,430 | $100,000 | $0 | $668,430 | $668,430 |
| 2011 | $574,412 | $125,000 | $0 | $699,412 | $699,412 |
| 2010 | $664,144 | $125,000 | $0 | $789,144 | $789,144 |
| 2009 | $699,162 | $150,000 | $0 | $849,162 | $849,162 |
| 2008 | $699,573 | $150,000 | $0 | $849,573 | $849,573 |
| 2007 | $707,120 | $150,000 | $0 | $857,120 | $857,120 |
Deed and Sales History
| 1 | 04/26/2016 | ESTSEPPROP | Establish Separate Property | PARK, PETER R | PARK, PETER R | | | $0.00 | 24068 | 4398410 |
| 2 | 04/11/2016 | WD | Warranty Deed | FROSTAD, KNUT R | PARK, PETER R | | | $575,000.00 | 24066 | 4398409 |
| 3 | 06/01/1990 | WD | Warranty Deed | LINDAHL, WAYNE | FROSTAD, KNUT R | | | $60,000.00 | 3579 | 90011590 |
| 4 | 01/01/1900 | OTHER | Other - Misc. Documents | Unknown | LINDAHL, WAYNE | | | $0.00 | 0 | 0 |
Payout Agreement
| No payout information available.. |