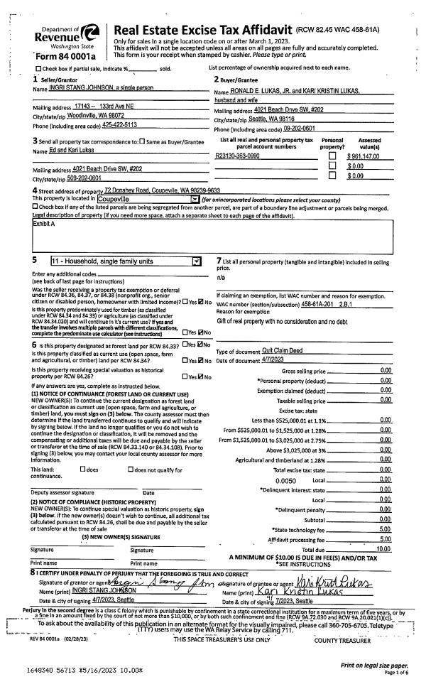
Property
Account |
| Property ID: | 611859 | Abbreviated Legal Description: | 26 - NW SW NE EX E25'INCL W25'OF SW NE N OF CORD EX PT PLATTED TGW: N250' OF SW SW NE EX E25' |
| Geographic ID: | R13301-350-2950 | Agent Code: | |
| Type: | Real | | |
| Tax Area: | 112 - APPRAISER-OH Schl Dist, outside OH, improved, greater than 1 acre | Land Use Code | 15 |
| Open Space: | N | DFL | N |
| Historic Property: | N | Remodel Property: | N |
| Multi-Family Redevelopment: | N | | |
| Township: | 33 | Section: | 01 |
| Range: | R1 |
Location |
| Address: | 4695 PARK ACRES DR OAK HARBOR, WA 98277 | Mapsco: | |
| Neighborhood: | 61cRR-troxell rd | Map ID: | 192 |
| Neighborhood CD: | 61cRRtroxl |
Owner |
| Name: | CROWFOOT PROPERTIES, LLC | Owner ID: | 273443 |
| Mailing Address: | 41 NE MIDWAY BLVD SUITE 101 OAK HARBOR, WA 98277 | % Ownership: | 100.0000000000% |
| | | Exemptions: | |
Taxes and Assessment Details
Values
| (+) Improvement Homesite Value: | + | $0 | |
| (+) Improvement Non-Homesite Value: | + | $421,707 | |
| (+) Land Homesite Value: | + | $0 | |
| (+) Land Non-Homesite Value: | + | $882,090 | |
| (+) Curr Use (HS): | + | $0 | $0 |
| (+) Curr Use (NHS): | + | $0 | $0 |
| | | -------------------------- | |
| (=) Market Value: | = | $1,303,797 | |
| (–) Productivity Loss: | – | $0 | |
| | | -------------------------- | |
| (=) Subtotal: | = | $1,303,797 | |
| (+) Senior Appraised Value: | + | $0 | |
| (+) Non-Senior Appraised Value: | + | $1,303,797 | |
| | | -------------------------- | |
| (=) Total Appraised Value: | = | $1,303,797 | |
| (–) Senior Exemption Loss: | – | $0 | |
| (–) Exemption Loss: | – | $0 | |
| | | -------------------------- | |
| (=) Taxable Value: | = | $1,303,797 | |
Taxing Jurisdiction
| Owner: | CROWFOOT PROPERTIES, LLC | | |
| % Ownership: | 100.0000000000% | | |
| Total Value: | $1,303,797 | | |
| Tax Area: | 112 - APPRAISER-OH Schl Dist, outside OH, improved, greater than 1 acre |
| CF | Conservation Futures | 0.0316035091 | $1,303,797 | $1,303,797 | $41.20 | | |
| CEM1 | Cemetery #1 | 0.0040320932 | $1,303,797 | $1,303,797 | $5.26 | | |
| FIRE2 | Fire & Rescue Dist #2 N Whidbey GEN | 0.5475949600 | $1,303,797 | $1,303,797 | $713.95 | | |
| HOBOND | Hospital BOND | 0.1910887512 | $1,303,797 | $1,303,797 | $249.14 | | |
| HOGEN | Hospital GEN | 0.3902502903 | $1,303,797 | $1,303,797 | $508.81 | | |
| CE | County Current Expense | 0.3708482477 | $1,303,797 | $1,303,797 | $483.51 | | |
| CR | County Roads | 0.4584763726 | $1,303,797 | $1,303,797 | $597.76 | | |
| ISLANDEMS | Hospital GEN (EMS) | 0.5000000000 | $1,303,797 | $1,303,797 | $651.90 | | |
| LIB | Library Sno-Isle GEN | 0.3153421757 | $1,303,797 | $1,303,797 | $411.14 | | |
| NWHIDPRMT | P & R N Whidbey GEN | 0.2004466701 | $1,303,797 | $1,303,797 | $261.34 | | |
| SCH201MO | School 201 Enrichment | 1.8559231640 | $1,303,797 | $1,303,797 | $2,419.75 | | |
| ST | State School | 1.3035497053 | $1,303,797 | $1,303,797 | $1,699.56 | | |
| ST2 | State School Part 2 | 0.8169543533 | $1,303,797 | $1,303,797 | $1,065.14 | | |
| | Total Tax Rate: | 6.9861102925 | | | | | |
| | | | | Taxes w/Current Exemptions: | $9,108.46 | | |
| | | | | Taxes w/o Exemptions: | $9,108.46 | | |
Improvement / Building
| Improvement #1: | RESIDENTIAL | State Code: | Y | 1494.2 sqft | Value: | $179,297 |
| Bathrooms: | 1 | Bedrooms: | 3 | | Ceiling: | DRYWALL PAINTED | Exterior Wall/Cover: | WOOD SIDING | | Floor Covering: | VINYL 100% | Floor Structure: | WOOD W/SUBFLOOR | | Foundation: | WOOD BLOCKS | Heating: | FHA GAS | | Interior Finish: | DRYWALL PAINT | Plumbing Fixture Cnt: | 6 | | Roof Slope: | 8" IN 12" | Roof Structure/Cover: | CJ ASPHALT |
|
| | Type | Description | Class CD | Sub Class CD | Year Built | Area |
| | BAS | BASE/MAIN FLOOR | 3 | 0 | 1968 | 1055.4 |
| | UPS | UPPER STORY | 3 | 0 | 1968 | 438.8 |
| | OWP | OPEN WOOD PORCH W/STEPS | 3 | 0 | 1968 | 20.0 |
| | OWR | OPEN WOOD PORCH W/STEPS/ROOF | 3 | 0 | 1968 | 20.0 |
| Improvement #2: | RESIDENTIAL | State Code: | F1 | 0.0 sqft | Value: | $242,410 |
| | Type | Description | Class CD | Sub Class CD | Year Built | Area |
| | oMHS | MOBILE HOME SPACE | 2 | 0 | 1968 | 0.0 |
| | oPOL | POLE BARN | 2 | 0 | 1968 | 1800.0 |
Sketch
Property Image
Land
| 1 | 61 | MULTIPLE RESIDENCES | 13.5000 | 588060.00 | 0.00 | 0.00 | 1.00 | $882,090 | $0 |
Roll Value History
| 2026 | N/A | N/A | N/A | N/A | N/A |
| 2025 | $421,707 | $882,090 | $0 | $1,303,797 | $1,303,797 |
| 2024 | $407,886 | $882,090 | $0 | $1,289,976 | $1,289,976 |
| 2023 | $410,476 | $882,090 | $0 | $1,292,566 | $1,292,566 |
| 2022 | $363,705 | $882,090 | $0 | $1,245,795 | $1,245,795 |
| 2021 | $347,636 | $882,090 | $0 | $1,229,726 | $1,229,726 |
| 2020 | $345,196 | $882,090 | $0 | $1,227,286 | $1,227,286 |
| 2019 | $313,223 | $882,090 | $0 | $1,195,313 | $1,195,313 |
| 2018 | $313,553 | $882,090 | $0 | $1,195,643 | $1,195,643 |
| 2017 | $314,211 | $699,492 | $0 | $1,013,703 | $1,013,703 |
| 2016 | $245,386 | $699,492 | $0 | $944,878 | $944,878 |
| 2015 | $245,386 | $699,492 | $0 | $944,878 | $944,878 |
| 2014 | $245,386 | $699,492 | $0 | $944,878 | $944,878 |
| 2013 | $245,386 | $699,492 | $0 | $944,878 | $944,878 |
| 2012 | $245,386 | $699,492 | $0 | $944,878 | $944,878 |
| 2011 | $245,386 | $699,492 | $0 | $944,878 | $944,878 |
| 2010 | $300,517 | $699,492 | $0 | $1,000,009 | $1,000,009 |
| 2009 | $313,963 | $768,667 | $0 | $1,082,630 | $1,082,630 |
| 2008 | $331,296 | $804,708 | $0 | $1,136,004 | $1,136,004 |
| 2007 | $264,011 | $883,864 | $0 | $1,147,875 | $1,147,875 |
Deed and Sales History
| 1 | 01/13/2016 | WD | Warranty Deed | | CROWFOOT PROPERTIES, LLC | | | $820,000.00 | 22866 | 4392660 |
| 2 | 10/01/1997 | QCD | Quit Claim Deed | KNOX, CLAUDE | KNOX, PATRICIA M | | | $0.00 | 80631 | 98003397 |
| 3 | 12/01/1986 | OTHER | Other - Misc. Documents | KNOX, CLAUDE | KNOX, CLAUDE | | | $0.00 | 61953 | 86011632 |
| 4 | 01/01/1900 | OTHER | Other - Misc. Documents | Unknown | KNOX, CLAUDE | | | $0.00 | 0 | 0 |
Payout Agreement
| No payout information available.. |