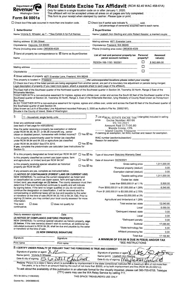
Property
Account |
| Property ID: | 612064 | Abbreviated Legal Description: | SW NW NE EX RDS TGW & SUB EZS FR 468-3400 EX: ANY PT NWNE V6 SUR P200 AF#8601 5628 DESC: BG N/4 CR SEC 20 S ALG WLN 380'TPB E150' S658.05' W150' N658.05'TPB C |
| Geographic ID: | R32920-435-3000 | Agent Code: | |
| Type: | Real | | |
| Tax Area: | 712 - APPRAISER-S Whid Schl Dist, outside Langley, improved, greater than 1 acre | Land Use Code | 11 |
| Open Space: | N | DFL | N |
| Historic Property: | N | Remodel Property: | N |
| Multi-Family Redevelopment: | N | | |
| Township: | 29 | Section: | 20 |
| Range: | R3 |
Location |
| Address: | 6066 SECRET CORNER LN CLINTON, WA 98236 | Mapsco: | |
| Neighborhood: | Cycle 4 | Map ID: | 794 |
| Neighborhood CD: | 4 |
Owner |
| Name: | ROEHNELT, ROD | Owner ID: | 180106 |
| Mailing Address: | SYLVIA ROEHNELT 6066 SECRET CORNER LN CLINTON, WA 98236-9000 | % Ownership: | 100.0000000000% |
| | | Exemptions: | |
Taxes and Assessment Details
Values
| (+) Improvement Homesite Value: | + | $0 | |
| (+) Improvement Non-Homesite Value: | + | $349,099 | |
| (+) Land Homesite Value: | + | $0 | |
| (+) Land Non-Homesite Value: | + | $380,000 | |
| (+) Curr Use (HS): | + | $0 | $0 |
| (+) Curr Use (NHS): | + | $0 | $0 |
| | | -------------------------- | |
| (=) Market Value: | = | $729,099 | |
| (–) Productivity Loss: | – | $0 | |
| | | -------------------------- | |
| (=) Subtotal: | = | $729,099 | |
| (+) Senior Appraised Value: | + | $0 | |
| (+) Non-Senior Appraised Value: | + | $729,099 | |
| | | -------------------------- | |
| (=) Total Appraised Value: | = | $729,099 | |
| (–) Senior Exemption Loss: | – | $0 | |
| (–) Exemption Loss: | – | $0 | |
| | | -------------------------- | |
| (=) Taxable Value: | = | $729,099 | |
Taxing Jurisdiction
| Owner: | ROEHNELT, ROD | | |
| % Ownership: | 100.0000000000% | | |
| Total Value: | $729,099 | | |
| Tax Area: | 712 - APPRAISER-S Whid Schl Dist, outside Langley, improved, greater than 1 acre |
| CF | Conservation Futures | 0.0316035091 | $729,099 | $729,099 | $23.04 | | |
| FIRE3 | Fire & Rescue Dist #3 S Whidbey GEN | 1.2004855531 | $729,099 | $729,099 | $875.27 | | |
| HOBOND | Hospital BOND | 0.1910887512 | $729,099 | $729,099 | $139.32 | | |
| HOGEN | Hospital GEN | 0.3902502903 | $729,099 | $729,099 | $284.53 | | |
| CE | County Current Expense | 0.3708482477 | $729,099 | $729,099 | $270.39 | | |
| CR | County Roads | 0.4584763726 | $729,099 | $729,099 | $334.27 | | |
| ISLANDEMS | Hospital GEN (EMS) | 0.5000000000 | $729,099 | $729,099 | $364.55 | | |
| LIB | Library Sno-Isle GEN | 0.3153421757 | $729,099 | $729,099 | $229.92 | | |
| PORTWHID | Port of S Whidbey GEN | 0.1094540357 | $729,099 | $729,099 | $79.80 | | |
| SCH206BOND | School 206 BOND | 0.3161759235 | $729,099 | $729,099 | $230.52 | | |
| SCH206MO | School 206 Enrichment | 0.4547169547 | $729,099 | $729,099 | $331.53 | | |
| ST | State School | 1.3035497053 | $729,099 | $729,099 | $950.42 | | |
| ST2 | State School Part 2 | 0.8169543533 | $729,099 | $729,099 | $595.64 | | |
| SWHIDPRBD | P & R S Whidbey BOND | 0.0152817568 | $729,099 | $729,099 | $11.14 | | |
| SWHIDPRBD2 | P & R S Whidbey BOND2 | 0.0138911264 | $729,099 | $729,099 | $10.13 | | |
| SWHIDPRMT | P & R S Whidbey GEN | 0.2053334452 | $729,099 | $729,099 | $149.71 | | |
| | Total Tax Rate: | 6.6934522006 | | | | | |
| | | | | Taxes w/Current Exemptions: | $4,880.18 | | |
| | | | | Taxes w/o Exemptions: | $4,880.18 | | |
Improvement / Building
| Improvement #1: | RESIDENTIAL | State Code: | Y | 2298.0 sqft | Value: | $349,099 |
| Bathrooms: | 2.5 | Bedrooms: | 3 | | Ceiling: | DRYWALL PAINTED | Exterior Wall/Cover: | CEMENT FIBER | | Floor Covering: | CARPET/VINYL 60-40 | Floor Structure: | WOOD W/SUBFLOOR | | Foundation: | CONCRETE | Heating: | FHA GAS | | Interior Finish: | DRYWALL PAINT | Plumbing Fixture Cnt: | 13 | | Roof Slope: | 12" IN 12" | Roof Structure/Cover: | CJ ASPHALT |
|
| | Type | Description | Class CD | Sub Class CD | Year Built | Area |
| | BAS | BASE/MAIN FLOOR | 3 | 0 | 2001 | 1698.0 |
| | UPS | UPPER STORY | 3 | 0 | 2001 | 600.0 |
| | OWC | OPEN WOOD PORCH W/STEPS/ROOF/C | 3 | 0 | 2001 | 156.0 |
| | OWP | OPEN WOOD PORCH W/STEPS | 3 | 0 | 2001 | 120.0 |
Sketch
Property Image
Land
| 1 | 32 | AC (03.01-09.99) | 0.0000 | 0.00 | 0.00 | 0.00 | 1.00 | $380,000 | $0 |
Roll Value History
| 2026 | N/A | N/A | N/A | N/A | N/A |
| 2025 | $349,099 | $380,000 | $0 | $729,099 | $729,099 |
| 2024 | $353,450 | $350,000 | $0 | $703,450 | $703,450 |
| 2023 | $357,800 | $330,000 | $0 | $687,800 | $687,800 |
| 2022 | $327,937 | $290,000 | $0 | $617,937 | $617,937 |
| 2021 | $288,590 | $230,000 | $0 | $518,590 | $518,590 |
| 2020 | $278,008 | $190,000 | $0 | $468,008 | $468,008 |
| 2019 | $213,280 | $250,000 | $0 | $463,280 | $463,280 |
| 2018 | $213,905 | $210,000 | $0 | $423,905 | $423,905 |
| 2017 | $210,648 | $190,000 | $0 | $400,648 | $400,648 |
| 2016 | $213,098 | $165,000 | $0 | $378,098 | $378,098 |
| 2015 | $215,547 | $165,000 | $0 | $380,547 | $380,547 |
| 2014 | $220,732 | $170,800 | $0 | $391,532 | $391,532 |
| 2013 | $223,166 | $170,800 | $0 | $393,966 | $393,966 |
| 2012 | $225,599 | $170,800 | $0 | $396,399 | $396,399 |
| 2011 | $228,033 | $170,800 | $0 | $398,833 | $398,833 |
| 2010 | $237,121 | $170,800 | $0 | $407,921 | $407,921 |
| 2009 | $246,884 | $214,720 | $0 | $461,604 | $461,604 |
| 2008 | $184,784 | $301,489 | $0 | $486,273 | $486,273 |
| 2007 | $225,150 | $221,162 | $0 | $446,312 | $446,312 |
Deed and Sales History
| 1 | 12/23/2004 | WD | Warranty Deed | ADAMS, CHRISTOPHER | ROEHNELT, ROD | | | $369,900.00 | 46010 | 4121797 |
| 2 | 01/30/2003 | ESTSEPPROP | Establish Separate Property | ADAMS, CHRISTOPHER | ADAMS, CHRISTOPHER | | | $0.00 | 30465 | 4046800 |
| 3 | 01/11/2001 | WD | Warranty Deed | MURPHY, PATRICK | ADAMS, CHRISTOPHER | | | $100,000.00 | 10219 | 20023969 |
| 4 | 05/17/1999 | WD | Warranty Deed | SEAFIRST, BANK, R | MURPHY, PATRICK | | | $58,700.00 | 91887 | 99011931 |
| 5 | 09/01/1987 | OTHER | Other - Misc. Documents | SEA-1ST, NATL B | SEAFIRST, BANK, R | | | $0.00 | 62329 | 87011187 |
| 6 | 12/01/1986 | OTHER | Other - Misc. Documents | SEA-1ST, NATL B | SEA-1ST, NATL B | | | $0.00 | 61966 | 86016098 |
| 7 | 03/01/1981 | CD | DNU - Correction Deed | Unknown | SEA-1ST, NATL B | | | $0.00 | 11699 | 383811 |
Payout Agreement
| No payout information available.. |