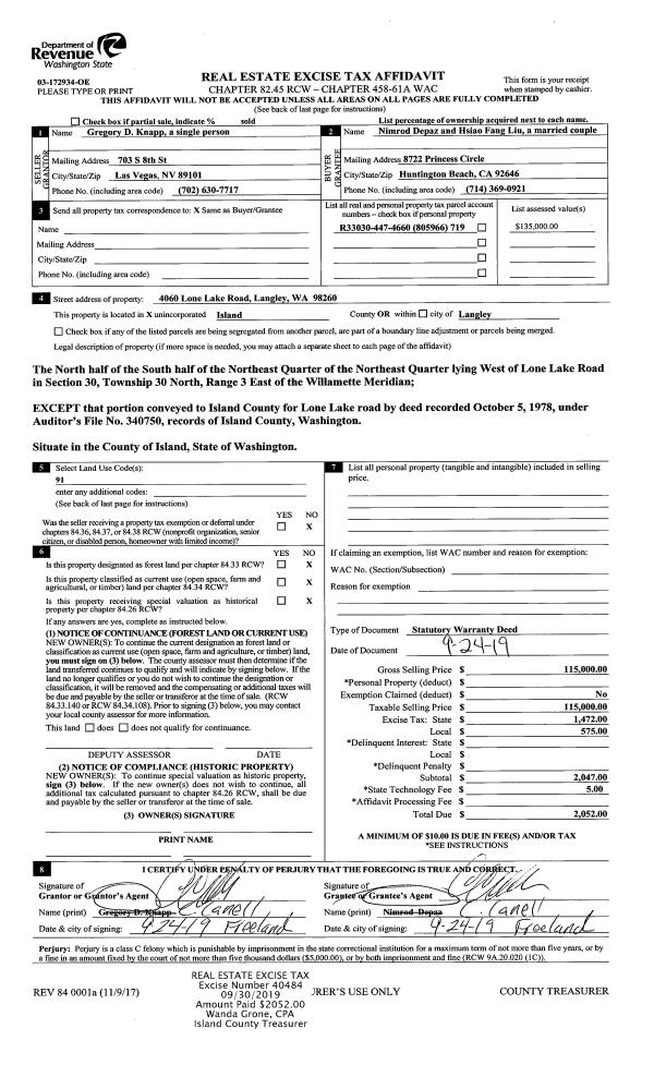
Property
Account |
| Property ID: | 612563 | Abbreviated Legal Description: | LOT 3 OH-SP 10-86.13203.087-2890 V2 SP P99 AF#86017032 TGW & SUB FENCE EZ AF#96013914 |
| Geographic ID: | R13203-065-2880 | Agent Code: | |
| Type: | Real | | |
| Tax Area: | 100 - APPRAISER-OH Schl Dist, in OH | Land Use Code | 11 |
| Open Space: | N | DFL | N |
| Historic Property: | N | Remodel Property: | N |
| Multi-Family Redevelopment: | N | | |
| Township: | 32 | Section: | 03 |
| Range: | R1 |
Location |
| Address: | 875 SW KIMBALL DR OAK HARBOR, WA 98277 | Mapsco: | |
| Neighborhood: | 3AcOH-highway 20 | Map ID: | 91 |
| Neighborhood CD: | 3AcOHhwy20 |
Owner |
| Name: | BEMENT, BRIAN | Owner ID: | 181681 |
| Mailing Address: | LAUREN BEMENT 433 BOWEN DR EXTON, PA 19341-2366 | % Ownership: | 100.0000000000% |
| | | Exemptions: | |
Taxes and Assessment Details
Values
| (+) Improvement Homesite Value: | + | $0 | |
| (+) Improvement Non-Homesite Value: | + | $404,260 | |
| (+) Land Homesite Value: | + | $0 | |
| (+) Land Non-Homesite Value: | + | $360,000 | |
| (+) Curr Use (HS): | + | $0 | $0 |
| (+) Curr Use (NHS): | + | $0 | $0 |
| | | -------------------------- | |
| (=) Market Value: | = | $764,260 | |
| (–) Productivity Loss: | – | $0 | |
| | | -------------------------- | |
| (=) Subtotal: | = | $764,260 | |
| (+) Senior Appraised Value: | + | $0 | |
| (+) Non-Senior Appraised Value: | + | $764,260 | |
| | | -------------------------- | |
| (=) Total Appraised Value: | = | $764,260 | |
| (–) Senior Exemption Loss: | – | $0 | |
| (–) Exemption Loss: | – | $0 | |
| | | -------------------------- | |
| (=) Taxable Value: | = | $764,260 | |
Taxing Jurisdiction
| Owner: | BEMENT, BRIAN | | |
| % Ownership: | 100.0000000000% | | |
| Total Value: | $764,260 | | |
| Tax Area: | 100 - APPRAISER-OH Schl Dist, in OH |
| CF | Conservation Futures | 0.0316035091 | $764,260 | $764,260 | $24.15 | | |
| CEM1 | Cemetery #1 | 0.0040320932 | $764,260 | $764,260 | $3.08 | | |
| COH | City of Oak Harbor | 2.3001546061 | $764,260 | $764,260 | $1,757.92 | | |
| OAKBOND | City of Oak Harbor BOND | 0.1926904192 | $764,260 | $764,260 | $147.27 | | |
| HOBOND | Hospital BOND | 0.1910887512 | $764,260 | $764,260 | $146.04 | | |
| HOGEN | Hospital GEN | 0.3902502903 | $764,260 | $764,260 | $298.25 | | |
| CE | County Current Expense | 0.3708482477 | $764,260 | $764,260 | $283.42 | | |
| ISLANDEMS | Hospital GEN (EMS) | 0.5000000000 | $764,260 | $764,260 | $382.13 | | |
| LIB | Library Sno-Isle GEN | 0.3153421757 | $764,260 | $764,260 | $241.00 | | |
| NWHIDPRMT | P & R N Whidbey GEN | 0.2004466701 | $764,260 | $764,260 | $153.19 | | |
| SCH201MO | School 201 Enrichment | 1.8559231640 | $764,260 | $764,260 | $1,418.41 | | |
| ST | State School | 1.3035497053 | $764,260 | $764,260 | $996.25 | | |
| ST2 | State School Part 2 | 0.8169543533 | $764,260 | $764,260 | $624.37 | | |
| | Total Tax Rate: | 8.4728839852 | | | | | |
| | | | | Taxes w/Current Exemptions: | $6,475.48 | | |
| | | | | Taxes w/o Exemptions: | $6,475.48 | | |
Improvement / Building
| Improvement #1: | RESIDENTIAL | State Code: | Y | 2255.3 sqft | Value: | $404,260 |
| Bathrooms: | 1.5 | Bedrooms: | 4 | | Ceiling: | PLASTER PAINTED | Exterior Wall/Cover: | WOOD SIDING | | Floor Covering: | HARDWOOD 100% | Floor Structure: | WOOD W/SUBFLOOR | | Foundation: | CONCRETE BLOCKS | Heating: | FHA GAS | | Interior Finish: | PLASTER | Plumbing Fixture Cnt: | 8 | | Roof Slope: | 8" IN 12" | Roof Structure/Cover: | CJ ASPHALT |
|
| | Type | Description | Class CD | Sub Class CD | Year Built | Area |
| | BAS | BASE/MAIN FLOOR | 4 | 0 | 1911 | 1121.5 |
| | UB6 | BASEMENT UNFINISHED 6" | 4 | 0 | 1911 | 176.0 |
| | OP1 | OPEN PORCH SLAB | 4 | 0 | 1911 | 406.0 |
| | DGR | DETACHED GARAGE | 4 | 0 | 1911 | 928.0 |
| | UTY | STORAGE/UTILITY | 4 | 0 | 1911 | 176.0 |
| | UPS | UPPER STORY | 4 | 0 | 1911 | 1133.8 |
| | ATU | ATTIC UNFINISHED | 4 | 0 | 1911 | 216.0 |
| | OWP | OPEN WOOD PORCH W/STEPS | 4 | 0 | 1911 | 11.1 |
| | OWP | OPEN WOOD PORCH W/STEPS | 4 | 0 | 1911 | 379.2 |
| | OWP | OPEN WOOD PORCH W/STEPS | 4 | 0 | 1911 | 330.0 |
| | ENP | ENCLOSED PORCH | 4 | 0 | 1911 | 176.0 |
Sketch
Property Image
Land
| 1 | 61 | MULTIPLE RESIDENCES | 0.5800 | 25264.80 | 0.00 | 0.00 | 1.00 | $360,000 | $0 |
Roll Value History
| 2026 | N/A | N/A | N/A | N/A | N/A |
| 2025 | $404,260 | $360,000 | $0 | $764,260 | $764,260 |
| 2024 | $410,652 | $240,000 | $0 | $650,652 | $650,652 |
| 2023 | $417,042 | $170,000 | $0 | $587,042 | $587,042 |
| 2022 | $383,428 | $160,000 | $0 | $543,428 | $543,428 |
| 2021 | $338,455 | $160,000 | $0 | $498,455 | $498,455 |
| 2020 | $331,804 | $160,000 | $0 | $491,804 | $491,804 |
| 2019 | $94,699 | $189,486 | $0 | $284,185 | $284,185 |
| 2018 | $95,224 | $140,000 | $0 | $235,224 | $235,224 |
| 2017 | $96,228 | $138,956 | $0 | $235,184 | $235,184 |
| 2016 | $98,319 | $138,956 | $0 | $237,275 | $237,275 |
| 2015 | $100,411 | $182,413 | $0 | $282,824 | $282,824 |
| 2014 | $102,501 | $182,413 | $0 | $284,914 | $284,914 |
| 2013 | $108,779 | $182,413 | $0 | $291,192 | $291,192 |
| 2012 | $108,779 | $182,413 | $0 | $291,192 | $291,192 |
| 2011 | $108,779 | $182,413 | $0 | $291,192 | $291,192 |
| 2010 | $112,607 | $182,413 | $0 | $295,020 | $295,020 |
| 2009 | $142,952 | $277,662 | $0 | $420,614 | $420,614 |
| 2008 | $142,994 | $277,662 | $0 | $420,656 | $420,656 |
| 2007 | $216,668 | $277,662 | $0 | $494,330 | $494,330 |
Deed and Sales History
| 1 | 03/08/2005 | WD | Warranty Deed | ANDERSON, JACK D | BEMENT, BRIAN | | | $275,000.00 | 50945 | 4128140 |
| 2 | 07/28/1999 | ESTSEPPROP | Establish Separate Property | Unknown | ANDERSON, JOY A | | | $0.00 | 93712 | 99020889 |
| 3 | 07/21/1999 | QCD | Quit Claim Deed | ANDERSON, JACK D | ANDERSON, JACK D | | | $0.00 | 93711 | 99020888 |
| 4 | 10/01/1992 | QCD | Quit Claim Deed | ANDERSON, JACK D | ANDERSON, JACK D | | | $0.00 | 23900 | 92018904 |
| 5 | 02/01/1987 | WD | Warranty Deed | PROMINENT, PROPERTIES | ANDERSON, JACK D | | | $120,000.00 | 70311 | 87002021 |
| 6 | 01/01/1900 | OTHER | Other - Misc. Documents | Unknown | PROMINENT, PROPERTIES | | | $0.00 | 61623 | 86007634 |
| 7 | 01/01/1900 | OTHER | Other - Misc. Documents | Unknown | ANDERSON, JACK D | | | $0.00 | 0 | 0 |
Payout Agreement
| No payout information available.. |